알림

알림 내역

알림 신청내역/취소

로고 서울중앙지방법원 본원 [경매3계] 2022타경1474
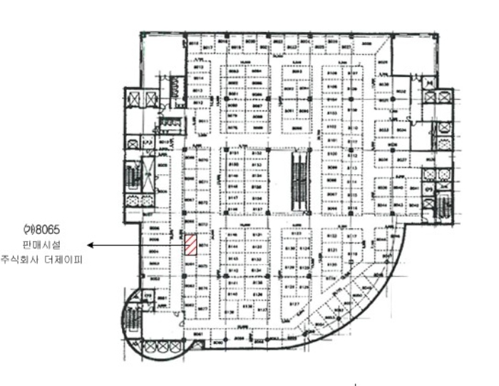
서울특별시 서초구 효령로 304, 8층8065호 (서초동,국제전자센터)

서울 서초구 서초동 1445-3

주소복사
경매구분 임의경매
용도 상가
토지 2.7㎡(0.8평)
건물 12.2㎡(3.7평)
감정가 56,000,000원
최저가 44,800,000원
보증금 4,480,000원 (10%)
청구액 36,000,000원
개시결정 2022년 05월 23일
감정일 2022년 06월 30일
배당종기 2022년 08월 04일
매각일 2023년 01월 10일
2022타경1474
2022타경1474
2022타경1474
2022타경1474
2022타경1474
2022타경1474
2022타경1474
2022타경1474
2022타경1474
2022타경1474
2022타경1474
2022타경1474
2022타경1474
감정가
5600만원
낙찰가 18%
4614만4000원
배당종결 2023년 01월 10일
유찰 1회
유찰 1회
경매구분 임의경매
용도 상가
토지 2.7㎡(0.8평)
건물 12.2㎡(3.7평)
감정가 56,000,000원
최저가 44,800,000원
보증금 4,480,000원 (10%)
청구액 36,000,000원
개시결정 2022년 05월 23일
감정일 2022년 06월 30일
배당종기 2022년 08월 04일
매각일 2023년 01월 10일
배당종결 2023년 01월 10일

당사자 내역

소유자 유OO
채권자 강OO
채무자 김OO
교부권자 서OOOOOOO
교부권자 서OOOOOOO
임차인 (주)OOOO
근저당권자 강OO
근저당권자 허OO
교부권자 국OOOOOOOOOOOO
교부권자 용OO

기일 내역

2023.02.24
납부 (2023.02.08)
2023.01.17
최고가매각허가결정
2023.01.10
4614만4000원 매각
4480만원 최저가
2022.11.22
5600만원 유찰

물건 비고(매각 명세서)

-구분소유권의 요건을 충족하는지 여부에 대해 감정인이 제출한 사실조회에 대한 회신(2022.6.22.자) 및 감정평가서 참고

현황 조사(현황 조사서)

본건 부동산은 집합건물의 소유 및 관리에 관한 법률 시행령 제2조 제1항 규정의 경계표지 및 같은 시행령 제3조 제1항 규정의 건물번호 표지가 설치되어 있지 않아서 본건 부동산의 정확한 위치와 경계가 불분명함, 임차인 본인이 바닥에 검정색 테이프로 8065호의 경계를 표시함.
임차인 본인 진술에 의하면 현재 8065호의 차임은 무상으로 사용하고 있으며, 관리단에 관리비만 지급한다고 진술.

점유 조사(현황 조사서)

[목록1]이건 부동산의 현장에 임하여 임차인을 만나 이건 현황을 조사한 바, 이건 부동산은 8065호, 8066호, 8073호, 8074호를 합쳐서 (주)더제이피 란 상호로 사용하고 있다고 진술.(안내문 교부)

매각결과+

매각일자 / 결과 응찰자수 최고가 금액/응찰자명 차순위 금액
부동산
등기
임차인
그 외

부동산

매각목록

※ 건축물 도면은 ‘건축물 대장의 기재 및 관리에 관한 규칙’ 에 따라 현재 경매가 진행중인 물건에만 제공됩니다.
※ 지분물건의 경우 면적은 지분에 해당하는 면적이 아닌 전체 면적으로 표기됩니다

감정평가

감정평가서 요약

1.구분건물감정평가요항표 1) 위치 및 주위환경 감정서 PDF 참조 2) 교통상황 감정서 PDF 참조 3) 건물의 구조 감정서 PDF 참조 4) 이용상태 감정서 PDF 참조 5) 설비내역 감정서 PDF 참조 6) 토지의 형상 및 이용상태 감정서 PDF 참조 7) 인접 도로상태등 감정서 PDF 참조 8) 토지이용계획 및 제한상태 감정서 PDF 참조 9) 공부와의 차이 감정서 PDF 참조 10) 기타참고사항(임대관례 및 기타) 감정서 PDF 참조

단지정보

국제전자센터
시공사 총 주차 대수 25대 (세대당0.53대)
사용승인 1997년 01월 25일(29년차) 동/세대 1동/47세대
관리실 - 최고층 24층
면적 46㎡, 113㎡, 127㎡, 162㎡, 223㎡

주변 입주 예정

거리 단지명 공급년월 세대 수
※ 해당 자료는 한국부동산원 청약홈 자료에 근거하며, 인근 5km 이내의 물건을 기준으로 산정되었습니다.

등기

등기부현황

채권합계 72,000,000원(2건)
등기일자 권리종류 권리자/채권액 권리
2011-01-17
소유자 유창순 (소유자)
단독소유 -
2011-01-21
(을5)
근저당권설정 강영심 소멸
말소기준 등기 36,000,000원
2011-03-25
(을6)
근저당권설정 허현회 소멸
- 36,000,000원
2022-05-23
(갑26)
임의경매개시결정
(2022타경1474)
강영심 소멸
경매기입 등기 36,000,000원
더보기 더보기
※ 신규 발급등기의 분석자료 반영에는 최대 1일까지 소요될수 있습니다.(등기분석,임차인분석,분석노트 등)

임차인

매각물건 명세서

구분 법원 사건번호 작성일자 매각명세서
1 서울중앙지법 2022타경1474[1] 2022.12.26
구분 법원/
사건번호
작성일자 매각명세서
1 서울중앙지법
2022타경1474[1]
2022.12.26

물건 비고(매각 명세서)

-구분소유권의 요건을 충족하는지 여부에 대해 감정인이 제출한 사실조회에 대한 회신(2022.6.22.자) 및 감정평가서 참고

임차인현황

임차인 보증금/차임 전입/확정/배당 대항력
[현황조사]
(주)더 제이피
(점포임차인)
점유부분:
미상
보증:
-
차임:
-
사업: -
확정: -
배당: -
-

현황 조사서

조사일시

2022년05월27일14시20분 / 2022년05월31일11시25분 / 2022년06월02일15시20분

부동산의 현황

본건 부동산은 집합건물의 소유 및 관리에 관한 법률 시행령 제2조 제1항 규정의 경계표지 및 같은 시행령 제3조 제1항 규정의 건물번호 표지가 설치되어 있지 않아서 본건 부동산의 정확한 위치와 경계가 불분명함, 임차인 본인이 바닥에 검정색 테이프로 8065호의 경계를 표시함.
임차인 본인 진술에 의하면 현재 8065호의 차임은 무상으로 사용하고 있으며, 관리단에 관리비만 지급한다고 진술.

점유 조사

[목록1]이건 부동산의 현장에 임하여 임차인을 만나 이건 현황을 조사한 바, 이건 부동산은 8065호, 8066호, 8073호, 8074호를 합쳐서 (주)더제이피 란 상호로 사용하고 있다고 진술.(안내문 교부)

1
소재지 서울특별시서초구효령로304,8층8065호(서초동,국제전자센터)
점유인 (주)더제이피(임차인)
점유부분 미상(점포)
점유기간 미상
보증금/차임 미상/미상
전입/확정일자 미상/미상

미납관리비 조사내역

확인일자 미납금액 관리소번호 메모

※ 해당 정보는 참고용으로 제공되며 입찰 전 반드시 관리사무소를 통해 직접 확인하시기 바랍니다.

시세

전문가

그외

관할법원 관할법원 (입찰장소)

서울중앙지방법원 본원

경매3계 : 02-530-1114

서울 서초구 서초동 1701-1 주소복사

Q&A Q&A

Q. 대법원경매가 무엇인가요?누구나 입찰에 참여할 수 있나요?

경매채무자(빌린 자)가 채무를 갚지 않았을 때 채권자(빌려준 자)의 신청으로 대법원이 채무자의 재산을 대신 매각하는 과정을 말합니다.

법원은 감정인에게 자산을 평가하게 한 후, 최저가를 정하여 그 금액 이상으로 입찰한 입찰자 중 최고가 매수인을 결정합니다.

대법원의 주관하에 국민 모두가 참여할 수 있습니다.

Q. 경매 입찰은 어떻게 하나요?누구나 입찰에 참여할 수 있나요?

1. 입찰하시고자 하는 경매물건을 정하신 후, 입찰하시고자 하는 입찰가를 최저가 이상으로 정합니다.

2. 해당 물건의 매각기일에 직접 관할법원에 방문하셔서 법원내에 비치된 입찰서를 작성하신 후 입찰하시면 됩니다.

TIP! 법원에 가실 때에는 입찰보증금(최저가의 10~30%)과 신분증을 지참하여 방문하세요.

Q. 용어가 너무 어려워서 내용을 이해하기 어려워요누구나 입찰에 참여할 수 있나요?

매각기일
매각기일은 경매 법원이 부동산에 대하여 매각 입찰을 진행하는 날을 말합니다.

유찰
매각 기일에 매수하고자 하는 사람이 없어 매각되지 않아 무효가 되는 것을 유찰이라고 합니다.

최저 매각 가격
최초 경매를 진행할때 감정인이 평가한 가격을 기준으로 책정한 금액이며 입찰자는 최저 매각 가격과 동일하거나 이상의 금액으로 입찰해야 합니다. 매각 기일에 있어 입찰자가 없어 유찰되면 통상 20~30% 저감된 금액이 다음 최저 매각 가격이 됩니다.

매수 보증금
경매 물건을 매수하고자 하는사람은 최저 매각 가격의 10분의 1(다르게 정해질 수 있음)에 해당하는 보증금액을 입찰표와 함께 집행관에게 제출하는 방법으로 제공합니다. 매각 절차가 종결된 후 집행관은 최고가 매수신고인이나 차순위매수신고인 이외의 매수신청인에게는 즉시 매수 보증금을 반환해 줍니다.

더 많은 내용을 알고 싶다면 경매마당 학습하기 코너에 준비된 용어설명을 이용해보세요.

경매정보는 법원자료와 일치하도록 하였으나 권리사항변동, 입력착오 등의 원인으로 사실과 다를 수 있습니다. 이용약관에 의거 면책조건으로 제공됨을 알리며, 경매입찰시 반드시 관련 공부를 재확인하시기 바랍니다.

PC버전으로 보기