알림

알림 내역

알림 신청내역/취소

대법원
물건내역
사건내역
기일내역
송달내역
현황조사
지도
사진보기
문서
매각기일공고문
매각물건명세서
감정평가서 M
등기부등본
전입세대열람원 M
건축물대장 M
분석
예상배당표 M
수익률분석 M
입찰가분석 M
조회수분석 M
인근지역통계 M
사이트
대법원
국토부 실거래가
토지이음
아실
네이버 단지정보
네이버 매물정보
호갱노노
부동산플래닛
로고 서울중앙지방법원 본원 [경매21계] 2024타경101156
서울특별시 관악구 난곡로34나길 53, 2층201호

서울 관악구 신림동 626-76

주소복사
경매구분 강제경매
용도 다세대
토지 28.95㎡(8.76평)
건물 58.45㎡(17.68평)
감정가 244,000,000원
최저가 156,160,000원
보증금 31,232,000원 (20%)
청구액 200,000,000원
개시결정 2024년 01월 18일
감정일 2024년 02월 13일
배당종기 2024년 04월 11일
매각일 2025년 09월 23일
2024타경101156
2024타경101156
2024타경101156
2024타경101156
2024타경101156
2024타경101156
2024타경101156
2024타경101156
2024타경101156
2024타경101156
2024타경101156
2024타경101156
감정가
2억4400만원
1380만905원/평
낙찰가 27%
1억7808만8000원
배당종결 2025년 09월 23일
유찰 5회특별매각조건임차권등기선순위임차인재매각대항력포기
유찰 5회특별매각조건임차권등기선순위임차인재매각대항력포기
경매구분 강제경매
용도 다세대
토지 28.95㎡(8.76평)
건물 58.45㎡(17.68평)
감정가 244,000,000원
최저가 156,160,000원
보증금 31,232,000원 (20%)
청구액 200,000,000원
개시결정 2024년 01월 18일
감정일 2024년 02월 13일
배당종기 2024년 04월 11일
매각일 2025년 09월 23일
배당종결 2025년 09월 23일

당사자 내역

채무자겸소유자 나OO
채권자 주OOOOOOO
임차인 주OOOOOOOOOOOO
근저당권자 주OOOOOOOOOOO
임차권자 강OO
배당요구권자 부OOOOOOO
압류권자 국OOOOOOO
압류권자 서OOOOOOOO
교부권자 국OOOOOOOOOOOOOO
교부권자 서OOOOOOOO
배당요구권자 주OOOOOOOOOOOO
배당요구권자 주OOOOOOOOOO
배당요구권자 서OOOOOOOOOO

기일 내역

2025.11.13(15:00)
납부
2025.09.30(14:00)
최고가매각허가결정
2025.09.23(10:00)
1억7808만8000원 매각
1억5616만원 최저가
2025.08.01(15:00)
미납
2025.06.26(14:00)
최고가매각허가결정
2025.06.03(14:00)
기일변경
2025.05.27(10:00)
2억5705만원 매각
1억5616만원 최저가
2025.04.15(10:00)
1억9520만원 유찰
2025.03.11(10:00)
2억4400만원 유찰
2025.02.04(10:00)
기일변경
2024.12.17(10:00)
1억5616만원 유찰
2024.11.19(10:00)
1억9520만원 유찰
2024.10.22(10:00)
2억4400만원 유찰

매각공고

물건 비고(공고문)

특별매각조건 매수신청보증금 최저매각가격의 20%

임차인(매각 명세서)

주택도시보증공사(강영옥):신청채권자 겸 임차인 강영옥의 임차보증금 양수인임

물건 비고(매각 명세서)

-2025.1.16. 신청채권자 주택도시보증공사로부터 우선변제권만 주장하고 대항력을 포기하여 임대차보증금반환채권 전액을 변제받지 못하더라도 매수인에 대한 잔존 임대차보증금반환 청구권을 포기하고 임차권등기를 말소하는 것에 동의한다는 확약서가 제출됨-을구 19번 주택임차권등기는 매수인에게 인수되지 않고 말소됨

점유 조사(현황 조사서)

[목록1]1) 이 건 부동산의 전입세대열람 내역(전입세대확인서, 외국인체류확인서)에 등재된 세대주는 없음.
2) 현장에 임하여 점유자 등을 만날 수 없어서 연락처가 기재된 안내문을 출입문에 부착해두었으나 점유자 등으로부터 아무런 연락이 없으므로 점유자 미상으로 보고함. 단, 점유관계는 별도 확인이 필요함.

매각결과+

매각일자 / 결과 응찰자수 최고가 금액/응찰자명 차순위 금액

가장 빠른 경매 정보 플랫폼 경매마당
남들보다 먼저 정보를 선점하세요

간단한 로그인 후 바로 이용 가능합니다

bolt 대법원 보다 빠른 물건 정보
verified 가장 많은 경매 물건 제공
trending_up 월 5회 등기부 무료 열람

현황정보

매각목록

부동산 현황

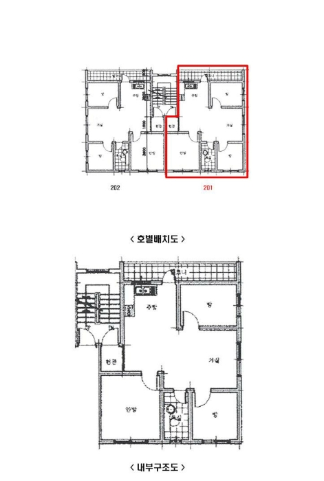
1) 위치 및 주위환경 본건은 서울특별시 관악구 신림동 소재 "남강고등학교" 서측 인근에 위치하며 주위는 다세대주택, 단독주택, 근린생활시설, 학교 등이 소재하며 주위환경은 보통시됨. 2) 교통상황 본건까지 차량접근이 가능하고 인근에 버스정류장이 소재하는 등 전반적 교통상황은 보통시됨. 3) 건물의 구조 본건은 철근콘크리트구조 평슬라브지붕 4층 건중 2층 201호로서 외벽:석재붙임 등 마감, 내벽:벽지 및 일부 타일 마감, 창호:샤시창호 등임. 4) 이용상태 본건은 다세대주택 1개호로 이용중임. 5) 설비내역 위생설비 및 급배수설비, 난방설비, 전기설비, 주차장설비 등이 되어있음. 6) 토지의 형상 및 이용상태 본건은 인접지 대비 완경사지를 조성한 세장형의 토지로 다세대주택 건부지로 이용중임. 7) 인접 도로상태등 본건 서측으로 노폭 약 6미터 도로 소재함. 8) 토지이용계획 및 제한상태 도시지역 , 제2종일반주거지역(7층이하) , 가축사육제한구역, 교육환경보호구역(상대/절대정화구역 최종확인은 동작교육청에 반드시 확인이 필요한 사항임), 대공방어협조구역(위탁고도:194m), 과밀억제권역, 중점경관관리구역(주요산 주변)임. 9) 공부와의 차이 --. 10) 기타참고사항(임대관례 및 기타) 1.임대관계미상임.

주변 입주 예정

거리 단지명 공급년월 세대 수
※ 해당 자료는 한국부동산원 청약홈 자료에 근거하며, 인근 5km 이내의 물건을 기준으로 산정되었습니다.

등기

등기부현황

채권합계 50,000,000원(1건)
등기일자 권리종류 권리자/채권액 권리
2020-11-03
소유자 나OOOOOOOO OO
단독소유 -
2020-12-23
(을18)
근저당권설정 주OOOOOOOOOO OO
말소기준 등기 50,000,000원
2021-02-05
(갑34)
압류 국OOOOOOO OO
- -
2022-11-29
(을19)
임차권설정 강OO OO
- 200,000,000원
2022-12-30
(갑39)
압류 관OOOOOOOOO OO
- -
2024-01-19
(갑40)
강제경매개시결정
(2024타경101156)
주OOOOOOO OO
경매기입 등기 200,000,000원
더보기
※ 신규 발급등기의 분석자료 반영에는 최대 1일까지 소요될수 있습니다.(등기분석,임차인분석,분석노트 등)

임차인

매각물건 명세서

구분 법원 사건번호 작성일자 매각명세서
1 서울중앙지법 2024타경101156[1] 2025. 9. 8.
2 서울중앙지법 2024타경101156[1] 2025. 5. 12.
3 서울중앙지법 2024타경101156[1] 2025. 3. 31.
4 서울중앙지법 2024타경101156[1] 2025. 2. 24.
5 서울중앙지법 2024타경101156[1] 2024.12.02
구분 법원/
사건번호
작성일자 매각명세서
1 서울중앙지법
2024타경101156[1]
2025. 9. 8.
2 서울중앙지법
2024타경101156[1]
2025. 5. 12.
3 서울중앙지법
2024타경101156[1]
2025. 3. 31.
4 서울중앙지법
2024타경101156[1]
2025. 2. 24.
5 서울중앙지법
2024타경101156[1]
2024.12.02

임차인(매각 명세서)

주택도시보증공사(강영옥):신청채권자 겸 임차인 강영옥의 임차보증금 양수인임

물건 비고(매각 명세서)

-2025.1.16. 신청채권자 주택도시보증공사로부터 우선변제권만 주장하고 대항력을 포기하여 임대차보증금반환채권 전액을 변제받지 못하더라도 매수인에 대한 잔존 임대차보증금반환 청구권을 포기하고 임차권등기를 말소하는 것에 동의한다는 확약서가 제출됨-을구 19번 주택임차권등기는 매수인에게 인수되지 않고 말소됨

임차인현황

임차인 보증금/차임 전입/확정/배당 대항력
주OOOOOOOOOOOO
(주거 임차인)
점유부분:
201호
보증:
200,000,000
차임:
-
전입: 2020-11-04
확정: 2020-09-28
배당: 2024.4.1.
멤버십

현황 조사서

조사일시

2024년02월02일15시49분 / 2024년02월06일12시05분

부동산의 현황

-

점유 조사

[목록1]1) 이 건 부동산의 전입세대열람 내역(전입세대확인서, 외국인체류확인서)에 등재된 세대주는 없음.
2) 현장에 임하여 점유자 등을 만날 수 없어서 연락처가 기재된 안내문을 출입문에 부착해두었으나 점유자 등으로부터 아무런 연락이 없으므로 점유자 미상으로 보고함. 단, 점유관계는 별도 확인이 필요함.

미납관리비 조사내역

확인일자 미납금액 관리소번호 메모

※ 해당 정보는 참고용으로 제공되며 입찰 전 반드시 관리사무소를 통해 직접 확인하시기 바랍니다.

시세분석

인근 낙찰사례

기타

전문가

관할법원 (입찰장소)

서울중앙지방법원 본원

경매21계 : 02-530-1114

서울 서초구 서초동 1701-1 주소복사

Q&A

Q. 대법원경매가 무엇인가요?누구나 입찰에 참여할 수 있나요?

경매채무자(빌린 자)가 채무를 갚지 않았을 때 채권자(빌려준 자)의 신청으로 대법원이 채무자의 재산을 대신 매각하는 과정을 말합니다.

법원은 감정인에게 자산을 평가하게 한 후, 최저가를 정하여 그 금액 이상으로 입찰한 입찰자 중 최고가 매수인을 결정합니다.

대법원의 주관하에 국민 모두가 참여할 수 있습니다.

Q. 경매 입찰은 어떻게 하나요?누구나 입찰에 참여할 수 있나요?

1. 입찰하시고자 하는 경매물건을 정하신 후, 입찰하시고자 하는 입찰가를 최저가 이상으로 정합니다.

2. 해당 물건의 매각기일에 직접 관할법원에 방문하셔서 법원내에 비치된 입찰서를 작성하신 후 입찰하시면 됩니다.

TIP! 법원에 가실 때에는 입찰보증금(최저가의 10~30%)과 신분증을 지참하여 방문하세요.

Q. 용어가 너무 어려워서 내용을 이해하기 어려워요누구나 입찰에 참여할 수 있나요?

매각기일
매각기일은 경매 법원이 부동산에 대하여 매각 입찰을 진행하는 날을 말합니다.

유찰
매각 기일에 매수하고자 하는 사람이 없어 매각되지 않아 무효가 되는 것을 유찰이라고 합니다.

최저 매각 가격
최초 경매를 진행할때 감정인이 평가한 가격을 기준으로 책정한 금액이며 입찰자는 최저 매각 가격과 동일하거나 이상의 금액으로 입찰해야 합니다. 매각 기일에 있어 입찰자가 없어 유찰되면 통상 20~30% 저감된 금액이 다음 최저 매각 가격이 됩니다.

매수 보증금
경매 물건을 매수하고자 하는사람은 최저 매각 가격의 10분의 1(다르게 정해질 수 있음)에 해당하는 보증금액을 입찰표와 함께 집행관에게 제출하는 방법으로 제공합니다. 매각 절차가 종결된 후 집행관은 최고가 매수신고인이나 차순위매수신고인 이외의 매수신청인에게는 즉시 매수 보증금을 반환해 줍니다.

더 많은 내용을 알고 싶다면 경매마당 학습하기 코너에 준비된 용어설명을 이용해보세요.

경매정보는 법원자료와 일치하도록 하였으나 권리사항변동, 입력착오 등의 원인으로 사실과 다를 수 있습니다. 이용약관에 의거 면책조건으로 제공됨을 알리며, 경매입찰시 반드시 관련 공부를 재확인하시기 바랍니다.

PC버전으로 보기