알림

알림 내역

알림 신청내역/취소

대법원
물건내역
사건내역
기일내역
송달내역
현황조사
지도
사진보기
문서
매각기일공고문
매각물건명세서
감정평가서 M
등기부등본
전입세대열람원 M
건축물대장 M
분석
예상배당표 M
수익률분석 M
입찰가분석 M
조회수분석 M
인근지역통계 M
사이트
대법원
국토부 실거래가
토지이음
아실
네이버 단지정보
네이버 매물정보
호갱노노
부동산플래닛
로고 서울중앙지방법원 본원 [경매1계] 2024타경125619
서울특별시 동작구 동작대로35길 39-17, 2층202호

서울 동작구 사당동 70-25

주소복사
경매구분 임의경매
용도 다세대
토지 24.16㎡(7.31평)
건물 40.66㎡(12.3평)
감정가 439,000,000원
최저가 280,960,000원
보증금 28,096,000원 (10%)
청구액 200,000,000원
개시결정 2024년 12월 19일
감정일 2024년 12월 31일
배당종기 2025년 03월 04일
매각일 2025년 10월 14일
2024타경125619
2024타경125619
2024타경125619
2024타경125619
2024타경125619
2024타경125619
2024타경125619
2024타경125619
2024타경125619
2024타경125619
감정가
4억3900만원
3569만1057원/평
낙찰가 16%
3억6990만원
배당종결 2025년 10월 14일
유찰 2회
유찰 2회
경매구분 임의경매
용도 다세대
토지 24.16㎡(7.31평)
건물 40.66㎡(12.3평)
감정가 439,000,000원
최저가 280,960,000원
보증금 28,096,000원 (10%)
청구액 200,000,000원
개시결정 2024년 12월 19일
감정일 2024년 12월 31일
배당종기 2025년 03월 04일
매각일 2025년 10월 14일
배당종결 2025년 10월 14일

당사자 내역

채무자겸소유자 윤OO
채권자 박OO
근저당권자 현OOOOOOOOOOOO
근저당권자 이OO
근저당권자 김OO
교부권자 서OOOOOOOO
기타 채OOOOOOOOOO

기일 내역

2025.11.28(15:00)
납부
2025.10.21(14:00)
최고가매각허가결정
2025.10.14(10:00)
3억6990만원 매각
2억8096만원 최저가
2025.09.02(10:00)
3억5120만원 유찰
2025.07.29(10:00)
4억3900만원 유찰

매각공고

점유 조사(현황 조사서)

[목록1]1) 이건 부동산의 전입세대열람 내역에 이건 채무자겸소유자세대만 등재되어 있으며,
2) 이건 부동산을 방문하였으나 점유자를 만나지 못해 연락처가 기재된 안내문을 부착해 두었으나 점유자 등으로부터 아무 연락이 없어 일응 채무자 점유로 보고함.

매각결과+

매각일자 / 결과 응찰자수 최고가 금액/응찰자명 차순위 금액

가장 빠른 경매 정보 플랫폼 경매마당
남들보다 먼저 정보를 선점하세요

간단한 로그인 후 바로 이용 가능합니다

bolt 대법원 보다 빠른 물건 정보
verified 가장 많은 경매 물건 제공
trending_up 월 5회 등기부 무료 열람

현황정보

매각목록

부동산 현황

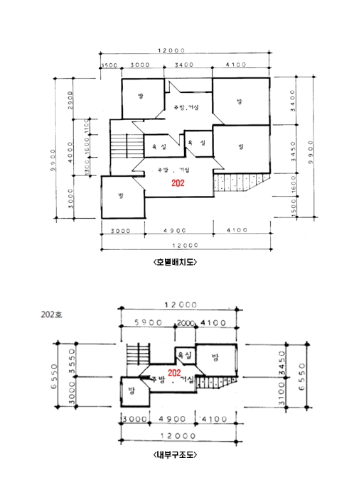
1) 위치 및 주위환경 본건은 서울특별시 동작구 사당동 소재 "경문고등학교" 남서측 인근에 위치하는 부동산으로서, 주위는 아파트단지, 다세대주택, 각종 근린생활시설 등이 소재하며, 제반 주위환경은 보통임. 2) 교통상황 본건까지 차량 진출입이 가능하며, 인근에 노선버스정류장이 소재하는 등 제반 교통상황은 보통임. 3) 건물의 구조 철근콘크리트구조 연와조 평스라브지붕 제4층 건물 내 제2층 제202호로서, (사용승인일 : 1993.9.14.) 외 벽 : 벽돌 붙임 마감 등, 창 호 : 샷시 창호 등임. 4) 이용상태 다세대주택으로 이용중임. 5) 설비내역 기본적인 위생 및 급배수설비 등 구비되어 있음. 6) 토지의 형상 및 이용상태 사다리형 평지로서, 다세대주택 부지임. 7) 인접 도로상태등 본건 북측으로 세로와 접함. 8) 토지이용계획 및 제한상태 도시지역, 제2종일반주거지역(7층이하), 가축사육제한구역<가축분뇨의 관리 및 이용에 관한 법률>, 교육환경보호구역(학교환경위생정화구역에 대한 최종확인은 관할교육청에 반드시 확인이 필요한 사항임)<교육환경 보호에 관한 법률>, 대공방어협조구역(위탁고도:77-257m)<군사기지 및 군사시설 보호법>, 과밀억제권역<수도권정비계획법>임. 9) 공부와의 차이 - 10) 기타참고사항(임대관례 및 기타) -

주변 입주 예정

거리 단지명 공급년월 세대 수
※ 해당 자료는 한국부동산원 청약홈 자료에 근거하며, 인근 5km 이내의 물건을 기준으로 산정되었습니다.

등기

등기부현황

채권합계 130,920,000원(2건)
등기일자 권리종류 권리자/채권액 권리
1996-11-13
소유자 윤OOOOOOOO OO
단독소유 -
2015-09-03
(을6)
근저당권설정 현OOOOOOOOOOO OO
말소기준 등기 104,400,000원
2023-07-13
(을6-1)
근저당권변경 OO
- 92,300,000원
2023-08-30
(을6-2)
근저당권변경 OO
- 55,920,000원
2023-11-29
(을16)
근저당권설정 박OO OO
- 200,000,000원
2023-11-29
(을16)
근저당권설정 이OO OO
- 75,000,000원
2023-11-29
(을16)
근저당권설정 김OO OO
- 75,000,000원
2024-12-19
(갑16)
임의경매개시결정
(2024타경125619)
박OO OO
경매기입 등기 200,000,000원
더보기
※ 신규 발급등기의 분석자료 반영에는 최대 1일까지 소요될수 있습니다.(등기분석,임차인분석,분석노트 등)

임차인

매각물건 명세서

구분 법원 사건번호 작성일자 매각명세서
1 서울중앙지법 2024타경125619[1] 2025. 9. 29.
2 서울중앙지법 2024타경125619[1] 2025. 8. 18.
3 서울중앙지법 2024타경125619[1] 2025. 7. 14.
구분 법원/
사건번호
작성일자 매각명세서
1 서울중앙지법
2024타경125619[1]
2025. 9. 29.
2 서울중앙지법
2024타경125619[1]
2025. 8. 18.
3 서울중앙지법
2024타경125619[1]
2025. 7. 14.

임차인현황

임차인 보증금/차임 전입/확정/배당 대항력
매각물건명세서상 임차인이 존재하지 않습니다.

현황 조사서

조사일시

2024년12월23일15시26분 / 2024년12월24일12시06분

부동산의 현황

-

점유 조사

[목록1]1) 이건 부동산의 전입세대열람 내역에 이건 채무자겸소유자세대만 등재되어 있으며,
2) 이건 부동산을 방문하였으나 점유자를 만나지 못해 연락처가 기재된 안내문을 부착해 두었으나 점유자 등으로부터 아무 연락이 없어 일응 채무자 점유로 보고함.

미납관리비 조사내역

확인일자 미납금액 관리소번호 메모

※ 해당 정보는 참고용으로 제공되며 입찰 전 반드시 관리사무소를 통해 직접 확인하시기 바랍니다.

시세분석

인근 낙찰사례

기타

전문가

관할법원 (입찰장소)

서울중앙지방법원 본원

경매1계 : 02-530-1114

서울 서초구 서초동 1701-1 주소복사

Q&A

Q. 대법원경매가 무엇인가요?누구나 입찰에 참여할 수 있나요?

경매채무자(빌린 자)가 채무를 갚지 않았을 때 채권자(빌려준 자)의 신청으로 대법원이 채무자의 재산을 대신 매각하는 과정을 말합니다.

법원은 감정인에게 자산을 평가하게 한 후, 최저가를 정하여 그 금액 이상으로 입찰한 입찰자 중 최고가 매수인을 결정합니다.

대법원의 주관하에 국민 모두가 참여할 수 있습니다.

Q. 경매 입찰은 어떻게 하나요?누구나 입찰에 참여할 수 있나요?

1. 입찰하시고자 하는 경매물건을 정하신 후, 입찰하시고자 하는 입찰가를 최저가 이상으로 정합니다.

2. 해당 물건의 매각기일에 직접 관할법원에 방문하셔서 법원내에 비치된 입찰서를 작성하신 후 입찰하시면 됩니다.

TIP! 법원에 가실 때에는 입찰보증금(최저가의 10~30%)과 신분증을 지참하여 방문하세요.

Q. 용어가 너무 어려워서 내용을 이해하기 어려워요누구나 입찰에 참여할 수 있나요?

매각기일
매각기일은 경매 법원이 부동산에 대하여 매각 입찰을 진행하는 날을 말합니다.

유찰
매각 기일에 매수하고자 하는 사람이 없어 매각되지 않아 무효가 되는 것을 유찰이라고 합니다.

최저 매각 가격
최초 경매를 진행할때 감정인이 평가한 가격을 기준으로 책정한 금액이며 입찰자는 최저 매각 가격과 동일하거나 이상의 금액으로 입찰해야 합니다. 매각 기일에 있어 입찰자가 없어 유찰되면 통상 20~30% 저감된 금액이 다음 최저 매각 가격이 됩니다.

매수 보증금
경매 물건을 매수하고자 하는사람은 최저 매각 가격의 10분의 1(다르게 정해질 수 있음)에 해당하는 보증금액을 입찰표와 함께 집행관에게 제출하는 방법으로 제공합니다. 매각 절차가 종결된 후 집행관은 최고가 매수신고인이나 차순위매수신고인 이외의 매수신청인에게는 즉시 매수 보증금을 반환해 줍니다.

더 많은 내용을 알고 싶다면 경매마당 학습하기 코너에 준비된 용어설명을 이용해보세요.

경매정보는 법원자료와 일치하도록 하였으나 권리사항변동, 입력착오 등의 원인으로 사실과 다를 수 있습니다. 이용약관에 의거 면책조건으로 제공됨을 알리며, 경매입찰시 반드시 관련 공부를 재확인하시기 바랍니다.

PC버전으로 보기