알림

알림 내역

알림 신청내역/취소

로고 서울남부지방법원 본원 [경매11계] 2021타경5550
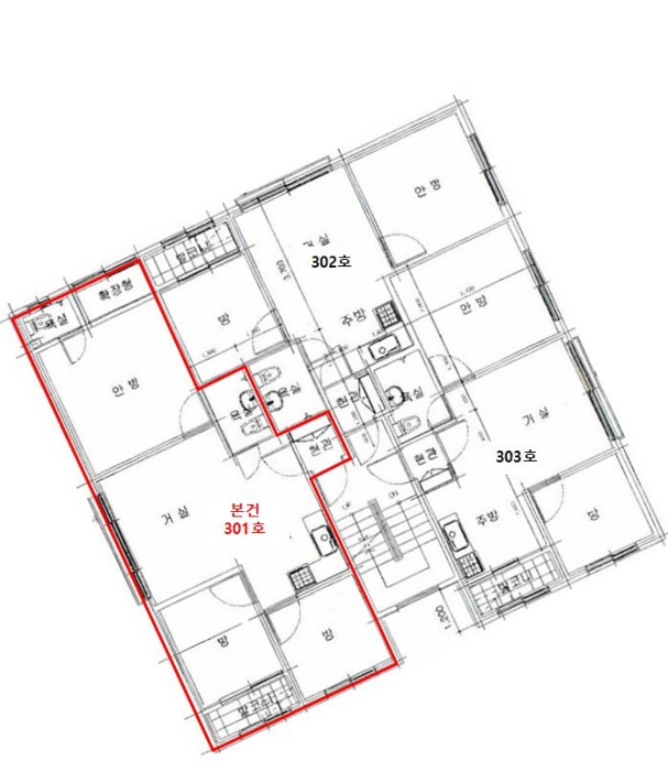
서울특별시 강서구 까치산로12길 38-6, 제3층 제301호 (화곡동, 계명위너스)

서울 강서구 화곡동 46-170

주소복사
경매구분 임의경매
용도 다세대
토지 30.1㎡(9.1평)
건물 54.5㎡(16.5평)
감정가 229,000,000원
최저가 183,200,000원
보증금 18,320,000원 (10%)
청구액 163,216,438원
접수일 2021년 09월 17일
개시결정 2021년 09월 30일
감정일 2021년 10월 18일
매각일 2022년 08월 10일
2021타경5550
2021타경5550
2021타경5550
2021타경5550
2021타경5550
2021타경5550
2021타경5550
2021타경5550
2021타경5550
2021타경5550
2021타경5550
2021타경5550
2021타경5550
2021타경5550
감정가
2억2900만원
최저가 20%
1억8320만원
기각 2022년 08월 10일
유찰 1회선순위임차인
유찰 1회선순위임차인
경매구분 임의경매
용도 다세대
토지 30.1㎡(9.1평)
건물 54.5㎡(16.5평)
감정가 229,000,000원
최저가 183,200,000원
보증금 18,320,000원 (10%)
청구액 163,216,438원
접수일 2021년 09월 17일
개시결정 2021년 09월 30일
감정일 2021년 10월 18일
매각일 2022년 08월 10일
기각 2022년 08월 10일

당사자 내역

채무자겸소유자 박OO
채권자 안OO
임차인 황OO
근저당권자 안OO
가압류권자 근OOOOO
배당요구권자 근OOOOO
배당요구권자 양OO
임차인 주OOOOOOO
교부권자 국OOOOOOOOOOOO
교부권자 서OOOOOOOO
교부권자 서OOOOOOOO

기일 내역

기각
2022.08.10
기일변경
2022.06.22
2억2900만원 유찰

기일 변경(2022년08월09일)

변경 후 추후지정

임차인(매각 명세서)

<비고>
주택도시보증공사:임차인 황선민의 임대차보증금반환채권 전부 승계인임.

점유 조사(현황 조사서)

[목록1]3차 현지 방문 이후 2021.10.8.11:58경 임차인 황선민과 전화문답시 부동산임의경매 개시결정된 취지를 알리고 경매현황조사 안내문을 수령하였음을 확인함

매각결과+

매각일자 / 결과 응찰자수 최고가 금액/응찰자명 차순위 금액
부동산
등기
임차인
그 외

부동산

매각목록

※ 건축물 도면은 ‘건축물 대장의 기재 및 관리에 관한 규칙’ 에 따라 현재 경매가 진행중인 물건에만 제공됩니다.
※ 지분물건의 경우 면적은 지분에 해당하는 면적이 아닌 전체 면적으로 표기됩니다

감정평가

감정평가서 요약

1.구분건물감정평가요항표 1) 위치 및 주위환경 본건은 서울특별시 강서구 화곡동 소재 "서울화곡초등학교" 동측 인근에 위치하며, 주변은 다세대주택, 근린생활시설 등이 혼재된 지역임. 2) 교통상황 본건까지 차량접근이 가능하며, 인근에 버스정류장 및 지하철5호선 "화곡역"이 소재하는 등 제반 교통상황은 양호한 편임. 3) 건물의 구조 본건은 철근콘크리트구조 (철근)콘크리트지붕 지상5층건 내 제3층 제301호로서, 외 벽 : 돌붙임, 벽돌치장쌓기 등내 벽 : 벽지도배, 타일붙임 등창 호 : 새시조 등임. 4) 이용상태 본건은 다세대주택으로 이용중임. (후첨 내부구조도 참고) 5) 설비내역 위생 및 급배수설비, 난방설비 등 되어있음. 6) 토지의 형상 및 이용상태 본건은 자체 등고평탄하게 조성된 정방형의 토지로서, 다세대 건부지로 이용중임. 7) 인접 도로상태등 본건은 남측으로 노폭 약 5m 도로와 접하고 있음. 8) 토지이용계획 및 제한상태 도시지역, 제2종일반주거지역(7층이하), 중요시설물보호지구(공항) 가축사육제한구역(지역경제과 확인 요망)<가축분뇨의 관리 및 이용에 관한 법률>, 수평표면구역(수평표면)<공항시설법>, 상대보호구역(2015-03-24)<교육환경 보호에 관한 법률>, 대공방어협조구역(위탁고도:77-257m)<군사기지 및 군사시설 보호법>, 과밀억제권역<수도권정비계획법>임. 9) 공부와의 차이 - 10) 기타참고사항(임대관례 및 기타) 자세한 임대사항은 미상임.

주변 입주 예정

거리 단지명 공급년월 세대 수
※ 해당 자료는 한국부동산원 청약홈 자료에 근거하며, 인근 5km 이내의 물건을 기준으로 산정되었습니다.

등기

등기부현황

채권합계 253,260,000원(3건)
등기일자 권리종류 권리자/채권액 권리
2021-01-13
소유자 박영철 (소유자)
단독소유 -
2021-01-19
(을7)
근저당권설정 주식회사베르컴퍼니 소멸
말소기준 등기 250,000,000원
2021-02-05
(을7-1)
근저당권이전 안경희 소멸
- -
2021-05-17
(갑7)
가압류 근로복지공단 소멸
- 2,080,000원
2021-09-30
(갑10)
임의경매개시결정
(2021타경5550)
안경희 소멸
경매기입 등기 163,216,438원
2021-10-14
(갑11)
압류 국민건강보험공단 소멸
- -
2021-11-15
(갑12)
가압류 동양자산관리대부주식회사 소멸
- 1,185,863원
더보기 더보기
※ 신규 발급등기의 분석자료 반영에는 최대 1일까지 소요될수 있습니다.(등기분석,임차인분석,분석노트 등)

임차인

매각물건 명세서

구분 법원 사건번호 작성일자 매각명세서
1 서울남부지법 2021타경5550[1] 2022.05.19
구분 법원/
사건번호
작성일자 매각명세서
1 서울남부지법
2021타경5550[1]
2022.05.19

임차인(매각 명세서)

<비고>
주택도시보증공사:임차인 황선민의 임대차보증금반환채권 전부 승계인임.

임차인현황

임차인 보증금/차임 전입/확정/배당 대항력
주택도 시보증 공사
(주거임차인)
점유부분:
301호
보증:
220,000,000
차임:
-
전입: 2020-12-28
확정: 2020-12-16
배당: 2021-12-21
-
황선민
(주거임차인)
점유부분:
301호
보증:
220,000,000
차임:
0
전입: 2020-12-28
확정: 2020-12-16
배당: 2021-11-17
-

현황 조사서

조사일시

2021년10월06일14시20분 / 2021년10월07일11시30분 / 2021년10월08일10시42분

부동산의 현황

-

점유 조사

[목록1]3차 현지 방문 이후 2021.10.8.11:58경 임차인 황선민과 전화문답시 부동산임의경매 개시결정된 취지를 알리고 경매현황조사 안내문을 수령하였음을 확인함

1
소재지 서울특별시강서구까치산로12길38-6,제3층제301호(화곡동,계명위너스)
점유인 황선민(임차인)
점유부분 301호(주거)
점유기간 미상
보증금/차임 2억2,000만원/미상
전입/확정일자 2020.12.28.(전입세대열람내역)/2020.12.28.(황선민 진술)

미납관리비 조사내역

확인일자 미납금액 관리소번호 메모

※ 해당 정보는 참고용으로 제공되며 입찰 전 반드시 관리사무소를 통해 직접 확인하시기 바랍니다.

시세

전문가

그외

관할법원 관할법원 (입찰장소)

서울남부지방법원 본원

경매11계 : 02-2192-1114

서울 양천구 신정동 313-1 주소복사

Q&A Q&A

Q. 대법원경매가 무엇인가요?누구나 입찰에 참여할 수 있나요?

경매채무자(빌린 자)가 채무를 갚지 않았을 때 채권자(빌려준 자)의 신청으로 대법원이 채무자의 재산을 대신 매각하는 과정을 말합니다.

법원은 감정인에게 자산을 평가하게 한 후, 최저가를 정하여 그 금액 이상으로 입찰한 입찰자 중 최고가 매수인을 결정합니다.

대법원의 주관하에 국민 모두가 참여할 수 있습니다.

Q. 경매 입찰은 어떻게 하나요?누구나 입찰에 참여할 수 있나요?

1. 입찰하시고자 하는 경매물건을 정하신 후, 입찰하시고자 하는 입찰가를 최저가 이상으로 정합니다.

2. 해당 물건의 매각기일에 직접 관할법원에 방문하셔서 법원내에 비치된 입찰서를 작성하신 후 입찰하시면 됩니다.

TIP! 법원에 가실 때에는 입찰보증금(최저가의 10~30%)과 신분증을 지참하여 방문하세요.

Q. 용어가 너무 어려워서 내용을 이해하기 어려워요누구나 입찰에 참여할 수 있나요?

매각기일
매각기일은 경매 법원이 부동산에 대하여 매각 입찰을 진행하는 날을 말합니다.

유찰
매각 기일에 매수하고자 하는 사람이 없어 매각되지 않아 무효가 되는 것을 유찰이라고 합니다.

최저 매각 가격
최초 경매를 진행할때 감정인이 평가한 가격을 기준으로 책정한 금액이며 입찰자는 최저 매각 가격과 동일하거나 이상의 금액으로 입찰해야 합니다. 매각 기일에 있어 입찰자가 없어 유찰되면 통상 20~30% 저감된 금액이 다음 최저 매각 가격이 됩니다.

매수 보증금
경매 물건을 매수하고자 하는사람은 최저 매각 가격의 10분의 1(다르게 정해질 수 있음)에 해당하는 보증금액을 입찰표와 함께 집행관에게 제출하는 방법으로 제공합니다. 매각 절차가 종결된 후 집행관은 최고가 매수신고인이나 차순위매수신고인 이외의 매수신청인에게는 즉시 매수 보증금을 반환해 줍니다.

더 많은 내용을 알고 싶다면 경매마당 학습하기 코너에 준비된 용어설명을 이용해보세요.

경매정보는 법원자료와 일치하도록 하였으나 권리사항변동, 입력착오 등의 원인으로 사실과 다를 수 있습니다. 이용약관에 의거 면책조건으로 제공됨을 알리며, 경매입찰시 반드시 관련 공부를 재확인하시기 바랍니다.

PC버전으로 보기