알림

알림 내역

알림 신청내역/취소

대법원
물건내역
사건내역
기일내역
송달내역
현황조사
지도
사진보기
문서
매각기일공고문
매각물건명세서
감정평가서 M
등기부등본
전입세대열람원 M
건축물대장 M
분석
예상배당표 M
수익률분석 M
입찰가분석 M
조회수분석 M
인근지역통계 M
사이트
대법원
국토부 실거래가
토지이음
아실
네이버 단지정보
네이버 매물정보
호갱노노
부동산플래닛
로고 서울남부지방법원 본원 [경매2계] 2023타경105737
서울특별시 금천구 시흥대로150길 11-9, 제2층 제201호 (독산동, 엠에스 빌)

서울 금천구 독산동 967-5

주소복사
경매구분 강제경매
용도 다세대
토지 17.55㎡(5.31평)
건물 31.26㎡(9.46평)
감정가 223,000,000원
최저가 9,807,000원
보증금 980,700원 (10%)
청구액 210,000,000원
개시결정 2023년 04월 03일
감정일 2023년 04월 18일
배당종기 2023년 07월 05일
매각일 2026년 01월 13일
2023타경105737
2023타경105737
2023타경105737
2023타경105737
2023타경105737
2023타경105737
2023타경105737
2023타경105737
2023타경105737
2023타경105737
2023타경105737
2023타경105737
감정가
2억2300만원
2357만2939원/평
낙찰가 95%
1010만원
매각 2026년 01월 13일
유찰 14회선순위임차인임차권등기선순위전세권
유찰 14회선순위임차인임차권등기선순위전세권
경매구분 강제경매
용도 다세대
토지 17.55㎡(5.31평)
건물 31.26㎡(9.46평)
감정가 223,000,000원
최저가 9,807,000원
보증금 980,700원 (10%)
청구액 210,000,000원
개시결정 2023년 04월 03일
감정일 2023년 04월 18일
배당종기 2023년 07월 05일
매각일 2026년 01월 13일
매각 2026년 01월 13일

당사자 내역

채무자겸소유자 박OOOOOOOOOOOOO
채권자 송OO
임차인 송OO
전세권자 송OO
교부권자 서OOOOOOOO
교부권자 서OOOOOOOO
임차권자 송OO
배당요구권자 주OOOOOOOOOOOOOOOO
가압류권자 주OOOOOOO
교부권자 국OOOOOOOOOOOO
교부권자 서OOOOOOOOO
교부권자 서OOOOOOOO

기일 내역

2026.02.27(16:00)
대금지급기한
2026.01.20(14:00)
최고가매각허가결정
2026.01.13(10:00)
1010만원 매각
980만7000원 최저가
2025.11.18(10:00)
1225만9000원 유찰
2025.10.15(10:00)
1532만4000원 유찰
2025.08.13(10:00)
1915만5000원 유찰
2025.07.09(10:00)
2394만4000원 유찰
2025.05.28(10:00)
2993만원 유찰
2025.04.15(10:00)
3741만3000원 유찰
2025.03.04(10:00)
4676만6000원 유찰
2025.01.21(10:00)
5845만8000원 유찰
2024.11.28(10:00)
7307만3000원 유찰
2024.10.24(10:00)
9134만1000원 유찰
2024.09.05(10:00)
1억1417만6000원 유찰
2024.08.01(10:00)
1억4272만원 유찰
2024.06.27(10:00)
1억7840만원 유찰
2024.05.23(10:00)
2억2300만원 유찰

매각공고

물건 비고(공고문)

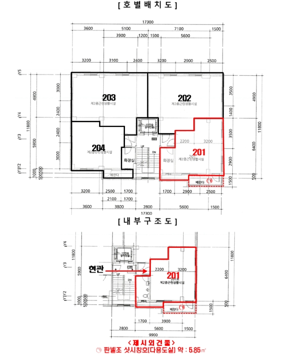
-제시외 건물 포함.

임차인(매각 명세서)

송창훈:경매신청채권자이며 전세권자로서 전세권설정등기일자는 2019.1.29.임

인수되는 권리/가처분(매각 명세서)

매수인에게 대항할 수 있는 임차인이 있음(임대차보증금 210,000,000원, 전입일자 2019.01.29., 확정일자 2019.01.17.)배당에서 보증금이 전액 변제되지 아니하면 매수인이 인수함.

물건 비고(매각 명세서)

-제시외 건물 포함.-공부상 '사무실'이나 현황 주택 용도임을 점유자로부터 확인

현황 조사(현황 조사서)

임차인의 배우자 이성혜의 진술에 의하여 조사함

점유 조사(현황 조사서)

[목록1]현장에 임하여 임차인의 배우자 이성혜를 만나 안내문을 교부하고 점유관계를 확인한바, 임차인의 가족이 점유·사용하고 있다고 함. 덧붙인 주민등록표 등본상 소유자 아닌 세대주 송창훈 세대가 등재되어 있음. 덧붙인 상가건물임대차 현황서에는 등재자가 없음.

매각결과+

매각일자 / 결과 응찰자수 최고가 금액/응찰자명 차순위 금액

가장 빠른 경매 정보 플랫폼 경매마당
남들보다 먼저 정보를 선점하세요

간단한 로그인 후 바로 이용 가능합니다

bolt 대법원 보다 빠른 물건 정보
verified 가장 많은 경매 물건 제공
trending_up 월 5회 등기부 무료 열람

현황정보

매각목록

부동산 현황

1) 위치 및 주위환경 본건은 서울특별시 금천구 독산동 소재 "서울문성초등학교" 북측 인근에 위치하며, 주위는 아파트, 다세대주택 및 근린생활시설 등이 혼재하는 지역으로 제반 주위환경은 보통임. 2) 교통상황 본건까지 차량의 진출입이 가능하고, 인근에 노선버스정류장이 소재하는 등 제반 교통상황은 보통임. 3) 건물의 구조 철근콘크리트구조 (철근)콘크리트지붕 7층 건 내 제2층 제201호로서, (사용승인일 : 2018.08.20) 외벽 : 석재붙임 마감 등, 창호 : 샷시 창호 등임. 4) 이용상태 공부상 "사무실"이나, 현황 "다세대주택(방2, 화장실1 등)"으로 이용중인 것을 점유자로부터 확인함. 5) 설비내역 도시가스에 의한 난방설비, 위생 및 급배수설비, 화재설비, 승강기설비 등이 구비되어 있음. 6) 토지의 형상 및 이용상태 인접토지 대비 등고평탄한 2필 일단의 사다리형 토지로서 다세대주택 및 제1종근린생활시설 건부지로 이용중임. 7) 인접 도로상태등 본건 동측으로 노폭 약 8미터 내외의 포장도로와 접함. 8) 토지이용계획 및 제한상태 967-5, 967-6 공히 도시지역, 제3종일반주거지역 가축사육제한구역<가축분뇨의 관리 및 이용에 관한 법률>, 가로구역별 최고높이 제한지역(서울특별시고시 제2020-174호(2020.5.1.))<건축법>, 장애물제한표면구역(진입표면구역)<공항시설법>, 교육환경보호구역(남부교육청에 반드시 확인 요망)<교육환경 보호에 관한 법률>, 대공방어협조구역(위탁고도:해발194m(지반+건축+옥탑 등),육군수도방위사령부(02-524-3313)관할)<군사기지 및 군사시설 보호법>, 과밀억제권역<수도권정비계획법> 중점경관관리구역(2016-11-24)(주요산 주변)임. 9) 공부와의 차이 공부상 용도는 제1종근린생활시설(사무소)이나, 현황 주택 용도임을 점유자로부터 확인함. 10) 기타참고사항(임대관례 및 기타) -본건의 베란다 부분에 제시외건물 ㄱ)판넬조 샷시창호(다용도실)약 5.85㎡가 소재하고 있는 것으로 추정되나, 규모 및 거래관행 등을 종합적으로 고려하여 본 평가에서는 포함하여 감정평가하였으니 경매 진행시 참조바람. -임대관계 미상임.

주변 입주 예정

거리 단지명 공급년월 세대 수
※ 해당 자료는 한국부동산원 청약홈 자료에 근거하며, 인근 5km 이내의 물건을 기준으로 산정되었습니다.

등기

등기부현황

채권합계 3,256,000,000원(2건)
등기일자 권리종류 권리자/채권액 권리
2019-01-29
(을2)
전세권설정 송OO OO
- 210,000,000원
2019-02-26
소유자 박OOOOOOOO OO
단독소유 -
2020-11-03
(갑3)
가압류 주OOOOOOO OO
말소기준 등기 3,046,000,000원
2021-05-10
(을4)
임차권설정 송OO OO
- 210,000,000원
2023-04-03
(갑4)
강제경매개시결정
(2023타경105737)
송OO OO
경매기입 등기 210,000,000원
더보기
※ 신규 발급등기의 분석자료 반영에는 최대 1일까지 소요될수 있습니다.(등기분석,임차인분석,분석노트 등)

임차인

매각물건 명세서

구분 법원 사건번호 작성일자 매각명세서
1 서울남부지법 2023타경105737[1] 2025. 9. 4.
2 서울남부지법 2023타경105737[1] 2025. 3. 14.
3 서울남부지법 2023타경105737[1] 2024.09.06
구분 법원/
사건번호
작성일자 매각명세서
1 서울남부지법
2023타경105737[1]
2025. 9. 4.
2 서울남부지법
2023타경105737[1]
2025. 3. 14.
3 서울남부지법
2023타경105737[1]
2024.09.06

임차인(매각 명세서)

송창훈:경매신청채권자이며 전세권자로서 전세권설정등기일자는 2019.1.29.임

인수되는 권리/가처분(매각 명세서)

매수인에게 대항할 수 있는 임차인이 있음(임대차보증금 210,000,000원, 전입일자 2019.01.29., 확정일자 2019.01.17.)배당에서 보증금이 전액 변제되지 아니하면 매수인이 인수함.

물건 비고(매각 명세서)

-제시외 건물 포함.-공부상 '사무실'이나 현황 주택 용도임을 점유자로부터 확인

임차인현황

임차인 보증금/차임 전입/확정/배당 대항력
송창훈
(주거 임차권자)
점유부분:
201호
보증:
210,000,000
차임:
없음
전입: 2019-01-29
확정: 2019-01-17
배당: 2023.3.29.
멤버십

현황 조사서

조사일시

2023년04월12일12시30분

부동산의 현황

임차인의 배우자 이성혜의 진술에 의하여 조사함

점유 조사

[목록1]현장에 임하여 임차인의 배우자 이성혜를 만나 안내문을 교부하고 점유관계를 확인한바, 임차인의 가족이 점유·사용하고 있다고 함. 덧붙인 주민등록표 등본상 소유자 아닌 세대주 송창훈 세대가 등재되어 있음. 덧붙인 상가건물임대차 현황서에는 등재자가 없음.

1
소재지 서울특별시 금천구 시흥대로150길 11-9, 제2층 제201호 (독산동, 엠에스 빌)
점유인 송창훈(임차인)
점유부분 201호 전부(주거)
점유기간 2019년 1월 29일부터
보증금/차임 210,000,000/없음
전입/확정일자 2019년 1월 29일/2019년 1월 17일

미납관리비 조사내역

확인일자 미납금액 관리소번호 메모

※ 해당 정보는 참고용으로 제공되며 입찰 전 반드시 관리사무소를 통해 직접 확인하시기 바랍니다.

시세분석

인근 낙찰사례

기타

전문가

관할법원 (입찰장소)

서울남부지방법원 본원

경매2계 : 02-2192-1114

서울 양천구 신정동 313-1 주소복사

Q&A

Q. 대법원경매가 무엇인가요?누구나 입찰에 참여할 수 있나요?

경매채무자(빌린 자)가 채무를 갚지 않았을 때 채권자(빌려준 자)의 신청으로 대법원이 채무자의 재산을 대신 매각하는 과정을 말합니다.

법원은 감정인에게 자산을 평가하게 한 후, 최저가를 정하여 그 금액 이상으로 입찰한 입찰자 중 최고가 매수인을 결정합니다.

대법원의 주관하에 국민 모두가 참여할 수 있습니다.

Q. 경매 입찰은 어떻게 하나요?누구나 입찰에 참여할 수 있나요?

1. 입찰하시고자 하는 경매물건을 정하신 후, 입찰하시고자 하는 입찰가를 최저가 이상으로 정합니다.

2. 해당 물건의 매각기일에 직접 관할법원에 방문하셔서 법원내에 비치된 입찰서를 작성하신 후 입찰하시면 됩니다.

TIP! 법원에 가실 때에는 입찰보증금(최저가의 10~30%)과 신분증을 지참하여 방문하세요.

Q. 용어가 너무 어려워서 내용을 이해하기 어려워요누구나 입찰에 참여할 수 있나요?

매각기일
매각기일은 경매 법원이 부동산에 대하여 매각 입찰을 진행하는 날을 말합니다.

유찰
매각 기일에 매수하고자 하는 사람이 없어 매각되지 않아 무효가 되는 것을 유찰이라고 합니다.

최저 매각 가격
최초 경매를 진행할때 감정인이 평가한 가격을 기준으로 책정한 금액이며 입찰자는 최저 매각 가격과 동일하거나 이상의 금액으로 입찰해야 합니다. 매각 기일에 있어 입찰자가 없어 유찰되면 통상 20~30% 저감된 금액이 다음 최저 매각 가격이 됩니다.

매수 보증금
경매 물건을 매수하고자 하는사람은 최저 매각 가격의 10분의 1(다르게 정해질 수 있음)에 해당하는 보증금액을 입찰표와 함께 집행관에게 제출하는 방법으로 제공합니다. 매각 절차가 종결된 후 집행관은 최고가 매수신고인이나 차순위매수신고인 이외의 매수신청인에게는 즉시 매수 보증금을 반환해 줍니다.

더 많은 내용을 알고 싶다면 경매마당 학습하기 코너에 준비된 용어설명을 이용해보세요.

경매정보는 법원자료와 일치하도록 하였으나 권리사항변동, 입력착오 등의 원인으로 사실과 다를 수 있습니다. 이용약관에 의거 면책조건으로 제공됨을 알리며, 경매입찰시 반드시 관련 공부를 재확인하시기 바랍니다.

PC버전으로 보기