알림

알림 내역

알림 신청내역/취소

로고 서울남부지방법원 본원 [경매8계] 2024타경106843
서울특별시 강서구 초록마을로22길 57, 제2층 제201호

서울 강서구 화곡동 56-152

주소복사
경매구분 강제경매
용도 다세대
토지 37㎡(11.2평)
건물 59.2㎡(17.9평)
감정가 246,000,000원
최저가 125,952,000원
보증금 12,600,000원 (10%)
청구액 266,398,277원
접수일 2024년 02월 26일
개시결정 2024년 03월 06일
감정일 2024년 03월 12일
매각일 2025년 03월 18일
2024타경106843
2024타경106843
2024타경106843
2024타경106843
2024타경106843
2024타경106843
2024타경106843
2024타경106843
2024타경106843
2024타경106843
2024타경106843
감정가
2억4600만원
낙찰가 35%
1억5900만원
배당종결 2025년 03월 18일
유찰 3회선순위임차인임차권등기특별매각조건대항력포기
유찰 3회선순위임차인임차권등기특별매각조건대항력포기
경매구분 강제경매
용도 다세대
토지 37㎡(11.2평)
건물 59.2㎡(17.9평)
감정가 246,000,000원
최저가 125,952,000원
보증금 12,600,000원 (10%)
청구액 266,398,277원
접수일 2024년 02월 26일
개시결정 2024년 03월 06일
감정일 2024년 03월 12일
매각일 2025년 03월 18일
배당종결 2025년 03월 18일

당사자 내역

채무자겸소유자 황OO
채권자 주OOOOOOO
임차인 주OOOOOOO
교부권자 국OOOOOOOOOOOO
배당요구권자 주OOOOOOO
주택임차권자 박OO
배당요구권자 주OOOOOOOOOOOO
교부권자 서OOOOOOOO

기일 내역

2025.05.01(16:00)
매각
2025.03.25(14:00)
최고가매각허가결정
2025.03.18(10:00)
1억5900만원 매각
1억2595만2000원 최저가
2025.01.17(10:00)
1억5744만원 유찰
2024.12.17(10:00)
1억9680만원 유찰
2024.11.12(10:00)
2억4600만원 유찰

물건 비고(공고문)

임차인 및 임차권승계인 주택도시보증공사의 매수인에 대한 대항력 포기조건 매각

임차인(매각 명세서)

<비고>
주택도시보증공사:신청채권자임, 임차인 박소진의 임대차보증금반환채권을 양수함

물건 비고(매각 명세서)

특별매각조건 : 채권자는 매수인에 대해 배당받지 못하는 잔액에 대한 임대차보증금 반환청구권을 포기하고, 임차권등기를 말
소하는 것을 조건으로 매각

현황 조사(현황 조사서)

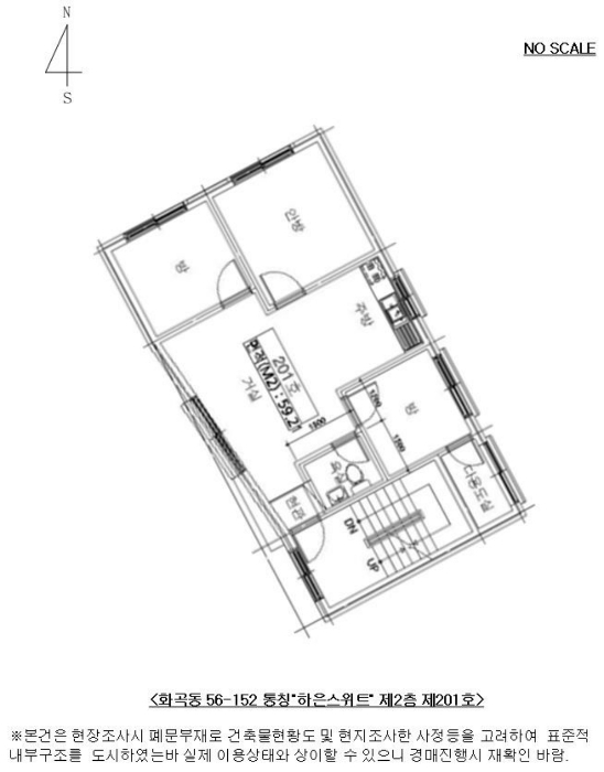
이 사건 건물 외벽에 `하은스위트`로 표기되어 있음.

점유 조사(현황 조사서)

[목록1]이 사건 부동산 현지방문조사 당시 폐문부재로 아무도 만나지 못하여 점유관계 미상임. 별도의 확인이 필요함. 안내문을 출입문에 끼워놓았음. 덧붙인 전입세대확인서 및 주민등록표등본 에는 채무자 겸 소유자 황선호 세대가 등재 되어 있음.

매각결과+

매각일자 / 결과 응찰자수 최고가 금액/응찰자명 차순위 금액
부동산
등기
임차인
그 외

부동산

매각목록

※ 건축물 도면은 ‘건축물 대장의 기재 및 관리에 관한 규칙’ 에 따라 현재 경매가 진행중인 물건에만 제공됩니다.
※ 지분물건의 경우 면적은 지분에 해당하는 면적이 아닌 전체 면적으로 표기됩니다

감정평가

감정평가서 요약

1) 위치 및 주위환경 본건은 서울특별시 강서구 화곡동 소재"서울화일초등학교"남동측 인근에 위치하며, 주위는 다세대주택, 근린생활시설, 공원, 학교 등이 소재하는 지역으로서, 주거용으로의 제반 주위 환경은 보통시 됨. 2) 교통상황 본건 건물까지 차량의 진·출입이 가능하며, 인근에 버스정류장, 근거리에 지하철역(화곡역-지하철5호선)등이 소재하여 제반 대중교통 상황은 보통임. 3) 건물의 구조 철근콘크리트구조 평스라브지붕 지상 5층 건물 내 제2층 제201호로서, (사용승인일: 2008.11.05.) 외벽 : 사이딩 등 마감 창호 : 샤시 창호 등 마감 임. 4) 이용상태 기준시점 다세대주택으로 이용 중임. 5) 설비내역 기본적인 위생 및 급배수설비, 난방설비, 도시가스설비 등을 갖추고 있음. 6) 토지의 형상 및 이용상태 본건 토지는 인접토지 대비 등고평탄한 사다리형 토지로서, 공동주택 및 제1종근린생활시설의 건부지로 이용 중 임. 7) 인접 도로상태등 본건 토지 북서측 및 남서측으로 노폭 약 4M 내외 포장도로에 각각 접함. 8) 토지이용계획 및 제한상태 도시지역, 제2종일반주거지역(7층이하), 중요시설물보호지구(공항), 가축사육제한구역(지역경제과 확인 요망)<가축분뇨의 관리 및 이용에 관한 법률>, 수평표면구역(수평표면)<공항시설법>, 상대보호구역(2015-03-24)(강서교육지원청에 반드시 확인 요망)<교육환경 보호에 관한 법률>, 대공방어협조구역(위탁고도:77-257m)<군사기지 및 군사시설 보호법>, 과밀억제권역<수도권정비계획법> 임. 9) 공부와의 차이 - 10) 기타참고사항(임대관례 및 기타) -

주변 입주 예정

거리 단지명 공급년월 세대 수
※ 해당 자료는 한국부동산원 청약홈 자료에 근거하며, 인근 5km 이내의 물건을 기준으로 산정되었습니다.

등기

등기부현황

채권합계 255,000,000원(1건)
등기일자 권리종류 권리자/채권액 권리
2022-12-14
소유자 황선호 (소유자)
단독소유 -
2023-06-05
(을10)
임차권설정 박소진 인수
- 255,000,000원
2024-03-07
(갑22)
강제경매개시결정
(2024타경106843)
주택도시보증공사 소멸
말소기준
경매기입 등기
266,398,277원
※ 신규 발급등기의 분석자료 반영에는 최대 1일까지 소요될수 있습니다.(등기분석,임차인분석,분석노트 등)

임차인

매각물건 명세서

구분 법원 사건번호 작성일자 매각명세서
1 서울남부지법 2024타경106843[1] 2024.10.22
2 서울남부지법 2024타경106843[1] 2024.10.22
구분 법원/
사건번호
작성일자 매각명세서
1 서울남부지법
2024타경106843[1]
2024.10.22
2 서울남부지법
2024타경106843[1]
2024.10.22

임차인(매각 명세서)

<비고>
주택도시보증공사:신청채권자임, 임차인 박소진의 임대차보증금반환채권을 양수함

물건 비고(매각 명세서)

특별매각조건 : 채권자는 매수인에 대해 배당받지 못하는 잔액에 대한 임대차보증금 반환청구권을 포기하고, 임차권등기를 말
소하는 것을 조건으로 매각

임차인현황

임차인 보증금/차임 전입/확정/배당 대항력
주택도시보증공사[박소진]
(주거임차인)
점유부분:
전부
보증:
255,000,000
차임:
-
전입: 2020-04-29
확정: 2020-03-20
배당: 2024-06-07
있음
(인수유의)

현황 조사서

조사일시

2024년03월15일10시20분

부동산의 현황

이 사건 건물 외벽에 `하은스위트`로 표기되어 있음.

점유 조사

[목록1]이 사건 부동산 현지방문조사 당시 폐문부재로 아무도 만나지 못하여 점유관계 미상임. 별도의 확인이 필요함. 안내문을 출입문에 끼워놓았음. 덧붙인 전입세대확인서 및 주민등록표등본 에는 채무자 겸 소유자 황선호 세대가 등재 되어 있음.

미납관리비 조사내역

확인일자 미납금액 관리소번호 메모

※ 해당 정보는 참고용으로 제공되며 입찰 전 반드시 관리사무소를 통해 직접 확인하시기 바랍니다.

시세

전문가

그외

관할법원 관할법원 (입찰장소)

서울남부지방법원 본원

경매8계 : 02-2192-1114

서울 양천구 신정동 313-1 주소복사

Q&A Q&A

Q. 대법원경매가 무엇인가요?누구나 입찰에 참여할 수 있나요?

경매채무자(빌린 자)가 채무를 갚지 않았을 때 채권자(빌려준 자)의 신청으로 대법원이 채무자의 재산을 대신 매각하는 과정을 말합니다.

법원은 감정인에게 자산을 평가하게 한 후, 최저가를 정하여 그 금액 이상으로 입찰한 입찰자 중 최고가 매수인을 결정합니다.

대법원의 주관하에 국민 모두가 참여할 수 있습니다.

Q. 경매 입찰은 어떻게 하나요?누구나 입찰에 참여할 수 있나요?

1. 입찰하시고자 하는 경매물건을 정하신 후, 입찰하시고자 하는 입찰가를 최저가 이상으로 정합니다.

2. 해당 물건의 매각기일에 직접 관할법원에 방문하셔서 법원내에 비치된 입찰서를 작성하신 후 입찰하시면 됩니다.

TIP! 법원에 가실 때에는 입찰보증금(최저가의 10~30%)과 신분증을 지참하여 방문하세요.

Q. 용어가 너무 어려워서 내용을 이해하기 어려워요누구나 입찰에 참여할 수 있나요?

매각기일
매각기일은 경매 법원이 부동산에 대하여 매각 입찰을 진행하는 날을 말합니다.

유찰
매각 기일에 매수하고자 하는 사람이 없어 매각되지 않아 무효가 되는 것을 유찰이라고 합니다.

최저 매각 가격
최초 경매를 진행할때 감정인이 평가한 가격을 기준으로 책정한 금액이며 입찰자는 최저 매각 가격과 동일하거나 이상의 금액으로 입찰해야 합니다. 매각 기일에 있어 입찰자가 없어 유찰되면 통상 20~30% 저감된 금액이 다음 최저 매각 가격이 됩니다.

매수 보증금
경매 물건을 매수하고자 하는사람은 최저 매각 가격의 10분의 1(다르게 정해질 수 있음)에 해당하는 보증금액을 입찰표와 함께 집행관에게 제출하는 방법으로 제공합니다. 매각 절차가 종결된 후 집행관은 최고가 매수신고인이나 차순위매수신고인 이외의 매수신청인에게는 즉시 매수 보증금을 반환해 줍니다.

더 많은 내용을 알고 싶다면 경매마당 학습하기 코너에 준비된 용어설명을 이용해보세요.

경매정보는 법원자료와 일치하도록 하였으나 권리사항변동, 입력착오 등의 원인으로 사실과 다를 수 있습니다. 이용약관에 의거 면책조건으로 제공됨을 알리며, 경매입찰시 반드시 관련 공부를 재확인하시기 바랍니다.

PC버전으로 보기