알림

알림 내역

알림 신청내역/취소

로고 서울남부지방법원 본원 [경매3계] 2024타경112305
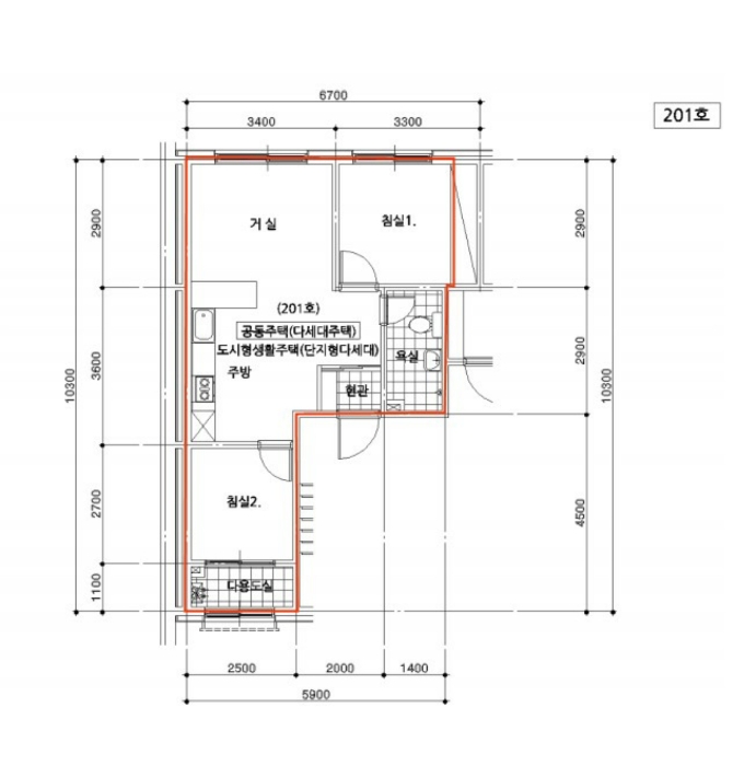
서울특별시 양천구 목동중앙서로7다길 33, 제씨동 제1층 제201호 (목동, 형지그레이스)

서울 양천구 목동 785-2

주소복사
경매구분 강제경매
용도 다세대
토지 28㎡(8.5평)
건물 47.8㎡(14.5평)
감정가 358,000,000원
최저가 286,400,000원
보증금 28,640,000원 (10%)
청구액 361,223,905원
접수일 2024년 04월 02일
개시결정 2024년 04월 02일
감정일 2024년 04월 15일
매각일 2024년 11월 06일
2024타경112305
2024타경112305
2024타경112305
2024타경112305
2024타경112305
2024타경112305
2024타경112305
2024타경112305
2024타경112305
2024타경112305
2024타경112305
감정가
3억5800만원
낙찰가 14%
3억966만6000원
배당종결 2024년 11월 06일
유찰 1회선순위임차인대항력포기임차권등기
유찰 1회선순위임차인대항력포기임차권등기
경매구분 강제경매
용도 다세대
토지 28㎡(8.5평)
건물 47.8㎡(14.5평)
감정가 358,000,000원
최저가 286,400,000원
보증금 28,640,000원 (10%)
청구액 361,223,905원
접수일 2024년 04월 02일
개시결정 2024년 04월 02일
감정일 2024년 04월 15일
매각일 2024년 11월 06일
배당종결 2024년 11월 06일

당사자 내역

채무자겸소유자 김OO
채권자 주OOOOOOO
교부권자 울OOOO
교부권자 서OOOOOOOO
주택임차권자 주OOOOOOO
주택임차권자 서OO
교부권자 서OOOOOOOOO
교부권자 서OOOOOOOO
교부권자 서OOOOOOOO
교부권자 서OOOOOOOO
교부권자 서OOOO
교부권자 국OOOOOOOOOOOOOO
교부권자 서OOOOOOOO
압류권자 울OOOO
압류권자 서OOOOOOOO
압류권자 시OOOO
교부권자 시OOOO

기일 내역

2024.12.26
대금지급기한
2024.11.13
최고가매각허가결정
2024.11.06
3억966만6000원 매각
2억8640만원 최저가
2024.08.22
3억5800만원 유찰

물건 비고(공고문)

- 임차인 및 주택임차권 승계인 주택도시보증공사의 매수인에 대한 대항력 포기 조건 매각

임차인(매각 명세서)

<비고>
서은주:주택임차권 등기일은 2023.08.18.임
주택도시보증공사:주택임차권자 서은주의 지위를 승계한 이 사건 신청채권자로 권리신고 및 배당요구일은 경매신청일임

물건 비고(매각 명세서)

- 임차인 및 주택임차권 승계인 주택도시보증공사는 매수인에 대하여 배당받지 못하는 잔액에 대한 임차보증금반환청구권을
포기하고, 주택임차권등기를 말소하는 것을 조건으로 매각

점유 조사(현황 조사서)

[목록1]이 사건 부동산 현장방문조사 당시 폐문부재로 아무도 만나지 못하여 점유관계 미상임. 별도의 확인이 필요함. 안내문을 출입문에 끼워놓았음. 덧붙인 전입세대확인서 및 외국인체류확인서에는 등재자가 없음(다만, 이 사건은 주택도시보증공사가 신청채권자인 사건임).

매각결과+

매각일자 / 결과 응찰자수 최고가 금액/응찰자명 차순위 금액
부동산
등기
임차인
그 외

부동산

매각목록

※ 건축물 도면은 ‘건축물 대장의 기재 및 관리에 관한 규칙’ 에 따라 현재 경매가 진행중인 물건에만 제공됩니다.
※ 지분물건의 경우 면적은 지분에 해당하는 면적이 아닌 전체 면적으로 표기됩니다

감정평가

감정평가서 요약

1.구분건물감정평가요항표 1) 위치 및 주위환경 본건은 서울특별시 양천구 목동 소재 "강서고등학교" 남서측 인근에 위치하며, 주위환경은 다세대주택, 단독주택, 소규모근린생활시설 등이 소재하는 지역이며 주위환경은 보통임. 2) 교통상황 본건까지 차량접근 가능하고, 인근에 버스정류장 등이 소재하는 등 제반 교통상황은 보통시됨. 3) 건물의 구조 철근콘크리트구조 (철근)콘크리트지붕 4층건 내제1층 제201호로서,외벽 : 석재 붙임 등임.내벽 : -.창호 : 샷시창호 등임. 4) 이용상태 본건은 다세대주택으로 이용중임. 5) 설비내역 일반적인 위생설비, 급배수설비, 도시가스에 의한 난방설비, 엘리베이터 등이 되어있음. 6) 토지의 형상 및 이용상태 장방형 토지로서 주거용(다세대주택)의 건부지로 이용중임. 7) 인접 도로상태등 본건 북측 및 남측으로 포장도로에 접함. 8) 토지이용계획 및 제한상태 도시지역, 제2종일반주거지역(7층이하), 도로(접합), 가축사육제한구역<가축분뇨의 관리 및 이용에 관한 법률>, 상대보호구역(강서양천교육청에 반드시 확인 요망)<교육환경 보호에 관한 법률>, 상대보호구역(강서양천교육청에 반드시 확인 요망)<교육환경 보호에 관한 법률>, 대공방어협조구역(위탁고도:77-257m)<군사기지 및 군사시설 보호법>, 과밀억제권역<수도권정비계획법> 9) 공부와의 차이 없 음. 10) 기타참고사항(임대관례 및 기타) 1. 임대관계는 미상임.2. 본건의 내부구조도는 현장조사 당시 이해관계인의 폐문부재로 인하여 건축물대장상 건축물현황도와 외부관찰, 탐문조사 등을 통하여 표기하였으니 경매참여시 재확인하시기 바람.

주변 입주 예정

거리 단지명 공급년월 세대 수
※ 해당 자료는 한국부동산원 청약홈 자료에 근거하며, 인근 5km 이내의 물건을 기준으로 산정되었습니다.

등기

등기부현황

채권합계 345,000,000원(1건)
등기일자 권리종류 권리자/채권액 권리
2022-04-14
(갑5)
압류 소멸
말소기준 등기 처분청시흥세무서장
2023-05-08
(갑6)
압류 양천구(서울특별시) 소멸
- 권리자양천구(서울특별시)1130
2023-05-11
(갑7)
압류 소멸
- 처분청울산세무서장
2023-08-18
(을3)
임차권설정 서은주 인수
전입:2021년7월26일/확정:2021년6월30일 345,000,000
2024-04-02
(갑8)
강제경매개시결정
(2024타경112305)
주택도시보증공사 소멸
경매기입 등기 361,223,905원
더보기 더보기
※ 신규 발급등기의 분석자료 반영에는 최대 1일까지 소요될수 있습니다.(등기분석,임차인분석,분석노트 등)

임차인

매각물건 명세서

구분 법원 사건번호 작성일자 매각명세서
1 서울남부지법 2024타경112305[1] 2024.08.08
구분 법원/
사건번호
작성일자 매각명세서
1 서울남부지법
2024타경112305[1]
2024.08.08

임차인(매각 명세서)

<비고>
서은주:주택임차권 등기일은 2023.08.18.임
주택도시보증공사:주택임차권자 서은주의 지위를 승계한 이 사건 신청채권자로 권리신고 및 배당요구일은 경매신청일임

물건 비고(매각 명세서)

- 임차인 및 주택임차권 승계인 주택도시보증공사는 매수인에 대하여 배당받지 못하는 잔액에 대한 임차보증금반환청구권을
포기하고, 주택임차권등기를 말소하는 것을 조건으로 매각

임차인현황

임차인 보증금/차임 전입/확정/배당 대항력
주택도시보증공사(서은주)
(주거주택임차권자)
점유부분:
씨동 201호 전부
보증:
345,000,000
차임:
-
전입: 2021-07-26
확정: 2021-06-30
배당: 2024-04-02
있음
(인수유의)

현황 조사서

조사일시

2024년04월11일09시35분

부동산의 현황

-

점유 조사

[목록1]이 사건 부동산 현장방문조사 당시 폐문부재로 아무도 만나지 못하여 점유관계 미상임. 별도의 확인이 필요함. 안내문을 출입문에 끼워놓았음. 덧붙인 전입세대확인서 및 외국인체류확인서에는 등재자가 없음(다만, 이 사건은 주택도시보증공사가 신청채권자인 사건임).

미납관리비 조사내역

확인일자 미납금액 관리소번호 메모

※ 해당 정보는 참고용으로 제공되며 입찰 전 반드시 관리사무소를 통해 직접 확인하시기 바랍니다.

시세

전문가

그외

관할법원 관할법원 (입찰장소)

서울남부지방법원 본원

경매3계 : 02-2192-1114

서울 양천구 신정동 313-1 주소복사

Q&A Q&A

Q. 대법원경매가 무엇인가요?누구나 입찰에 참여할 수 있나요?

경매채무자(빌린 자)가 채무를 갚지 않았을 때 채권자(빌려준 자)의 신청으로 대법원이 채무자의 재산을 대신 매각하는 과정을 말합니다.

법원은 감정인에게 자산을 평가하게 한 후, 최저가를 정하여 그 금액 이상으로 입찰한 입찰자 중 최고가 매수인을 결정합니다.

대법원의 주관하에 국민 모두가 참여할 수 있습니다.

Q. 경매 입찰은 어떻게 하나요?누구나 입찰에 참여할 수 있나요?

1. 입찰하시고자 하는 경매물건을 정하신 후, 입찰하시고자 하는 입찰가를 최저가 이상으로 정합니다.

2. 해당 물건의 매각기일에 직접 관할법원에 방문하셔서 법원내에 비치된 입찰서를 작성하신 후 입찰하시면 됩니다.

TIP! 법원에 가실 때에는 입찰보증금(최저가의 10~30%)과 신분증을 지참하여 방문하세요.

Q. 용어가 너무 어려워서 내용을 이해하기 어려워요누구나 입찰에 참여할 수 있나요?

매각기일
매각기일은 경매 법원이 부동산에 대하여 매각 입찰을 진행하는 날을 말합니다.

유찰
매각 기일에 매수하고자 하는 사람이 없어 매각되지 않아 무효가 되는 것을 유찰이라고 합니다.

최저 매각 가격
최초 경매를 진행할때 감정인이 평가한 가격을 기준으로 책정한 금액이며 입찰자는 최저 매각 가격과 동일하거나 이상의 금액으로 입찰해야 합니다. 매각 기일에 있어 입찰자가 없어 유찰되면 통상 20~30% 저감된 금액이 다음 최저 매각 가격이 됩니다.

매수 보증금
경매 물건을 매수하고자 하는사람은 최저 매각 가격의 10분의 1(다르게 정해질 수 있음)에 해당하는 보증금액을 입찰표와 함께 집행관에게 제출하는 방법으로 제공합니다. 매각 절차가 종결된 후 집행관은 최고가 매수신고인이나 차순위매수신고인 이외의 매수신청인에게는 즉시 매수 보증금을 반환해 줍니다.

더 많은 내용을 알고 싶다면 경매마당 학습하기 코너에 준비된 용어설명을 이용해보세요.

경매정보는 법원자료와 일치하도록 하였으나 권리사항변동, 입력착오 등의 원인으로 사실과 다를 수 있습니다. 이용약관에 의거 면책조건으로 제공됨을 알리며, 경매입찰시 반드시 관련 공부를 재확인하시기 바랍니다.

PC버전으로 보기