알림

알림 내역

알림 신청내역/취소

대법원
물건내역
사건내역
기일내역
송달내역
현황조사
지도
사진보기
문서
매각기일공고문
매각물건명세서
감정평가서
등기부등본
전입세대열람원 M
건축물대장 M
분석
예상배당표 M
수익률분석 M
입찰가분석 M
조회수분석 M
인근지역통계 M
사이트
대법원
국토부 실거래가
토지이음
아실
네이버 단지정보
네이버 매물정보
호갱노노
부동산플래닛
로고 서울남부지방법원 본원 [경매4계] 2024타경128133
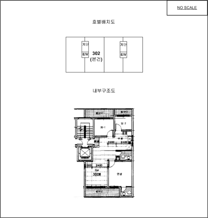
서울특별시 구로구 개봉로17마길 9-22, 제3층 제302호 (개봉동, 중앙힐아파트)

서울 구로구 개봉동 322-12

주소복사
경매구분 강제경매
용도 아파트
토지 30.43㎡(9.21평)
건물 67.44㎡(20.4평)
감정가 323,000,000원
최저가 323,000,000원
보증금 32,300,000원 (10%)
청구액 275,000,000원
개시결정 2024년 07월 31일
감정일 2024년 08월 14일
배당종기 2024년 10월 31일
매각일 2026년 03월 11일
2024타경128133
2024타경128133
2024타경128133
2024타경128133
2024타경128133
2024타경128133
2024타경128133
2024타경128133
2024타경128133
2024타경128133
감정가
3억2300만원
최저가
3억2300만원
변경 2026년 03월 11일 입찰 D-59일
유찰 3회임차권등기선순위임차인
유찰 3회임차권등기선순위임차인
경매구분 강제경매
용도 아파트
토지 30.43㎡(9.21평)
건물 67.44㎡(20.4평)
감정가 323,000,000원
최저가 323,000,000원
보증금 32,300,000원 (10%)
청구액 275,000,000원
개시결정 2024년 07월 31일
감정일 2024년 08월 14일
배당종기 2024년 10월 31일
매각일 2026년 03월 11일
변경 2026년 03월 11일 입찰 D-59일

당사자 내역

채무자겸소유자 장OO
채권자 주OOOOOOO
임차인 문OO
교부권자 국OOOOOOOOOOOO
교부권자 서OOOOOOOO
배당요구권자 주OOOOOOOOOO
주택임차권자 주OOOOOOO
배당요구권자 주OOOOOOO
주택임차권자 홍OO

기일 내역

2026.03.11(10:00)
3억2300만원 진행
2026.01.21(10:00)
기일변경
2025.11.26(10:00)
2억672만원 유찰
2025.10.23(10:00)
2억5840만원 유찰
2025.09.02(10:00)
3억2300만원 유찰

매각공고

기일 변경(2026년01월09일)

2026.1.9. 변경 후 추후지정

물건 비고(공고문)

- 임차인 및 주택임차권 승계인 주택도시보증공사의 배당받지 못하는 잔액에 대한 임차보증금반환청구권 포기 조건 매각

임차인(매각 명세서)

주택도시보증공사 : 주택임차권자 홍재연의 지위를 승계한 이 사건 신청채권자로 권리신고 및 배당요구일은 경매신청일임 홍재연 : 주택임차권 등기일은 2023.05.15.임

인수되는 권리/가처분(매각 명세서)

- 을구 10번 주택임차권 등기와 관련하여 매수인에게 대항할 수 있는 임차인이 있음(임차보증금 275,000,000원, 전입일자 2021.03.25, 확정일자 2021.03.05) 배당에서 보증금이 전액 변제되지 않으면 잔액을 매수인이 인수함

현황 조사(현황 조사서)

폐문부재로 전입세대확인서 및 주민등록표등본,외국인체류확인서를 각 참고하여 조사함.

점유 조사(현황 조사서)

[목록1]현장출장 방문 시 아무도 만나지 못하여(폐문부재) 안내문을 현관문 틈에 남겼으나 연락이 없음. 덧붙인 전입세대확인서 및 주민등록등본과 같이 소유자 아닌 세대주 문은실 세대가 등재되어 있으므로, 그를 그 등본에 의해 일응 임차인으로 기재함. 안내문을 현관문에 끼워 두었음.

매각결과+

매각일자 / 결과 응찰자수 최고가 금액/응찰자명 차순위 금액

현황정보

매각목록

부동산 현황

1) 위치 및 주위환경 본건은 서울특별시 구로구 개봉동 소재 "개웅초등학교" 북동측 인근에 위치하며, 주위는 다세대주택, 단독주택, 아파트 및 근린생활시설 등이 혼재하는 지대로서, 전반적인 주위환경은 보통임. 2) 교통상황 본건까지 차량 진·출입이 가능하며, 인근에 노선버스정류장 등이 소재하는 바, 전반적인 대중교통 이용편의도는 보통임. 3) 건물의 구조 2000년 4월에 사용승인된 철근콘크리트조 평스라브지붕 지상 5층건내 제3층 제302호로서 외벽: 모르타르위 페인팅 마감 등, 내벽: 벽지 도배 마감 등, 창호: 새시 창호임. 4) 이용상태 아파트로 이용중임. 5) 설비내역 급·배수설비 및 위생설비, 난방설비, 승강기설비 등이 설치되어 있음. 6) 토지의 형상 및 이용상태 3필지 일단의 가장형 토지로서, "아파트" 부지로 이용중임. 7) 인접 도로상태등 남측으로 폭 약 6미터의 포장도로와 접하고 있음. 8) 토지이용계획 및 제한상태 제2종일반주거지역(7층이하), 도로(접합), 장애물제한표면구역(진입표면)<공항시설법>, 대공방어협조구역(위탁고도:해발165m(지반+건축+옥탑 등), 육군수도방위사령부(02-524-3146)관할)<군사기지 및 군사시설 보호법>, 과밀억제권역<수도권정비계획법>임. 9) 공부와의 차이 해당 사항 없음. 10) 기타참고사항(임대관례 및 기타) 임대관계는 미상임.

주변 입주 예정

거리 단지명 공급년월 세대 수
※ 해당 자료는 한국부동산원 청약홈 자료에 근거하며, 인근 5km 이내의 물건을 기준으로 산정되었습니다.

등기

등기부현황

채권합계 26,400,000원(1건)
등기일자 권리종류 권리자/채권액 권리
2021-04-08
소유자 OOOO
단독소유 -
2023-05-15
(을10)
임차권설정 OOOO 인수
- 275,000,000원
2024-08-01
(갑17)
강제경매개시결정
(2024타경128133)
OOOO 소멸
말소기준
경매기입 등기
275,000,000원
2024-12-19
(갑18)
가압류 OOOO 소멸
- 26,405,550원
더보기
※ 신규 발급등기의 분석자료 반영에는 최대 1일까지 소요될수 있습니다.(등기분석,임차인분석,분석노트 등)

임차인

매각물건 명세서

구분 법원 사건번호 작성일자 매각명세서
1 서울남부지법 2024타경128133[1] 2025. 8. 8.
구분 법원/
사건번호
작성일자 매각명세서
1 서울남부지법
2024타경128133[1]
2025. 8. 8.

임차인(매각 명세서)

주택도시보증공사 : 주택임차권자 홍재연의 지위를 승계한 이 사건 신청채권자로 권리신고 및 배당요구일은 경매신청일임 홍재연 : 주택임차권 등기일은 2023.05.15.임

인수되는 권리/가처분(매각 명세서)

- 을구 10번 주택임차권 등기와 관련하여 매수인에게 대항할 수 있는 임차인이 있음(임차보증금 275,000,000원, 전입일자 2021.03.25, 확정일자 2021.03.05) 배당에서 보증금이 전액 변제되지 않으면 잔액을 매수인이 인수함

임차인현황

임차인 보증금/차임 전입/확정/배당 대항력
[현황조사]
문은실
(주거 임차인)
점유부분:
302호
보증:
미상
차임:
미상
전입: 2024-01-30
확정: 미상
배당: -
멤버십
주택도시보증공사[홍재연]
(주거 주택임차권자)
점유부분:
302호 전부
보증:
275,000,000
차임:
-
전입: 2021-03-25
확정: 2021-03-05
배당: 2024.7.19.
멤버십

현황 조사서

조사일시

2024년08월14일13시35분

부동산의 현황

폐문부재로 전입세대확인서 및 주민등록표등본,외국인체류확인서를 각 참고하여 조사함.

점유 조사

[목록1]현장출장 방문 시 아무도 만나지 못하여(폐문부재) 안내문을 현관문 틈에 남겼으나 연락이 없음. 덧붙인 전입세대확인서 및 주민등록등본과 같이 소유자 아닌 세대주 문은실 세대가 등재되어 있으므로, 그를 그 등본에 의해 일응 임차인으로 기재함. 안내문을 현관문에 끼워 두었음.

1
소재지 서울특별시 구로구 개봉로17마길 9-22, 제3층 제302호 (개봉동, 중앙힐아파트)
점유인 문은실(임차인)
점유부분 302호(주거)
점유기간 미상
보증금/차임 미상/미상
전입/확정일자 2024.01.30.(전입세대확인서)/미상

미납관리비 조사내역

확인일자 미납금액 관리소번호 메모

※ 해당 정보는 참고용으로 제공되며 입찰 전 반드시 관리사무소를 통해 직접 확인하시기 바랍니다.

시세분석

기타

전문가

관할법원 (입찰장소)

서울남부지방법원 본원

경매4계 : 02-2192-1114

서울 양천구 신정동 313-1 주소복사

Q&A

Q. 대법원경매가 무엇인가요?누구나 입찰에 참여할 수 있나요?

경매채무자(빌린 자)가 채무를 갚지 않았을 때 채권자(빌려준 자)의 신청으로 대법원이 채무자의 재산을 대신 매각하는 과정을 말합니다.

법원은 감정인에게 자산을 평가하게 한 후, 최저가를 정하여 그 금액 이상으로 입찰한 입찰자 중 최고가 매수인을 결정합니다.

대법원의 주관하에 국민 모두가 참여할 수 있습니다.

Q. 경매 입찰은 어떻게 하나요?누구나 입찰에 참여할 수 있나요?

1. 입찰하시고자 하는 경매물건을 정하신 후, 입찰하시고자 하는 입찰가를 최저가 이상으로 정합니다.

2. 해당 물건의 매각기일에 직접 관할법원에 방문하셔서 법원내에 비치된 입찰서를 작성하신 후 입찰하시면 됩니다.

TIP! 법원에 가실 때에는 입찰보증금(최저가의 10~30%)과 신분증을 지참하여 방문하세요.

Q. 용어가 너무 어려워서 내용을 이해하기 어려워요누구나 입찰에 참여할 수 있나요?

매각기일
매각기일은 경매 법원이 부동산에 대하여 매각 입찰을 진행하는 날을 말합니다.

유찰
매각 기일에 매수하고자 하는 사람이 없어 매각되지 않아 무효가 되는 것을 유찰이라고 합니다.

최저 매각 가격
최초 경매를 진행할때 감정인이 평가한 가격을 기준으로 책정한 금액이며 입찰자는 최저 매각 가격과 동일하거나 이상의 금액으로 입찰해야 합니다. 매각 기일에 있어 입찰자가 없어 유찰되면 통상 20~30% 저감된 금액이 다음 최저 매각 가격이 됩니다.

매수 보증금
경매 물건을 매수하고자 하는사람은 최저 매각 가격의 10분의 1(다르게 정해질 수 있음)에 해당하는 보증금액을 입찰표와 함께 집행관에게 제출하는 방법으로 제공합니다. 매각 절차가 종결된 후 집행관은 최고가 매수신고인이나 차순위매수신고인 이외의 매수신청인에게는 즉시 매수 보증금을 반환해 줍니다.

더 많은 내용을 알고 싶다면 경매마당 학습하기 코너에 준비된 용어설명을 이용해보세요.

경매정보는 법원자료와 일치하도록 하였으나 권리사항변동, 입력착오 등의 원인으로 사실과 다를 수 있습니다. 이용약관에 의거 면책조건으로 제공됨을 알리며, 경매입찰시 반드시 관련 공부를 재확인하시기 바랍니다.

PC버전으로 보기