알림

알림 내역

알림 신청내역/취소

대법원
물건내역
사건내역
기일내역
송달내역
현황조사
지도
사진보기
문서
매각기일공고문
매각물건명세서
감정평가서 M
등기부등본
전입세대열람원 M
건축물대장 M
분석
예상배당표 M
수익률분석 M
입찰가분석 M
조회수분석 M
인근지역통계 M
사이트
대법원
국토부 실거래가
토지이음
아실
네이버 단지정보
네이버 매물정보
호갱노노
부동산플래닛
로고 서울북부지방법원 본원 [경매5계] 2020타경4768
서울특별시 중랑구 면목로38길 51

서울 중랑구 면목동 583-66

주소복사
경매구분 임의경매
용도 상가
토지 182㎡(55.06평)
건물 410.74㎡(124.25평)
감정가 1,734,602,780원
최저가 888,117,000원
보증금 177,623,400원 (20%)
청구액 256,182,696원
개시결정 2020년 07월 16일
감정일 2020년 07월 22일
배당종기 2020년 09월 28일
매각일 2022년 03월 02일
2020타경4768
2020타경4768
2020타경4768
2020타경4768
2020타경4768
2020타경4768
2020타경4768
2020타경4768
2020타경4768
2020타경4768
2020타경4768
2020타경4768
2020타경4768
2020타경4768
2020타경4768
2020타경4768
2020타경4768
감정가
17억3460만2780원
3150만3865원/평 (토지)
낙찰가 25%
13억원
배당종결 2022년 03월 02일
유찰 3회위반건축물임차권등기재매각특별매각조건
유찰 3회위반건축물임차권등기재매각특별매각조건
경매구분 임의경매
용도 상가
토지 182㎡(55.06평)
건물 410.74㎡(124.25평)
감정가 1,734,602,780원
최저가 888,117,000원
보증금 177,623,400원 (20%)
청구액 256,182,696원
개시결정 2020년 07월 16일
감정일 2020년 07월 22일
배당종기 2020년 09월 28일
매각일 2022년 03월 02일
배당종결 2022년 03월 02일

당사자 내역

채무자겸소유자 강OO
채권자 아OOOOOOOOOOOOOOOOOOOOOOOOOOOOOOOO
교부권자 서OOOOOOOOOOOOO
가압류권자 주OOOOOOO
임차인 박OO
임차권자 송OO
임차인 한OO
임차인 진OO
임차인 정OO
임차인 이OO
임차인 윤OO
임차인 이OO
임차인 심OO
임차인 백OO
임차인 김OO
임차인 김OO
임차인 김OO
임차인 김OO
임차인 곽OO
임차인 강OO
배당요구권자 수OOO

기일 내역

2022.03.08
최고가매각허가결정
2022.03.02
13억원 매각
8억8811만7000원 최저가
2022.01.05
미납
2021.11.23
최고가매각허가결정
2021.11.16
12억7000만원 매각
8억8811만7000원 최저가
2021.10.12
11억1014만6000원 유찰
2021.09.07
13억8768만2000원 유찰
2021.08.09
기일변경
2021.08.09
기일변경
2021.06.21
17억3460만2780원 유찰

매각공고

물건 비고(공고문)

일괄매각. 제시외 건물 포함 재매각임. 특별매각조건 매수신청보증금 20%

물건 비고(매각 명세서)

1.일괄매각. 제시외 건물 포함
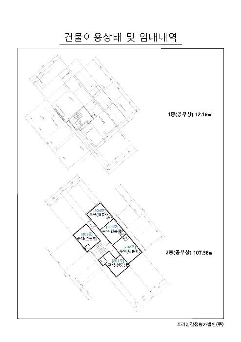
2.건물 2층의 공부상 용도는 근린생활시설이나 현재 주택(원룸5개호)로 이용중인 바, 매수인들의 확인을 요함.
3.건물은 일반건축물대장상 건축과-22003(2012.10.29)호로 위반건축물등재{지상2층 사무소(107.38m2)를 주택(취사시설 설치)으
로 무단사용}, 주택과-27714(2012.11.07)호로 위반건축물 등재{20m2 벽돌/벽돌 3,4,5층/주거}되어 있으니 매수인들의 확인을 요

4. 재매각임. 특별매각조건 매수신청보증금 20%

현황 조사(현황 조사서)

* 5층 리치하우스 빌라(16세대)
- 2층 : 201호~205호(5세대)
- 3층 : 301호~305호(5세대)
- 4층 : 401호~405호(5세대)
- 5층 : 501호(1세대)

점유 조사(현황 조사서)

[목록2]* 본 건 현황조사를 위하여 현장 방문. 입구는 전자키로 잠겨 있어 출입할 수가 없어 점유자 확인 불능임. * 우편함에 안내문을 투입함. * 전입세대주 강성훈외 14명을 발견하여 주민등록 표에 의하여 작성하였음.

매각결과+

매각일자 / 결과 응찰자수 최고가 금액/응찰자명 차순위 금액

가장 빠른 경매 정보 플랫폼 경매마당
남들보다 먼저 정보를 선점하세요

간단한 로그인 후 바로 이용 가능합니다

bolt 대법원 보다 빠른 물건 정보
verified 가장 많은 경매 물건 제공
trending_up 월 5회 등기부 무료 열람

현황정보

매각목록

부동산 현황

1.토지감정요항표 1) 위치 및 주위환경 본건은 서울특별시 중랑구 면목동 소재 "서울면남초등학교" 북측 인근에 위치하며, 부근 에 단독주택, 다세대주택, 아파트 및 근린생활시설 등이 소재하는 바, 제반 주위환경은 보통임. 2) 교통상황 본건까지 차량출입 가능하며 인근에 버스정류장 등이 소재하는 바, 제반 대중교통수단 이용은 보통임. 3) 형태 및 이용상태 인접지대비 등고평탄한 세장형 토지로서, 주거용 건부지로 이용중임. 4) 인접 도로상태 본건 남동측으로 노폭 약 8미터 정도의 포장도로와 접함. 5) 토지이용계획 및 제한상태 제2종일반주거지역(7층이하), 가축사육제한구역(문의:일자리창출과)<가축분뇨의 관리 및 이용에 관한 법률>, 상대보호구역(관할교육청에확인요망)<교육환경 보호에 관한 법률>, 절대보호구역(관할교육청에확인요망)<교육환경 보호에 관한 법률>, 대공방어협조구역(위 탁고도:해발107m(지반+건축+옥탑등)육군수도방위사령부(02-524-3313)관할)<군사기지 및 군사시설 보호법>, 과밀억제권역<수도권정비계획법> 6) 제시목록 외의 물건 없 음. 7) 공부와의 차이 없 음. 8) 기타참고사항(임대관례 및 기타) 임대관계: 미상임. 기 타: -. 2.건물감정평가요항표 1) 건물의 구조 철근콘크리트구조 평스라브지붕 지상 5층 건으로서, 외벽: 석재붙임 등 마감 내벽: 벽지도배 및 일부 타일붙임 등 마감 창호: 새시창호 등 마감. 2) 이용상태 1층: 계단실로 이용중임. 2층: 근린생활시설 용도이나 주택(원룸형 5개호)으로 이용중임. 3층: 주택(원룸형 5개호)으로 이용중임. 4층: 주택(원룸형 5개호)으로 이용중임. 5층: 주택(방3, 욕실겸화장실2, 주방, 거실 등)으로 이용중임. 옥탑1층: 계단실로 이용중임. (후첨 "건물이용상태 및 내부구조도" 참조) 3) 설비내역 위생설비, 급배수설비, 도시가스에 의한 개별난방설비, 필로티구조의 1층 주차장시설 등 이 되어 있음. 4) 부합물 및 종물 본건에 소재하는 제시외건물 "㉠-㉢"은 개략적인 실측 등에 의거 면적사정 하였으며, 본건물의 부합물로서 평가목적 등을 고려하여 포함 평가하였으니 경매 진행 시 참고하 시기 바라며 추후 소유권 등에 대한 재확인을 요함. 5) 공부와의 차이 본건 건물 기호(가) 2층의 공부상 용도는 "근린생활시설"이나, 기준시점 현재 "주택 (원룸5개호)"으로 이용중인 바, 경매진행 시 참고하시기 바라며 추후 입찰 전 재확인을 요함 6) 기타참고사항(임대관례 및 기타) 임대관계: 미상임. 기 타: 본건 건물 기호(가)는 일반건축물대장상 위반건축물(건축과-22003(2012.10.29 )호 위반건축물등재(지상2층 사무소(107.38㎡)를 주택(취사시설 설치)으로 무 단사용), 위반건축물(주택과-27714(2012.11.07)호 위반건축물 등재(20㎡ 벽돌 /벽돌 3,4,5층/주거)로 등재되어 있으니 경매진행 시 참고하시기 바람.

주변 입주 예정

거리 단지명 공급년월 세대 수
※ 해당 자료는 한국부동산원 청약홈 자료에 근거하며, 인근 5km 이내의 물건을 기준으로 산정되었습니다.

등기

등기부현황

채권합계 802,060,000원(4건)
등기일자 권리종류 권리자/채권액 권리
2012-01-30
소유자 강OOOOOOOO OO
단독소유 -
2012-04-30
(을3)
근저당권설정 주OOOOOOO OO
말소기준 등기 336,000,000
2012-04-30
(을4)
근저당권설정 주OOOOOOO OO
- 274,800,000
2012-09-27
(을4-2)
근저당권변경 OO
- 174,000,000
2020-02-18
(갑5)
가압류 주OOOOOOO OO
- 128,929,315
2020-07-16
(갑6)
임의경매개시결정
(2020타경4768)
주OOOOOOO OO
경매기입 등기 256,182,696원
2020-08-21
(갑7)
가압류 수OOO OO
- 163,146,029
2021-07-13
(갑8)
압류 중OOOOOOOOO OO
- -
더보기
※ 신규 발급등기의 분석자료 반영에는 최대 1일까지 소요될수 있습니다.(등기분석,임차인분석,분석노트 등)

임차인

매각물건 명세서

구분 법원 사건번호 작성일자 매각명세서
1 서울북부지법 2020타경4768[1] 2022.01.11
구분 법원/
사건번호
작성일자 매각명세서
1 서울북부지법
2020타경4768[1]
2022.01.11

물건 비고(매각 명세서)

1.일괄매각. 제시외 건물 포함
2.건물 2층의 공부상 용도는 근린생활시설이나 현재 주택(원룸5개호)로 이용중인 바, 매수인들의 확인을 요함.
3.건물은 일반건축물대장상 건축과-22003(2012.10.29)호로 위반건축물등재{지상2층 사무소(107.38m2)를 주택(취사시설 설치)으
로 무단사용}, 주택과-27714(2012.11.07)호로 위반건축물 등재{20m2 벽돌/벽돌 3,4,5층/주거}되어 있으니 매수인들의 확인을 요

4. 재매각임. 특별매각조건 매수신청보증금 20%

임차인현황

임차인 보증금/차임 전입/확정/배당 대항력
강OO
(주거임차인 / 소액임차인)
점유부분:
전부(방 1칸), 일부(3 층 방1칸) (302호)
보증:
65,000,000
차임:
-
전입: 2019-05-15
확정: 2019-05-15
배당: 2020-08-10
멤버십
곽OO
(주거임차인 / 소액임차인)
점유부분:
4층 방1칸 (401호)
보증:
70,000,000
차임:
-
전입: 2017-02-13
확정: 2017-02-13
배당: 2020-08-21
멤버십
김OO
(주거임차인 / 소액임차인)
점유부분:
일부(3 층 방1칸) (303호)
보증:
30,000,000
차임:
300,000
전입: 2018-07-03
확정: 2018-06-29
배당: 2020-08-18
멤버십
김OO
(주거임차인 / 소액임차인)
점유부분:
일부(3 층 방1칸) (301호)
보증:
50,000,000
차임:
-
전입: 2019-10-04
확정: 2019-09-25
배당: 2020-09-07
멤버십
김OO
(주거임차인 / 소액임차인)
점유부분:
일부(4 층 방1칸) (404호)
보증:
60,000,000
차임:
-
전입: 2017-09-18
확정: 2017-09-18
배당: 2020-08-13
멤버십
김OO
(주거임차인 / 소액임차인)
점유부분:
일부(2 층 방1칸) (202호)
보증:
70,000,000
차임:
50,000
전입: 2018-12-04
확정: 2018-12-04
배당: 2020-08-13
멤버십
박OO
(주거임차인 / 소액임차인)
점유부분:
전부(방 1칸), 일부(3 층 방1칸) (304호)
보증:
65,000,000
차임:
-
전입: 2019-02-11
확정: 2019-01-22
배당: 2020-08-10
멤버십
백OO
(주거임차인 / 소액임차인)
점유부분:
일부(4 층 방1칸) (403호)
보증:
48,000,000
차임:
-
전입: 2013-04-01
확정: 2013-04-01
배당: 2020-09-21
멤버십
송OO
(주거임차권자 / 소액임차인)
점유부분:
405호
보증:
60,000,000
차임:
-
전입: 2016-12-19
확정: 2016-12-19
배당: -
멤버십
심OO
(주거임차인 / 소액임차인)
점유부분:
일부(2 층 방1칸) (205호)
보증:
50,000,000
차임:
-
전입: 2014-10-30
확정: 2014-10-30
배당: 2020-08-18
멤버십
윤OO
(주거임차인 / 소액임차인)
점유부분:
일부 (305호)
보증:
60,000,000
차임:
미상
전입: 2018-07-09
확정: 2018-07-09
배당: 2020-09-14
멤버십
이OO
(주거임차인 / 소액임차인)
점유부분:
건물일 부(원룸 4층 402호)
보증:
75,000,000
차임:
-
전입: 2019-05-01
확정: 2019-05-01
배당: 2020-09-21
멤버십
이OO
(주거임차인 / 소액임차인)
점유부분:
일부(2 층 방1칸) (201호)
보증:
55,000,000
차임:
-
전입: 2018-12-13
확정: 2018-12-13
배당: 2020-09-08
멤버십
정OO
(주거임차인 / 소액임차인)
점유부분:
일부(2 층 방1칸) (204호)
보증:
60,000,000
차임:
-
전입: 2020-07-14
확정: 2018-08-27
배당: 2020-08-31
멤버십
진OO
(주거임차인)
점유부분:
일부(5 층 방3칸 501호)
보증:
100,000,000
차임:
-
전입: 2014-05-30
확정: 2014-05-30
배당: 2020-09-08
멤버십
한OO
(주거임차인)
점유부분:
일부(2 층 방1칸) (203호)
보증:
80,000,000
차임:
-
전입: 2018-04-13
확정: 2018-04-13
배당: 2020-09-11
멤버십

현황 조사서

조사일시

2020년08월05일10시37분 / 2020년08월07일11시05분

부동산의 현황

* 5층 리치하우스 빌라(16세대)
- 2층 : 201호~205호(5세대)
- 3층 : 301호~305호(5세대)
- 4층 : 401호~405호(5세대)
- 5층 : 501호(1세대)

점유 조사

[목록2]* 본 건 현황조사를 위하여 현장 방문. 입구는 전자키로 잠겨 있어 출입할 수가 없어 점유자 확인 불능임. * 우편함에 안내문을 투입함. * 전입세대주 강성훈외 14명을 발견하여 주민등록 표에 의하여 작성하였음.

1
소재지 서울특별시중랑구면목로38길51
점유인 강OO(임차인)
점유부분 302호(기타 - 미상)
점유기간 미상
보증금/차임 미상/미상
전입/확정일자 2019.05.15/미상
2
소재지 서울특별시중랑구면목로38길51
점유인 곽OO(임차인)
점유부분 미상(기타 - 미상)
점유기간 미상
보증금/차임 미상/미상
전입/확정일자 2017.02.13/미상
3
소재지 서울특별시중랑구면목로38길51
점유인 김OO(임차인)
점유부분 미상(기타 - 미상)
점유기간 미상
보증금/차임 미상/미상
전입/확정일자 2018.07.03/미상
4
소재지 서울특별시중랑구면목로38길51
점유인 김OO(임차인)
점유부분 미상(기타 - 미상)
점유기간 미상
보증금/차임 미상/미상
전입/확정일자 2019.10.04/미상
5
소재지 서울특별시중랑구면목로38길51
점유인 김OO(임차인)
점유부분 미상(기타 - 미상)
점유기간 미상
보증금/차임 미상/미상
전입/확정일자 2017.09.18/미상
6
소재지 서울특별시중랑구면목로38길51
점유인 김OO(임차인)
점유부분 미상(기타 - 미상)
점유기간 미상
보증금/차임 미상/미상
전입/확정일자 2018.12.04/미상
7
소재지 서울특별시중랑구면목로38길51
점유인 박OO(임차인)
점유부분 미상(기타 - 미상)
점유기간 미상
보증금/차임 미상/미상
전입/확정일자 2019.02.11/미상
8
소재지 서울특별시중랑구면목로38길51
점유인 백OO(임차인)
점유부분 403호(기타 - 미상)
점유기간 미상
보증금/차임 미상/미상
전입/확정일자 2013.04.01/미상
9
소재지 서울특별시중랑구면목로38길51
점유인 심OO(임차인)
점유부분 205호(기타 - 미상)
점유기간 미상
보증금/차임 미상/미상
전입/확정일자 2014.10.30/미상
10
소재지 서울특별시중랑구면목로38길51
점유인 윤OO(임차인)
점유부분 미상(기타 - 미상)
점유기간 미상
보증금/차임 미상/미상
전입/확정일자 2018.07.09/미상
11
소재지 서울특별시중랑구면목로38길51
점유인 이OO(임차인)
점유부분 미상(기타 - 미상)
점유기간 미상
보증금/차임 미상/미상
전입/확정일자 2019.05.01/미상
12
소재지 서울특별시중랑구면목로38길51
점유인 이OO(임차인)
점유부분 미상(기타 - 미상)
점유기간 미상
보증금/차임 미상/미상
전입/확정일자 2018.12.13/미상
13
소재지 서울특별시중랑구면목로38길51
점유인 정OO(임차인)
점유부분 미상(기타 - 미상)
점유기간 미상
보증금/차임 미상/미상
전입/확정일자 2020.07.14/미상
14
소재지 서울특별시중랑구면목로38길51
점유인 진OO(임차인)
점유부분 501호(기타 - 미상)
점유기간 미상
보증금/차임 미상/미상
전입/확정일자 2014.05.30/미상
15
소재지 서울특별시중랑구면목로38길51
점유인 한OO(임차인)
점유부분 미상(기타 - 미상)
점유기간 미상
보증금/차임 미상/미상
전입/확정일자 2018.04.13/미상

조사일시

-

부동산의 현황

-

점유 조사

[목록2]* 본 건 현황조사를 위하여 현장 방문. 입구는 전자키로 잠겨 있어 출입할 수가 없어 점유자 확인 불능임. * 우편함에 안내문을 투입함. * 전입세대주 강성훈외 14명을 발견하여 주민등록 표에 의하여 작성하였음.

1
소재지 서울특별시중랑구면목로38길51
점유인 강OO(임차인)
점유부분 302호(기타 - 미상)
점유기간 미상
보증금/차임 미상/미상
전입/확정일자 2019.05.15/미상
2
소재지 서울특별시중랑구면목로38길51
점유인 곽OO(임차인)
점유부분 미상(기타 - 미상)
점유기간 미상
보증금/차임 미상/미상
전입/확정일자 2017.02.13/미상
3
소재지 서울특별시중랑구면목로38길51
점유인 김OO(임차인)
점유부분 미상(기타 - 미상)
점유기간 미상
보증금/차임 미상/미상
전입/확정일자 2018.07.03/미상
4
소재지 서울특별시중랑구면목로38길51
점유인 김OO(임차인)
점유부분 미상(기타 - 미상)
점유기간 미상
보증금/차임 미상/미상
전입/확정일자 2019.10.04/미상
5
소재지 서울특별시중랑구면목로38길51
점유인 김OO(임차인)
점유부분 미상(기타 - 미상)
점유기간 미상
보증금/차임 미상/미상
전입/확정일자 2017.09.18/미상
6
소재지 서울특별시중랑구면목로38길51
점유인 김OO(임차인)
점유부분 미상(기타 - 미상)
점유기간 미상
보증금/차임 미상/미상
전입/확정일자 2018.12.04/미상
7
소재지 서울특별시중랑구면목로38길51
점유인 박OO(임차인)
점유부분 미상(기타 - 미상)
점유기간 미상
보증금/차임 미상/미상
전입/확정일자 2019.02.11/미상
8
소재지 서울특별시중랑구면목로38길51
점유인 백OO(임차인)
점유부분 403호(기타 - 미상)
점유기간 미상
보증금/차임 미상/미상
전입/확정일자 2013.04.01/미상
9
소재지 서울특별시중랑구면목로38길51
점유인 심OO(임차인)
점유부분 205호(기타 - 미상)
점유기간 미상
보증금/차임 미상/미상
전입/확정일자 2014.10.30/미상
10
소재지 서울특별시중랑구면목로38길51
점유인 윤OO(임차인)
점유부분 미상(기타 - 미상)
점유기간 미상
보증금/차임 미상/미상
전입/확정일자 2018.07.09/미상
11
소재지 서울특별시중랑구면목로38길51
점유인 이OO(임차인)
점유부분 미상(기타 - 미상)
점유기간 미상
보증금/차임 미상/미상
전입/확정일자 2019.05.01/미상
12
소재지 서울특별시중랑구면목로38길51
점유인 이OO(임차인)
점유부분 미상(기타 - 미상)
점유기간 미상
보증금/차임 미상/미상
전입/확정일자 2018.12.13/미상
13
소재지 서울특별시중랑구면목로38길51
점유인 정OO(임차인)
점유부분 미상(기타 - 미상)
점유기간 미상
보증금/차임 미상/미상
전입/확정일자 2020.07.14/미상
14
소재지 서울특별시중랑구면목로38길51
점유인 진OO(임차인)
점유부분 501호(기타 - 미상)
점유기간 미상
보증금/차임 미상/미상
전입/확정일자 2014.05.30/미상
15
소재지 서울특별시중랑구면목로38길51
점유인 한OO(임차인)
점유부분 미상(기타 - 미상)
점유기간 미상
보증금/차임 미상/미상
전입/확정일자 2018.04.13/미상

미납관리비 조사내역

확인일자 미납금액 관리소번호 메모

※ 해당 정보는 참고용으로 제공되며 입찰 전 반드시 관리사무소를 통해 직접 확인하시기 바랍니다.

시세분석

인근 낙찰사례

기타

전문가

관할법원 (입찰장소)

서울북부지방법원 본원

경매5계 : 02-910-3114

서울 도봉구 도봉동 626 주소복사

Q&A

Q. 대법원경매가 무엇인가요?누구나 입찰에 참여할 수 있나요?

경매채무자(빌린 자)가 채무를 갚지 않았을 때 채권자(빌려준 자)의 신청으로 대법원이 채무자의 재산을 대신 매각하는 과정을 말합니다.

법원은 감정인에게 자산을 평가하게 한 후, 최저가를 정하여 그 금액 이상으로 입찰한 입찰자 중 최고가 매수인을 결정합니다.

대법원의 주관하에 국민 모두가 참여할 수 있습니다.

Q. 경매 입찰은 어떻게 하나요?누구나 입찰에 참여할 수 있나요?

1. 입찰하시고자 하는 경매물건을 정하신 후, 입찰하시고자 하는 입찰가를 최저가 이상으로 정합니다.

2. 해당 물건의 매각기일에 직접 관할법원에 방문하셔서 법원내에 비치된 입찰서를 작성하신 후 입찰하시면 됩니다.

TIP! 법원에 가실 때에는 입찰보증금(최저가의 10~30%)과 신분증을 지참하여 방문하세요.

Q. 용어가 너무 어려워서 내용을 이해하기 어려워요누구나 입찰에 참여할 수 있나요?

매각기일
매각기일은 경매 법원이 부동산에 대하여 매각 입찰을 진행하는 날을 말합니다.

유찰
매각 기일에 매수하고자 하는 사람이 없어 매각되지 않아 무효가 되는 것을 유찰이라고 합니다.

최저 매각 가격
최초 경매를 진행할때 감정인이 평가한 가격을 기준으로 책정한 금액이며 입찰자는 최저 매각 가격과 동일하거나 이상의 금액으로 입찰해야 합니다. 매각 기일에 있어 입찰자가 없어 유찰되면 통상 20~30% 저감된 금액이 다음 최저 매각 가격이 됩니다.

매수 보증금
경매 물건을 매수하고자 하는사람은 최저 매각 가격의 10분의 1(다르게 정해질 수 있음)에 해당하는 보증금액을 입찰표와 함께 집행관에게 제출하는 방법으로 제공합니다. 매각 절차가 종결된 후 집행관은 최고가 매수신고인이나 차순위매수신고인 이외의 매수신청인에게는 즉시 매수 보증금을 반환해 줍니다.

더 많은 내용을 알고 싶다면 경매마당 학습하기 코너에 준비된 용어설명을 이용해보세요.

경매정보는 법원자료와 일치하도록 하였으나 권리사항변동, 입력착오 등의 원인으로 사실과 다를 수 있습니다. 이용약관에 의거 면책조건으로 제공됨을 알리며, 경매입찰시 반드시 관련 공부를 재확인하시기 바랍니다.

PC버전으로 보기