알림

알림 내역

알림 신청내역/취소

대법원
물건내역
사건내역
기일내역
송달내역
현황조사
지도
사진보기
문서
매각기일공고문
매각물건명세서
감정평가서
등기부등본
전입세대열람원 M
건축물대장 M
분석
예상배당표 M
수익률분석 M
입찰가분석 M
조회수분석 M
인근지역통계 M
사이트
대법원
국토부 실거래가
토지이음
아실
네이버 단지정보
네이버 매물정보
호갱노노
부동산플래닛
로고 서울북부지방법원 본원 [경매7계] 2025타경13248
서울특별시 동대문구 전농동 690 래미안 크레시티 202동 제11층 제1104호

서울 동대문구 전농동 690

주소복사
경매구분 임의경매
용도 아파트
토지 47.27㎡(14.3평)
건물 84.98㎡(25.71평)
감정가 1,620,000,000원
최저가 1,296,000,000원
보증금 129,600,000원 (10%)
청구액 582,013,698원
개시결정 2025년 09월 05일
감정일 2025년 10월 13일
배당종기 2025년 12월 05일
매각일 2026년 04월 07일
2025타경13248
2025타경13248
2025타경13248
2025타경13248
2025타경13248
2025타경13248
2025타경13248
2025타경13248
2025타경13248
2025타경13248
2025타경13248
2025타경13248
감정가
16억2000만원
6301만502원/평
낙찰가 2%
16억4777만원
납부 2026년 04월 07일
유찰 1회
유찰 1회
경매구분 임의경매
용도 아파트
토지 47.27㎡(14.3평)
건물 84.98㎡(25.71평)
감정가 1,620,000,000원
최저가 1,296,000,000원
보증금 129,600,000원 (10%)
청구액 582,013,698원
개시결정 2025년 09월 05일
감정일 2025년 10월 13일
배당종기 2025년 12월 05일
매각일 2026년 04월 07일
납부 2026년 04월 07일

당사자 내역

채무자겸소유자 변OO
채권자 노OOOOOOOOO
채무자 주OOOOOOO
근저당권자 주OOOOOOOOO
가압류권자 주OOOOOOOO
가압류권자 전OOOOOOO
근저당권자 중OOOOO
배당요구권자 주OOOOOOOOOO
교부권자 서OOOOOOOOOOOOO
배당요구권자 주OOOOOOOOO
배당요구권자 이OO

기일 내역

2026.05.18(16:00)
납부
2026.04.14(14:00)
최고가매각허가결정
2026.04.07(10:00)
16억4777만원 매각
12억9600만원 최저가
2026.03.04(10:00)
16억2000만원 유찰

매각결과+

매각일자 / 결과 응찰자수 최고가 금액/응찰자명 차순위 금액

가장 빠른 경매 정보 플랫폼 경매마당
남들보다 먼저 정보를 선점하세요

간단한 로그인 후 바로 이용 가능합니다

bolt 대법원 보다 빠른 물건 정보
verified 가장 많은 경매 물건 제공
trending_up 월 5회 등기부 무료 열람

현황정보

매각목록

부동산 현황

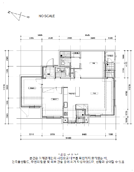
1) 위치 및 주위환경 본건은 서울특별시 동대문구 전농동 소재 지하철 1호선 &quot;청량리역&quot; 남동측 인근에 위치하며, 본건 주위는 아파트, 다세대주택, 근린생활시설 등이 소재하는 지역임. 2) 교통상황 본건까지 차량으로 접근 가능하며, 인근에 지하철 1호선·수인분당선·경의중앙선 &quot;청량리역&quot; 및 노선버스정류장이 소재하여 대중교통 사정은 양호함. 3) 건물의 구조 철근콘크리트구조 (철근)콘크리트지붕 지상21층 건물 내 제11층 제1104호로서, 외벽 : 페인팅마감 및 석재붙임마감 등, 내벽 : 몰탈 위 페인팅 마감 등, 창호 : 새시창호 등임. 4) 이용상태 아파트로 이용중임. 5) 설비내역 승강기설비, 위생설비 및 급·배수설비, 화재설비 등이 되어 있음. 6) 토지의 형상 및 이용상태 인근 도로와 등고평탄한 부정형의 토지로서 아파트 건부지로 이용중 임. 7) 인접 도로상태등 아파트 내부도로를 통해 외부공도와 접함. 8) 토지이용계획 및 제한상태 1. 전농동 690 : 도시지역 , 제2종일반주거지역 , 국토이용용도지구기타(지정제건축선) , 도로(2018-07-26)(접합) , 도로(저촉) , 중로2류(폭 15m~20m)(접합), 가축사육제한구역<가축분뇨의 관리 및 이용에 관한 법률>, 교육환경보호구역(2019-12-27)(상대보호구역)<교육환경 보호에 관한 법률>, 상대보호구역(2014-02-21)<교육환경 보호에 관한 법률>, 상대보호구역(학교환경위생정화구역에 대한 최종 확인은 관할 교육청에 확인이 필요한 사항임)<교육환경 보호에 관한 법률>, 대공방어협조구역(해발134m(지반+건축+옥탑 등))<군사기지 및 군사시설 보호법>, 정비구역<도시 및 주거환경정비법>, 재정비촉진지구<도시재정비 촉진을 위한 특별법>, 과밀억제권역<수도권정비계획법>, 토지거래계약에관한허가구역(대상자: 외국인 등. 용도: 단독 다가구 아파트 연립 다세대. 지정기간: 2025.8.26.~2026.8.25.) 2. 전농동 691 : 도시지역 , 제2종일반주거지역 , 대로3류(폭 25m~30m)(접합), 중로2류(폭 15m~20m)(접합), 가축사육제한구역<가축분뇨의 관리 및 이용에 관한 법률>, 도시기타용도지역지구기타(지정제건축선)<건축법>, 교육환경보호구역(2019-12-27)(상대보호구역)<교육환경 보호에 관한 법률>, 교육환경보호구역(2019-12-27)(상대정화구역)<교육환경 보호에 관한 법률>, 상대보호구역(2014-02-21)<교육환경 보호에 관한 법률>, 상대보호구역(학교환경위생정화구역에 대한 최종 확인은 관할 교육청에 확인이 필요한 사항임)<교육환경 보호에 관한 법률>, 절대보호구역(2014-02-28)<교육환경 보호에 관한 법률>, 대공방어협조구역(해발134m(지반+건축+옥탑 등))<군사기지 및 군사시설 보호법>, 정비구역<도시 및 주거환경정비법>, 재정비촉진지구<도시재정비 촉진을 위한 특별법>, 과밀억제권역<수도권정비계획법>,토지거래계약에관한허가구역(대상자: 외국인 등. 용도: 단독 다가구 아파트 연립 다세대. 지정기간: 2025.8.26.~2026.8.25.) 3. 전농동 692 : 도시지역 , 제2종일반주거지역 , 중로2류(폭 15m~20m)(접합), 가축사육제한구역<가축분뇨의 관리 및 이용에 관한 법률>, 교육환경보호구역(2019-12-27)(상대정화구역)<교육환경 보호에 관한 법률>, 상대보호구역(학교환경위생정화구역에 대한 최종 확인은 관할 교육청에 확인이 필요한 사항임)<교육환경 보호에 관한 법률>, 대공방어협조구역(해발134m(지반+건축+옥탑 등))<군사기지 및 군사시설 보호법>, 정비구역<도시 및 주거환경정비법>, 재정비촉진지구<도시재정비 촉진을 위한 특별법>, 과밀억제권역<수도권정비계획법>, 토지거래계약에관한허가구역(대상자: 외국인 등. 용도: 단독 다가구 아파트 연립 다세대. 지정기간: 2025.8.26.~2026.8.25.)임. 9) 공부와의 차이 없 음. 10) 기타참고사항(임대관례 및 기타) 본건 현장조사시 폐문부재 등으로 건축물현황도, 외부관찰 등을 종합 고려하여 평가하였으므로 경매진행시 참고하기바람. 임대내역은 미상임.

주변 입주 예정

거리 단지명 공급년월 세대 수
※ 해당 자료는 한국부동산원 청약홈 자료에 근거하며, 인근 5km 이내의 물건을 기준으로 산정되었습니다.

임차인

임차인현황

임차인 보증금/차임 전입/확정/배당 대항력
매각물건명세서상 임차인이 존재하지 않습니다.

현황 조사(현황 조사서)

1) 채무자(소유

점유 조사(현황 조사서)

[목록1]1) 채무자(소유자) 변창우를 만나 점유관계 조사함.
1-1) 본 물건 주소지에 거주하는 변창우에게 임차관계 문의하니, 내가 이 주택의 소유주로서 배우자 김정애, 자녀 1명과 같이 거주하고 있다고 하여 변창우 에게 경매안내문 교부.

2) 덧붙인 전입세대확인서 및 주민등록표등본과 같이 채무자(소유자) 변창우의 배우자 김정애 세대가 등재되어 있으니 그 점유관계 등은 별도 확인을 요함.

미납관리비 조사내역 미납관리비 유의사항

확인일자 미납금액 관리소번호 메모

등기

등기부현황

채권합계 2,211,700,000원(6건)
등기일자 권리종류 권리자/채권액 권리
2017-05-31
소유자 변OOOOOOOO OO
단독소유 -
2017-05-31
(을1)
근저당권설정 중OOOOO OO
말소기준 등기 468,000,000원
2024-09-02
(을1-2)
근저당권변경 OO
- 394,700,000원
2019-06-13
(을2)
근저당권설정 중OOOOO OO
- 360,000,000원
2021-03-26
(을4)
근저당권설정 주OOOOOOOOO OO
- 520,000,000원
2021-03-26
(을4-1)
질권 노OOOOOOOOO OO
- 520,000,000원
2021-04-15
(을6)
근저당권설정 주OOOOOOOOO OO
- 247,000,000원
2022-09-20
(을6-1)
질권 노OOOOOOOOO OO
- 130,000,000원
2025-04-04
(갑3)
가압류 주OOOOOOO OO
- 50,000,000원
2025-07-10
(갑4)
가압류 전OOOOOOO OO
- 640,000,000원
2025-09-05
(갑5)
임의경매개시결정
(2025타경13248)
노OOOOOOOOO OO
경매기입 등기 582,013,698원
2026-02-25
(갑6)
임의경매개시결정
(2026타경10374)
중OOOOO OO
경매기입 등기
더보기
※ 신규 발급등기의 분석자료 반영에는 최대 1일까지 소요될수 있습니다.(등기분석,임차인분석,분석노트 등)

시세분석

낙찰가 및 실거래가

낙찰 가격분포

주변 낙찰사례의 가격대와 거래 시점을 그래프로 확인할 수 있어요

전체 0

기타

전문가

관할법원 (입찰장소)

서울북부지방법원 본원

경매7계 : 02-910-3114

서울 도봉구 도봉동 626 주소복사

Q&A

Q. 대법원경매가 무엇인가요?누구나 입찰에 참여할 수 있나요?

경매채무자(빌린 자)가 채무를 갚지 않았을 때 채권자(빌려준 자)의 신청으로 대법원이 채무자의 재산을 대신 매각하는 과정을 말합니다.

법원은 감정인에게 자산을 평가하게 한 후, 최저가를 정하여 그 금액 이상으로 입찰한 입찰자 중 최고가 매수인을 결정합니다.

대법원의 주관하에 국민 모두가 참여할 수 있습니다.

Q. 경매 입찰은 어떻게 하나요?누구나 입찰에 참여할 수 있나요?

1. 입찰하시고자 하는 경매물건을 정하신 후, 입찰하시고자 하는 입찰가를 최저가 이상으로 정합니다.

2. 해당 물건의 매각기일에 직접 관할법원에 방문하셔서 법원내에 비치된 입찰서를 작성하신 후 입찰하시면 됩니다.

TIP! 법원에 가실 때에는 입찰보증금(최저가의 10~30%)과 신분증을 지참하여 방문하세요.

Q. 용어가 너무 어려워서 내용을 이해하기 어려워요누구나 입찰에 참여할 수 있나요?

매각기일
매각기일은 경매 법원이 부동산에 대하여 매각 입찰을 진행하는 날을 말합니다.

유찰
매각 기일에 매수하고자 하는 사람이 없어 매각되지 않아 무효가 되는 것을 유찰이라고 합니다.

최저 매각 가격
최초 경매를 진행할때 감정인이 평가한 가격을 기준으로 책정한 금액이며 입찰자는 최저 매각 가격과 동일하거나 이상의 금액으로 입찰해야 합니다. 매각 기일에 있어 입찰자가 없어 유찰되면 통상 20~30% 저감된 금액이 다음 최저 매각 가격이 됩니다.

매수 보증금
경매 물건을 매수하고자 하는사람은 최저 매각 가격의 10분의 1(다르게 정해질 수 있음)에 해당하는 보증금액을 입찰표와 함께 집행관에게 제출하는 방법으로 제공합니다. 매각 절차가 종결된 후 집행관은 최고가 매수신고인이나 차순위매수신고인 이외의 매수신청인에게는 즉시 매수 보증금을 반환해 줍니다.

더 많은 내용을 알고 싶다면 경매마당 학습하기 코너에 준비된 용어설명을 이용해보세요.

경매정보는 법원자료와 일치하도록 하였으나 권리사항변동, 입력착오 등의 원인으로 사실과 다를 수 있습니다. 이용약관에 의거 면책조건으로 제공됨을 알리며, 경매입찰시 반드시 관련 공부를 재확인하시기 바랍니다.

PC버전으로 보기