알림

알림 내역

알림 신청내역/취소

대법원
물건내역
사건내역
기일내역
송달내역
현황조사
지도
사진보기
문서
매각기일공고문
매각물건명세서
감정평가서
등기부등본
전입세대열람원 M
건축물대장 M
분석
예상배당표 M
수익률분석 M
입찰가분석 M
조회수분석 M
인근지역통계 M
사이트
대법원
국토부 실거래가
토지이음
아실
네이버 단지정보
네이버 매물정보
호갱노노
부동산플래닛
로고 서울북부지방법원 본원 [경매7계] 2026타경10203
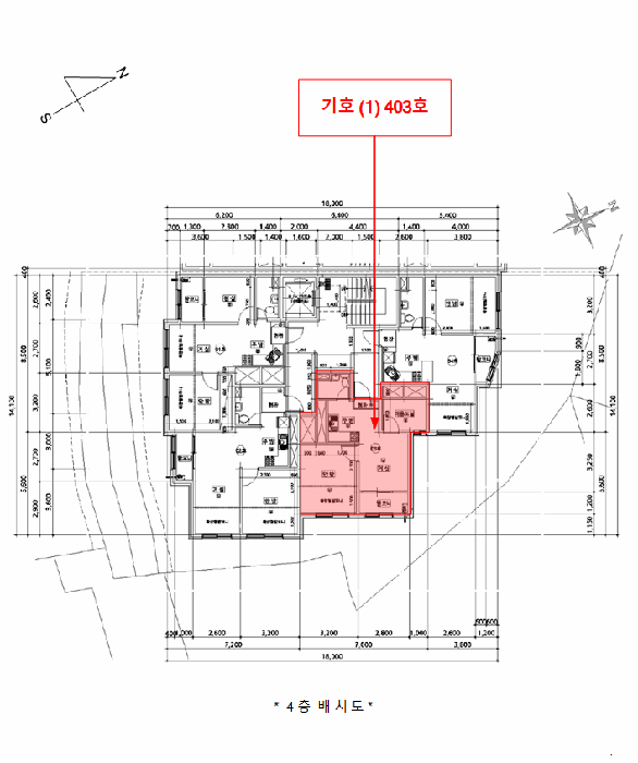
서울특별시 성북구 정릉동 165-22 삼성파크빌8차 가동 제4층 제403호

서울 성북구 정릉동 165-22

주소복사
경매구분 강제경매
용도 단독주택
토지 24.54㎡(7.42평)
건물 29.98㎡(9.07평)
감정가 259,000,000원
최저가 259,000,000원
보증금 25,900,000원 (10%)
청구액 239,000,000원
개시결정 2026년 01월 29일
감정일 감정평가서 분석 중
배당종기 2026년 04월 22일
매각일 2026년 07월 21일
2026타경10203
2026타경10203
2026타경10203
2026타경10203
2026타경10203
2026타경10203
2026타경10203
2026타경10203
2026타경10203
2026타경10203
2026타경10203
2026타경10203
감정가
2억5900만원
2855만5678원/평
최저가
2억5900만원
2855만5678원/평
공고 2026년 07월 21일 입찰 D-72일
신건선순위임차인임차권등기
신건선순위임차인임차권등기
경매구분 강제경매
용도 단독주택
토지 24.54㎡(7.42평)
건물 29.98㎡(9.07평)
감정가 259,000,000원
최저가 259,000,000원
보증금 25,900,000원 (10%)
청구액 239,000,000원
개시결정 2026년 01월 29일
감정일 감정평가서 분석 중
배당종기 2026년 04월 22일
매각일 2026년 07월 21일
공고 2026년 07월 21일 입찰 D-72일

당사자 내역

채무자겸소유자 권OO
채권자 홍OO
교부권자 국OOOOOOOOOOOOOOOOOO
교부권자 광OOOOOOOO
교부권자 서OOOOOOOOOOOOO
교부권자 의OOO
교부권자 파OO
교부권자 은OO
교부권자 서OOO
교부권자 동OOOOOOOOOO
임차권자 홍OO
임차인 홍OO
교부권자 서OOOO
압류권자 부OOOOOOO
압류권자 남OOOOOOOOO
가압류권자 주OOOOOOO
압류권자 안OOOOOOOOOOO
교부권자 경OOOOOOOOOO

기일 내역

2026.07.21
2억5900만원 진행

매각결과+

매각일자 / 결과 응찰자수 최고가 금액/응찰자명 차순위 금액

가장 빠른 경매 정보 플랫폼 경매마당
남들보다 먼저 정보를 선점하세요

간단한 로그인 후 바로 이용 가능합니다

bolt 대법원 보다 빠른 물건 정보
verified 가장 많은 경매 물건 제공
trending_up 월 5회 등기부 무료 열람

현황정보

매각목록

주변 입주 예정

거리 단지명 공급년월 세대 수
※ 해당 자료는 한국부동산원 청약홈 자료에 근거하며, 인근 5km 이내의 물건을 기준으로 산정되었습니다.

임차인

임차인현황

임차인 보증금/차임 전입/확정/배당 대항력
홍유진
(주거 임차권자)
점유부분:
제403호 전부
보증:
239,000,000
차임:
미상
전입: 2020-09-03
확정: 2020-07-08
배당: 2026.4.17.
멤버십

임차인(매각 명세서)

홍유진:경매신청채권자임.

미납관리비 조사내역 미납관리비 유의사항

확인일자 미납금액 관리소번호 메모

등기

등기부현황

채권합계 2,071,000,000원(1건)
등기일자 권리종류 권리자/채권액 권리
2020-09-18
소유자 권OOOOOOOO OO
단독소유 -
2022-03-18
(갑3)
압류 안OOOOO OO
말소기준 등기 -
2022-09-13
(갑4)
가압류 주OOOOOOO OO
- 2,071,000,000원
2024-08-06
(을3)
임차권설정 홍OO OO
- 239,000,000원
2025-03-13
(갑5)
압류 남OOOOO OO
- -
2025-08-12
(갑6)
압류 부OO OO
- -
2026-01-29
(갑7)
강제경매개시결정
(2026타경10203)
홍OO OO
경매기입 등기 239,000,000원
더보기
※ 신규 발급등기의 분석자료 반영에는 최대 1일까지 소요될수 있습니다.(등기분석,임차인분석,분석노트 등)

인수되는 권리/가처분(매각 명세서)

을구 3번 2024. 8. 6.자 주택임차권등기(대항력 있는 임차인으로 배당에서 보증금이 전액 변제되지 아니하면 잔액부분에 대하여 말소되지 아니함)

시세분석

낙찰가 및 실거래가

낙찰 가격분포

주변 낙찰사례의 가격대와 거래 시점을 그래프로 확인할 수 있어요

전체 0

기타

전문가

관할법원 (입찰장소)

서울북부지방법원 본원

경매7계 : 02-910-3114

서울 도봉구 도봉동 626 주소복사

Q&A

Q. 대법원경매가 무엇인가요?누구나 입찰에 참여할 수 있나요?

경매채무자(빌린 자)가 채무를 갚지 않았을 때 채권자(빌려준 자)의 신청으로 대법원이 채무자의 재산을 대신 매각하는 과정을 말합니다.

법원은 감정인에게 자산을 평가하게 한 후, 최저가를 정하여 그 금액 이상으로 입찰한 입찰자 중 최고가 매수인을 결정합니다.

대법원의 주관하에 국민 모두가 참여할 수 있습니다.

Q. 경매 입찰은 어떻게 하나요?누구나 입찰에 참여할 수 있나요?

1. 입찰하시고자 하는 경매물건을 정하신 후, 입찰하시고자 하는 입찰가를 최저가 이상으로 정합니다.

2. 해당 물건의 매각기일에 직접 관할법원에 방문하셔서 법원내에 비치된 입찰서를 작성하신 후 입찰하시면 됩니다.

TIP! 법원에 가실 때에는 입찰보증금(최저가의 10~30%)과 신분증을 지참하여 방문하세요.

Q. 용어가 너무 어려워서 내용을 이해하기 어려워요누구나 입찰에 참여할 수 있나요?

매각기일
매각기일은 경매 법원이 부동산에 대하여 매각 입찰을 진행하는 날을 말합니다.

유찰
매각 기일에 매수하고자 하는 사람이 없어 매각되지 않아 무효가 되는 것을 유찰이라고 합니다.

최저 매각 가격
최초 경매를 진행할때 감정인이 평가한 가격을 기준으로 책정한 금액이며 입찰자는 최저 매각 가격과 동일하거나 이상의 금액으로 입찰해야 합니다. 매각 기일에 있어 입찰자가 없어 유찰되면 통상 20~30% 저감된 금액이 다음 최저 매각 가격이 됩니다.

매수 보증금
경매 물건을 매수하고자 하는사람은 최저 매각 가격의 10분의 1(다르게 정해질 수 있음)에 해당하는 보증금액을 입찰표와 함께 집행관에게 제출하는 방법으로 제공합니다. 매각 절차가 종결된 후 집행관은 최고가 매수신고인이나 차순위매수신고인 이외의 매수신청인에게는 즉시 매수 보증금을 반환해 줍니다.

더 많은 내용을 알고 싶다면 경매마당 학습하기 코너에 준비된 용어설명을 이용해보세요.

경매정보는 법원자료와 일치하도록 하였으나 권리사항변동, 입력착오 등의 원인으로 사실과 다를 수 있습니다. 이용약관에 의거 면책조건으로 제공됨을 알리며, 경매입찰시 반드시 관련 공부를 재확인하시기 바랍니다.

PC버전으로 보기