알림

알림 내역

알림 신청내역/취소

로고 의정부지방법원 고양지원 [경매14계] 2024타경82519
경기도 파주시 법원읍 자운서원로 62-1 외 11 필지 외 1개 동

경기 파주시 법원읍 가야리 24-3

주소복사
경매구분 임의경매
용도 근린주택
토지 12885㎡(3897.7평)
건물 2262.69㎡(684.5평)
감정가 5,629,839,120원
최저가 1,931,035,000원
보증금 193,110,000원 (10%)
청구액 810,943,380원
개시결정 2024년 10월 11일
감정일 2025년 04월 28일
배당종기 2025년 01월 06일
매각일 2026년 01월 22일
2024타경82519
2024타경82519
2024타경82519
2024타경82519
2024타경82519
2024타경82519
2024타경82519
2024타경82519
2024타경82519
2024타경82519
2024타경82519
2024타경82519
2024타경82519
2024타경82519
2024타경82519
2024타경82519
2024타경82519
2024타경82519
2024타경82519
2024타경82519
2024타경82519
2024타경82519
2024타경82519
2024타경82519
2024타경82519
2024타경82519
2024타경82519
2024타경82519
2024타경82519
2024타경82519
2024타경82519
2024타경82519
2024타경82519
2024타경82519
2024타경82519
2024타경82519
2024타경82519
2024타경82519
2024타경82519
2024타경82519
2024타경82519
2024타경82519
2024타경82519
2024타경82519
2024타경82519
2024타경82519
2024타경82519
2024타경82519
2024타경82519
2024타경82519
2024타경82519
2024타경82519
2024타경82519
2024타경82519
2024타경82519
2024타경82519
2024타경82519
2024타경82519
2024타경82519
2024타경82519
2024타경82519
2024타경82519
2024타경82519
감정가
56억2983만9120원
최저가 66%
19억3103만5000원
공고 2026년 01월 22일 입찰 D-69일
유찰 3회농지취득자격증명
유찰 3회농지취득자격증명
경매구분 임의경매
용도 근린주택
토지 12885㎡(3897.7평)
건물 2262.69㎡(684.5평)
감정가 5,629,839,120원
최저가 1,931,035,000원
보증금 193,110,000원 (10%)
청구액 810,943,380원
개시결정 2024년 10월 11일
감정일 2025년 04월 28일
배당종기 2025년 01월 06일
매각일 2026년 01월 22일
공고 2026년 01월 22일 입찰 D-69일

당사자 내역

채무자겸소유자 김OO
채권자 서OOOOOO
교부권자 국OOOOOO
가압류권자 한OO
압류권자 파OO
압류권자 고OOOOO
교부권자 고OOOOOO
근저당권자 케OOOOOOOOOOOOOOOOOOOOOOOOOOOO
배당요구권자 김OO
배당요구권자 김OO
압류권자 국OOOOOOOOOOOOO
배당요구권자 북OOOOOOOOOO
배당요구권자 안OO
지상권자 서OOOOOO
교부권자 파OO
교부권자 국OOOOOOOOOOO
승계인 엠OOOOOOOOOO
압류권자 국OOOOOOOOOOO
가압류권자 라OOOOOOOOOOOOOOOOOOOOOOOOOOO
근저당권자 이OO
근저당권자 김OO
근저당권자 백OO
가압류권자 늘OOOOOOOOOOOO
가압류권자 박OO
가압류권자 김OO
근저당권자 상OOOOOOOO
근저당권자 주OOOOOOOO
임차인 엄OO
임차인 이OO
압류권자 국OOOOOOOOOOOOO

기일 내역

2026.01.22(10:00)
19억3103만5000원 진행
2025.12.11(10:00)
기일변경
2025.11.06(10:00)
27억5862만1000원 유찰
2025.10.02(10:00)
39억4088만7000원 유찰
2025.08.28(10:00)
56억2983만9120원 유찰

물건 비고(공고문)

1. 일괄매각 2. 목록 1, 2. 농지취득자격증명 제출 필요(매각결정기일까지 미제출시 보증금은 반환하지 않음) 3. 제시외 건물(2024타경82519호 감정서상 기호 ㄱ~ㄴ, 2024타경6379호 감정서상 기호ㄱ~ㄹ 매각에 포함) 매각에 포함

물건 비고(매각 명세서)

1. 일괄매각2. 목록 1, 2. 농지취득자격증명 제출 필요(매각결정기일까지 미제출시 보증금은 반환하지 않음)3. 제시외 건물(2024타경82519호 감정서상 기호 ㄱ~ㄴ, 2024타경6379호 감정서상 기호ㄱ~ㄹ 매각에 포함) 매각에 포함

현황 조사(현황 조사서)

1. 목록1 내지 목록2 토지는 답이나, 현황은 평탄화 작업을 한 상태이고 사실상 나대지 상태이며, 바닥에 파쇄석이 깔려져 있음. 2. 목록3 토지는 대지이며, 현황은 나대지 상태임(바닥에 파쇄석이 깔려 있음). 3. 목로4 토지는 대지이나, 현황은 일부는 도로, 일부는 나대지 상태임 4. 목록5 토지는 대지이며, 나대지 상태로 제시외 컨테이너, 물탱크가 소재하고 있고, 바닥에 일부 파쇄석이 깔려져 있음. 5. 목록6 토지는 대지이며, 파손된 미거주 건물과 부속건물, 제시외 컨테이너, 제시외 의자, 탁자 등이 소재하고 있음. 6. 목록7 토지는 대지이며, 목록13 건물의 대지로 이용중이며, 제시외 컨테이너, 천막 수개가 소재하고 있고, 탁자, 의자 등 집기류가 바닥에 방치되어 있음 7. 목록8 토지는 임야이며, 현황은 일부는 임야, 일부는 도로임. 8. 목록9 토지는 대지이며, 현황은 제시외 컨테이너와 천막이 소재하고 있으며, 바닥에 일부 파쇄석이 깔려져 있음. 9. 목록10 토지는 대지ㅣㅇ며, 나대지 상태로 의자,탁자 등 집기류가 방치되어 있음. 10. 목록 13건물은 제1동 일반철골조 기타지붕(파넬슁글마감) 지상1층 일반음식점, 제2동 철근콘크리트조(철근)콘크리트평슬라브지붕 지상2층 제2종근린생활시설 및 단독주택임. 11. 목록1내지 목록10, 목록13 건물의 면적과 인접토지들과의 정확한 경계는 측량 등을 통한 별도의 확인을 요함.

점유 조사(현황 조사서)

[목록1]현장에서 아무도 만나지 못하였으므로, 점유관계 등은 별도의 확인을 요함.
[목록2]현장에서 아무도 만나지 못하였으므로, 점유관계 등은 별도의 확인을 요함.
[목록3]현장에서 아무도 만나지 못하였으므로, 점유관계 등은 별도의 확인을 요함.
[목록4]현장에서 아무도 만나지 못하였으므로, 점유관계 등은 별도의 확인을 요함.
[목록5]현장에서 아무도 만나지 못하였으므로, 점유관계 등은 별도의 확인을 요함.
[목록6]현장에서 아무도 만나지 못하였으므로, 점유관계 등은 별도의 확인을 요함.
[목록7]현장 방문시 아무도 만나지 못하였고, 덧붙인 전입세대확인서, 주민등록표 등본에 임차인으로 조사한 이갑수, 엄호성이 각 등재되어 있으므로, 점유관계 등은 별도의 확인을 요함.(안내문 부착)
[목록8]현장에서 아무도 만나지 못하였으므로, 점유관계 등은 별도의 확인을 요함.
[목록9]현장에서 아무도 만나지 못하였으므로, 점유관계 등은 별도의 확인을 요함.
[목록10]현장에서 아무도 만나지 못하였으므로, 점유관계 등은 별도의 확인을 요함.
[목록13]현장 방문시 아무도 만나지 못하였고, 덧붙인 전입세대확인서, 주민등록표 등본에 임차인으로 조사한 이갑수, 엄호성이 각 등재되어 있으므로, 점유관계 등은 별도의 확인을 요함.(안내문 부착)

매각결과+

매각일자 / 결과 응찰자수 최고가 금액/응찰자명 차순위 금액
부동산
등기
임차인
그 외

부동산

매각목록

부동산 현황

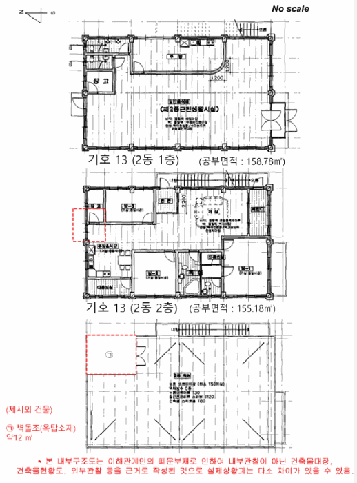
1) 위치 및 주위환경 본건은 경기도 파주시 법원읍 가야리 소재 ""법원여자중학교"" 북동측에 위치하며, 주위는 근린생활시설, 농경지, 임야 등이 소재하는 지역으로 제반 주위환경은 보통임. 2) 교통상황 본건까지 차량 진·출입 가능하며, 인근에 버스정류장이 소재하는 등 대중교통의 편의성은 보통시됨. 3) 형태 및 이용상태 기호1,2,10 신축허가 부지임., 기호3,4,5,6,7,9 일단지의 부정형 토지로서 주상용 건부지로 이용중 임. (기호3,5는 신축허가지에 포함되어 있음.) 기호8 부정형 토지로 부속토지로 이용중임. 4) 인접 도로상태 기호1,2,10 허가지 기준 서측으로 포장도로에 접함, 기호3,4,5,6,7,9 일단의 토지기준으로 서측으로 포장도로와 접함. 기호8 서측으로 포장도로에 접함. 5) 토지이용계획 및 제한상태 기호1 : 자연녹지지역, 가축사육제한구역(전부제한)<가축분뇨의 관리 및 이용에 관한 법률>, 상대보호구역(2015-02-25)(반드시 교육지원청에 재확인 바람(TEL.940-7244))<교육환경 보호에 관한 법률>, 군사기지 및 군사시설기타(45미터위임)<군사기지 및 군사시설 보호법>, 제한보호구역(전방지역:25km)((08.12.30))<군사기지 및 군사시설보호법> 기호2,3,6,7 : 자연녹지지역, 가축사육제한구역(전부제한)<가축분뇨의 관리 및 이용에 관한 법률>, 군사기지 및 군사시설기타(45미터위임)<군사기지 및 군사시설 보호법>, 제한보호구역(전방지역:25km)((08.12.30))<군사기지 및 군사시설보호법> 기호4 : 자연녹지지역, 가축사육제한구역(전부제한)<가축분뇨의 관리 및 이용에 관한 법률>, 군사기지 및 군사시설기타(45미터위임)<군사기지 및 군사시설 보호법>, 제한보호구역(전방지역:25km)((08.12.30))<군사기지 및 군사시설보호법>, 도로구역(2016-12-14)(시도10호선)<도로법> 기호8 : 자연녹지지역, 가축사육제한구역(전부제한)<가축분뇨의 관리 및 이용에 관한 법률>, 군사기지 및 군사시설기타(45미터위임)<군사기지 및 군사시설 보호법>, 제한보호구역(전방지역:25km)((08.12.30))<군사기지 및 군사시설보호법>, 도로구역(2016-12-14)(시도10호선)<도로법>, 준보전산지<산지관리법> 기호5,9,10 : 도시지역, 자연녹지지역, 가축사육제한구역(전부제한)<가축분뇨의 관리 및 이용에 관한 법률>, 군사기지 및 군사시설기타(45미터위임)<군사기지 및 군사시설 보호법>, 제한보호구역(전방지역:25km)((08.12.30))<군사기지 및 군사시설보호법> 임. 6) 제시목록 외의 물건 -. 7) 공부와의 차이 -. 8) 기타참고사항(임대관례 및 기타) 미상임. 1) 건물의 구조 기호13 - 제1동 : 일반철골조 기타지붕(판넬슁글마감) 1층건 으로서 사용승인일은 2003.08.22. 임. 외벽 : 사이딩판넬 마감 등. 내벽 : -. 창호 : -. - 제2동 : 철근콘크리트조 (철근)콘크리트평슬라브지붕 2층건 으로서 사용승인일은 2003.08.22. 임. 외벽 : 적벽돌쌓기 마감 등. 내벽 : -. 창호 : 샷시 창호임. 2) 이용상태 1동 : 공부상 근린생활시설로 내부 화재로 추정되는 흔적이 보이며 현재 방치되어 있음. 2동 : 근린생활시설 및 단독주택으로 이용중임. 3) 설비내역 본건은 기본적인 위생설비, 급배수설비 등을 갖춘 것으로 추정됨. 4) 부합물 및 종물 제시외 건물 (㉠,㉡) 이 소재함. 5) 공부와의 차이 -. 6) 기타참고사항(임대관례 및 기타) 미상임.

감정평가

주변 입주 예정

거리 단지명 공급년월 세대 수
※ 해당 자료는 한국부동산원 청약홈 자료에 근거하며, 인근 5km 이내의 물건을 기준으로 산정되었습니다.

등기

등기부현황

채권합계 4,115,630,000원(6건)
등기일자 권리종류 권리자/채권액 권리
2020-07-30
소유자 김민주 (소유자)
단독소유 -
2021-05-06
(을6)
근저당권설정 수협은행 소멸
말소기준 등기 2,541,600,000원
2021-08-10
(을9)
근저당권설정 서일새마을금고 소멸
- 1,080,000,000원
2025-02-25
(을9-1)
근저당권이전 엠씨아이대부주식회사 소멸
- -
2025-02-25
(을9-2)
근질권 느티나무제사차유한회사 소멸
- 1,080,000,000원
2021-10-13
(갑10)
가압류 파이릭스건설주식회사 소멸
- 279,039,000원
2024-07-16
(을10)
근저당권설정 백주봉 소멸
- 138,000,000원
2024-10-02
(을11)
근저당권설정 이영석 소멸
- 60,000,000원
2024-10-14
(갑22)
임의경매개시결정
(2024타경82519)
서일새마을금고 소멸
경매기입 등기 810,943,380원
2024-11-20
(갑23)
압류 국민건강보험공단 소멸
- -
2024-12-05
(갑24)
강제경매개시결정
(2024타경86498)
북부종합건설주식회사 소멸
경매기입 등기
2024-12-17
(갑25)
임의경매개시결정
(2024타경9330)
수협은행 소멸
경매기입 등기
2024-12-27
(갑26)
압류 파주시 소멸
- -
2025-03-21
(갑27)
가압류 한정환 소멸
- 17,000,000원
더보기 더보기
※ 신규 발급등기의 분석자료 반영에는 최대 1일까지 소요될수 있습니다.(등기분석,임차인분석,분석노트 등)

임차인

매각물건 명세서

구분 법원 사건번호 작성일자 매각명세서
1 고양지원 2024타경82519[1] 2025. 8. 13.
구분 법원/
사건번호
작성일자 매각명세서
1 고양지원
2024타경82519[1]
2025. 8. 13.

물건 비고(매각 명세서)

1. 일괄매각2. 목록 1, 2. 농지취득자격증명 제출 필요(매각결정기일까지 미제출시 보증금은 반환하지 않음)3. 제시외 건물(2024타경82519호 감정서상 기호 ㄱ~ㄴ, 2024타경6379호 감정서상 기호ㄱ~ㄹ 매각에 포함) 매각에 포함

임차인현황

임차인 보증금/차임 전입/확정/배당 대항력
[현황조사]
엄호성
(주거 임차인)
점유부분:
미상
보증:
-
차임:
-
전입: 2022-11-30
확정: -
배당: -
없음
[현황조사]
이갑수
(주거 임차인)
점유부분:
미상
보증:
-
차임:
-
전입: 2022-05-30
확정: -
배당: -
없음

현황 조사서

조사일시

2024년10월24일13시35분

부동산의 현황

1. 목록1 내지 목록2 토지는 답이나, 현황은 평탄화 작업을 한 상태이고 사실상 나대지 상태이며, 바닥에 파쇄석이 깔려져 있음. 2. 목록3 토지는 대지이며, 현황은 나대지 상태임(바닥에 파쇄석이 깔려 있음). 3. 목로4 토지는 대지이나, 현황은 일부는 도로, 일부는 나대지 상태임 4. 목록5 토지는 대지이며, 나대지 상태로 제시외 컨테이너, 물탱크가 소재하고 있고, 바닥에 일부 파쇄석이 깔려져 있음. 5. 목록6 토지는 대지이며, 파손된 미거주 건물과 부속건물, 제시외 컨테이너, 제시외 의자, 탁자 등이 소재하고 있음. 6. 목록7 토지는 대지이며, 목록13 건물의 대지로 이용중이며, 제시외 컨테이너, 천막 수개가 소재하고 있고, 탁자, 의자 등 집기류가 바닥에 방치되어 있음 7. 목록8 토지는 임야이며, 현황은 일부는 임야, 일부는 도로임. 8. 목록9 토지는 대지이며, 현황은 제시외 컨테이너와 천막이 소재하고 있으며, 바닥에 일부 파쇄석이 깔려져 있음. 9. 목록10 토지는 대지ㅣㅇ며, 나대지 상태로 의자,탁자 등 집기류가 방치되어 있음. 10. 목록 13건물은 제1동 일반철골조 기타지붕(파넬슁글마감) 지상1층 일반음식점, 제2동 철근콘크리트조(철근)콘크리트평슬라브지붕 지상2층 제2종근린생활시설 및 단독주택임. 11. 목록1내지 목록10, 목록13 건물의 면적과 인접토지들과의 정확한 경계는 측량 등을 통한 별도의 확인을 요함.

점유 조사

[목록1]현장에서 아무도 만나지 못하였으므로, 점유관계 등은 별도의 확인을 요함.
[목록2]현장에서 아무도 만나지 못하였으므로, 점유관계 등은 별도의 확인을 요함.
[목록3]현장에서 아무도 만나지 못하였으므로, 점유관계 등은 별도의 확인을 요함.
[목록4]현장에서 아무도 만나지 못하였으므로, 점유관계 등은 별도의 확인을 요함.
[목록5]현장에서 아무도 만나지 못하였으므로, 점유관계 등은 별도의 확인을 요함.
[목록6]현장에서 아무도 만나지 못하였으므로, 점유관계 등은 별도의 확인을 요함.
[목록7]현장 방문시 아무도 만나지 못하였고, 덧붙인 전입세대확인서, 주민등록표 등본에 임차인으로 조사한 이갑수, 엄호성이 각 등재되어 있으므로, 점유관계 등은 별도의 확인을 요함.(안내문 부착)
[목록8]현장에서 아무도 만나지 못하였으므로, 점유관계 등은 별도의 확인을 요함.
[목록9]현장에서 아무도 만나지 못하였으므로, 점유관계 등은 별도의 확인을 요함.
[목록10]현장에서 아무도 만나지 못하였으므로, 점유관계 등은 별도의 확인을 요함.
[목록13]현장 방문시 아무도 만나지 못하였고, 덧붙인 전입세대확인서, 주민등록표 등본에 임차인으로 조사한 이갑수, 엄호성이 각 등재되어 있으므로, 점유관계 등은 별도의 확인을 요함.(안내문 부착)

1
소재지 경기도 파주시 법원읍 가야리 24-3
점유인 이갑수(임차인)
점유부분 미상(주거)
점유기간 미상
보증금/차임 미상/미상
전입/확정일자 2022.05.30/미상
2
소재지 경기도 파주시 법원읍 가야리 24-3
점유인 엄호성(임차인)
점유부분 미상(주거)
점유기간 미상
보증금/차임 미상/미상
전입/확정일자 2022.11.30/미상

미납관리비 조사내역

확인일자 미납금액 관리소번호 메모

※ 해당 정보는 참고용으로 제공되며 입찰 전 반드시 관리사무소를 통해 직접 확인하시기 바랍니다.

시세

전문가

그외

관할법원 관할법원 (입찰장소)

의정부지방법원 고양지원

경매14계 : 031-920-6114

경기 고양시 일산동구 장항동 885-1 주소복사

Q&A Q&A

Q. 대법원경매가 무엇인가요?누구나 입찰에 참여할 수 있나요?

경매채무자(빌린 자)가 채무를 갚지 않았을 때 채권자(빌려준 자)의 신청으로 대법원이 채무자의 재산을 대신 매각하는 과정을 말합니다.

법원은 감정인에게 자산을 평가하게 한 후, 최저가를 정하여 그 금액 이상으로 입찰한 입찰자 중 최고가 매수인을 결정합니다.

대법원의 주관하에 국민 모두가 참여할 수 있습니다.

Q. 경매 입찰은 어떻게 하나요?누구나 입찰에 참여할 수 있나요?

1. 입찰하시고자 하는 경매물건을 정하신 후, 입찰하시고자 하는 입찰가를 최저가 이상으로 정합니다.

2. 해당 물건의 매각기일에 직접 관할법원에 방문하셔서 법원내에 비치된 입찰서를 작성하신 후 입찰하시면 됩니다.

TIP! 법원에 가실 때에는 입찰보증금(최저가의 10~30%)과 신분증을 지참하여 방문하세요.

Q. 용어가 너무 어려워서 내용을 이해하기 어려워요누구나 입찰에 참여할 수 있나요?

매각기일
매각기일은 경매 법원이 부동산에 대하여 매각 입찰을 진행하는 날을 말합니다.

유찰
매각 기일에 매수하고자 하는 사람이 없어 매각되지 않아 무효가 되는 것을 유찰이라고 합니다.

최저 매각 가격
최초 경매를 진행할때 감정인이 평가한 가격을 기준으로 책정한 금액이며 입찰자는 최저 매각 가격과 동일하거나 이상의 금액으로 입찰해야 합니다. 매각 기일에 있어 입찰자가 없어 유찰되면 통상 20~30% 저감된 금액이 다음 최저 매각 가격이 됩니다.

매수 보증금
경매 물건을 매수하고자 하는사람은 최저 매각 가격의 10분의 1(다르게 정해질 수 있음)에 해당하는 보증금액을 입찰표와 함께 집행관에게 제출하는 방법으로 제공합니다. 매각 절차가 종결된 후 집행관은 최고가 매수신고인이나 차순위매수신고인 이외의 매수신청인에게는 즉시 매수 보증금을 반환해 줍니다.

더 많은 내용을 알고 싶다면 경매마당 학습하기 코너에 준비된 용어설명을 이용해보세요.

경매정보는 법원자료와 일치하도록 하였으나 권리사항변동, 입력착오 등의 원인으로 사실과 다를 수 있습니다. 이용약관에 의거 면책조건으로 제공됨을 알리며, 경매입찰시 반드시 관련 공부를 재확인하시기 바랍니다.

PC버전으로 보기