알림

알림 내역

알림 신청내역/취소

대법원
물건내역
사건내역
기일내역
송달내역
현황조사
지도
사진보기
문서
매각기일공고문
매각물건명세서
감정평가서 M
등기부등본
전입세대열람원 M
건축물대장 M
분석
예상배당표 M
수익률분석 M
입찰가분석 M
조회수분석 M
인근지역통계 M
사이트
대법원
국토부 실거래가
토지이음
아실
네이버 단지정보
네이버 매물정보
호갱노노
부동산플래닛
로고 인천지방법원 본원 [경매15계] 2023타경551168
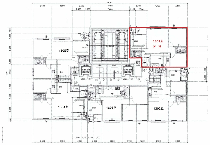
인천광역시 부평구 부흥북로96번길 20-9, 13층1301호 (부평동,마이팰리스)

인천 부평구 부평동 118-33

주소복사
경매구분 강제경매
용도 오피스텔(사무)
토지 9.68㎡(2.93평)
건물 70.77㎡(21.41평)
감정가 235,000,000원
최저가 164,500,000원
보증금 16,450,000원 (10%)
청구액 264,397,850원
개시결정 2023년 12월 13일
감정일 2023년 12월 29일
배당종기 2024년 03월 11일
매각일 2025년 10월 30일
2023타경551168
2023타경551168
2023타경551168
2023타경551168
2023타경551168
2023타경551168
2023타경551168
2023타경551168
2023타경551168
2023타경551168
2023타경551168
감정가
2억3500만원
1097만6179원/평
낙찰가 22%
1억8396만9872원
배당종결 2025년 10월 30일
유찰 9회선순위임차인임차권등기대항력포기
유찰 9회선순위임차인임차권등기대항력포기
경매구분 강제경매
용도 오피스텔(사무)
토지 9.68㎡(2.93평)
건물 70.77㎡(21.41평)
감정가 235,000,000원
최저가 164,500,000원
보증금 16,450,000원 (10%)
청구액 264,397,850원
개시결정 2023년 12월 13일
감정일 2023년 12월 29일
배당종기 2024년 03월 11일
매각일 2025년 10월 30일
배당종결 2025년 10월 30일

당사자 내역

채무자겸소유자 김OO
채권자 주OOOOOOO
가압류권자 주OOOOOOO
교부권자 강OOOO
임차권자 오OO
교부권자 부OOOO
교부권자 국OOOOOOOOOOOO
교부권자 서OOOO
교부권자 용OOOO
교부권자 인OOOOOOOO
교부권자 고OOOOOO
교부권자 경OOOOOO
임차권자 주OOOOOOOOOOOOOOOO
배당요구권자 주OOOOOOO

기일 내역

2025.12.22(14:30)
진행
2025.11.06(14:00)
최고가매각허가결정
2025.10.30(10:00)
1억8396만9872원 매각
1억6450만원 최저가
2025.09.12(10:00)
2억3500만원 유찰
2025.08.11(10:00)
1935만2000원 유찰
2025.07.10(10:00)
2764만7000원 유찰
2025.06.09(10:00)
3949만6000원 유찰
2025.05.01(10:00)
5642만3000원 유찰
2025.02.26(10:00)
8060만5000원 유찰
2025.01.10(10:00)
1억1515만원 유찰
2024.11.29(10:00)
1억6450만원 유찰
2024.10.30(10:00)
2억3500만원 유찰

매각공고

물건 비고(공고문)

오피스텔로 이용중

임차인(매각 명세서)

오대석: 주택임차권등기권자로서 주택임차권등기일은 2022.07.28.임 주택도시보증공사: 임차인 오대석의 임차보증금반환채권 양수인으로서, 보증금 전액을 배당받지 못하더라도 잔존 임차보증금반환채권을 포기하고 주택임차권등기 말소에 동의한다는 취지의 확약서를 제출함

인수되는 권리/가처분(매각 명세서)

을구 순위 3번 주택임차권등기(다만 주택도시보증공사의 말소동의 확약서가 제출됨)

물건 비고(매각 명세서)

오피스텔로 이용중

점유 조사(현황 조사서)

[목록1]- 본건 현황조사차 현장에 임한 바, 폐문부재로 이해관계인을 만날 수 없어 상세한 점유 및 임대차관계를 알 수 없고, 전입세대열람내역상에도 전입세대가 등재되어 있지 않으니 그 점유관계 등은 별도의 확인을 요함.
- 세대출입문에 임차인의 권리신고방법 등이 기재된 `안내문`을 부착해 놓았음
- 본건 주소지내 전입세대가 없다는 전입세대 열람내역서, 외국인체류확인서 첨부.

매각결과+

매각일자 / 결과 응찰자수 최고가 금액/응찰자명 차순위 금액

가장 빠른 경매 정보 플랫폼 경매마당
남들보다 먼저 정보를 선점하세요

간단한 로그인 후 바로 이용 가능합니다

bolt 대법원 보다 빠른 물건 정보
verified 가장 많은 경매 물건 제공
trending_up 월 5회 등기부 무료 열람

현황정보

매각목록

부동산 현황

1) 위치 및 주위환경 본건은 인천광역시 부평구 부평동 소재 "부평오거리" 북동측 인근에 위치하고 부근은 다세대주택,단독주택,오피스텔,주상복합건물,근린생활시설 등이 소재하고 있는 지역임. 2) 교통상황 본건까지 제반차량의 진출입이 용이하고 인근에 노선버스정류장이 소재하고 있어 제반교통사정은 보통시 됨. 3) 건물의 구조 2017년 8월 21일 사용승인을 받은 철근콘크리트구조 평스래브지붕 14층건중 제13층 제1301호로 외벽:석재붙임 및 페인팅마감등 내벽:벽지 및 일부타일마감등 창호:샤시창호등 4) 이용상태 오피스텔로 이용되고 있음. 5) 설비내역 위생설비,상하수도설비,승강기,주차장설비등 되어있음. 6) 토지의 형상 및 이용상태 1필지 장방형의 토지로 업무시설의 건부지로 이용되고 있음. 7) 인접 도로상태등 북측,서측,남측으로 포장도로와 접하고 있음. 8) 토지이용계획 및 제한상태 일반상업지역,방화지구,가로구역별 최고높이 제한지역<건축법>,상대보호구역<교육환경 보호에 관한 법률>,과밀억제권역<수도권정비계획법>. 9) 공부와의 차이 해당사항없음. 10) 기타참고사항(임대관례 및 기타) 가.본건 현장방문하였으나 거주인 등 이해관계인의 부재관계로 내부구조 등은 공부 및 인근 유사물건의 평가전례 등을 참고하여 일반적인 사양을 기준으로 평가하였으며 임대여부는 파악하지 못하였는 바 경매진행시 참고바랍니다. 나.본건 등기사항전부증명서상에 아래와 같이 임차권등기명령이 등재되어있음. 2022카임440 임차보증금: 234,000,000원 범 위: 제13층 제1301호 70.77제곱미터 전부 임대차계약일자: 2020.05.20 주민등록일자: 2020.05.29 점유개시일자: 2020.06.26 확정일자: 2020.05.29 임차권자: 오대석(880929-*******), 인천 부평구 부흥북로96번길 20-9,1301호

주변 입주 예정

거리 단지명 공급년월 세대 수
※ 해당 자료는 한국부동산원 청약홈 자료에 근거하며, 인근 5km 이내의 물건을 기준으로 산정되었습니다.

등기

등기부현황

채권합계 4,510,000,000원(1건)
등기일자 권리종류 권리자/채권액 권리
2020-07-10
소유자 김OOOOOOOO OO
단독소유 -
2022-02-04
(갑4)
가압류 주OOOOOOO OO
말소기준 등기 4,510,000,000원
2022-07-28
(을3)
임차권설정 오OO OO
- 234,000,000원
2023-12-13
(갑5)
강제경매개시결정
(2023타경551168)
주OOOOOOO OO
경매기입 등기 264,397,850원
더보기
※ 신규 발급등기의 분석자료 반영에는 최대 1일까지 소요될수 있습니다.(등기분석,임차인분석,분석노트 등)

임차인

매각물건 명세서

구분 법원 사건번호 작성일자 매각명세서
1 인천지법 2023타경551168[1] 2025. 8. 25.
2 인천지법 2023타경551168[1] 2025. 4. 17.
3 인천지법 2023타경551168[1] 2024.10.16
4 인천지법 2023타경551168[1] 작성일자 미확인
구분 법원/
사건번호
작성일자 매각명세서
1 인천지법
2023타경551168[1]
2025. 8. 25.
2 인천지법
2023타경551168[1]
2025. 4. 17.
3 인천지법
2023타경551168[1]
2024.10.16
4 인천지법
2023타경551168[1]
작성일자 미확인

임차인(매각 명세서)

오대석: 주택임차권등기권자로서 주택임차권등기일은 2022.07.28.임 주택도시보증공사: 임차인 오대석의 임차보증금반환채권 양수인으로서, 보증금 전액을 배당받지 못하더라도 잔존 임차보증금반환채권을 포기하고 주택임차권등기 말소에 동의한다는 취지의 확약서를 제출함

인수되는 권리/가처분(매각 명세서)

을구 순위 3번 주택임차권등기(다만 주택도시보증공사의 말소동의 확약서가 제출됨)

물건 비고(매각 명세서)

오피스텔로 이용중

임차인현황

임차인 보증금/차임 전입/확정/배당 대항력
오OO
(주거 임차권자)
점유부분:
전부
보증:
234,000,000
차임:
-
전입: 2020-05-29
확정: 2020-05-29
배당: -
멤버십
주OOOOOOOOOOOOOOOO
(주거 임차인)
점유부분:
전부
보증:
234,000,000
차임:
-
전입: 2020-05-29
확정: 2020-05-29
배당: 2024.3.6.
멤버십

현황 조사서

조사일시

2023년12월22일10시00분 / 2023년12월26일13시20분

부동산의 현황

-

점유 조사

[목록1]- 본건 현황조사차 현장에 임한 바, 폐문부재로 이해관계인을 만날 수 없어 상세한 점유 및 임대차관계를 알 수 없고, 전입세대열람내역상에도 전입세대가 등재되어 있지 않으니 그 점유관계 등은 별도의 확인을 요함.
- 세대출입문에 임차인의 권리신고방법 등이 기재된 `안내문`을 부착해 놓았음
- 본건 주소지내 전입세대가 없다는 전입세대 열람내역서, 외국인체류확인서 첨부.

미납관리비 조사내역

확인일자 미납금액 관리소번호 메모

※ 해당 정보는 참고용으로 제공되며 입찰 전 반드시 관리사무소를 통해 직접 확인하시기 바랍니다.

시세분석

인근 낙찰사례

기타

전문가

관할법원 (입찰장소)

인천지방법원 본원

경매15계 : 032-860-1113

인천 미추홀구 학익동 278-2 주소복사

Q&A

Q. 대법원경매가 무엇인가요?누구나 입찰에 참여할 수 있나요?

경매채무자(빌린 자)가 채무를 갚지 않았을 때 채권자(빌려준 자)의 신청으로 대법원이 채무자의 재산을 대신 매각하는 과정을 말합니다.

법원은 감정인에게 자산을 평가하게 한 후, 최저가를 정하여 그 금액 이상으로 입찰한 입찰자 중 최고가 매수인을 결정합니다.

대법원의 주관하에 국민 모두가 참여할 수 있습니다.

Q. 경매 입찰은 어떻게 하나요?누구나 입찰에 참여할 수 있나요?

1. 입찰하시고자 하는 경매물건을 정하신 후, 입찰하시고자 하는 입찰가를 최저가 이상으로 정합니다.

2. 해당 물건의 매각기일에 직접 관할법원에 방문하셔서 법원내에 비치된 입찰서를 작성하신 후 입찰하시면 됩니다.

TIP! 법원에 가실 때에는 입찰보증금(최저가의 10~30%)과 신분증을 지참하여 방문하세요.

Q. 용어가 너무 어려워서 내용을 이해하기 어려워요누구나 입찰에 참여할 수 있나요?

매각기일
매각기일은 경매 법원이 부동산에 대하여 매각 입찰을 진행하는 날을 말합니다.

유찰
매각 기일에 매수하고자 하는 사람이 없어 매각되지 않아 무효가 되는 것을 유찰이라고 합니다.

최저 매각 가격
최초 경매를 진행할때 감정인이 평가한 가격을 기준으로 책정한 금액이며 입찰자는 최저 매각 가격과 동일하거나 이상의 금액으로 입찰해야 합니다. 매각 기일에 있어 입찰자가 없어 유찰되면 통상 20~30% 저감된 금액이 다음 최저 매각 가격이 됩니다.

매수 보증금
경매 물건을 매수하고자 하는사람은 최저 매각 가격의 10분의 1(다르게 정해질 수 있음)에 해당하는 보증금액을 입찰표와 함께 집행관에게 제출하는 방법으로 제공합니다. 매각 절차가 종결된 후 집행관은 최고가 매수신고인이나 차순위매수신고인 이외의 매수신청인에게는 즉시 매수 보증금을 반환해 줍니다.

더 많은 내용을 알고 싶다면 경매마당 학습하기 코너에 준비된 용어설명을 이용해보세요.

경매정보는 법원자료와 일치하도록 하였으나 권리사항변동, 입력착오 등의 원인으로 사실과 다를 수 있습니다. 이용약관에 의거 면책조건으로 제공됨을 알리며, 경매입찰시 반드시 관련 공부를 재확인하시기 바랍니다.

PC버전으로 보기