알림

알림 내역

알림 신청내역/취소

로고 인천지방법원 부천지원 [경매6계] 2022타경41285
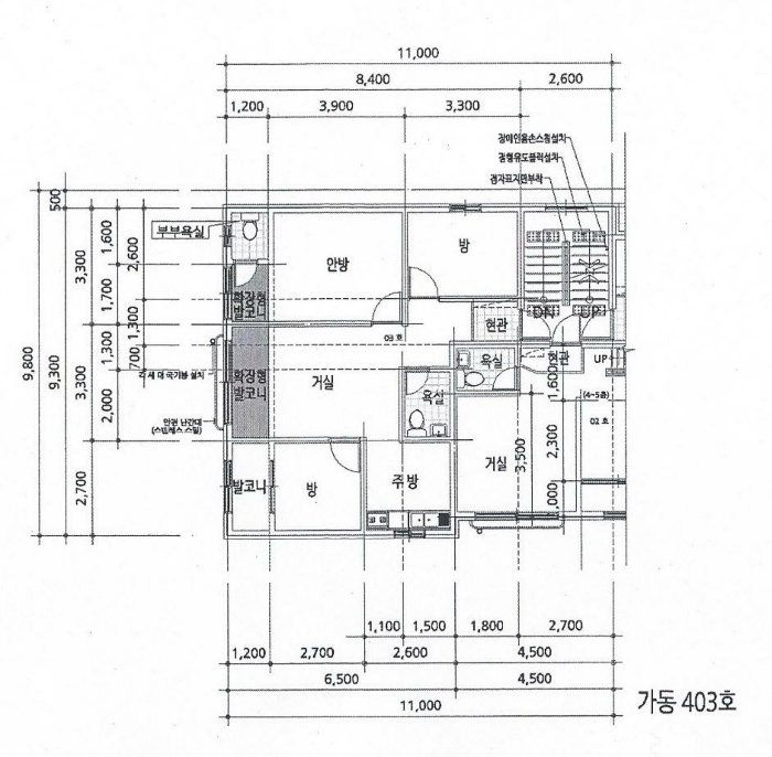
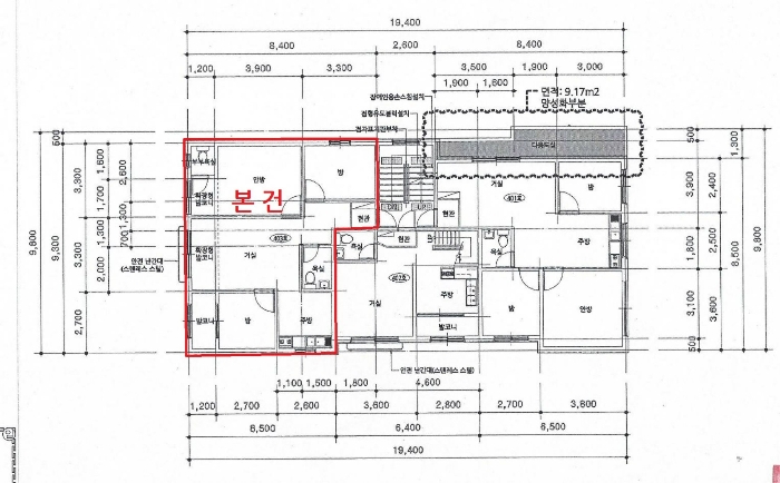
경기도 부천시 지봉로155번길 10, 가동 4층403호 (역곡동,예은하이츠빌)

경기 부천시 원미구 역곡동 226-3

주소복사
경매구분 강제경매
용도 다세대
토지 32.2㎡(9.7평)
건물 58.5㎡(17.7평)
감정가 225,000,000원
최저가 157,500,000원
보증금 15,750,000원 (10%)
청구액 14,391,585원
개시결정 2022년 10월 14일
감정일 2022년 10월 18일
배당종기 2022년 12월 30일
매각일 2023년 06월 13일
2022타경41285
2022타경41285
2022타경41285
2022타경41285
2022타경41285
2022타경41285
2022타경41285
2022타경41285
2022타경41285
2022타경41285
2022타경41285
2022타경41285
2022타경41285
2022타경41285
2022타경41285
2022타경41285
감정가
2억2500만원
최저가 30%
1억5750만원
기각 2023년 06월 13일
유찰 1회선순위임차인
유찰 1회선순위임차인
경매구분 강제경매
용도 다세대
토지 32.2㎡(9.7평)
건물 58.5㎡(17.7평)
감정가 225,000,000원
최저가 157,500,000원
보증금 15,750,000원 (10%)
청구액 14,391,585원
개시결정 2022년 10월 14일
감정일 2022년 10월 18일
배당종기 2022년 12월 30일
매각일 2023년 06월 13일
기각 2023년 06월 13일

당사자 내역

채무자겸소유자 김OO
채권자 엠OOOOOOOOOO
임차인 박OO
임차인 주OOOOOOO
교부권자 부OO
교부권자 부OOOOOOOO
교부권자 국OOOOOOOOOOOOOO
임차인 김OO

기일 내역

기각
2023.06.13
1억5750만원 진행
2023.05.02
2억2500만원 유찰

임차인(매각 명세서)

<비고>
김민수:임대차보증금반환채권 195,000,000원을 주택도시보증공사에 양도하였으며, 2022. 12. 13. 주택도시보증공사가 임차인
권리승계, 권리신고 및 배당요구서를 제출함.

점유 조사(현황 조사서)

[목록1]현장에 임하였으나 아무도 만나지 못하여 점유관계 미상임. 별도의 확인이 필요함. 덧붙임 주민등록표등본에는 소유자 아닌 세대주 박은숙 세대가 등재되어 있음. 위 사람을 덧붙임 등본에 의해 일응 임차인으로 기재함. 안내문을 현관문에 끼워 두었음.

매각결과+

매각일자 / 결과 응찰자수 최고가 금액/응찰자명 차순위 금액
부동산
등기
임차인
그 외

부동산

매각목록

부동산 현황

1.구분건물감정평가요항표 1) 위치 및 주위환경 본건은 경기도 부천시 소재 "동곡초등학교" 서측 인근에 위치하며, 주위는 다세대주택,아파트,근린생활시설 등이 혼재된 주거지역으로서 주위환경은 보통시됨. 2) 교통상황 본건 소재 토지까지 제반 차량의 접근이 가능하며, 인근에 시내버스 정류장이 소재하여 대중교통 상황은 무난함. 3) 건물의 구조 철근콘크리트구조 (철근)콘크리트지붕 5층 공동주택(다세대주택) 내의 4층 403호로서,외벽 : 드라이비트 마감.내벽 : 벽지도배 및 일부 타일 마감.창호 : 하이샷시 창호임.[사용승인일:2008.07.08] 4) 이용상태 다세대주택으로 이용중임. 5) 설비내역 위생 및 급 배수설비, 도시가스설비 등 6) 토지의 형상 및 이용상태 인접토지와 등고 평탄한 부정형의 평지로서 본건 다세대주택이 소재하는 건물의 건부지로 이용되고 있음. 7) 인접 도로상태등 본건 소재 토지의 서측으로 아스팔트 공도와 접함. 8) 토지이용계획 및 제한상태 제2종일반주거지역,소로2류(폭 8M-10M)(접함),상대보호구역<교육환경 보호에 관한 법률>,과밀억제권역<수도권 정비계획법>임. 9) 공부와의 차이 없음. 10) 기타참고사항(임대관례 및 기타) 임대관계 미상임.

감정평가

주변 입주 예정

거리 단지명 공급년월 세대 수
※ 해당 자료는 한국부동산원 청약홈 자료에 근거하며, 인근 5km 이내의 물건을 기준으로 산정되었습니다.

등기

등기부현황

채권합계 -
등기일자 권리종류 권리자/채권액 권리
2022-10-14
(갑8)
강제경매개시결정
(2022타경41285)
엠메이드대부유한회사 멤버십
말소기준
경매기입 등기
14,391,585원
※ 신규 발급등기의 분석자료 반영에는 최대 1일까지 소요될수 있습니다.(등기분석,임차인분석,분석노트 등)

임차인

매각물건 명세서

구분 법원 사건번호 작성일자 매각명세서
1 부천지원 2022타경41285[1] 2023.03.21
구분 법원/
사건번호
작성일자 매각명세서
1 부천지원
2022타경41285[1]
2023.03.21

임차인(매각 명세서)

<비고>
김민수:임대차보증금반환채권 195,000,000원을 주택도시보증공사에 양도하였으며, 2022. 12. 13. 주택도시보증공사가 임차인
권리승계, 권리신고 및 배당요구서를 제출함.

임차인현황

임차인 보증금/차임 전입/확정/배당 대항력
김민수
(주거임차인)
점유부분:
전부
보증:
195,000,000
차임:
-
전입: 2021-11-25
확정: 2021-10-25
배당: 2022-12-22
멤버십
[현황조사]
박은숙
(주거임차인)
점유부분:
미상
보증:
-
차임:
-
전입: 2021-11-25
확정: -
배당: -
멤버십
주택도 시보증 공사
(주거임차인)
점유부분:
전부
보증:
195,000,000
차임:
-
전입: 2021-11-25
확정: 2021-10-25
배당: 2022-12-13
멤버십

현황 조사서

조사일시

2022년10월20일14시59분 / 2022년10월24일10시20분

부동산의 현황

-

점유 조사

[목록1]현장에 임하였으나 아무도 만나지 못하여 점유관계 미상임. 별도의 확인이 필요함. 덧붙임 주민등록표등본에는 소유자 아닌 세대주 박은숙 세대가 등재되어 있음. 위 사람을 덧붙임 등본에 의해 일응 임차인으로 기재함. 안내문을 현관문에 끼워 두었음.

1
소재지 경기도부천시지봉로155번길10,가동4층403호(역곡동,예은하이츠빌)
점유인 박은숙(임차인)
점유부분 미상(주거)
점유기간 미상
보증금/차임 미상/미상
전입/확정일자 2021.11.25/미상

미납관리비 조사내역

확인일자 미납금액 관리소번호 메모

※ 해당 정보는 참고용으로 제공되며 입찰 전 반드시 관리사무소를 통해 직접 확인하시기 바랍니다.

시세

전문가

그외

관할법원 관할법원 (입찰장소)

인천지방법원 부천지원

경매6계 : 032-320-1114

경기 부천시 상동 445-1 주소복사

Q&A Q&A

Q. 대법원경매가 무엇인가요?누구나 입찰에 참여할 수 있나요?

경매채무자(빌린 자)가 채무를 갚지 않았을 때 채권자(빌려준 자)의 신청으로 대법원이 채무자의 재산을 대신 매각하는 과정을 말합니다.

법원은 감정인에게 자산을 평가하게 한 후, 최저가를 정하여 그 금액 이상으로 입찰한 입찰자 중 최고가 매수인을 결정합니다.

대법원의 주관하에 국민 모두가 참여할 수 있습니다.

Q. 경매 입찰은 어떻게 하나요?누구나 입찰에 참여할 수 있나요?

1. 입찰하시고자 하는 경매물건을 정하신 후, 입찰하시고자 하는 입찰가를 최저가 이상으로 정합니다.

2. 해당 물건의 매각기일에 직접 관할법원에 방문하셔서 법원내에 비치된 입찰서를 작성하신 후 입찰하시면 됩니다.

TIP! 법원에 가실 때에는 입찰보증금(최저가의 10~30%)과 신분증을 지참하여 방문하세요.

Q. 용어가 너무 어려워서 내용을 이해하기 어려워요누구나 입찰에 참여할 수 있나요?

매각기일
매각기일은 경매 법원이 부동산에 대하여 매각 입찰을 진행하는 날을 말합니다.

유찰
매각 기일에 매수하고자 하는 사람이 없어 매각되지 않아 무효가 되는 것을 유찰이라고 합니다.

최저 매각 가격
최초 경매를 진행할때 감정인이 평가한 가격을 기준으로 책정한 금액이며 입찰자는 최저 매각 가격과 동일하거나 이상의 금액으로 입찰해야 합니다. 매각 기일에 있어 입찰자가 없어 유찰되면 통상 20~30% 저감된 금액이 다음 최저 매각 가격이 됩니다.

매수 보증금
경매 물건을 매수하고자 하는사람은 최저 매각 가격의 10분의 1(다르게 정해질 수 있음)에 해당하는 보증금액을 입찰표와 함께 집행관에게 제출하는 방법으로 제공합니다. 매각 절차가 종결된 후 집행관은 최고가 매수신고인이나 차순위매수신고인 이외의 매수신청인에게는 즉시 매수 보증금을 반환해 줍니다.

더 많은 내용을 알고 싶다면 경매마당 학습하기 코너에 준비된 용어설명을 이용해보세요.

경매정보는 법원자료와 일치하도록 하였으나 권리사항변동, 입력착오 등의 원인으로 사실과 다를 수 있습니다. 이용약관에 의거 면책조건으로 제공됨을 알리며, 경매입찰시 반드시 관련 공부를 재확인하시기 바랍니다.

PC버전으로 보기