알림

알림 내역

알림 신청내역/취소

로고 수원지방법원 본원 [경매18계] 2020타경8547
경기도 화성시 남양읍 활초길15번길 12-5 (1동) 외 1 필지

경기 화성시 남양읍 활초리 352-1

주소복사
경매구분 임의경매
용도 단독주택
토지 868㎡(262.6평)
건물 656.76㎡(198.7평)
감정가 975,677,480원
최저가 478,082,000원
보증금 47,810,000원 (10%)
청구액 436,956,782원
접수일 2020년 05월 22일
개시결정 2020년 05월 25일
감정일 2020년 06월 08일
매각일 2021년 05월 12일
2020타경8547
2020타경8547
2020타경8547
2020타경8547
2020타경8547
2020타경8547
2020타경8547
2020타경8547
2020타경8547
2020타경8547
2020타경8547
2020타경8547
2020타경8547
2020타경8547
2020타경8547
2020타경8547
2020타경8547
2020타경8547
2020타경8547
2020타경8547
2020타경8547
2020타경8547
2020타경8547
2020타경8547
2020타경8547
감정가
9억7567만7480원
낙찰가 47%
5억1799만9999원
배당종결 2021년 05월 12일
유찰 2회
유찰 2회
경매구분 임의경매
용도 단독주택
토지 868㎡(262.6평)
건물 656.76㎡(198.7평)
감정가 975,677,480원
최저가 478,082,000원
보증금 47,810,000원 (10%)
청구액 436,956,782원
접수일 2020년 05월 22일
개시결정 2020년 05월 25일
감정일 2020년 06월 08일
매각일 2021년 05월 12일
배당종결 2021년 05월 12일

당사자 내역

채무자겸소유자 김OO
채권자 아OOOOOOOOOOOOOOOOOOOOOOOOOOOOOO
승계인 아OOOOOOOOOOOOOOOO
근저당권자 최OO
가압류권자 신OOOOO
공유자 안OO
교부권자 국OOOOOOOOOOO
배당요구권자 신OOOOO
공유자 박OO
교부권자 화OO

기일 내역

2021.06.30
납부 (2021.06.28)
2021.05.20
최고가매각허가결정
2021.05.12
5억1799만9999원 매각
4억7808만2000원 최저가
2021.04.08
6억8297만4000원 유찰
2021.03.09
9억7567만7480원 유찰
2021.01.27
기일변경
2020.12.16
기일변경

취하/취소(2020년12월08일)

물건 비고(공고문)

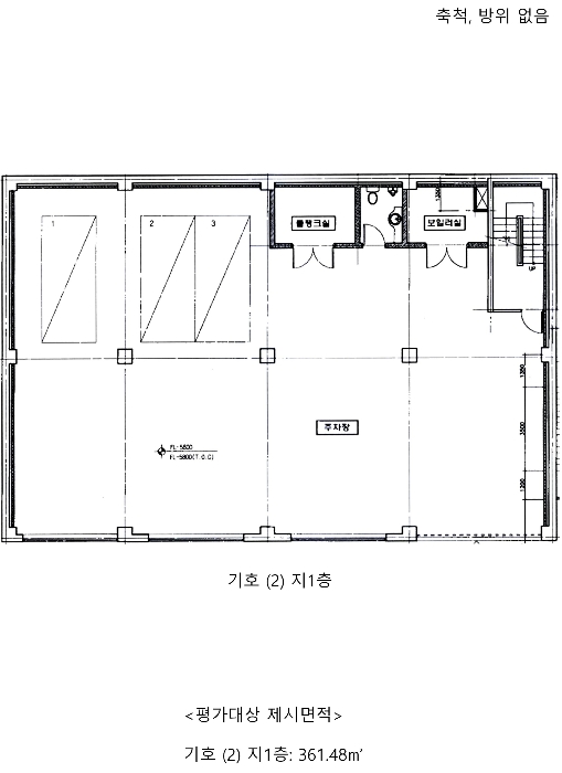
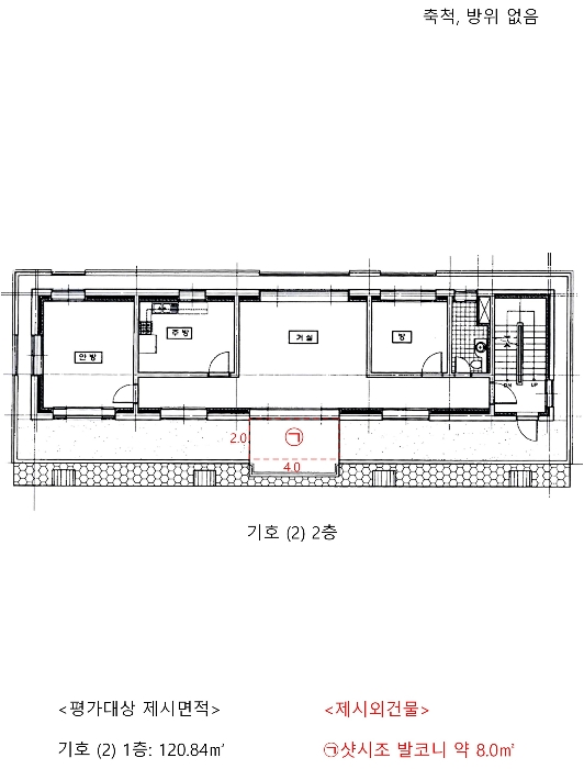
일괄매각. 제시외 건물, 수목 포함

물건 비고(매각 명세서)

일괄매각. 제시외 건물, 수목 포함

현황 조사(현황 조사서)

- 목록 1. 토지의 지상에 목록 2. 건물이 위치하며 일부 진입로 포함함. 주택 1층 정원에 조경수가 식재되어 있으며 잡초가 무성한 상태임. 1층 출입문은 잠겨있으며 2층으로 올라가는 다른 출입문은 없음.
- 목록 3. 토지는 도로임.
- 해당 토지들의 정확한 위치, 면적, 인접토지와의 경계 등은 측량감정이 필요할 것으로 보임.

점유 조사(현황 조사서)

[목록2]현장을 방문하였으나 폐문부재로 소유자나 점유자를 만나지 못하였는바, 출입문에 안내문을 부착하여 두었음. 한편, 전입세대열람내역서에는 해당 주소의 세대주가 존재하지 않는다고 기재되어 있음.

매각결과+

매각일자 / 결과 응찰자수 최고가 금액/응찰자명 차순위 금액
부동산
등기
임차인
그 외

부동산

매각목록

※ 건축물 도면은 ‘건축물 대장의 기재 및 관리에 관한 규칙’ 에 따라 현재 경매가 진행중인 물건에만 제공됩니다.
※ 지분물건의 경우 면적은 지분에 해당하는 면적이 아닌 전체 면적으로 표기됩니다

감정평가

감정평가서 요약

1.토지감정요항표 1) 위치 및 주위환경 본건은 경기도 화성시 남양읍 활초리 소재 "홍난파생가" 남동측 근거리에 위치하며 부근은 주택, 농경지, 임야 등이 혼재하는 지역임. 2) 교통상황 본건까지 차량출입 가능하고 인근에 버스정류장이 소재하는 등 제반 교통사정은 보통임. 3) 형태 및 이용상태 부정평 평지의 토지로서 기호 1은 단독주택 건부지로, 기호 3은 도로로 이용중임. 4) 인접 도로상태 본건 북측으로 폭 약 4미터의 포장도로와 접함. 5) 토지이용계획 및 제한상태 계획관리지역 가축사육제한구역(2018-01-16)(일부제한 모든축종 제한지역)<가축분뇨의 관리 및 이용에 관한 법률>, 성장관리권역<수도권정비계획법>임. 6) 제시목록 외의 물건 없음. 7) 공부와의 차이 없음. 8) 기타참고사항(임대관례 및 기타) 임대관계는 미상임. 2.건물감정평가요항표 1) 건물의 구조 철근콘크리트구조 (철근)콘크리트 지붕 지1층, 2층 건으로,외벽: 몰탈위페인팅 및 드라이비트 마감.내벽: 벽지도배 및 일부 타일붙임.창호: 샷시 창호임. 2) 이용상태 단독주택(후첨 "내부구조도" 참조)으로 이용중임. 3) 설비내역 위생 및 급배수설비, 개별난방설비 등 되어 있음. 4) 부합물 및 종물 후첨 "내부구조도"및 "사진용지"와 같이 부합물이 소재함. 5) 공부와의 차이 없음. 6) 기타참고사항(임대관례 및 기타) 임대관계는 미상임.

주변 입주 예정

거리 단지명 공급년월 세대 수
※ 해당 자료는 한국부동산원 청약홈 자료에 근거하며, 인근 5km 이내의 물건을 기준으로 산정되었습니다.

등기

등기부현황

채권합계 921,060,000원(4건)
등기일자 권리종류 권리자/채권액 권리
2011-12-07
(을6)
근저당권설정 주식회사하나은행 소멸
말소기준 등기 480,000,000원
2014-10-22
소유자 김옥선 (소유자)
단독소유 -
2015-12-09
(을6-3)
근저당권이전 주식회사하나은행 소멸
- -
2011-12-07
(을7)
근저당권설정 주식회사하나은행 소멸
- 91,000,000원
2015-12-09
(을7-3)
근저당권이전 주식회사하나은행 소멸
- -
2012-07-03
(을8)
근저당권설정 최일수 소멸
- 300,000,000원
2020-05-20
(갑6)
가압류 신용보증기금 소멸
- 50,065,000원
2020-05-25
(갑7)
임의경매개시결정
(2020타경8547)
주식회사하나은행 소멸
경매기입 등기 436,956,782원
2020-10-20
(갑8)
압류 국민건강보험공단 소멸
- -
2020-12-07
(갑9)
압류 화성시 소멸
- -
더보기 더보기
※ 신규 발급등기의 분석자료 반영에는 최대 1일까지 소요될수 있습니다.(등기분석,임차인분석,분석노트 등)

임차인

매각물건 명세서

구분 법원 사건번호 작성일자 매각명세서
1 수원지법 2020타경8547[1] 2021.04.21
구분 법원/
사건번호
작성일자 매각명세서
1 수원지법
2020타경8547[1]
2021.04.21

물건 비고(매각 명세서)

일괄매각. 제시외 건물, 수목 포함

임차인현황

임차인 보증금/차임 전입/확정/배당 대항력
매각물건명세서상 임차인이 존재하지 않습니다.

현황 조사서

조사일시

2020년06월05일15시07분

부동산의 현황

- 목록 1. 토지의 지상에 목록 2. 건물이 위치하며 일부 진입로 포함함. 주택 1층 정원에 조경수가 식재되어 있으며 잡초가 무성한 상태임. 1층 출입문은 잠겨있으며 2층으로 올라가는 다른 출입문은 없음.
- 목록 3. 토지는 도로임.
- 해당 토지들의 정확한 위치, 면적, 인접토지와의 경계 등은 측량감정이 필요할 것으로 보임.

점유 조사

[목록2]현장을 방문하였으나 폐문부재로 소유자나 점유자를 만나지 못하였는바, 출입문에 안내문을 부착하여 두었음. 한편, 전입세대열람내역서에는 해당 주소의 세대주가 존재하지 않는다고 기재되어 있음.

미납관리비 조사내역

확인일자 미납금액 관리소번호 메모

※ 해당 정보는 참고용으로 제공되며 입찰 전 반드시 관리사무소를 통해 직접 확인하시기 바랍니다.

시세

전문가

그외

관할법원 관할법원 (입찰장소)

수원지방법원 본원

경매18계 : 031-210-1114

경기 수원시 영통구 하동 990 주소복사

Q&A Q&A

Q. 대법원경매가 무엇인가요?누구나 입찰에 참여할 수 있나요?

경매채무자(빌린 자)가 채무를 갚지 않았을 때 채권자(빌려준 자)의 신청으로 대법원이 채무자의 재산을 대신 매각하는 과정을 말합니다.

법원은 감정인에게 자산을 평가하게 한 후, 최저가를 정하여 그 금액 이상으로 입찰한 입찰자 중 최고가 매수인을 결정합니다.

대법원의 주관하에 국민 모두가 참여할 수 있습니다.

Q. 경매 입찰은 어떻게 하나요?누구나 입찰에 참여할 수 있나요?

1. 입찰하시고자 하는 경매물건을 정하신 후, 입찰하시고자 하는 입찰가를 최저가 이상으로 정합니다.

2. 해당 물건의 매각기일에 직접 관할법원에 방문하셔서 법원내에 비치된 입찰서를 작성하신 후 입찰하시면 됩니다.

TIP! 법원에 가실 때에는 입찰보증금(최저가의 10~30%)과 신분증을 지참하여 방문하세요.

Q. 용어가 너무 어려워서 내용을 이해하기 어려워요누구나 입찰에 참여할 수 있나요?

매각기일
매각기일은 경매 법원이 부동산에 대하여 매각 입찰을 진행하는 날을 말합니다.

유찰
매각 기일에 매수하고자 하는 사람이 없어 매각되지 않아 무효가 되는 것을 유찰이라고 합니다.

최저 매각 가격
최초 경매를 진행할때 감정인이 평가한 가격을 기준으로 책정한 금액이며 입찰자는 최저 매각 가격과 동일하거나 이상의 금액으로 입찰해야 합니다. 매각 기일에 있어 입찰자가 없어 유찰되면 통상 20~30% 저감된 금액이 다음 최저 매각 가격이 됩니다.

매수 보증금
경매 물건을 매수하고자 하는사람은 최저 매각 가격의 10분의 1(다르게 정해질 수 있음)에 해당하는 보증금액을 입찰표와 함께 집행관에게 제출하는 방법으로 제공합니다. 매각 절차가 종결된 후 집행관은 최고가 매수신고인이나 차순위매수신고인 이외의 매수신청인에게는 즉시 매수 보증금을 반환해 줍니다.

더 많은 내용을 알고 싶다면 경매마당 학습하기 코너에 준비된 용어설명을 이용해보세요.

경매정보는 법원자료와 일치하도록 하였으나 권리사항변동, 입력착오 등의 원인으로 사실과 다를 수 있습니다. 이용약관에 의거 면책조건으로 제공됨을 알리며, 경매입찰시 반드시 관련 공부를 재확인하시기 바랍니다.

PC버전으로 보기