알림

알림 내역

알림 신청내역/취소

로고 수원지방법원 본원 [경매15계] 2020타경10281
경기도 수원시 권선구 세권로181번길 30-15

경기 수원시 권선구 권선동 1053-9

주소복사
경매구분 임의경매
용도 다가구
토지 255.3㎡(77.2평)
건물 550.75㎡(166.6평)
감정가 1,222,579,460원
최저가 855,806,000원
보증금 85,590,000원 (10%)
청구액 100,000,000원
개시결정 2020년 06월 24일
감정일 2020년 07월 01일
배당종기 2020년 09월 04일
매각일 2021년 09월 03일
2020타경10281
2020타경10281
2020타경10281
2020타경10281
2020타경10281
2020타경10281
2020타경10281
2020타경10281
2020타경10281
2020타경10281
2020타경10281
2020타경10281
2020타경10281
2020타경10281
2020타경10281
2020타경10281
2020타경10281
2020타경10281
2020타경10281
2020타경10281
2020타경10281
2020타경10281
2020타경10281
2020타경10281
2020타경10281
2020타경10281
2020타경10281
2020타경10281
2020타경10281
2020타경10281
2020타경10281
2020타경10281
2020타경10281
2020타경10281
2020타경10281
2020타경10281
감정가
12억2257만9460원
낙찰가 13%
10억6890만원
배당종결 2021년 09월 03일
유찰 1회임차권등기
유찰 1회임차권등기
경매구분 임의경매
용도 다가구
토지 255.3㎡(77.2평)
건물 550.75㎡(166.6평)
감정가 1,222,579,460원
최저가 855,806,000원
보증금 85,590,000원 (10%)
청구액 100,000,000원
개시결정 2020년 06월 24일
감정일 2020년 07월 01일
배당종기 2020년 09월 04일
매각일 2021년 09월 03일
배당종결 2021년 09월 03일

당사자 내역

소유자 김OO
채권자 김OO
채무자 서OOOOOOOOOOO
임차인 박OO
임차인 홍OO
임차인 한OO
임차인 한OO
임차인 최OO
임차인 최OO
임차인 장OO
배당요구권자 홍OO
교부권자 수OOOOO
가압류권자 한OOOOOOO
근저당권자 도OOOOOOOO
임차인 김OO
임차인 김OO
임차인 김OO
임차인 한OO
임차인 이OO
임차인 이OO
임차권자 윤OO
임차인 윤OO
임차인 유OO
임차인 양OO
임차인 손OO
임차인 박OO
임차인 홍OO

기일 내역

2021.10.22
납부 (2021.10.21)
2021.09.10
최고가매각허가결정
2021.09.03
10억6890만원 매각
8억5580만6000원 최저가
2021.07.21
기일변경
2021.06.11
12억2257만9460원 유찰

기일 변경(2021년07월12일)

변경 후 추후지정

물건 비고(공고문)

일괄매각. 제시외 건물 포함

물건 비고(매각 명세서)

일괄매각. 제시외 건물 포함

현황 조사(현황 조사서)

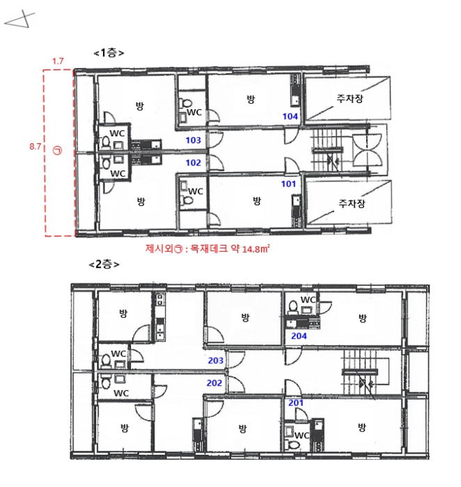
본건 부동산은 다가구주택인바, 지층에서 3층까지 각 4호실로 구분되어 있고, 옥탑층은 창고로 보임.
- 임차인들의 구체적인 임대차관계는 전입세대열람내역서 등에 기재된 내용을 임대차내용으로 기재함.
- 이보라의 전입일자는 전입세대열람내역서상 등재된 최초전입일자를 기재한 것임.

점유 조사(현황 조사서)

[목록2]현장(지층에서 3층까지 각 4호실로 구분되어 있음)을 방문하였으나 폐문부재로 소유자 및 점유자를 만나지 못하였는바, 각 출입문에 안내문을 부착하여 두었음. 한편, 전입세대열람내역서 등에 의하면, 해당 주소에는 임차인들 세대가 전입되어 있음.

매각결과+

매각일자 / 결과 응찰자수 최고가 금액/응찰자명 차순위 금액
부동산
등기
임차인
그 외

부동산

매각목록

※ 건축물 도면은 ‘건축물 대장의 기재 및 관리에 관한 규칙’ 에 따라 현재 경매가 진행중인 물건에만 제공됩니다.
※ 지분물건의 경우 면적은 지분에 해당하는 면적이 아닌 전체 면적으로 표기됩니다

감정평가

감정평가서 요약

1.토지감정요항표 1) 위치 및 주위환경 본건은 경기도 수원시 권선구 권선동 소재 "권선1동 행정복지센터" 남동측 인근에 소재하며, 주위에는 본건 유사 단독주택, 근린생활시설 등이 혼재하여 소재함. 2) 교통상황 본건까지 차량진입 가능하며, 인근에 노선버스정류장이 소재하여 제반 대중교통여건은 보통시 됨. 3) 형태 및 이용상태 인접 토지와 등고평탄한 세장형의 토지로서 단독주택(다가구)의 건부지로 이용 중임. 4) 인접 도로상태 남서측으로 약 6미터 내외 폭의 포장도로에 접함. 5) 토지이용계획 및 제한상태 도시지역, 제2종일반주거지역, 소로3류(폭 8M 미만)(접합), 가축사육제한구역<가축분뇨의 관리 및 이용에 관한 법률>, 상대보호구역<교육환경 보호에 관한 법률>, 비행안전제6구역(전술)<군사기지 및 군사시설 보호법>, 과밀억제권역<수도권정비계획법>임. 6) 제시목록 외의 물건 건물개황도 등 참조. 7) 공부와의 차이 해당사항 없음. 8) 기타참고사항(임대관례 및 기타) 임대관계는 미상임. 2.건물감정평가요항표 1) 건물의 구조 철근콘크리트조 철근콘크리트지붕 3층 단독주택으로서,- 외벽 : 드라이비트, 일부 외장석 및 벽돌타일 등 마감- 내벽 : 벽지, 일부 타일 등 마감- 창호 : 알미늄샤시 이중창호 등 2) 이용상태 - 단독주택으로서 1층, 2층, 3층, 지층 각각 4가구가 소재함(총16가구).- 1층 일부는 주차장임.- 옥탑층은 다용도실 및 계단실임. 3) 설비내역 위생급배수시설, 개별난방시설, 도시가스설비 등. 4) 부합물 및 종물 건물개황도 참조. 5) 공부와의 차이 해당 사항 없음. 6) 기타참고사항(임대관례 및 기타) 임대관계는 미상임.

주변 입주 예정

거리 단지명 공급년월 세대 수
※ 해당 자료는 한국부동산원 청약홈 자료에 근거하며, 인근 5km 이내의 물건을 기준으로 산정되었습니다.

등기

등기부현황

채권합계 1,061,510,000원(6건)
등기일자 권리종류 권리자/채권액 권리
2019-03-21
소유자 김효진 (소유자)
단독소유 -
2019-03-21
(을1)
근저당권설정 도드람양돈협동조합 소멸
말소기준 등기 480,000,000원
2019-04-22
(을2)
근저당권설정 김금란 소멸
- 240,000,000원
2019-10-16
(을2-2)
근저당권변경 소멸
- 150,000,000원
2020-06-24
(갑12)
임의경매개시결정
(2020타경10281)
김금란 소멸
경매기입 등기 100,000,000원
2020-08-24
(갑13)
가압류 한국주택금융공사 소멸
- 91,515,455원
2021-04-07
(갑14)
가압류 홍승단 소멸
- 90,000,000원
2021-05-27
(을5)
임차권설정 장병훈 소멸
- 100,000,000원
2021-06-15
(을6)
임차권설정 이보라 소멸
- 150,000,000원
더보기 더보기
※ 신규 발급등기의 분석자료 반영에는 최대 1일까지 소요될수 있습니다.(등기분석,임차인분석,분석노트 등)

임차인

매각물건 명세서

구분 법원 사건번호 작성일자 매각명세서
1 수원지법 2020타경10281[1] 2021.08.10
구분 법원/
사건번호
작성일자 매각명세서
1 수원지법
2020타경10281[1]
2021.08.10

물건 비고(매각 명세서)

일괄매각. 제시외 건물 포함

임차인현황

임차인 보증금/차임 전입/확정/배당 대항력
김관중
(주거임차인 / 소액임차인)
점유부분:
103호 전부
보증:
100,000,000
차임:
-
전입: 2019-04-16
확정: 2019-04-15
배당: 2020-08-24
-
김사랑
(주거임차인 / 소액임차인)
점유부분:
비04호 전부
보증:
55,000,000
차임:
-
전입: 2020-02-28
확정: 2020-02-10
배당: 2020-08-19
-
김태형
(주거임차인 / 소액임차인)
점유부분:
102호 전부
보증:
100,000,000
차임:
-
전입: 2020-04-02
확정: 2019-04-25
배당: 2021-01-04
-
[현황조사]
박도영
(주거임차인)
점유부분:
미상
보증:
-
차임:
-
전입: 2019-08-19
확정: -
배당: -
-
박예희
(주거임차인)
점유부분:
202호 전부
보증:
140,000,000
차임:
-
전입: 2019-06-21
확정: 2019-05-28
배당: 2020-08-31
-
손수진
(주거임차인 / 소액임차인)
점유부분:
201호 전부
보증:
90,000,000
차임:
-
전입: 2019-07-19
확정: 2019-07-01
배당: 2020-08-24
-
양현지
(주거임차인 / 소액임차인)
점유부분:
204호 전부
보증:
100,000,000
차임:
-
전입: 2019-06-05
확정: 2019-05-13
배당: 2020-08-25
-
유근휘
(주거임차인 / 소액임차인)
점유부분:
101호 전부
보증:
70,000,000
차임:
-
전입: 2020-02-24
확정: 2020-01-20
배당: 2020-08-04
-
윤반석
(주거임차권자 / 소액임차인)
점유부분:
비02호
보증:
70,000,000
차임:
-
전입: 2019-04-26
확정: 2019-04-26
배당: -
-
이보라
(주거임차인)
점유부분:
302호 전부
보증:
150,000,000
차임:
-
전입: 2019-06-17
확정: 2019-05-27
배당: 2020-08-24
-
이창현
(주거임차인 / 소액임차인)
점유부분:
지103호 전부
보증:
70,000,000
차임:
-
전입: 2019-05-28
확정: 2019-04-18
배당: 2021-03-09
-
장병훈
(주거임차인 / 소액임차인)
점유부분:
304호 전부
보증:
100,000,000
차임:
-
전입: 2019-04-30
확정: 2019-04-12
배당: 2020-08-11
-
[현황조사]
최봉호
(주거임차인)
점유부분:
미상
보증:
-
차임:
-
전입: 2019-04-25
확정: -
배당: -
-
최예은
(주거임차인 / 소액임차인)
점유부분:
비01호 전부
보증:
60,000,000
차임:
-
전입: 2019-05-13
확정: 2019-04-24
배당: 2020-07-23
-
한상현
(주거임차인)
점유부분:
303호 전부
보증:
140,000,000
차임:
-
전입: 2019-12-03
확정: 2019-11-13
배당: 2020-09-01
-
한준규
(주거임차인)
점유부분:
203호 전부
보증:
140,000,000
차임:
-
전입: 2019-05-21
확정: 2019-04-29
배당: 2021-01-04
-
[현황조사]
한창현
(주거임차인)
점유부분:
미상
보증:
-
차임:
-
전입: 2019-12-03
확정: -
배당: -
-
홍승단
(주거임차인 / 소액임차인)
점유부분:
104호 전부
보증:
90,000,000
차임:
-
전입: 2019-06-13
확정: 2019-06-03
배당: 2021-03-22
-
[현황조사]
홍애련
(주거임차인)
점유부분:
미상
보증:
-
차임:
-
전입: 2019-10-24
확정: -
배당: -
-

현황 조사서

조사일시

2020년07월07일12시15분

부동산의 현황

본건 부동산은 다가구주택인바, 지층에서 3층까지 각 4호실로 구분되어 있고, 옥탑층은 창고로 보임.
- 임차인들의 구체적인 임대차관계는 전입세대열람내역서 등에 기재된 내용을 임대차내용으로 기재함.
- 이보라의 전입일자는 전입세대열람내역서상 등재된 최초전입일자를 기재한 것임.

점유 조사

[목록2]현장(지층에서 3층까지 각 4호실로 구분되어 있음)을 방문하였으나 폐문부재로 소유자 및 점유자를 만나지 못하였는바, 각 출입문에 안내문을 부착하여 두었음. 한편, 전입세대열람내역서 등에 의하면, 해당 주소에는 임차인들 세대가 전입되어 있음.

1
소재지 경기도수원시권선구세권로181번길30-15
점유인 김관중(임차인)
점유부분 미상(주거)
점유기간 미상
보증금/차임 미상/미상
전입/확정일자 2019.04.16/미상
2
소재지 경기도수원시권선구세권로181번길30-15
점유인 김사랑(임차인)
점유부분 미상(주거)
점유기간 미상
보증금/차임 미상/미상
전입/확정일자 2020.02.28/미상
3
소재지 경기도수원시권선구세권로181번길30-15
점유인 김태형(임차인)
점유부분 미상(주거)
점유기간 미상
보증금/차임 미상/미상
전입/확정일자 2020.04.02/미상
4
소재지 경기도수원시권선구세권로181번길30-15
점유인 박도영(임차인)
점유부분 미상(주거)
점유기간 미상
보증금/차임 미상/미상
전입/확정일자 2019.08.19/미상
5
소재지 경기도수원시권선구세권로181번길30-15
점유인 박예희(임차인)
점유부분 미상(주거)
점유기간 미상
보증금/차임 미상/미상
전입/확정일자 2019.06.21/미상
6
소재지 경기도수원시권선구세권로181번길30-15
점유인 손수진(임차인)
점유부분 미상(주거)
점유기간 미상
보증금/차임 미상/미상
전입/확정일자 2019.07.19/미상
7
소재지 경기도수원시권선구세권로181번길30-15
점유인 양현지(임차인)
점유부분 미상(주거)
점유기간 미상
보증금/차임 미상/미상
전입/확정일자 2019.06.05/미상
8
소재지 경기도수원시권선구세권로181번길30-15
점유인 유근휘(임차인)
점유부분 미상(주거)
점유기간 미상
보증금/차임 미상/미상
전입/확정일자 2020.02.24/미상
9
소재지 경기도수원시권선구세권로181번길30-15
점유인 윤반석(임차인)
점유부분 미상(주거)
점유기간 미상
보증금/차임 미상/미상
전입/확정일자 2019.04.26/미상
10
소재지 경기도수원시권선구세권로181번길30-15
점유인 이보라(임차인)
점유부분 미상(주거)
점유기간 미상
보증금/차임 미상/미상
전입/확정일자 2019.06.17/미상
11
소재지 경기도수원시권선구세권로181번길30-15
점유인 이창현(임차인)
점유부분 미상(주거)
점유기간 미상
보증금/차임 미상/미상
전입/확정일자 2019.05.28/미상
12
소재지 경기도수원시권선구세권로181번길30-15
점유인 장병훈(임차인)
점유부분 미상(주거)
점유기간 미상
보증금/차임 미상/미상
전입/확정일자 2019.04.30/미상
13
소재지 경기도수원시권선구세권로181번길30-15
점유인 최봉호(임차인)
점유부분 미상(주거)
점유기간 미상
보증금/차임 미상/미상
전입/확정일자 2019.04.25/미상
14
소재지 경기도수원시권선구세권로181번길30-15
점유인 최예은(임차인)
점유부분 미상(주거)
점유기간 미상
보증금/차임 미상/미상
전입/확정일자 2019.05.13/미상
15
소재지 경기도수원시권선구세권로181번길30-15
점유인 한창현(임차인)
점유부분 미상(주거)
점유기간 미상
보증금/차임 미상/미상
전입/확정일자 2019.12.03/미상
16
소재지 경기도수원시권선구세권로181번길30-15
점유인 한준규(임차인)
점유부분 미상(주거)
점유기간 미상
보증금/차임 미상/미상
전입/확정일자 2019.05.21/미상
17
소재지 경기도수원시권선구세권로181번길30-15
점유인 홍승단(임차인)
점유부분 미상(주거)
점유기간 미상
보증금/차임 미상/미상
전입/확정일자 2019.06.13/미상
18
소재지 경기도수원시권선구세권로181번길30-15
점유인 홍애련(임차인)
점유부분 미상(주거)
점유기간 미상
보증금/차임 미상/미상
전입/확정일자 2019.10.24/미상

조사일시

-

부동산의 현황

-

점유 조사

[목록2]현장(지층에서 3층까지 각 4호실로 구분되어 있음)을 방문하였으나 폐문부재로 소유자 및 점유자를 만나지 못하였는바, 각 출입문에 안내문을 부착하여 두었음. 한편, 전입세대열람내역서 등에 의하면, 해당 주소에는 임차인들 세대가 전입되어 있음.

1
소재지 경기도수원시권선구세권로181번길30-15
점유인 김관중(임차인)
점유부분 미상(주거)
점유기간 미상
보증금/차임 미상/미상
전입/확정일자 2019.04.16/미상
2
소재지 경기도수원시권선구세권로181번길30-15
점유인 김사랑(임차인)
점유부분 미상(주거)
점유기간 미상
보증금/차임 미상/미상
전입/확정일자 2020.02.28/미상
3
소재지 경기도수원시권선구세권로181번길30-15
점유인 김태형(임차인)
점유부분 미상(주거)
점유기간 미상
보증금/차임 미상/미상
전입/확정일자 2020.04.02/미상
4
소재지 경기도수원시권선구세권로181번길30-15
점유인 박도영(임차인)
점유부분 미상(주거)
점유기간 미상
보증금/차임 미상/미상
전입/확정일자 2019.08.19/미상
5
소재지 경기도수원시권선구세권로181번길30-15
점유인 박예희(임차인)
점유부분 미상(주거)
점유기간 미상
보증금/차임 미상/미상
전입/확정일자 2019.06.21/미상
6
소재지 경기도수원시권선구세권로181번길30-15
점유인 손수진(임차인)
점유부분 미상(주거)
점유기간 미상
보증금/차임 미상/미상
전입/확정일자 2019.07.19/미상
7
소재지 경기도수원시권선구세권로181번길30-15
점유인 양현지(임차인)
점유부분 미상(주거)
점유기간 미상
보증금/차임 미상/미상
전입/확정일자 2019.06.05/미상
8
소재지 경기도수원시권선구세권로181번길30-15
점유인 유근휘(임차인)
점유부분 미상(주거)
점유기간 미상
보증금/차임 미상/미상
전입/확정일자 2020.02.24/미상
9
소재지 경기도수원시권선구세권로181번길30-15
점유인 윤반석(임차인)
점유부분 미상(주거)
점유기간 미상
보증금/차임 미상/미상
전입/확정일자 2019.04.26/미상
10
소재지 경기도수원시권선구세권로181번길30-15
점유인 이보라(임차인)
점유부분 미상(주거)
점유기간 미상
보증금/차임 미상/미상
전입/확정일자 2019.06.17/미상
11
소재지 경기도수원시권선구세권로181번길30-15
점유인 이창현(임차인)
점유부분 미상(주거)
점유기간 미상
보증금/차임 미상/미상
전입/확정일자 2019.05.28/미상
12
소재지 경기도수원시권선구세권로181번길30-15
점유인 장병훈(임차인)
점유부분 미상(주거)
점유기간 미상
보증금/차임 미상/미상
전입/확정일자 2019.04.30/미상
13
소재지 경기도수원시권선구세권로181번길30-15
점유인 최봉호(임차인)
점유부분 미상(주거)
점유기간 미상
보증금/차임 미상/미상
전입/확정일자 2019.04.25/미상
14
소재지 경기도수원시권선구세권로181번길30-15
점유인 최예은(임차인)
점유부분 미상(주거)
점유기간 미상
보증금/차임 미상/미상
전입/확정일자 2019.05.13/미상
15
소재지 경기도수원시권선구세권로181번길30-15
점유인 한창현(임차인)
점유부분 미상(주거)
점유기간 미상
보증금/차임 미상/미상
전입/확정일자 2019.12.03/미상
16
소재지 경기도수원시권선구세권로181번길30-15
점유인 한준규(임차인)
점유부분 미상(주거)
점유기간 미상
보증금/차임 미상/미상
전입/확정일자 2019.05.21/미상
17
소재지 경기도수원시권선구세권로181번길30-15
점유인 홍승단(임차인)
점유부분 미상(주거)
점유기간 미상
보증금/차임 미상/미상
전입/확정일자 2019.06.13/미상
18
소재지 경기도수원시권선구세권로181번길30-15
점유인 홍애련(임차인)
점유부분 미상(주거)
점유기간 미상
보증금/차임 미상/미상
전입/확정일자 2019.10.24/미상

미납관리비 조사내역

확인일자 미납금액 관리소번호 메모

※ 해당 정보는 참고용으로 제공되며 입찰 전 반드시 관리사무소를 통해 직접 확인하시기 바랍니다.

시세

전문가

그외

관할법원 관할법원 (입찰장소)

수원지방법원 본원

경매15계 : 031-210-1114

경기 수원시 영통구 하동 990 주소복사

Q&A Q&A

Q. 대법원경매가 무엇인가요?누구나 입찰에 참여할 수 있나요?

경매채무자(빌린 자)가 채무를 갚지 않았을 때 채권자(빌려준 자)의 신청으로 대법원이 채무자의 재산을 대신 매각하는 과정을 말합니다.

법원은 감정인에게 자산을 평가하게 한 후, 최저가를 정하여 그 금액 이상으로 입찰한 입찰자 중 최고가 매수인을 결정합니다.

대법원의 주관하에 국민 모두가 참여할 수 있습니다.

Q. 경매 입찰은 어떻게 하나요?누구나 입찰에 참여할 수 있나요?

1. 입찰하시고자 하는 경매물건을 정하신 후, 입찰하시고자 하는 입찰가를 최저가 이상으로 정합니다.

2. 해당 물건의 매각기일에 직접 관할법원에 방문하셔서 법원내에 비치된 입찰서를 작성하신 후 입찰하시면 됩니다.

TIP! 법원에 가실 때에는 입찰보증금(최저가의 10~30%)과 신분증을 지참하여 방문하세요.

Q. 용어가 너무 어려워서 내용을 이해하기 어려워요누구나 입찰에 참여할 수 있나요?

매각기일
매각기일은 경매 법원이 부동산에 대하여 매각 입찰을 진행하는 날을 말합니다.

유찰
매각 기일에 매수하고자 하는 사람이 없어 매각되지 않아 무효가 되는 것을 유찰이라고 합니다.

최저 매각 가격
최초 경매를 진행할때 감정인이 평가한 가격을 기준으로 책정한 금액이며 입찰자는 최저 매각 가격과 동일하거나 이상의 금액으로 입찰해야 합니다. 매각 기일에 있어 입찰자가 없어 유찰되면 통상 20~30% 저감된 금액이 다음 최저 매각 가격이 됩니다.

매수 보증금
경매 물건을 매수하고자 하는사람은 최저 매각 가격의 10분의 1(다르게 정해질 수 있음)에 해당하는 보증금액을 입찰표와 함께 집행관에게 제출하는 방법으로 제공합니다. 매각 절차가 종결된 후 집행관은 최고가 매수신고인이나 차순위매수신고인 이외의 매수신청인에게는 즉시 매수 보증금을 반환해 줍니다.

더 많은 내용을 알고 싶다면 경매마당 학습하기 코너에 준비된 용어설명을 이용해보세요.

경매정보는 법원자료와 일치하도록 하였으나 권리사항변동, 입력착오 등의 원인으로 사실과 다를 수 있습니다. 이용약관에 의거 면책조건으로 제공됨을 알리며, 경매입찰시 반드시 관련 공부를 재확인하시기 바랍니다.

PC버전으로 보기