알림

알림 내역

알림 신청내역/취소

대법원
물건내역
사건내역
기일내역
송달내역
현황조사
관련사건
지도
사진보기
문서
매각기일공고문
매각물건명세서
감정평가서
등기부등본
전입세대열람원 M
건축물대장 M
분석
예상배당표 M
수익률분석 M
입찰가분석 M
조회수분석 M
인근지역통계 M
사이트
대법원
국토부 실거래가
토지이음
아실
네이버 단지정보
네이버 매물정보
호갱노노
부동산플래닛
로고 수원지방법원 본원 [경매15계] 2020타경60736
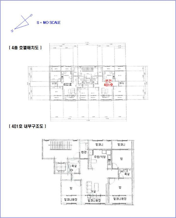
경기도 용인시 처인구 양지면 남곡로33번길 13-2, 502동 4층401호 (센텀스몰시티)

경기 용인시 처인구 양지면 남곡리 148-4

주소복사
경매구분 임의경매
용도 다세대
토지 51.2㎡(15.49평)
건물 67.97㎡(20.56평)
감정가 163,000,000원
최저가 79,870,000원
보증금 7,987,000원 (10%)
청구액 25,958,000원
개시결정 2020년 05월 12일
감정일 2020년 05월 26일
배당종기 2020년 07월 27일
매각일 2021년 06월 11일
2020타경60736
2020타경60736
2020타경60736
2020타경60736
2020타경60736
2020타경60736
2020타경60736
2020타경60736
2020타경60736
2020타경60736
2020타경60736
2020타경60736
감정가
1억6300만원
낙찰가 25%
1억2231만원
배당종결 2021년 06월 11일
유찰 2회
유찰 2회
경매구분 임의경매
용도 다세대
토지 51.2㎡(15.49평)
건물 67.97㎡(20.56평)
감정가 163,000,000원
최저가 79,870,000원
보증금 7,987,000원 (10%)
청구액 25,958,000원
개시결정 2020년 05월 12일
감정일 2020년 05월 26일
배당종기 2020년 07월 27일
매각일 2021년 06월 11일
배당종결 2021년 06월 11일

당사자 내역

채무자겸소유자 김OO
채권자 주OOOOOOOOOOOOO
채권자 주OOOOOOO
임차인 이OO
근저당권자 주OOOOOOO
근저당권자 주OOOOOOOOOOOO
가압류권자 아OOOOOOOOO
교부권자 국OOOOOOOOOOOOO
교부권자 용OO
배당요구권자 아OOOOOOOO

기일 내역

2021.07.27
납부 (2021.07.16)
2021.06.18
최고가매각허가결정
2021.06.11
1억2231만원 매각
7987만원 최저가
2021.05.11
1억1410만원 유찰
2021.04.07
1억6300만원 유찰

매각공고

현황 조사(현황 조사서)

- 본건 부동산은 주거용 공동주택으로서 부동산 현황은 부동산의 표시와 일치하는 것으로 보임.
- 위는 주민등록상 등재된 내용을 기재한 것임.

점유 조사(현황 조사서)

[목록1]- 목적물에 대하여 현황조사차 방문하였으나 폐문부재로 소유자 및 점유자를 만나지 못하여 점유관계를 확인하지 못함. 안내문 부착함. - 동주민센터에서 확인한 전입세대열람결과 채무자 겸 소유자 세대 및 임차인으로 추정되는 세대가 등재되어 있음. 그 점유관계 등은 별도의 확인을 요함.

매각결과+

매각일자 / 결과 응찰자수 최고가 금액/응찰자명 차순위 금액

현황정보

매각목록

부동산 현황

1.구분건물감정평가요항표 1) 위치 및 주위환경 본건은 경기도 용인시 처인구 양지면 남곡리 소재 "용동중학교" 남동측 인근에 위치하며 인근은 다세대주택, 근린생활시설 등이 소재하는 지역임. 2) 교통상황 본건까지 차량 출입 가능하며, 인근에 버스정류장이 소재하는 등 전반적인 대중교통사정은 보통임. 3) 건물의 구조 철근콘크리트구조 (철근)콘크리트지붕 5층 건중 제4층 제401호로서, 외벽 : 외장석 붙임 마감 등,창호 : 샷시 창호 등임. 4) 이용상태 공동주택으로 이용중임. 5) 설비내역 위생설비, 급배수설비, 난방설비, E/V 등이 구비되어 있음. 6) 토지의 형상 및 이용상태 본건은 인접도로대비 대체로 평탄한 장방형의 토지로, 공동주택 건부지로 이용중임. 7) 인접 도로상태등 본건 북동측으로 약 6미터 내외의 도로에 접함. 8) 토지이용계획 및 제한상태 도시지역, 제1종일반주거지역, 가축사육제한구역(전 축종 제한), 상대보호구역, 상대보호구역(2012-09-24)(용인교육지원청에 별도 문의 요망), 자연보전권역, 배출시설설치제한지역, 수질보전특별대책지역 임. 9) 공부와의 차이 ㅡ. 10) 기타참고사항(임대관례 및 기타) ㅡ.

주변 입주 예정

거리 단지명 공급년월 세대 수
※ 해당 자료는 한국부동산원 청약홈 자료에 근거하며, 인근 5km 이내의 물건을 기준으로 산정되었습니다.

등기

등기부현황

채권합계 259,280,000원(3건)
등기일자 권리종류 권리자/채권액 권리
2013-11-28
(을1)
근저당권설정 OOOO 소멸
말소기준 등기 120,000,000원
2020-02-05
(을1-1)
근저당권변경 OOOO 소멸
- 98,400,000원
2020-02-03
(을2)
근저당권설정 OOOO 소멸
- 37,500,000원
2020-05-06
(갑3)
가압류 OOOO 소멸
- 123,385,000원
2020-05-12
(갑4)
임의경매개시결정
(2020타경60736)
OOOO 소멸
경매기입 등기 25,958,000원
더보기
※ 신규 발급등기의 분석자료 반영에는 최대 1일까지 소요될수 있습니다.(등기분석,임차인분석,분석노트 등)

임차인

매각물건 명세서

구분 법원 사건번호 작성일자 매각명세서
1 수원지법 2020타경60736[1] 2021.05.25
구분 법원/
사건번호
작성일자 매각명세서
1 수원지법
2020타경60736[1]
2021.05.25

임차인현황

임차인 보증금/차임 전입/확정/배당 대항력
[현황조사]
이용하
(주거임차인)
점유부분:
미상
보증:
-
차임:
-
전입: 2020-02-28
확정: -
배당: -
멤버십

현황 조사서

조사일시

2020년05월20일14시55분

부동산의 현황

- 본건 부동산은 주거용 공동주택으로서 부동산 현황은 부동산의 표시와 일치하는 것으로 보임.
- 위는 주민등록상 등재된 내용을 기재한 것임.

점유 조사

[목록1]- 목적물에 대하여 현황조사차 방문하였으나 폐문부재로 소유자 및 점유자를 만나지 못하여 점유관계를 확인하지 못함. 안내문 부착함. - 동주민센터에서 확인한 전입세대열람결과 채무자 겸 소유자 세대 및 임차인으로 추정되는 세대가 등재되어 있음. 그 점유관계 등은 별도의 확인을 요함.

1
소재지 경기도용인시처인구양지면남곡로33번길13-2,502동4층401호(센텀스몰시티)
점유인 이용하(임차인)
점유부분 미상(주거)
점유기간 미상
보증금/차임 미상/미상
전입/확정일자 2020.02.28/미상

미납관리비 조사내역

확인일자 미납금액 관리소번호 메모

※ 해당 정보는 참고용으로 제공되며 입찰 전 반드시 관리사무소를 통해 직접 확인하시기 바랍니다.

시세분석

기타

전문가

관할법원 (입찰장소)

수원지방법원 본원

경매15계 : 031-210-1114

경기 수원시 영통구 하동 990 주소복사

Q&A

Q. 대법원경매가 무엇인가요?누구나 입찰에 참여할 수 있나요?

경매채무자(빌린 자)가 채무를 갚지 않았을 때 채권자(빌려준 자)의 신청으로 대법원이 채무자의 재산을 대신 매각하는 과정을 말합니다.

법원은 감정인에게 자산을 평가하게 한 후, 최저가를 정하여 그 금액 이상으로 입찰한 입찰자 중 최고가 매수인을 결정합니다.

대법원의 주관하에 국민 모두가 참여할 수 있습니다.

Q. 경매 입찰은 어떻게 하나요?누구나 입찰에 참여할 수 있나요?

1. 입찰하시고자 하는 경매물건을 정하신 후, 입찰하시고자 하는 입찰가를 최저가 이상으로 정합니다.

2. 해당 물건의 매각기일에 직접 관할법원에 방문하셔서 법원내에 비치된 입찰서를 작성하신 후 입찰하시면 됩니다.

TIP! 법원에 가실 때에는 입찰보증금(최저가의 10~30%)과 신분증을 지참하여 방문하세요.

Q. 용어가 너무 어려워서 내용을 이해하기 어려워요누구나 입찰에 참여할 수 있나요?

매각기일
매각기일은 경매 법원이 부동산에 대하여 매각 입찰을 진행하는 날을 말합니다.

유찰
매각 기일에 매수하고자 하는 사람이 없어 매각되지 않아 무효가 되는 것을 유찰이라고 합니다.

최저 매각 가격
최초 경매를 진행할때 감정인이 평가한 가격을 기준으로 책정한 금액이며 입찰자는 최저 매각 가격과 동일하거나 이상의 금액으로 입찰해야 합니다. 매각 기일에 있어 입찰자가 없어 유찰되면 통상 20~30% 저감된 금액이 다음 최저 매각 가격이 됩니다.

매수 보증금
경매 물건을 매수하고자 하는사람은 최저 매각 가격의 10분의 1(다르게 정해질 수 있음)에 해당하는 보증금액을 입찰표와 함께 집행관에게 제출하는 방법으로 제공합니다. 매각 절차가 종결된 후 집행관은 최고가 매수신고인이나 차순위매수신고인 이외의 매수신청인에게는 즉시 매수 보증금을 반환해 줍니다.

더 많은 내용을 알고 싶다면 경매마당 학습하기 코너에 준비된 용어설명을 이용해보세요.

경매정보는 법원자료와 일치하도록 하였으나 권리사항변동, 입력착오 등의 원인으로 사실과 다를 수 있습니다. 이용약관에 의거 면책조건으로 제공됨을 알리며, 경매입찰시 반드시 관련 공부를 재확인하시기 바랍니다.

PC버전으로 보기