알림

알림 내역

알림 신청내역/취소

로고 수원지방법원 본원 [경매13계] 2021타경5026[1]
경기도 화성시 동탄하나1길 61, 1층104호 (능동,동탄헤리움)

경기 화성시 능동 1065-1

주소복사
경매구분 임의경매
용도 오피스텔(상가)
토지 14.3㎡(4.3평)
건물 49.1㎡(14.9평)
감정가 723,000,000원
최저가 247,989,000원
보증금 24,800,000원 (10%)
청구액 400,745,873원
개시결정 2021년 05월 17일
감정일 2021년 05월 28일
배당종기 2021년 07월 30일
매각일 2022년 08월 09일
2021타경5026[1]
2021타경5026[1]
2021타경5026[1]
2021타경5026[1]
2021타경5026[1]
2021타경5026[1]
2021타경5026[1]
2021타경5026[1]
2021타경5026[1]
2021타경5026[1]
2021타경5026[1]
2021타경5026[1]
2021타경5026[1]
2021타경5026[1]
2021타경5026[1]
2021타경5026[1]
2021타경5026[1]
2021타경5026[1]
2021타경5026[1]
2021타경5026[1]
2021타경5026[1]
2021타경5026[1]
감정가
7억2300만원
낙찰가 48%
3억7687만8900원
배당종결 2022년 08월 09일
유찰 3회선순위임차인
유찰 3회선순위임차인
경매구분 임의경매
용도 오피스텔(상가)
토지 14.3㎡(4.3평)
건물 49.1㎡(14.9평)
감정가 723,000,000원
최저가 247,989,000원
보증금 24,800,000원 (10%)
청구액 400,745,873원
개시결정 2021년 05월 17일
감정일 2021년 05월 28일
배당종기 2021년 07월 30일
매각일 2022년 08월 09일
배당종결 2022년 08월 09일

당사자 내역

채무자겸소유자 최OO
채권자 안OOOOOOOOO
임차인 이OO
임차인 마OO
압류권자 국OOOOOOOOOOO
교부권자 국OOOOOOOOOOO
교부권자 안OOOO
배당요구권자 이OO
압류권자 화OOOOOOO
교부권자 동OOOOO
교부권자 화OOOOOOO
교부권자 동OOOOO
배당요구권자 한OOOOOOOO

기일 내역

2022.09.22
납부 (2022.08.31)
2022.08.16
최고가매각허가결정
2022.08.09
3억7687만8900원 매각
2억4798만9000원 최저가
2022.06.16
3억5427만원 유찰
2022.05.13
5억610만원 유찰
2022.04.08
7억2300만원 유찰

물건 비고(공고문)

음식점으로 이용중임. 선순위 대항력 있는 임차인의 보증금 30,000,000원이 배당에서 전액변제 되지 않을 경우 잔액을 매수인이 인수하므로 입찰시 주의가 요망됨.

임차인(매각 명세서)

<비고>
이한나:등기사항전부증명서(을구 2번)에 기재된 임차권자와 동일인임

물건 비고(매각 명세서)

음식점으로 이용중임. 선순위 대항력 있는 임차인의 보증금 30,000,000원이 배당에서 전액변제 되지 않을 경우 잔액을 매수인
이 인수하므로 입찰시 주의가 요망됨.

현황 조사(현황 조사서)

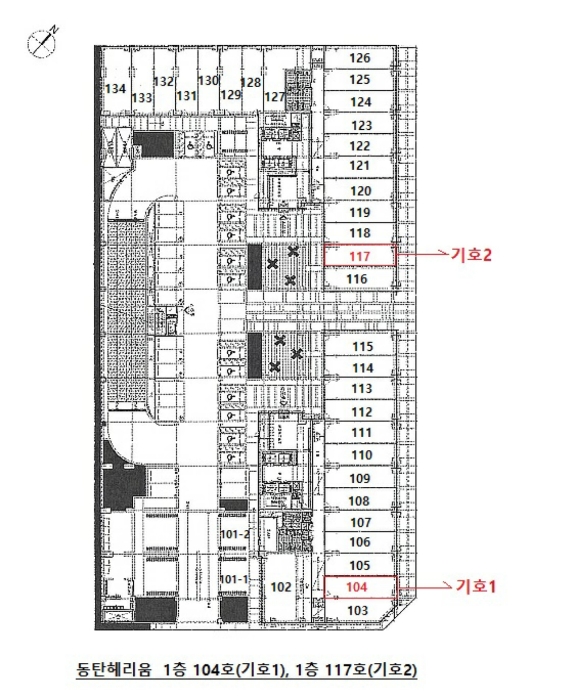
- 목록1 104호는 상가로 `돼지세끼`라는 상호의 식당이나, 폐문부재였음.
- 목록2는 상가1층의 `솜씨`라는 미용실이며 현재 영업중임.
- 104호는 폐문부재여서 구체적인 임대차관계는 상가건물임대차 현황서 및 주민등록표등본과 전입세대열람내역서 등에 기재된 내용에 의하여 작성함.
- 117호는 현장방문하여 만난 임차인 마송아와 배우자의 진술 및 상가건물임대차 현황서에 따라 기재함.

점유 조사(현황 조사서)

[목록1]현장 방문시 폐문부재였으며 상가건물임대차 현황서에는 임차인 이한나가 기재되어 있고, 또한 전입세대열람 내역서 등에 의하면, 해당 주소에는 동일인으로 보이는 임차인 이한나를 세대주로 하는 세대가 전입되어 있음.

매각결과+

매각일자 / 결과 응찰자수 최고가 금액/응찰자명 차순위 금액

동일사건 물건목록

번호 주소 상태/입찰일 물건내역
1
본건
경기도 화성시 동탄하나1길 61, 1층104호 (능동,동탄헤리움) 배당종결
2022.08.09
-
2 경기도 화성시 동탄하나1길 61, 1층117호 (능동,동탄헤리움) 배당종결
2022.06.16
바로가기
부동산
등기
임차인
그 외

부동산

매각목록

※ 건축물 도면은 ‘건축물 대장의 기재 및 관리에 관한 규칙’ 에 따라 현재 경매가 진행중인 물건에만 제공됩니다.
※ 지분물건의 경우 면적은 지분에 해당하는 면적이 아닌 전체 면적으로 표기됩니다

감정평가

감정평가서 요약

1.구분건물감정평가요항표 1) 위치 및 주위환경 본건은 경기도 화성시 능동 소재 "능동고등학교" 북측 인근에 위치하며 주위는 오피스텔, 점포, 공장, 단독주택, 다세대주택, 아파트 등이 혼재하는 지역임. 2) 교통상황 본건은 차량 접근이 용이하며, 인근에 노선버스 정류장이 소재하여 대중교통사정은 무난함. 3) 건물의 구조 철근콘크리트구조 평지붕 20층 중 1층 104호(기호1), 1층 117호(기호2)호로서 외벽 : 석재 및 몰탈위 페인팅 마감. 내벽 : 내장재 인테리어 마감. 창호 : 샷시 페어그라스 창호임. 4) 이용상태 *기호1 1층 104호 : 음식점으로 이용 중임.*기호2 1층 117호 : 헤어?事막?이용 중임. 5) 설비내역 본건 기호1,2는 급.배수시설 갖추었고 건물내 공용 소화설비, 스프링쿨러, 가스공급설비 등이 되어 있음. 6) 토지의 형상 및 이용상태 가장형의 평탄한 토지로서 업무시설 및 근린생활시설 부지로 이용 중임. 7) 인접 도로상태등 북동측으로 중로2류 및 남동측으로 중로1류와 접함. 8) 토지이용계획 및 제한상태 일반상업지역, 제1종지구단위계획구역(2018-09-20), 중로1류(폭 20m-25m)(접합), 가축사육제한구역(2018-01-16)(전부제한구역)<가축분뇨의 관리 및 이용에 관한 법률>, 비행안전제6구역(전술)<군사기지 및 군사시설 보호법>, 성장관리권역<수도권정비계획법>, 토지거래계약에관한허가구역((2020-10-31)외국인, 법인, 단체 대상, 주택용 토지로 한정). 9) 공부와의 차이 없음. 10) 기타참고사항(임대관례 및 기타) 본건 기호1,2의 임대관계는 미상임.

단지정보

동탄헤리움
시공사 (주)힘찬건설 총 주차 대수 662대 (세대당0.69대)
사용승인 2017년 08월 09일(9년차) 동/세대 1동/956세대
관리실 - 최고층 20층
면적 48A㎡, 49B㎡, 59C㎡

주변 입주 예정

거리 단지명 공급년월 세대 수
※ 해당 자료는 한국부동산원 청약홈 자료에 근거하며, 인근 5km 이내의 물건을 기준으로 산정되었습니다.

등기

등기부현황

채권합계 516,440,000원(3건)
등기일자 권리종류 권리자/채권액 권리
2019-02-08
소유자 최광신 (소유자)
단독소유 -
2019-02-08
(을1)
근저당권설정 안산중앙신용협동조합 소멸
말소기준 등기 474,000,000원
2021-04-05
(갑8)
압류 화성시 소멸
- -
2021-05-17
(갑9)
임의경매개시결정
(2021타경5026)
안산중앙신용협동조합 소멸
경매기입 등기 400,745,873원
2021-06-25
(갑10)
가압류 한국캐피탈주식회사 소멸
- 12,449,075원
2021-08-26
(을2)
임차권설정 이한나 소멸
- 30,000,000원
더보기 더보기
※ 신규 발급등기의 분석자료 반영에는 최대 1일까지 소요될수 있습니다.(등기분석,임차인분석,분석노트 등)

임차인

매각물건 명세서

구분 법원 사건번호 작성일자 매각명세서
1 수원지법 2021타경5026[1] 2022.07.22
구분 법원/
사건번호
작성일자 매각명세서
1 수원지법
2021타경5026[1]
2022.07.22

임차인(매각 명세서)

<비고>
이한나:등기사항전부증명서(을구 2번)에 기재된 임차권자와 동일인임

물건 비고(매각 명세서)

음식점으로 이용중임. 선순위 대항력 있는 임차인의 보증금 30,000,000원이 배당에서 전액변제 되지 않을 경우 잔액을 매수인
이 인수하므로 입찰시 주의가 요망됨.

임차인현황

임차인 보증금/차임 전입/확정/배당 대항력
이한나
(점포임차인)
점유부분:
104호 전부
보증:
30,000,000
차임:
1,700,000
사업: 2018-11-12
확정: -
배당: 2021-06-10
-

현황 조사서

조사일시

2021년05월25일10시17분

부동산의 현황

- 목록1 104호는 상가로 `돼지세끼`라는 상호의 식당이나, 폐문부재였음.
- 목록2는 상가1층의 `솜씨`라는 미용실이며 현재 영업중임.
- 104호는 폐문부재여서 구체적인 임대차관계는 상가건물임대차 현황서 및 주민등록표등본과 전입세대열람내역서 등에 기재된 내용에 의하여 작성함.
- 117호는 현장방문하여 만난 임차인 마송아와 배우자의 진술 및 상가건물임대차 현황서에 따라 기재함.

점유 조사

[목록1]현장 방문시 폐문부재였으며 상가건물임대차 현황서에는 임차인 이한나가 기재되어 있고, 또한 전입세대열람 내역서 등에 의하면, 해당 주소에는 동일인으로 보이는 임차인 이한나를 세대주로 하는 세대가 전입되어 있음.

1
소재지 경기도화성시동탄하나1길61,1층104호(능동,동탄헤리움)
점유인 이한나(임차인)
점유부분 104호(주거)
점유기간 미상
보증금/차임 미상/미상
전입/확정일자 2019.02.11/미상
2
소재지 경기도화성시동탄하나1길61,1층104호(능동,동탄헤리움)
점유인 이한나(임차인)
점유부분 동탄헤리움 1층 104호 49.1400㎡(점포)
점유기간 2018.11.13-2021.05.12
보증금/차임 30,000,000/1,700,000
전입/확정일자 2018.11.12/미상

미납관리비 조사내역

확인일자 미납금액 관리소번호 메모

※ 해당 정보는 참고용으로 제공되며 입찰 전 반드시 관리사무소를 통해 직접 확인하시기 바랍니다.

시세

전문가

그외

관할법원 관할법원 (입찰장소)

수원지방법원 본원

경매13계 : 031-210-1114

경기 수원시 영통구 하동 990 주소복사

Q&A Q&A

Q. 대법원경매가 무엇인가요?누구나 입찰에 참여할 수 있나요?

경매채무자(빌린 자)가 채무를 갚지 않았을 때 채권자(빌려준 자)의 신청으로 대법원이 채무자의 재산을 대신 매각하는 과정을 말합니다.

법원은 감정인에게 자산을 평가하게 한 후, 최저가를 정하여 그 금액 이상으로 입찰한 입찰자 중 최고가 매수인을 결정합니다.

대법원의 주관하에 국민 모두가 참여할 수 있습니다.

Q. 경매 입찰은 어떻게 하나요?누구나 입찰에 참여할 수 있나요?

1. 입찰하시고자 하는 경매물건을 정하신 후, 입찰하시고자 하는 입찰가를 최저가 이상으로 정합니다.

2. 해당 물건의 매각기일에 직접 관할법원에 방문하셔서 법원내에 비치된 입찰서를 작성하신 후 입찰하시면 됩니다.

TIP! 법원에 가실 때에는 입찰보증금(최저가의 10~30%)과 신분증을 지참하여 방문하세요.

Q. 용어가 너무 어려워서 내용을 이해하기 어려워요누구나 입찰에 참여할 수 있나요?

매각기일
매각기일은 경매 법원이 부동산에 대하여 매각 입찰을 진행하는 날을 말합니다.

유찰
매각 기일에 매수하고자 하는 사람이 없어 매각되지 않아 무효가 되는 것을 유찰이라고 합니다.

최저 매각 가격
최초 경매를 진행할때 감정인이 평가한 가격을 기준으로 책정한 금액이며 입찰자는 최저 매각 가격과 동일하거나 이상의 금액으로 입찰해야 합니다. 매각 기일에 있어 입찰자가 없어 유찰되면 통상 20~30% 저감된 금액이 다음 최저 매각 가격이 됩니다.

매수 보증금
경매 물건을 매수하고자 하는사람은 최저 매각 가격의 10분의 1(다르게 정해질 수 있음)에 해당하는 보증금액을 입찰표와 함께 집행관에게 제출하는 방법으로 제공합니다. 매각 절차가 종결된 후 집행관은 최고가 매수신고인이나 차순위매수신고인 이외의 매수신청인에게는 즉시 매수 보증금을 반환해 줍니다.

더 많은 내용을 알고 싶다면 경매마당 학습하기 코너에 준비된 용어설명을 이용해보세요.

경매정보는 법원자료와 일치하도록 하였으나 권리사항변동, 입력착오 등의 원인으로 사실과 다를 수 있습니다. 이용약관에 의거 면책조건으로 제공됨을 알리며, 경매입찰시 반드시 관련 공부를 재확인하시기 바랍니다.

PC버전으로 보기