알림

알림 내역

알림 신청내역/취소

NEW
상태가 변경되면
알려드려요!
로고 수원지방법원 본원 [경매10계] 2021타경65455
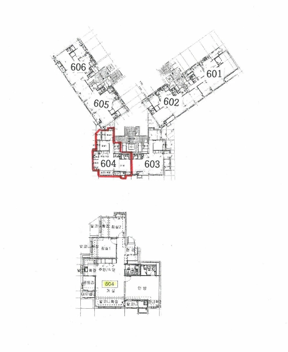
경기도 용인시 수지구 성복2로 10, 103동 6층604호 (성복동,성복역롯데캐슬골드타운)

경기 용인시 수지구 성복동 789

주소복사
경매구분 임의경매
용도 아파트
토지 18.2㎡(5.5평)
건물 85㎡(25.7평)
감정가 1,400,000,000원
최저가 336,140,000원
보증금 33,620,000원 (10%)
청구액 253,698,630원
개시결정 2021년 08월 17일
감정일 2021년 08월 25일
배당종기 2021년 11월 01일
매각일 2023년 01월 31일
2021타경65455
2021타경65455
2021타경65455
2021타경65455
2021타경65455
2021타경65455
2021타경65455
2021타경65455
2021타경65455
2021타경65455
2021타경65455
2021타경65455
감정가
14억원
낙찰가 76%
3억4118만원
배당종결 2023년 01월 31일
유찰 5회선순위임차인
유찰 5회선순위임차인
경매구분 임의경매
용도 아파트
토지 18.2㎡(5.5평)
건물 85㎡(25.7평)
감정가 1,400,000,000원
최저가 336,140,000원
보증금 33,620,000원 (10%)
청구액 253,698,630원
개시결정 2021년 08월 17일
감정일 2021년 08월 25일
배당종기 2021년 11월 01일
매각일 2023년 01월 31일
배당종결 2023년 01월 31일

당사자 내역

채무자겸소유자 김OO
채권자 문OO
임차인 윤OO
근저당권자 김OO
근저당권자 강OO

기일 내역

2023.03.14
납부 (2023.03.10)
2023.02.07
최고가매각허가결정
2023.01.31
3억4118만원 매각
3억3614만원 최저가
2022.12.13
4억8020만원 유찰
2022.11.10
6억8600만원 유찰
2022.10.11
9억8000만원 유찰
2022.09.02
14억원 유찰
2022.07.27
최고가매각불허가결정
2022.07.20
10억1100만1000원 매각
9억8000만원 최저가
2022.06.10
14억원 유찰

물건 비고(공고문)

매수인에게 대항할 수 있는 임차인이 있으므로 입찰시 주의요망(임대차보증금 6억원, 전입일 2020. 2. 7., 확정일자 2020. 1. 14.).

인수되는 권리/가처분(매각 명세서)

을구 순위번호 4번 주택임차권등기(2022. 4. 8. 제43254호)는 말소되지 않고 매수인에게 인수됨.

물건 비고(매각 명세서)

매수인에게 대항할 수 있는 임차인이 있으므로 입찰시 주의요망(임대차보증금 6억원, 전입일 2020. 2. 7., 확정일자 2020. 1.
14.).

현황 조사(현황 조사서)

구체적인 임대차관계는 전입세대열람내역서, 주민등록등본 및 현장에서 만난 임차인 윤석우의 진술 등을 종합하여 작성함.

점유 조사(현황 조사서)

[목록1]현장을 방문하여 임차인 윤석우를 면담하고 안내함. 임차인과 가족이 거주하고 있다고 진술함.

매각결과+

매각일자 / 결과 응찰자수 최고가 금액/응찰자명 차순위 금액
부동산
등기
임차인
그 외

부동산

매각목록

※ 건축물 도면은 ‘건축물 대장의 기재 및 관리에 관한 규칙’ 에 따라 현재 경매가 진행중인 물건에만 제공됩니다.
※ 지분물건의 경우 면적은 지분에 해당하는 면적이 아닌 전체 면적으로 표기됩니다

감정평가

감정평가서 요약

1.구분건물감정평가요항표 1) 위치 및 주위환경 본건은 경기도 용인시 수지구 성복동 소재 "성복역" 동측 인근에 위치하고 있으며 주위는아파트단지, 각급학교, 근린생활시설 등이 혼재하는 지역으로 제반 주위환경은 무난함. 2) 교통상황 본건 단지까지 차량접근 용이하며 인근에 노선버스정류장 및 성복역(지하철)이 소재하여대중교통여건 무난함. 3) 건물의 구조 철근콘크리트구조 (철근)콘크리트지붕 34층 건물내 6층 604호로서(사용승인일 : 2019.06.28) 외벽 : 몰탈위 페인팅마감 및 하단부 화강석붙임 마감 내벽 : 몰탈위 벽지등 마감 창호 : 하이새시 이중창호임. 4) 이용상태 아파트(방3, 거실, 주방/식당, 펜트리, 화장실2, 발코니등)로 이용중임. 5) 설비내역 위생설비 및 급.배수설비, 지역난방설비, 소방설비, 승강기설비, 지하주차장등 갖추었음. 6) 토지의 형상 및 이용상태 광평수의 토지로서 아파트부지로 이용중임. 7) 인접 도로상태등 단지내 포장도로 정비되어 있고 외곽공도와 연계됨. 8) 토지이용계획 및 제한상태 성복동 789번지 기준 : 도시지역, 일반상업지역, 지구단위계획구역, 대로1류(폭35m-40m)(저촉), 중로3류(폭12m- 15m)(접합), 철도(신분당선연장(정자-광교)복선전철 민간투자사업)(저촉), 가축사육제한 구역, 상대보호구역, 비행안전제3구역(전술), 준보전산지, 성장관리권역, 토지거래계약에 관한 허가구역임. 9) 공부와의 차이 없음. 10) 기타참고사항(임대관례 및 기타) 임대관계 미상임.

단지정보

성복역롯데캐슬골드타운
시공사 롯데건설(주) 총 주차 대수 2817대 (세대당1.19대)
사용승인 2019년 06월 28일(7년차) 동/세대 13동/2356세대
관리실 031-266-8801 최고층 34층
면적 115A㎡, 116B㎡, 136㎡

주변 입주 예정

거리 단지명 공급년월 세대 수
※ 해당 자료는 한국부동산원 청약홈 자료에 근거하며, 인근 5km 이내의 물건을 기준으로 산정되었습니다.

등기

등기부현황

채권합계 728,400,000원(2건)
등기일자 권리종류 권리자/채권액 권리
2019-11-14
소유자 김종현 (소유자)
단독소유 -
2021-07-07
(을3)
(1)근저당권설정 문보국 소멸
말소기준 등기 300,000,000
2021-07-07
(을3)
(2)근저당권설정 강민규 소멸
- 171,600,000
2021-07-07
(을3)
(3)근저당권설정 김정훈 소멸
- 128,400,000
2021-08-17
(갑4)
임의경매개시결정
(2021타경65455)
문보국 소멸
경매기입 등기 253,698,630원
2022-04-08
(을4)
임차권설정 윤석우 소멸
- 600,000,000
더보기 더보기
※ 신규 발급등기의 분석자료 반영에는 최대 1일까지 소요될수 있습니다.(등기분석,임차인분석,분석노트 등)

임차인

매각물건 명세서

구분 법원 사건번호 작성일자 매각명세서
1 수원지법 2021타경65455[1] 2023.01.10
구분 법원/
사건번호
작성일자 매각명세서
1 수원지법
2021타경65455[1]
2023.01.10

인수되는 권리/가처분(매각 명세서)

을구 순위번호 4번 주택임차권등기(2022. 4. 8. 제43254호)는 말소되지 않고 매수인에게 인수됨.

물건 비고(매각 명세서)

매수인에게 대항할 수 있는 임차인이 있으므로 입찰시 주의요망(임대차보증금 6억원, 전입일 2020. 2. 7., 확정일자 2020. 1.
14.).

임차인현황

임차인 보증금/차임 전입/확정/배당 대항력
[현황조사]
윤석우
(주거임차인)
점유부분:
604호
보증:
600,000,000
차임:
-
전입: 2020-02-07
확정: -
배당: -
-

현황 조사서

조사일시

2021년08월25일11시35분

부동산의 현황

구체적인 임대차관계는 전입세대열람내역서, 주민등록등본 및 현장에서 만난 임차인 윤석우의 진술 등을 종합하여 작성함.

점유 조사

[목록1]현장을 방문하여 임차인 윤석우를 면담하고 안내함. 임차인과 가족이 거주하고 있다고 진술함.

1
소재지 경기도용인시수지구성복2로10,103동6층604호(성복동,성복역롯데캐슬골드타운)
점유인 윤석우(임차인)
점유부분 604호(주거)
점유기간 2020.02-현재
보증금/차임 600,000,000/미상
전입/확정일자 2020.02.07/미상

미납관리비 조사내역

확인일자 미납금액 관리소번호 메모

※ 해당 정보는 참고용으로 제공되며 입찰 전 반드시 관리사무소를 통해 직접 확인하시기 바랍니다.

시세

전문가

그외

관할법원 관할법원 (입찰장소)

수원지방법원 본원

경매10계 : 031-210-1114

경기 수원시 영통구 하동 990 주소복사

Q&A Q&A

Q. 대법원경매가 무엇인가요?누구나 입찰에 참여할 수 있나요?

경매채무자(빌린 자)가 채무를 갚지 않았을 때 채권자(빌려준 자)의 신청으로 대법원이 채무자의 재산을 대신 매각하는 과정을 말합니다.

법원은 감정인에게 자산을 평가하게 한 후, 최저가를 정하여 그 금액 이상으로 입찰한 입찰자 중 최고가 매수인을 결정합니다.

대법원의 주관하에 국민 모두가 참여할 수 있습니다.

Q. 경매 입찰은 어떻게 하나요?누구나 입찰에 참여할 수 있나요?

1. 입찰하시고자 하는 경매물건을 정하신 후, 입찰하시고자 하는 입찰가를 최저가 이상으로 정합니다.

2. 해당 물건의 매각기일에 직접 관할법원에 방문하셔서 법원내에 비치된 입찰서를 작성하신 후 입찰하시면 됩니다.

TIP! 법원에 가실 때에는 입찰보증금(최저가의 10~30%)과 신분증을 지참하여 방문하세요.

Q. 용어가 너무 어려워서 내용을 이해하기 어려워요누구나 입찰에 참여할 수 있나요?

매각기일
매각기일은 경매 법원이 부동산에 대하여 매각 입찰을 진행하는 날을 말합니다.

유찰
매각 기일에 매수하고자 하는 사람이 없어 매각되지 않아 무효가 되는 것을 유찰이라고 합니다.

최저 매각 가격
최초 경매를 진행할때 감정인이 평가한 가격을 기준으로 책정한 금액이며 입찰자는 최저 매각 가격과 동일하거나 이상의 금액으로 입찰해야 합니다. 매각 기일에 있어 입찰자가 없어 유찰되면 통상 20~30% 저감된 금액이 다음 최저 매각 가격이 됩니다.

매수 보증금
경매 물건을 매수하고자 하는사람은 최저 매각 가격의 10분의 1(다르게 정해질 수 있음)에 해당하는 보증금액을 입찰표와 함께 집행관에게 제출하는 방법으로 제공합니다. 매각 절차가 종결된 후 집행관은 최고가 매수신고인이나 차순위매수신고인 이외의 매수신청인에게는 즉시 매수 보증금을 반환해 줍니다.

더 많은 내용을 알고 싶다면 경매마당 학습하기 코너에 준비된 용어설명을 이용해보세요.

경매정보는 법원자료와 일치하도록 하였으나 권리사항변동, 입력착오 등의 원인으로 사실과 다를 수 있습니다. 이용약관에 의거 면책조건으로 제공됨을 알리며, 경매입찰시 반드시 관련 공부를 재확인하시기 바랍니다.

PC버전으로 보기
NEW
상태가 변경되면
알려드려요!