알림

알림 내역

알림 신청내역/취소

대법원
물건내역
사건내역
기일내역
송달내역
현황조사
지도
사진보기
문서
매각기일공고문
매각물건명세서
감정평가서 M
등기부등본
전입세대열람원 M
건축물대장 M
분석
예상배당표 M
수익률분석 M
입찰가분석 M
조회수분석 M
인근지역통계 M
사이트
대법원
국토부 실거래가
토지이음
아실
네이버 단지정보
네이버 매물정보
호갱노노
부동산플래닛
로고 수원지방법원 본원 [경매3계] 2024타경4819
경기도 수원시 영통구 광교마을로 156, 4010동 26층2604호 (하동,광교마을40단지)

경기 수원시 영통구 하동 1001

주소복사
경매구분 임의경매
용도 아파트
토지 71.46㎡(21.62평)
건물 101.97㎡(30.85평)
감정가 853,000,000원
최저가 597,100,000원
보증금 59,710,000원 (10%)
청구액 277,880,968원
개시결정 2024년 04월 30일
감정일 2024년 05월 23일
배당종기 2024년 07월 17일
매각일 2025년 03월 28일
2024타경4819
2024타경4819
2024타경4819
2024타경4819
2024타경4819
2024타경4819
2024타경4819
2024타경4819
2024타경4819
2024타경4819
2024타경4819
감정가
8억5300만원
2764만9919원/평
낙찰가 9%
7억7787만7777원
배당종결 2025년 03월 28일
유찰 1회임차권등기
유찰 1회임차권등기
경매구분 임의경매
용도 아파트
토지 71.46㎡(21.62평)
건물 101.97㎡(30.85평)
감정가 853,000,000원
최저가 597,100,000원
보증금 59,710,000원 (10%)
청구액 277,880,968원
개시결정 2024년 04월 30일
감정일 2024년 05월 23일
배당종기 2024년 07월 17일
매각일 2025년 03월 28일
배당종결 2025년 03월 28일

당사자 내역

채무자겸소유자 변OO
채권자 유OOOOOOOOOOOOOOOOOOOOOOOOOOOOOOO
승계인 유OOOOOOOOOOOOOOO
근저당권자 한OOOOOOO
가압류권자 주OOOOOOOO
임차권자 김OO
임차권자 주OOOOOOOOOOOOOOOO
교부권자 국OOOOOOOOOOOO
교부권자 수OOOOOO

기일 내역

2025.05.15(15:00)
매각
2025.04.04(14:00)
최고가매각허가결정
2025.03.28(10:00)
7억7787만7777원 매각
5억9710만원 최저가
2025.02.25(10:00)
8억5300만원 유찰

매각공고

임차인(매각 명세서)

<비고>
김현미:2024. 2. 20. 임차권등기
주택도시보증공사(양도인:김현미):2024. 2. 20. 임차권등기

현황 조사(현황 조사서)

해당 부동산의 현황은 외관상 공부의 내용과 일치하는 것으로 보임.

점유 조사(현황 조사서)

[목록1]- 현장에서는 폐문으로 사람을 만나지 못하여 점유관계 확인하지 못하고 현관문에 안내문을 붙여 놓았음.
- 전입세대확인서에는 전입세대가 없는 것으로 나타남.

매각결과+

매각일자 / 결과 응찰자수 최고가 금액/응찰자명 차순위 금액

가장 빠른 경매 정보 플랫폼 경매마당
남들보다 먼저 정보를 선점하세요

간단한 로그인 후 바로 이용 가능합니다

bolt 대법원 보다 빠른 물건 정보
verified 가장 많은 경매 물건 제공
trending_up 월 5회 등기부 무료 열람

현황정보

매각목록

부동산 현황

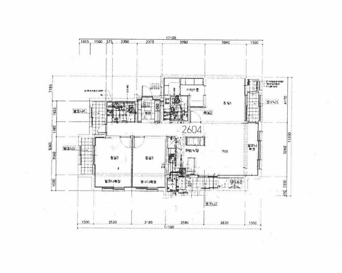
1) 위치 및 주위환경 본건은 경기도 수원시 영통구 하동 소재"이의초등학교"북동측 인근에 위치하며, 부근으로 는 아파트, 단독주택, 각급학교, 관공서, 근린생활시설, 공원등이 소재하며 주거지로서의 제반 주위환경은 무난함. 2) 교통상황 본건단지까지 제반차량 접근이 가능하며, 인근에 버스정류장이 소재하여 대중교통 이용편의 는 보통인 편임. 3) 건물의 구조 철근콘크리트구조 철골조경사지붕 29층건 아파트 중 26층 2604호로서 외벽 : 몰탈위 페인트 및 일부 돌붙임 마감. 내벽 : 벽지도배 및 타일붙임 등 마감. 창호 : 하이새시 이중창호임. 4) 이용상태 아파트(후첨 "내부구조도" 참조)로 이용 중임. 5) 설비내역 기본적인 위생설비 및 급.배수설비, 개별난방설비, 승강기, 소방설비, 지하주차장설비, 공동 현관보안설비등이 되어 있음. 6) 토지의 형상 및 이용상태 평탄하게 부지조성한 부정형 토지로서 아파트 건부지로 이용 중임. 7) 인접 도로상태등 단지내 포장도로 및 지하주차장시설 되어 있고 외곽공도와 연계됨. 8) 토지이용계획 및 제한상태 도시지역, 제3종일반주거지역, 지구단위계획구역(광교지구), 중로1류(폭20m-25m)(2012-01- 05)(접합), 가축사육제한구역, 상대보호구역, 절대보호구역, 비행안전제3구역(전술), 도시 교통정비지역, 과밀억제권역, 택지개발지구임. 9) 공부와의 차이 없음. 10) 기타참고사항(임대관례 및 기타) 임대관계 미상임.

주변 입주 예정

거리 단지명 공급년월 세대 수
※ 해당 자료는 한국부동산원 청약홈 자료에 근거하며, 인근 5km 이내의 물건을 기준으로 산정되었습니다.

등기

등기부현황

채권합계 417,450,000원(2건)
등기일자 권리종류 권리자/채권액 권리
2021-11-29
소유자 변OOOOOOOO OO
단독소유 -
2021-11-29
(을1)
근저당권설정 한OOOOOOO OO
말소기준 등기 121,550,000원
2021-11-29
(을2)
근저당권설정 주OOOOOOO OO
- 295,900,000원
2024-02-20
(을3)
임차권설정 김OO OO
- 520,000,000원
2024-05-01
(갑8)
임의경매개시결정
(2024타경4819)
주OOOOOOO OO
경매기입 등기 277,880,968원
2024-09-06
(갑10)
압류 수OO OO
- -
더보기
※ 신규 발급등기의 분석자료 반영에는 최대 1일까지 소요될수 있습니다.(등기분석,임차인분석,분석노트 등)

임차인

매각물건 명세서

구분 법원 사건번호 작성일자 매각명세서
1 수원지법 2024타경4819[1] 2025.01.24
구분 법원/
사건번호
작성일자 매각명세서
1 수원지법
2024타경4819[1]
2025.01.24

임차인(매각 명세서)

<비고>
김현미:2024. 2. 20. 임차권등기
주택도시보증공사(양도인:김현미):2024. 2. 20. 임차권등기

임차인현황

임차인 보증금/차임 전입/확정/배당 대항력
주OOOOOOOOOOOO
(주거임차권자)
점유부분:
2604호
보증:
520,000,000
차임:
-
전입: 2022-02-21
확정: 2022-02-18
배당: 2024-06-17
멤버십

현황 조사서

조사일시

2024년05월20일09시24분

부동산의 현황

해당 부동산의 현황은 외관상 공부의 내용과 일치하는 것으로 보임.

점유 조사

[목록1]- 현장에서는 폐문으로 사람을 만나지 못하여 점유관계 확인하지 못하고 현관문에 안내문을 붙여 놓았음.
- 전입세대확인서에는 전입세대가 없는 것으로 나타남.

미납관리비 조사내역

확인일자 미납금액 관리소번호 메모

※ 해당 정보는 참고용으로 제공되며 입찰 전 반드시 관리사무소를 통해 직접 확인하시기 바랍니다.

시세분석

인근 낙찰사례

기타

전문가

관할법원 (입찰장소)

수원지방법원 본원

경매3계 : 031-210-1114

경기 수원시 영통구 하동 990 주소복사

Q&A

Q. 대법원경매가 무엇인가요?누구나 입찰에 참여할 수 있나요?

경매채무자(빌린 자)가 채무를 갚지 않았을 때 채권자(빌려준 자)의 신청으로 대법원이 채무자의 재산을 대신 매각하는 과정을 말합니다.

법원은 감정인에게 자산을 평가하게 한 후, 최저가를 정하여 그 금액 이상으로 입찰한 입찰자 중 최고가 매수인을 결정합니다.

대법원의 주관하에 국민 모두가 참여할 수 있습니다.

Q. 경매 입찰은 어떻게 하나요?누구나 입찰에 참여할 수 있나요?

1. 입찰하시고자 하는 경매물건을 정하신 후, 입찰하시고자 하는 입찰가를 최저가 이상으로 정합니다.

2. 해당 물건의 매각기일에 직접 관할법원에 방문하셔서 법원내에 비치된 입찰서를 작성하신 후 입찰하시면 됩니다.

TIP! 법원에 가실 때에는 입찰보증금(최저가의 10~30%)과 신분증을 지참하여 방문하세요.

Q. 용어가 너무 어려워서 내용을 이해하기 어려워요누구나 입찰에 참여할 수 있나요?

매각기일
매각기일은 경매 법원이 부동산에 대하여 매각 입찰을 진행하는 날을 말합니다.

유찰
매각 기일에 매수하고자 하는 사람이 없어 매각되지 않아 무효가 되는 것을 유찰이라고 합니다.

최저 매각 가격
최초 경매를 진행할때 감정인이 평가한 가격을 기준으로 책정한 금액이며 입찰자는 최저 매각 가격과 동일하거나 이상의 금액으로 입찰해야 합니다. 매각 기일에 있어 입찰자가 없어 유찰되면 통상 20~30% 저감된 금액이 다음 최저 매각 가격이 됩니다.

매수 보증금
경매 물건을 매수하고자 하는사람은 최저 매각 가격의 10분의 1(다르게 정해질 수 있음)에 해당하는 보증금액을 입찰표와 함께 집행관에게 제출하는 방법으로 제공합니다. 매각 절차가 종결된 후 집행관은 최고가 매수신고인이나 차순위매수신고인 이외의 매수신청인에게는 즉시 매수 보증금을 반환해 줍니다.

더 많은 내용을 알고 싶다면 경매마당 학습하기 코너에 준비된 용어설명을 이용해보세요.

경매정보는 법원자료와 일치하도록 하였으나 권리사항변동, 입력착오 등의 원인으로 사실과 다를 수 있습니다. 이용약관에 의거 면책조건으로 제공됨을 알리며, 경매입찰시 반드시 관련 공부를 재확인하시기 바랍니다.

PC버전으로 보기