알림

알림 내역

알림 신청내역/취소

대법원
물건내역
사건내역
기일내역
송달내역
현황조사
지도
사진보기
문서
매각기일공고문
매각물건명세서
감정평가서 M
등기부등본
전입세대열람원 M
건축물대장 M
분석
예상배당표 M
수익률분석 M
입찰가분석 M
조회수분석 M
인근지역통계 M
사이트
대법원
국토부 실거래가
토지이음
아실
네이버 단지정보
네이버 매물정보
호갱노노
부동산플래닛
로고 수원지방법원 본원 [경매15계] 2024타경69229
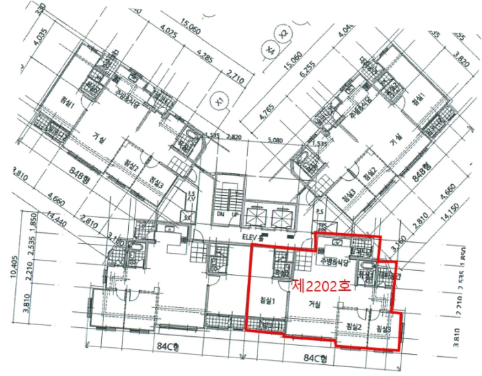
경기도 화성시 동탄대로시범길 122, 1470동 22층2202호 (청계동,동탄역시범호반써밋)

경기 화성시 청계동 525

주소복사
경매구분 강제경매
용도 아파트
토지 63.07㎡(19.08평)
건물 84.99㎡(25.71평)
감정가 960,000,000원
최저가 672,000,000원
보증금 67,200,000원 (10%)
청구액 18,448,902원
개시결정 2024년 05월 16일
감정일 2024년 05월 27일
배당종기 2024년 08월 01일
매각일 2025년 11월 12일
2024타경69229
2024타경69229
2024타경69229
2024타경69229
2024타경69229
2024타경69229
2024타경69229
2024타경69229
2024타경69229
감정가
9억6000만원
3733만9557원/평
최저가 30%
6억7200만원
2613만7690원/평
취하 2025년 11월 12일
유찰 1회
유찰 1회
경매구분 강제경매
용도 아파트
토지 63.07㎡(19.08평)
건물 84.99㎡(25.71평)
감정가 960,000,000원
최저가 672,000,000원
보증금 67,200,000원 (10%)
청구액 18,448,902원
개시결정 2024년 05월 16일
감정일 2024년 05월 27일
배당종기 2024년 08월 01일
매각일 2025년 11월 12일
취하 2025년 11월 12일

당사자 내역

채무자겸소유자 최OO
채권자 신OOOOOOOO
압류권자 화OOOOOOO
배당요구권자 현OOOOOOOO
배당요구권자 주OOOOOOOOOOO
교부권자 동OOOOO
교부권자 국OOOOOOOOOOOO
가압류권자 신OOOOOOOO
가압류권자 삼OOOOOOOO
가압류권자 주OOOOOOOOOOO
근저당권부질권자 느OOOOOOOOOO
가압류권자 주OOOOOOOO
근저당권자 엠OOOOOOOOOOOOOOOOOOOOOOO
근저당권자 에OOOOOOOOOOOOOOOOOOOOOOOOOOOOOOOOO
배당요구권자 신OOOOOOOO
교부권자 화OOOOOOO
배당요구권자 주OOOOOOO

기일 내역

취하
2025.11.12(10:00)
6억7200만원 진행
2025.10.13(10:00)
9억6000만원 유찰

매각공고

기일 변경(2025년11월10일)

2025.11.10. 변경 후 추후지정

현황 조사(현황 조사서)

해당 부동산의 현황은 외

점유 조사(현황 조사서)

[목록1]해당 부동산에 대하여 현황조사차 방문하였는바, 폐문부재로 소유자 및 점유자 등을 만날 수 없어 출입문에 안내문을 부착하여 두었으며, 전입세대확인서 등에 의하면, 해당 주소에는 채무자 겸 소유자를 세대주로 하는 세대가 전입되어 있음.

매각결과+

매각일자 / 결과 응찰자수 최고가 금액/응찰자명 차순위 금액

가장 빠른 경매 정보 플랫폼 경매마당
남들보다 먼저 정보를 선점하세요

간단한 로그인 후 바로 이용 가능합니다

bolt 대법원 보다 빠른 물건 정보
verified 가장 많은 경매 물건 제공
trending_up 월 5회 등기부 무료 열람

현황정보

매각목록

부동산 현황

1) 위치 및 주위환경 본건은 경기도 화성시 청계동 소재 "동탄중앙초등학교" 남측 인근에 위치하며, 주변은 근린생활시설, 아파트 등이 혼재하는 아파트지대임. 2) 교통상황 본건까지 차량 진출입이 가능하며, 인근노선버스정류장까지의 거리 등을 고려시 대중교통환경은 양호함. 3) 건물의 구조 철근콘크리트구조 경사지붕 27층 건(사용승인:2015.02.12) 내, 제22층 제2202호로, 외벽 : 몰탈 위 페인팅마감 등, 내벽 : 벽지도배 및 타일마감 등, 창호 : 하이샷시 창호 등임. 4) 이용상태 아파트(방3, 주방 및 거실, 화장실2 등)로 이용중임. 5) 설비내역 기본급배수 및 위생설비, 도시가스설비 등을 구비하고 있음. 6) 토지의 형상 및 이용상태 인접토지와 등고평탄한 사다리형의 토지로 아파트건부지로 이용중임. 7) 인접 도로상태등 본건 북측으로 노폭 약 20m 내외의 아스팔트포장도로에 접하며, 동측과 남측으로 노폭 약 30m 내외의 아스팔트포장도로에 각각 접함. 8) 토지이용계획 및 제한상태 제3종일반주거지역(동탄2지구),지구단위계획구역(화성동탄(2)),대로2류(폭 30m-35m)(2014-10-01)(대(주)2-16)(접합),대로3류(폭 25m-30m)(2014-10-01)(대(집)3-11)(접합),중로1류(폭 20m-25m)(2014-10-01)(중(집)1-74)(접합) 가축사육제한구역(2018-01-16)(전부제한구역)<가축분뇨의 관리 및 이용에 관한 법률>, 가축사육제한구역(전부제한)<가축분뇨의 관리 및 이용에 관한 법률>, 상대보호구역(2017-07-19)(화성오산교육지원청문의)<교육환경 보호에 관한 법률> , 상대보호구역(화성오산교육지원청문의)<교육환경 보호에 관한 법률> , 절대보호구역(2017-07-19)(화성오산교육지원청문의)<교육환경 보호에 관한 법률> , 절대보호구역(화성오산교육지원청문의)<교육환경 보호에 관한 법률> , 성장관리권역<수도권정비계획법> , 택지개발지구<택지개발촉진법> 임. 9) 공부와의 차이 - 10) 기타참고사항(임대관례 및 기타) 임대관계는 미상임.

주변 입주 예정

거리 단지명 공급년월 세대 수
※ 해당 자료는 한국부동산원 청약홈 자료에 근거하며, 인근 5km 이내의 물건을 기준으로 산정되었습니다.

등기

등기부현황

채권합계 826,920,000원(6건)
등기일자 권리종류 권리자/채권액 권리
2017-08-17
소유자 최OOOOOOOO OO
단독소유 -
2017-08-17
(을3)
근저당권설정 주OOOOOOO OO
말소기준 등기 401,500,000원
2021-06-29
(을8)
근저당권설정 대OOOOOO OO
- 368,400,000원
2024-11-04
(을8-2)
근저당권이전 엠OOOOOOOOO OO
- -
2024-11-04
(을8-3)
근질권 느OOOOOOOOOO OO
- 368,400,000원
2023-09-27
(갑11)
압류 화OO OO
- -
2023-10-30
(갑12)
가압류 삼OOOOOOO OO
- 14,736,723원
2023-11-14
(갑13)
가압류 주OOOOOOOOOO OO
- 5,241,902원
2024-01-31
(갑14)
가압류 신OOOOOOO OO
- 27,909,825원
2024-04-19
(갑15)
가압류 주OOOOOOO OO
- 9,155,624원
2024-05-16
(갑16)
강제경매개시결정
(2024타경69229)
신OOOOOOO OO
경매기입 등기 18,448,902원
2024-06-10
(갑17)
임의경매개시결정
(2024타경6341)
주OOOOOOO OO
경매기입 등기
2024-07-19
(갑18)
임의경매개시결정
(2024타경7993)
중OOOOOOOOOOOOOOOOOOOOOO OO
경매기입 등기
더보기
※ 신규 발급등기의 분석자료 반영에는 최대 1일까지 소요될수 있습니다.(등기분석,임차인분석,분석노트 등)

임차인

매각물건 명세서

구분 법원 사건번호 작성일자 매각명세서
1 수원지법 2024타경69229[1] 2025. 10. 30.
2 수원지법 2024타경69229[1] 2025. 9. 22.
구분 법원/
사건번호
작성일자 매각명세서
1 수원지법
2024타경69229[1]
2025. 10. 30.
2 수원지법
2024타경69229[1]
2025. 9. 22.

임차인현황

임차인 보증금/차임 전입/확정/배당 대항력
매각물건명세서상 임차인이 존재하지 않습니다.

현황 조사서

조사일시

2024년06월18일12시02분

부동산의 현황

해당 부동산의 현황은 외

점유 조사

[목록1]해당 부동산에 대하여 현황조사차 방문하였는바, 폐문부재로 소유자 및 점유자 등을 만날 수 없어 출입문에 안내문을 부착하여 두었으며, 전입세대확인서 등에 의하면, 해당 주소에는 채무자 겸 소유자를 세대주로 하는 세대가 전입되어 있음.

미납관리비 조사내역

확인일자 미납금액 관리소번호 메모

※ 해당 정보는 참고용으로 제공되며 입찰 전 반드시 관리사무소를 통해 직접 확인하시기 바랍니다.

시세분석

인근 낙찰사례

기타

전문가

관할법원 (입찰장소)

수원지방법원 본원

경매15계 : 031-210-1114

경기 수원시 영통구 하동 990 주소복사

Q&A

Q. 대법원경매가 무엇인가요?누구나 입찰에 참여할 수 있나요?

경매채무자(빌린 자)가 채무를 갚지 않았을 때 채권자(빌려준 자)의 신청으로 대법원이 채무자의 재산을 대신 매각하는 과정을 말합니다.

법원은 감정인에게 자산을 평가하게 한 후, 최저가를 정하여 그 금액 이상으로 입찰한 입찰자 중 최고가 매수인을 결정합니다.

대법원의 주관하에 국민 모두가 참여할 수 있습니다.

Q. 경매 입찰은 어떻게 하나요?누구나 입찰에 참여할 수 있나요?

1. 입찰하시고자 하는 경매물건을 정하신 후, 입찰하시고자 하는 입찰가를 최저가 이상으로 정합니다.

2. 해당 물건의 매각기일에 직접 관할법원에 방문하셔서 법원내에 비치된 입찰서를 작성하신 후 입찰하시면 됩니다.

TIP! 법원에 가실 때에는 입찰보증금(최저가의 10~30%)과 신분증을 지참하여 방문하세요.

Q. 용어가 너무 어려워서 내용을 이해하기 어려워요누구나 입찰에 참여할 수 있나요?

매각기일
매각기일은 경매 법원이 부동산에 대하여 매각 입찰을 진행하는 날을 말합니다.

유찰
매각 기일에 매수하고자 하는 사람이 없어 매각되지 않아 무효가 되는 것을 유찰이라고 합니다.

최저 매각 가격
최초 경매를 진행할때 감정인이 평가한 가격을 기준으로 책정한 금액이며 입찰자는 최저 매각 가격과 동일하거나 이상의 금액으로 입찰해야 합니다. 매각 기일에 있어 입찰자가 없어 유찰되면 통상 20~30% 저감된 금액이 다음 최저 매각 가격이 됩니다.

매수 보증금
경매 물건을 매수하고자 하는사람은 최저 매각 가격의 10분의 1(다르게 정해질 수 있음)에 해당하는 보증금액을 입찰표와 함께 집행관에게 제출하는 방법으로 제공합니다. 매각 절차가 종결된 후 집행관은 최고가 매수신고인이나 차순위매수신고인 이외의 매수신청인에게는 즉시 매수 보증금을 반환해 줍니다.

더 많은 내용을 알고 싶다면 경매마당 학습하기 코너에 준비된 용어설명을 이용해보세요.

경매정보는 법원자료와 일치하도록 하였으나 권리사항변동, 입력착오 등의 원인으로 사실과 다를 수 있습니다. 이용약관에 의거 면책조건으로 제공됨을 알리며, 경매입찰시 반드시 관련 공부를 재확인하시기 바랍니다.

PC버전으로 보기