알림

알림 내역

알림 신청내역/취소

대법원
물건내역
사건내역
기일내역
송달내역
현황조사
지도
사진보기
문서
매각기일공고문
매각물건명세서
감정평가서 M
등기부등본
전입세대열람원 M
건축물대장 M
분석
예상배당표 M
수익률분석 M
입찰가분석 M
조회수분석 M
인근지역통계 M
사이트
대법원
국토부 실거래가
토지이음
아실
네이버 단지정보
네이버 매물정보
호갱노노
부동산플래닛
로고 수원지방법원 본원 [경매5계] 2024타경79189
경기도 화성시 태안로 113-6, 5층501호

경기 화성시 병점동 756-251

주소복사
경매구분 강제경매
용도 다세대
토지 30.6㎡(9.26평)
건물 34.88㎡(10.55평)
감정가 168,000,000원
최저가 82,320,000원
보증금 8,232,000원 (10%)
청구액 160,658,900원
개시결정 2024년 07월 12일
감정일 2024년 07월 31일
배당종기 2024년 09월 25일
매각일 2025년 09월 17일
2024타경79189
2024타경79189
2024타경79189
2024타경79189
2024타경79189
2024타경79189
2024타경79189
2024타경79189
2024타경79189
2024타경79189
2024타경79189
2024타경79189
2024타경79189
2024타경79189
감정가
1억6800만원
1592만4171원/평
낙찰가 51%
8232만원
배당종결 2025년 09월 17일
유찰 2회선순위임차인임차권등기
유찰 2회선순위임차인임차권등기
경매구분 강제경매
용도 다세대
토지 30.6㎡(9.26평)
건물 34.88㎡(10.55평)
감정가 168,000,000원
최저가 82,320,000원
보증금 8,232,000원 (10%)
청구액 160,658,900원
개시결정 2024년 07월 12일
감정일 2024년 07월 31일
배당종기 2024년 09월 25일
매각일 2025년 09월 17일
배당종결 2025년 09월 17일

당사자 내역

채무자겸소유자 권OO
채권자 구OO
교부권자 광OOOOOOOO
교부권자 서OOOOOOOO
교부권자 노OO
교부권자 남OOOO
교부권자 도OO
교부권자 은OO
교부권자 관OO
교부권자 서OOOOOOOO
교부권자 이OO
교부권자 서OOOOOOOO
교부권자 서OOOOOOOO
교부권자 서OOOOOOOO
임차권자 구OO
교부권자 서OOOOOOOO
교부권자 서OOOO
교부권자 서OOOOOOOOO
교부권자 화OOOOOOO
교부권자 의OOO
교부권자 서OOOOOOOO
교부권자 파OO
교부권자 수OOOOOO
교부권자 동OOOOO
압류권자 수OOOOOO
압류권자 화OOOOOOO
압류권자 안OOOO
가압류권자 주OOOOOOO
임차인 구OO
교부권자 서OOO

기일 내역

2025.10.29(15:00)
진행
2025.09.24(14:00)
최고가매각허가결정
2025.09.17(10:00)
8232만원 매각
8232만원 최저가
2025.08.19(10:00)
1억1760만원 유찰
2025.07.02(10:00)
1억6800만원 유찰

매각공고

임차인(매각 명세서)

<비고>
구본우:신청채권자 겸 임차인으로 주택임차권등기일은 2024. 3. 6.임

인수되는 권리/가처분(매각 명세서)

매수인에게 대항할 수 있는 을구 3번 주택임차권등기 있음(2024.3.6. 등기), 배당에서 보증금이 전액 변제되지 아니하면 잔액을
매수인이 인수함

현황 조사(현황 조사서)

해당 부동산의 현황은 외 전입세대확인서 및 주민등록등본에 의하여 작성함.

점유 조사(현황 조사서)

[목록1]해당 부동산에 대하여 현황조사차 방문을 하였는바, 폐문부재로 소유자 및 점유자 등을 만날 수 없어 출입문에 안내문을 부착하여 두었으며, 전입세대확인서 등에 의하면, 해당 주소에는 소유자나 채무자가 아닌 세대주가 거주하고 있는 것으로 기재되어 있는바, 일단 동인을 임차인으로 등재 함.

매각결과+

매각일자 / 결과 응찰자수 최고가 금액/응찰자명 차순위 금액

가장 빠른 경매 정보 플랫폼 경매마당
남들보다 먼저 정보를 선점하세요

간단한 로그인 후 바로 이용 가능합니다

bolt 대법원 보다 빠른 물건 정보
verified 가장 많은 경매 물건 제공
trending_up 월 5회 등기부 무료 열람

현황정보

매각목록

부동산 현황

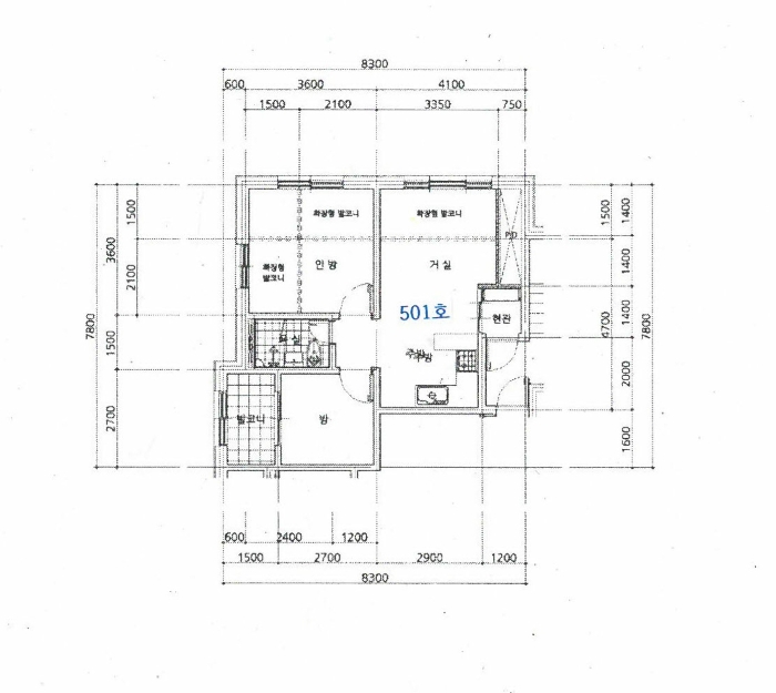
1) 위치 및 주위환경 본건은 경기도 화성시 병점동 소재 " 병점역 " 남측 근거리에 위치하며 주위는 다세대주택 아파트단지, 근린생활시설 등이 혼재하는 지역임. 2) 교통상황 본건까지 차량 접근이 용이하며, 인근에 노선버스 정류장 및 병점역까지 거리 및 운행빈도 등으로 보아 대중교통사정은 보통임. 3) 건물의 구조 철근콘크리트구조 (철근)콘크리트지붕 5층 중 5층 501호로서 외벽 : 치장 벽돌 쌓기 및 외장타일 붙임 마감. 내벽 : 벽지 도배 및 일부 타일 붙임 마감. 창호 : 샷시 이중 창호임. 4) 이용상태 다세대주택(후첨 "내부구조도" 참조)으로 이용 중임. 5) 설비내역 위생설비 및 급.배수설비, 승강기설비 등 갖추었으며, 도시가스에 의한 개별난방구조임. 6) 토지의 형상 및 이용상태 인접도로 대비 등고 평탄한 사다리형의 토지로서 다세대주택 건부지로 이용 중임. 7) 인접 도로상태등 본건 남동측으로 노폭 약6M 내외의 포장도로에 접하고 있음. 8) 토지이용계획 및 제한상태 제1종일반주거지역 , 소로2류(폭 8m-10m)(접합) , 중로1류(폭 20m-25m)(접합), 가축사육 제한구역(전부제한)<가축분뇨의 관리 및 이용에 관한 법률>, 상대보호구역(화성오산교육 지원청 문의)<교육환경 보호에 관한 법률>,비행안전제2구역(전술)<군사기지 및 군사시설 보호법>, 성장관리권역<수도권정비계획법>. 9) 공부와의 차이 없음. 10) 기타참고사항(임대관례 및 기타) 임대관계 미상임.

주변 입주 예정

거리 단지명 공급년월 세대 수
※ 해당 자료는 한국부동산원 청약홈 자료에 근거하며, 인근 5km 이내의 물건을 기준으로 산정되었습니다.

등기

등기부현황

채권합계 2,071,000,000원(1건)
등기일자 권리종류 권리자/채권액 권리
2020-10-30
소유자 권OOOOOOOO OO
단독소유 -
2022-03-30
(갑5)
압류 안OOOOO OO
말소기준 등기 -
2022-09-20
(갑8)
가압류 주OOOOOOO OO
- 2,071,000,000원
2022-10-14
(갑9)
압류 화OO OO
- -
2023-11-29
(갑10)
압류 수OO OO
- -
2024-03-06
(을3)
임차권설정 구OO OO
- 160,000,000원
2024-07-12
(갑11)
강제경매개시결정
(2024타경79189)
구OO OO
경매기입 등기 160,658,900원
2025-03-17
(갑12)
압류 남OOOOO OO
- -
더보기
※ 신규 발급등기의 분석자료 반영에는 최대 1일까지 소요될수 있습니다.(등기분석,임차인분석,분석노트 등)

임차인

매각물건 명세서

구분 법원 사건번호 작성일자 매각명세서
1 수원지법 2024타경79189[1] 2025. 5. 13.
구분 법원/
사건번호
작성일자 매각명세서
1 수원지법
2024타경79189[1]
2025. 5. 13.

임차인(매각 명세서)

<비고>
구본우:신청채권자 겸 임차인으로 주택임차권등기일은 2024. 3. 6.임

인수되는 권리/가처분(매각 명세서)

매수인에게 대항할 수 있는 을구 3번 주택임차권등기 있음(2024.3.6. 등기), 배당에서 보증금이 전액 변제되지 아니하면 잔액을
매수인이 인수함

임차인현황

임차인 보증금/차임 전입/확정/배당 대항력
구OO
(주거임차인)
점유부분:
501호
보증:
160,000,000
차임:
-
전입: 2022-02-22
확정: 2022-01-24
배당: 2024.9.23.
멤버십

현황 조사서

조사일시

2024년07월26일11시14분

부동산의 현황

해당 부동산의 현황은 외 전입세대확인서 및 주민등록등본에 의하여 작성함.

점유 조사

[목록1]해당 부동산에 대하여 현황조사차 방문을 하였는바, 폐문부재로 소유자 및 점유자 등을 만날 수 없어 출입문에 안내문을 부착하여 두었으며, 전입세대확인서 등에 의하면, 해당 주소에는 소유자나 채무자가 아닌 세대주가 거주하고 있는 것으로 기재되어 있는바, 일단 동인을 임차인으로 등재 함.

1
소재지 경기도 화성시 태안로 113-6, 5층501호
점유인 구OO(임차인)
점유부분 501호(주거)
점유기간 미상
보증금/차임 미상/미상
전입/확정일자 2022.02.22/미상

미납관리비 조사내역

확인일자 미납금액 관리소번호 메모

※ 해당 정보는 참고용으로 제공되며 입찰 전 반드시 관리사무소를 통해 직접 확인하시기 바랍니다.

시세분석

인근 낙찰사례

기타

전문가

관할법원 (입찰장소)

수원지방법원 본원

경매5계 : 031-210-1114

경기 수원시 영통구 하동 990 주소복사

Q&A

Q. 대법원경매가 무엇인가요?누구나 입찰에 참여할 수 있나요?

경매채무자(빌린 자)가 채무를 갚지 않았을 때 채권자(빌려준 자)의 신청으로 대법원이 채무자의 재산을 대신 매각하는 과정을 말합니다.

법원은 감정인에게 자산을 평가하게 한 후, 최저가를 정하여 그 금액 이상으로 입찰한 입찰자 중 최고가 매수인을 결정합니다.

대법원의 주관하에 국민 모두가 참여할 수 있습니다.

Q. 경매 입찰은 어떻게 하나요?누구나 입찰에 참여할 수 있나요?

1. 입찰하시고자 하는 경매물건을 정하신 후, 입찰하시고자 하는 입찰가를 최저가 이상으로 정합니다.

2. 해당 물건의 매각기일에 직접 관할법원에 방문하셔서 법원내에 비치된 입찰서를 작성하신 후 입찰하시면 됩니다.

TIP! 법원에 가실 때에는 입찰보증금(최저가의 10~30%)과 신분증을 지참하여 방문하세요.

Q. 용어가 너무 어려워서 내용을 이해하기 어려워요누구나 입찰에 참여할 수 있나요?

매각기일
매각기일은 경매 법원이 부동산에 대하여 매각 입찰을 진행하는 날을 말합니다.

유찰
매각 기일에 매수하고자 하는 사람이 없어 매각되지 않아 무효가 되는 것을 유찰이라고 합니다.

최저 매각 가격
최초 경매를 진행할때 감정인이 평가한 가격을 기준으로 책정한 금액이며 입찰자는 최저 매각 가격과 동일하거나 이상의 금액으로 입찰해야 합니다. 매각 기일에 있어 입찰자가 없어 유찰되면 통상 20~30% 저감된 금액이 다음 최저 매각 가격이 됩니다.

매수 보증금
경매 물건을 매수하고자 하는사람은 최저 매각 가격의 10분의 1(다르게 정해질 수 있음)에 해당하는 보증금액을 입찰표와 함께 집행관에게 제출하는 방법으로 제공합니다. 매각 절차가 종결된 후 집행관은 최고가 매수신고인이나 차순위매수신고인 이외의 매수신청인에게는 즉시 매수 보증금을 반환해 줍니다.

더 많은 내용을 알고 싶다면 경매마당 학습하기 코너에 준비된 용어설명을 이용해보세요.

경매정보는 법원자료와 일치하도록 하였으나 권리사항변동, 입력착오 등의 원인으로 사실과 다를 수 있습니다. 이용약관에 의거 면책조건으로 제공됨을 알리며, 경매입찰시 반드시 관련 공부를 재확인하시기 바랍니다.

PC버전으로 보기