알림

알림 내역

알림 신청내역/취소

로고 수원지방법원 성남지원 [경매5계] 2021타경741
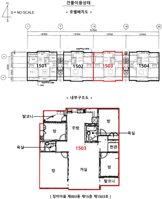
경기도 성남시 분당구 장미로 101, 803동 15층1503호 (야탑동,장미마을)

경기 성남시 분당구 야탑동 334

주소복사
경매구분 임의경매
용도 아파트
토지 52.2㎡(15.8평)
건물 101.99㎡(30.9평)
감정가 1,230,000,000원
최저가 861,000,000원
보증금 86,100,000원 (10%)
청구액 2,000,000,000원
개시결정 2021년 02월 04일
감정일 2021년 02월 18일
배당종기 2021년 04월 12일
매각일 2022년 06월 13일
2021타경741
2021타경741
2021타경741
2021타경741
2021타경741
2021타경741
2021타경741
2021타경741
2021타경741
감정가
12억3000만원
낙찰가 13%
10억6530만원
배당종결 2022년 06월 13일
유찰 1회선순위임차인
유찰 1회선순위임차인
경매구분 임의경매
용도 아파트
토지 52.2㎡(15.8평)
건물 101.99㎡(30.9평)
감정가 1,230,000,000원
최저가 861,000,000원
보증금 86,100,000원 (10%)
청구액 2,000,000,000원
개시결정 2021년 02월 04일
감정일 2021년 02월 18일
배당종기 2021년 04월 12일
매각일 2022년 06월 13일
배당종결 2022년 06월 13일

당사자 내역

소유자 이OO
채권자 에OOOOOOOOOOOOOOOOO
채무자 주OOOOOOOOOO
임차인 김OO
교부권자 성OOOOOO
근저당권자 한OOOOO

기일 내역

2022.07.26
납부 (2022.07.26)
2022.06.20
최고가매각허가결정
2022.06.13
기일변경
2022.06.13
10억6530만원 매각
8억6100만원 최저가
2021.11.15
기일변경
2021.09.06
12억3000만원 유찰
2021.08.02
기일변경

기일 변경(2021년11월12일)

변경 후 추후지정

점유 조사(현황 조사서)

[목록1]거주자 김정자와 면담하여 권리신고 및 배당요구신청에 대하여 안내함. 주민센터에서 전입세대열람 결과 소유자가 아닌 주민등록 전입자를 임차인으로 기재하였고 전입세대열람 내역 및 주민등록표 등본을 발급받아 첨부함.

매각결과+

매각일자 / 결과 응찰자수 최고가 금액/응찰자명 차순위 금액
부동산
등기
임차인
그 외

부동산

매각목록

※ 건축물 도면은 ‘건축물 대장의 기재 및 관리에 관한 규칙’ 에 따라 현재 경매가 진행중인 물건에만 제공됩니다.
※ 지분물건의 경우 면적은 지분에 해당하는 면적이 아닌 전체 면적으로 표기됩니다

감정평가

감정평가서 요약

1.구분건물감정평가요항표 1) 위치 및 주위환경 본건은 경기도 성남시 분당구 야탑동 소재 "야탑중학교" 남서측 인근에 위치하며, 인근은 대규모 아파트, 근린생활시설 등이 혼재하는 지역으로, 제반 주위환경은 양호함. 2) 교통상황 본건까지 차량 진출입 가능하며, 인근에 노선버스정류이 소재하는 등 제반 교통상황은 양호함. 3) 건물의 구조 철근콘크리트조 슬래브지붕 15층 건 내 제15층 제1503호로서,외벽: 몰탈위페인팅 등 마감.내벽: 벽지 및 일부타일 등 마감.창호: 샷시 창호 등 마감임. 4) 이용상태 아파트로 이용 중임. 5) 설비내역 기본적인 위생 및 급배수설비, 도시가스설비, 지역난방설비, 소화전설비, 승강기설비 등 제반 설비를 구비하고 있음. 6) 토지의 형상 및 이용상태 대상 토지는 인접 도로 대비 평탄한 사다리형의 토지로서 아파트 및 부대시설 건부지로 이용중임. 7) 인접 도로상태등 대상 토지는 본건 서측으로 성남대로, 북측으로 양현로가 인접해 있고, 남측으로 소로에 접함. 8) 토지이용계획 및 제한상태 기호(1): 제3종일반주거지역, 지구단위계획구역(분당), 소로2류(폭 8M-10M)(특수도로(보행자전용도로))(접합), 가축사육제한구역<가축분뇨의 관리 및 이용에 관한 법률>, 상대보호구역<교육환경 보호에 관한 법률>, 절대보호구역<교육환경 보호에 관한 법률>, 비행안전제5구역(전술)(비행안전제5구역)<군사기지 및 군사시설 보호법>, 비행안전제6구역(전술)<군사기지 및 군사시설 보호법> , 제한보호구역(전술항공:5km)<군사기지 및 군사시설 보호법> , 대기환경규제지역<대기환경보전법> , 도시교통정비지역<도시교통정비촉진법> , 과밀억제권역<수도권정비계획법>, 토지거래계약에관한허가구역(2020-10-31)(외국인 등 및 국내법인·단체 대상, 주택용 토지로 한정)임.기호(2): 제3종일반주거지역, 지구단위계획구역(분당), 대로3류(폭 25M-30M)(보조간선도로)(접합), 대로3류(폭 25M-30M)(접합), 소로2류(폭 8M-10M)(특수도로(보행자전용도로))(접합), 가축사육제한구역<가축분뇨의 관리 및 이용에 관한 법률>, 상대보호구역<교육환경 보호에 관한 법률>, 절대보호구역<교육환경 보호에 관한 법률>, 비행안전제6구역(전술)<군사기지 및 군사시설 보호법> , 제한보호구역(전술항공:5km)<군사기지 및 군사시설 보호법> , 대기환경규제지역<대기환경보전법> , 도시교통정비지역<도시교통정비촉진법> , 과밀억제권역<수도권정비계획법>, 토지거래계약에관한허가구역(2020-10-31)(외국인 등 및 국내법인·단체 대상, 주택용 토지로 한정)임.기호(3): 제3종일반주거지역, 지구단위계획구역(분당), 대로3류(폭 25M-30M)(보조간선도로)(접합), 가축사육제한구역<가축분뇨의 관리 및 이용에 관한 법률>, 상대보호구역<교육환경 보호에 관한 법률>, 비행안전제6구역(전술)<군사기지 및 군사시설 보호법>, 제한보호구역(전술항공:5km)<군사기지 및 군사시설 보호법>, 대기환경규제지역<대기환경보전법> , 도시교통정비지역<도시교통정비촉진법> , 과밀억제권역<수도권정비계획법>, 토지거래계약에관한허가구역(2020-10-31)(외국인 등 및 국내법인·단체 대상, 주택용 토지로 한정)임. 9) 공부와의 차이 -. 10) 기타참고사항(임대관례 및 기타) 임대관계는 미상임.

단지정보

장미8단지현대
시공사 현대산업개발(주).현대건설(주) 총 주차 대수 2773대 (세대당1.29대)
사용승인 1993년 04월 28일(33년차) 동/세대 25동/2136세대
관리실 031-705-2014 최고층 20층
면적 54㎡, 75㎡, 90㎡, 91㎡, 102B㎡, 102A㎡, 121㎡, 124㎡, 158㎡

주변 입주 예정

거리 단지명 공급년월 세대 수
※ 해당 자료는 한국부동산원 청약홈 자료에 근거하며, 인근 5km 이내의 물건을 기준으로 산정되었습니다.

등기

등기부현황

채권합계 2,000,000,000원(1건)
등기일자 권리종류 권리자/채권액 권리
1996-10-16
소유자 이근혁 (소유자)
단독소유 -
2018-10-05
(을15)
근저당권설정 한국산업은행 소멸
말소기준 등기 2,000,000,000원
2021-02-05
(갑11)
임의경매개시결정
(2021타경741)
에이치에프디공삼유동화전문유한회사 소멸
경매기입 등기 2,000,000,000원
※ 신규 발급등기의 분석자료 반영에는 최대 1일까지 소요될수 있습니다.(등기분석,임차인분석,분석노트 등)

임차인

매각물건 명세서

구분 법원 사건번호 작성일자 매각명세서
1 성남지원 2021타경741[1] 2021.08.02
구분 법원/
사건번호
작성일자 매각명세서
1 성남지원
2021타경741[1]
2021.08.02

임차인현황

임차인 보증금/차임 전입/확정/배당 대항력
[현황조사]
김정자
(주거임차인)
점유부분:
미상
보증:
-
차임:
-
전입: 2014-03-05
확정: -
배당: -
-

현황 조사서

조사일시

2021년02월15일09시35분 / 2021년02월15일11시50분

부동산의 현황

-

점유 조사

[목록1]거주자 김정자와 면담하여 권리신고 및 배당요구신청에 대하여 안내함. 주민센터에서 전입세대열람 결과 소유자가 아닌 주민등록 전입자를 임차인으로 기재하였고 전입세대열람 내역 및 주민등록표 등본을 발급받아 첨부함.

1
소재지 경기도성남시분당구장미로101,803동15층1503호(야탑동,장미마을)
점유인 김정자(임차인)
점유부분 미상(주거)
점유기간 미상
보증금/차임 미상/미상
전입/확정일자 2014.03.05/미상

조사일시

-

부동산의 현황

-

점유 조사

[목록1]거주자 김정자와 면담하여 권리신고 및 배당요구신청에 대하여 안내함. 주민센터에서 전입세대열람 결과 소유자가 아닌 주민등록 전입자를 임차인으로 기재하였고 전입세대열람 내역 및 주민등록표 등본을 발급받아 첨부함.

1
소재지 경기도성남시분당구장미로101,803동15층1503호(야탑동,장미마을)
점유인 김정자(임차인)
점유부분 미상(주거)
점유기간 미상
보증금/차임 미상/미상
전입/확정일자 2014.03.05/미상

미납관리비 조사내역

확인일자 미납금액 관리소번호 메모

※ 해당 정보는 참고용으로 제공되며 입찰 전 반드시 관리사무소를 통해 직접 확인하시기 바랍니다.

시세

전문가

그외

관할법원 관할법원 (입찰장소)

수원지방법원 성남지원

경매5계 : 031-737-1558

경기 성남시 수정구 단대동 75 주소복사

Q&A Q&A

Q. 대법원경매가 무엇인가요?누구나 입찰에 참여할 수 있나요?

경매채무자(빌린 자)가 채무를 갚지 않았을 때 채권자(빌려준 자)의 신청으로 대법원이 채무자의 재산을 대신 매각하는 과정을 말합니다.

법원은 감정인에게 자산을 평가하게 한 후, 최저가를 정하여 그 금액 이상으로 입찰한 입찰자 중 최고가 매수인을 결정합니다.

대법원의 주관하에 국민 모두가 참여할 수 있습니다.

Q. 경매 입찰은 어떻게 하나요?누구나 입찰에 참여할 수 있나요?

1. 입찰하시고자 하는 경매물건을 정하신 후, 입찰하시고자 하는 입찰가를 최저가 이상으로 정합니다.

2. 해당 물건의 매각기일에 직접 관할법원에 방문하셔서 법원내에 비치된 입찰서를 작성하신 후 입찰하시면 됩니다.

TIP! 법원에 가실 때에는 입찰보증금(최저가의 10~30%)과 신분증을 지참하여 방문하세요.

Q. 용어가 너무 어려워서 내용을 이해하기 어려워요누구나 입찰에 참여할 수 있나요?

매각기일
매각기일은 경매 법원이 부동산에 대하여 매각 입찰을 진행하는 날을 말합니다.

유찰
매각 기일에 매수하고자 하는 사람이 없어 매각되지 않아 무효가 되는 것을 유찰이라고 합니다.

최저 매각 가격
최초 경매를 진행할때 감정인이 평가한 가격을 기준으로 책정한 금액이며 입찰자는 최저 매각 가격과 동일하거나 이상의 금액으로 입찰해야 합니다. 매각 기일에 있어 입찰자가 없어 유찰되면 통상 20~30% 저감된 금액이 다음 최저 매각 가격이 됩니다.

매수 보증금
경매 물건을 매수하고자 하는사람은 최저 매각 가격의 10분의 1(다르게 정해질 수 있음)에 해당하는 보증금액을 입찰표와 함께 집행관에게 제출하는 방법으로 제공합니다. 매각 절차가 종결된 후 집행관은 최고가 매수신고인이나 차순위매수신고인 이외의 매수신청인에게는 즉시 매수 보증금을 반환해 줍니다.

더 많은 내용을 알고 싶다면 경매마당 학습하기 코너에 준비된 용어설명을 이용해보세요.

경매정보는 법원자료와 일치하도록 하였으나 권리사항변동, 입력착오 등의 원인으로 사실과 다를 수 있습니다. 이용약관에 의거 면책조건으로 제공됨을 알리며, 경매입찰시 반드시 관련 공부를 재확인하시기 바랍니다.

PC버전으로 보기