알림

알림 내역

알림 신청내역/취소

로고 수원지방법원 성남지원 [경매5계] 2021타경1355
경기도 광주시 오포읍 오포로171번길 34-13, 101동 지층비102호 (글렌하우스)

경기 광주시 능평동 102

주소복사
경매구분 임의경매
용도 다세대
토지 50㎡(15.1평)
건물 80.17㎡(24.3평)
감정가 175,000,000원
최저가 85,750,000원
보증금 17,150,000원 (20%)
청구액 90,790,309원
개시결정 2021년 04월 15일
감정일 2021년 04월 22일
배당종기 2021년 06월 21일
매각일 2022년 04월 04일
2021타경1355
2021타경1355
2021타경1355
2021타경1355
2021타경1355
2021타경1355
2021타경1355
2021타경1355
2021타경1355
2021타경1355
2021타경1355
2021타경1355
2021타경1355
감정가
1억7500만원
낙찰가 33%
1억1780만원
배당종결 2022년 04월 04일
유찰 2회재매각
유찰 2회재매각
경매구분 임의경매
용도 다세대
토지 50㎡(15.1평)
건물 80.17㎡(24.3평)
감정가 175,000,000원
최저가 85,750,000원
보증금 17,150,000원 (20%)
청구액 90,790,309원
개시결정 2021년 04월 15일
감정일 2021년 04월 22일
배당종기 2021년 06월 21일
매각일 2022년 04월 04일
배당종결 2022년 04월 04일

당사자 내역

채무자겸소유자 망OOOOOOOOOOOOO
채무자겸소유자 망OOOOOOOOOOOOO
채권자 주OOOOOOOO
교부권자 경OOOOOO
임차인 박OO
교부권자 용OOOO
교부권자 용OO
교부권자 경OOOOO
교부권자 국OOOOOOOOOOOOOO

기일 내역

2022.06.13
기일변경
2022.05.13
기한후납부
2022.04.11
최고가매각허가결정
2022.04.04
1억1780만원 매각
8575만원 최저가
2022.02.09
미납
2021.12.27
최고가매각허가결정
2021.12.20
1억1700만원 매각
8575만원 최저가
2021.11.15
1억2250만원 유찰
2021.09.06
1억7500만원 유찰

물건 비고(공고문)

1.본 건은 공부상 지층이나 일부분이 지상에 노출되어 있고,발코니가 없음. 재매각임. 매수신청보증금 20%

인수되는 권리/가처분(매각 명세서)

해당사항없음

지상권(매각 명세서)

해당사항없음

물건 비고(매각 명세서)

1.본 건은 공부상 지층이나 일부분이 지상에 노출되어 있고,발코니가 없음.
재매각임. 매수신청보증금 20%

현황 조사(현황 조사서)

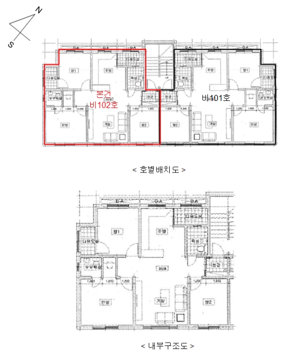
출입문에 `B02`로 표기되어 있음.

점유 조사(현황 조사서)

[목록1]가. 현장에 임하였으나 이해관계인을 만나지 못하여 점유관계를 확인하지 못하였으며, 권리신고 및 배당요구신청 안내문을 현관 출입문 틈에 끼워 두었음. 상세한 점유관계는 별도의 확인이 필요함. 나. 주민센터에서 전입세대열람 결과 소유자가 아닌 주민등록 전입자를 임차인으로 기재하였고 전입세대열람 내역 및 주민등록표 등본을 발급받아 첨부함.

매각결과+

매각일자 / 결과 응찰자수 최고가 금액/응찰자명 차순위 금액
부동산
등기
임차인
그 외

부동산

매각목록

※ 건축물 도면은 ‘건축물 대장의 기재 및 관리에 관한 규칙’ 에 따라 현재 경매가 진행중인 물건에만 제공됩니다.
※ 지분물건의 경우 면적은 지분에 해당하는 면적이 아닌 전체 면적으로 표기됩니다

감정평가

감정평가서 요약

1.구분건물감정평가요항표 1) 위치 및 주위환경 본건은 경기도 광주시 오포읍 능평리 소재 오포서부파출소 북서측 인근에 위치하며, 주위는 계획관리지역으로 다세대주택이 밀집 소재하고 일부 근린생활시설, 농경지, 임야 등으로 이 루어져 있음. 2) 교통상황 본건까지 차량출입 가능하며 인근에 시내버스정류장이 위치하고 제반 대중교통 상황은 보통 임. 3) 건물의 구조 철근콘크리트구조 철근콘크리트 경사스라브지붕 지하1층, 지상4층 다세대주택 건물 내 지층 비102호로서 2015.06.11.자로 사용승인 되었으며 외벽 : 석재붙임 등 마감 내벽 : 벽지 및 타일 등 마감 창호 : 플라스틱샤시 이중창 등 마감임. 4) 이용상태 다세대주택(방3, 거실/주방, 욕실2, 다용도실 등)으로 이용중임. 5) 설비내역 위생설비 및 급배수설비, 도시가스보일러에 의한 개별난방설비 등 되어 있음. 6) 토지의 형상 및 이용상태 사다리형의 토지로서 인접지 및 인접 도로와 대체로 등고평탄하며 다세대주택 건물부지로 이용중임. 7) 인접 도로상태등 북동측으로 폭6미터의 포장도로와 접함. 8) 토지이용계획 및 제한상태 계획관리지역, 성장관리방안 수립지역(성장관리지역(주거형)),자연보전권역, 배출시설 설치 제한지역, 특별대책지역(1권역), 토지거래계약에 관한 허가구역 (토지거래허가에 한하여 토 지정보과로 문의(031-760-2426)/(외국인등 및 국내법인·단체, 주택용 토지에 한정)). 9) 공부와의 차이 없 음. 10) 기타참고사항(임대관례 및 기타) 1) 임대관계 : 미상임. 2) 현장조사시 폐문부재로 내부구조는 집합건축물대장상의 건축물현황도, 외부관찰, 탐문 등에 의하여 작성하였음. 3) 본건은 공부상 지층이나 일부분이 지상에 노출되어 있으며(별첨 사진용지 참조), 발코 니가 없음(지상층의 발코니부분도 지층은 전유면적 부분임).

주변 입주 예정

거리 단지명 공급년월 세대 수
※ 해당 자료는 한국부동산원 청약홈 자료에 근거하며, 인근 5km 이내의 물건을 기준으로 산정되었습니다.

등기

등기부현황

채권합계 99,000,000원(1건)
등기일자 권리종류 권리자/채권액 권리
2015-06-23
(을1)
근저당권설정 주식회사우리은행 소멸
말소기준 등기 99,000,000
2021-04-16
(갑6)
임의경매개시결정
(2021타경1355)
주식회사우리은행 소멸
경매기입 등기 90,790,309원
2021-06-01
(갑7)
압류 국민건강보험공단 소멸
- -
2021-06-04
(갑8)
압류 소멸
- 처분청 용인세무서
2021-06-24
(갑9)
압류 용인시 소멸
- -
더보기 더보기
※ 신규 발급등기의 분석자료 반영에는 최대 1일까지 소요될수 있습니다.(등기분석,임차인분석,분석노트 등)

임차인

매각물건 명세서

구분 법원 사건번호 작성일자 매각명세서
1 성남지원 2021타경1355[1] 2022.02.22
구분 법원/
사건번호
작성일자 매각명세서
1 성남지원
2021타경1355[1]
2022.02.22

인수되는 권리/가처분(매각 명세서)

해당사항없음

지상권(매각 명세서)

해당사항없음

물건 비고(매각 명세서)

1.본 건은 공부상 지층이나 일부분이 지상에 노출되어 있고,발코니가 없음.
재매각임. 매수신청보증금 20%

임차인현황

임차인 보증금/차임 전입/확정/배당 대항력
[현황조사]
박세정
(주거임차인)
점유부분:
미상
보증:
미상
차임:
미상
전입: 2019-08-01
확정: -
배당: -
-

현황 조사서

조사일시

2021년04월19일16시56분 / 2021년04월20일12시46분

부동산의 현황

출입문에 `B02`로 표기되어 있음.

점유 조사

[목록1]가. 현장에 임하였으나 이해관계인을 만나지 못하여 점유관계를 확인하지 못하였으며, 권리신고 및 배당요구신청 안내문을 현관 출입문 틈에 끼워 두었음. 상세한 점유관계는 별도의 확인이 필요함. 나. 주민센터에서 전입세대열람 결과 소유자가 아닌 주민등록 전입자를 임차인으로 기재하였고 전입세대열람 내역 및 주민등록표 등본을 발급받아 첨부함.

1
소재지 경기도광주시오포읍오포로171번길34-13,101동지층비102호(글렌하우스)
점유인 박세정(임차인)
점유부분 미상(주거)
점유기간 미상
보증금/차임 미상/미상
전입/확정일자 2019.08.01/미상

조사일시

-

부동산의 현황

-

점유 조사

[목록1]가. 현장에 임하였으나 이해관계인을 만나지 못하여 점유관계를 확인하지 못하였으며, 권리신고 및 배당요구신청 안내문을 현관 출입문 틈에 끼워 두었음. 상세한 점유관계는 별도의 확인이 필요함. 나. 주민센터에서 전입세대열람 결과 소유자가 아닌 주민등록 전입자를 임차인으로 기재하였고 전입세대열람 내역 및 주민등록표 등본을 발급받아 첨부함.

1
소재지 경기도광주시오포읍오포로171번길34-13,101동지층비102호(글렌하우스)
점유인 박세정(임차인)
점유부분 미상(주거)
점유기간 미상
보증금/차임 미상/미상
전입/확정일자 2019.08.01/미상

미납관리비 조사내역

확인일자 미납금액 관리소번호 메모

※ 해당 정보는 참고용으로 제공되며 입찰 전 반드시 관리사무소를 통해 직접 확인하시기 바랍니다.

시세

전문가

그외

관할법원 관할법원 (입찰장소)

수원지방법원 성남지원

경매5계 : 031-737-1558

경기 성남시 수정구 단대동 75 주소복사

Q&A Q&A

Q. 대법원경매가 무엇인가요?누구나 입찰에 참여할 수 있나요?

경매채무자(빌린 자)가 채무를 갚지 않았을 때 채권자(빌려준 자)의 신청으로 대법원이 채무자의 재산을 대신 매각하는 과정을 말합니다.

법원은 감정인에게 자산을 평가하게 한 후, 최저가를 정하여 그 금액 이상으로 입찰한 입찰자 중 최고가 매수인을 결정합니다.

대법원의 주관하에 국민 모두가 참여할 수 있습니다.

Q. 경매 입찰은 어떻게 하나요?누구나 입찰에 참여할 수 있나요?

1. 입찰하시고자 하는 경매물건을 정하신 후, 입찰하시고자 하는 입찰가를 최저가 이상으로 정합니다.

2. 해당 물건의 매각기일에 직접 관할법원에 방문하셔서 법원내에 비치된 입찰서를 작성하신 후 입찰하시면 됩니다.

TIP! 법원에 가실 때에는 입찰보증금(최저가의 10~30%)과 신분증을 지참하여 방문하세요.

Q. 용어가 너무 어려워서 내용을 이해하기 어려워요누구나 입찰에 참여할 수 있나요?

매각기일
매각기일은 경매 법원이 부동산에 대하여 매각 입찰을 진행하는 날을 말합니다.

유찰
매각 기일에 매수하고자 하는 사람이 없어 매각되지 않아 무효가 되는 것을 유찰이라고 합니다.

최저 매각 가격
최초 경매를 진행할때 감정인이 평가한 가격을 기준으로 책정한 금액이며 입찰자는 최저 매각 가격과 동일하거나 이상의 금액으로 입찰해야 합니다. 매각 기일에 있어 입찰자가 없어 유찰되면 통상 20~30% 저감된 금액이 다음 최저 매각 가격이 됩니다.

매수 보증금
경매 물건을 매수하고자 하는사람은 최저 매각 가격의 10분의 1(다르게 정해질 수 있음)에 해당하는 보증금액을 입찰표와 함께 집행관에게 제출하는 방법으로 제공합니다. 매각 절차가 종결된 후 집행관은 최고가 매수신고인이나 차순위매수신고인 이외의 매수신청인에게는 즉시 매수 보증금을 반환해 줍니다.

더 많은 내용을 알고 싶다면 경매마당 학습하기 코너에 준비된 용어설명을 이용해보세요.

경매정보는 법원자료와 일치하도록 하였으나 권리사항변동, 입력착오 등의 원인으로 사실과 다를 수 있습니다. 이용약관에 의거 면책조건으로 제공됨을 알리며, 경매입찰시 반드시 관련 공부를 재확인하시기 바랍니다.

PC버전으로 보기