알림

알림 내역

알림 신청내역/취소

로고 수원지방법원 성남지원 [경매9계] 2025타경51717
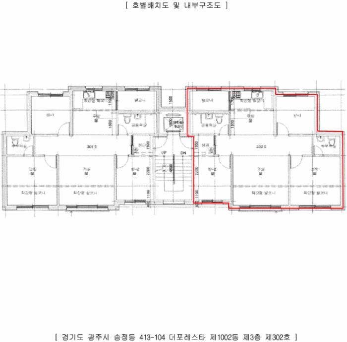
경기도 광주시 송정동 413-104 더포레스타 1002동 3층 302호

경기 광주시 송정동 413-104

주소복사
경매구분 강제경매
용도 연립
토지 88.48㎡(26.8평)
건물 63.08㎡(19.1평)
감정가 226,000,000원
최저가 226,000,000원
보증금 22,600,000원 (10%)
청구액 19,200,000원
개시결정 2025년 03월 04일
감정일 감정평가서 분석 중
배당종기 2025년 05월 07일
매각일 2026년 01월 12일
2025타경51717
2025타경51717
2025타경51717
2025타경51717
2025타경51717
2025타경51717
2025타경51717
2025타경51717
2025타경51717
2025타경51717
2025타경51717
감정가
2억2600만원
최저가
2억2600만원
공고 2026년 01월 12일 입찰 D-65일
신건
신건
경매구분 강제경매
용도 연립
토지 88.48㎡(26.8평)
건물 63.08㎡(19.1평)
감정가 226,000,000원
최저가 226,000,000원
보증금 22,600,000원 (10%)
청구액 19,200,000원
개시결정 2025년 03월 04일
감정일 감정평가서 분석 중
배당종기 2025년 05월 07일
매각일 2026년 01월 12일
공고 2026년 01월 12일 입찰 D-65일

당사자 내역

채무자겸소유자 한OO
채권자 삼OOOOOOOOOO
가압류권자 신OOOOOOOO
가압류권자 주OOOOOOOOOO
가압류권자 삼OOOOOOOOO
임차인 남OO
배당요구권자 신OOOOOOOO
교부권자 광OO

기일 내역

2026.01.12
2억2600만원 진행

매각결과+

매각일자 / 결과 응찰자수 최고가 금액/응찰자명 차순위 금액
부동산
등기
임차인
그 외

부동산

매각목록

※ 건축물 도면은 ‘건축물 대장의 기재 및 관리에 관한 규칙’ 에 따라 현재 경매가 진행중인 물건에만 제공됩니다.
※ 지분물건의 경우 면적은 지분에 해당하는 면적이 아닌 전체 면적으로 표기됩니다

감정평가

주변 입주 예정

거리 단지명 공급년월 세대 수
※ 해당 자료는 한국부동산원 청약홈 자료에 근거하며, 인근 5km 이내의 물건을 기준으로 산정되었습니다.

등기

등기부현황

채권합계 49,350,000원(3건)
등기일자 권리종류 권리자/채권액 권리
2018-12-24
소유자 한인숙 (소유자)
단독소유 -
2024-12-12
(갑3)
가압류 신한카드주식회사 소멸
말소기준 등기 4,611,896원
2025-01-13
(갑4)
가압류 주식회사국민행복기금 소멸
- 23,944,443원
2025-01-22
(갑5)
가압류 삼성생명보험주식회사 소멸
- 20,807,333원
2025-03-04
(갑6)
강제경매개시결정
(2025타경51717)
삼성생명보험주식회사 소멸
경매기입 등기 19,200,000원
더보기 더보기
※ 신규 발급등기의 분석자료 반영에는 최대 1일까지 소요될수 있습니다.(등기분석,임차인분석,분석노트 등)

임차인

임차인현황

임차인 보증금/차임 전입/확정/배당 대항력
현황조사서상 임차인이 존재하지 않습니다.

미납관리비 조사내역

확인일자 미납금액 관리소번호 메모

※ 해당 정보는 참고용으로 제공되며 입찰 전 반드시 관리사무소를 통해 직접 확인하시기 바랍니다.

시세

전문가

그외

관할법원 관할법원 (입찰장소)

수원지방법원 성남지원

경매9계 : 031-737-1558

경기 성남시 수정구 단대동 75 주소복사

Q&A Q&A

Q. 대법원경매가 무엇인가요?누구나 입찰에 참여할 수 있나요?

경매채무자(빌린 자)가 채무를 갚지 않았을 때 채권자(빌려준 자)의 신청으로 대법원이 채무자의 재산을 대신 매각하는 과정을 말합니다.

법원은 감정인에게 자산을 평가하게 한 후, 최저가를 정하여 그 금액 이상으로 입찰한 입찰자 중 최고가 매수인을 결정합니다.

대법원의 주관하에 국민 모두가 참여할 수 있습니다.

Q. 경매 입찰은 어떻게 하나요?누구나 입찰에 참여할 수 있나요?

1. 입찰하시고자 하는 경매물건을 정하신 후, 입찰하시고자 하는 입찰가를 최저가 이상으로 정합니다.

2. 해당 물건의 매각기일에 직접 관할법원에 방문하셔서 법원내에 비치된 입찰서를 작성하신 후 입찰하시면 됩니다.

TIP! 법원에 가실 때에는 입찰보증금(최저가의 10~30%)과 신분증을 지참하여 방문하세요.

Q. 용어가 너무 어려워서 내용을 이해하기 어려워요누구나 입찰에 참여할 수 있나요?

매각기일
매각기일은 경매 법원이 부동산에 대하여 매각 입찰을 진행하는 날을 말합니다.

유찰
매각 기일에 매수하고자 하는 사람이 없어 매각되지 않아 무효가 되는 것을 유찰이라고 합니다.

최저 매각 가격
최초 경매를 진행할때 감정인이 평가한 가격을 기준으로 책정한 금액이며 입찰자는 최저 매각 가격과 동일하거나 이상의 금액으로 입찰해야 합니다. 매각 기일에 있어 입찰자가 없어 유찰되면 통상 20~30% 저감된 금액이 다음 최저 매각 가격이 됩니다.

매수 보증금
경매 물건을 매수하고자 하는사람은 최저 매각 가격의 10분의 1(다르게 정해질 수 있음)에 해당하는 보증금액을 입찰표와 함께 집행관에게 제출하는 방법으로 제공합니다. 매각 절차가 종결된 후 집행관은 최고가 매수신고인이나 차순위매수신고인 이외의 매수신청인에게는 즉시 매수 보증금을 반환해 줍니다.

더 많은 내용을 알고 싶다면 경매마당 학습하기 코너에 준비된 용어설명을 이용해보세요.

경매정보는 법원자료와 일치하도록 하였으나 권리사항변동, 입력착오 등의 원인으로 사실과 다를 수 있습니다. 이용약관에 의거 면책조건으로 제공됨을 알리며, 경매입찰시 반드시 관련 공부를 재확인하시기 바랍니다.

PC버전으로 보기