알림

알림 내역

알림 신청내역/취소

로고 수원지방법원 여주지원 [경매2계] 2022타경3931
경기도 여주시 강천면 설경주길 118-10 외 1 필지 외 2개 동

경기 여주시 강천면 간매리 53

주소복사
경매구분 임의경매
용도 상가
토지 2996㎡(906.3평)
건물 1223.33㎡(370.1평)
감정가 1,363,797,970원
최저가 467,783,000원
보증금 46,778,300원 (10%)
청구액 865,995,429원
개시결정 2022년 11월 07일
감정일 2022년 11월 16일
배당종기 2023년 02월 09일
매각일 2024년 02월 28일
2022타경3931
2022타경3931
2022타경3931
2022타경3931
2022타경3931
2022타경3931
2022타경3931
2022타경3931
2022타경3931
2022타경3931
2022타경3931
2022타경3931
2022타경3931
2022타경3931
2022타경3931
2022타경3931
2022타경3931
2022타경3931
2022타경3931
2022타경3931
2022타경3931
2022타경3931
2022타경3931
2022타경3931
2022타경3931
2022타경3931
2022타경3931
2022타경3931
2022타경3931
2022타경3931
2022타경3931
2022타경3931
2022타경3931
2022타경3931
2022타경3931
2022타경3931
2022타경3931
2022타경3931
2022타경3931
2022타경3931
2022타경3931
2022타경3931
2022타경3931
2022타경3931
2022타경3931
2022타경3931
2022타경3931
2022타경3931
2022타경3931
2022타경3931
2022타경3931
2022타경3931
2022타경3931
감정가
13억6379만7970원
낙찰가 61%
5억3119만원
배당종결 2024년 02월 28일
유찰 3회
유찰 3회
경매구분 임의경매
용도 상가
토지 2996㎡(906.3평)
건물 1223.33㎡(370.1평)
감정가 1,363,797,970원
최저가 467,783,000원
보증금 46,778,300원 (10%)
청구액 865,995,429원
개시결정 2022년 11월 07일
감정일 2022년 11월 16일
배당종기 2023년 02월 09일
매각일 2024년 02월 28일
배당종결 2024년 02월 28일

당사자 내역

채무자겸소유자 임OO
채권자 지OOOOOOO
임차인 우OO
배당요구권자 신OOOOOOOO
근저당권자 김OO
교부권자 여OO
배당요구권자 농OOOOOOOO

기일 내역

2024.04.15
납부 (2024.04.15)
2024.03.06
최고가매각허가결정
2024.02.28
5억3119만원 매각
4억6778만3000원 최저가
2023.09.06
기일변경
2023.08.02
6억6826만1000원 유찰
2023.06.28
9억5465만9000원 유찰
2023.05.31
13억6379만7970원 유찰

물건 비고(공고문)

일괄매각. 제시외 건물 포함

인수되는 권리/가처분(매각 명세서)

해당사항없음

지상권(매각 명세서)

해당사항없음

물건 비고(매각 명세서)

일괄매각. 제시외 건물 포함

현황 조사(현황 조사서)

1. 목록1.4. 토지는 등기사항증명서의 표시와 같이 대지로 이용되고 있으며, 가장자리를 따라서 수십그루의 수목이 울타리 역할을 하고 있음.
2. 목록2.3.5. 건물은 대부분 폐쇄되어 운영되지 않은 것으로 보이나, 목록2. 건물 1층에는 의자와 책상이 놓여져 있어 사무실 용도로 사용하고 있는 것으로도 보여짐.
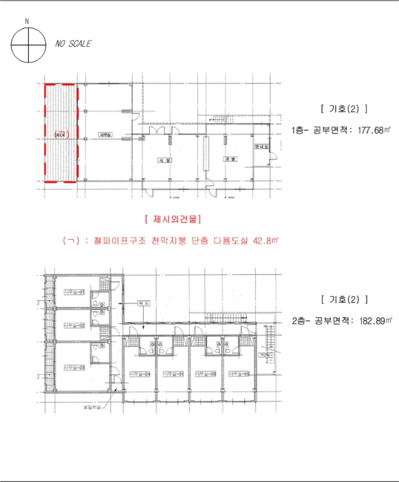
3. 목록3. 건물의 부속건물은 건축물현황도상 `3동`으로, 목록2. 뒷편 제시 외 건물 2개동은 건축물현황도상 `4동` `5동`으로 표시되어 있고, 목록5. 건물의 부속건물은 건축물현황도상 `2동`으로 표시되어 있음.
4. 목록2. 서측에 접하여 제시 외 창고 1개동이 소재하고(건축물현황도상 `DECK부분`으로 표시됨), 목록5. 건물과 부속건물에 연결하여 차양막 시설이 되어 있음.
위 임차인은 상가건물임대차 현황서상 임차인임.

점유 조사(현황 조사서)

[목록1]채무자(소유자) 및 점유자를 만날 수 없어 점유관계 확인할 수 없음.[목록2]- 채무자(소유자) 및 점유자를 만날 수 없어 점유관계 확인할 수 없음. - 임대차 관계를 조사하기 위하여 현장에 임하여 방문한 취지 및 연락처를 남겼으나, 아무런 연락이 없음. - 전입세대열람 결과 전입된 임차인은 없고, 임대차정보제공을 요청한 결과 등록된 임차인이 있으므로 이를 임차인으로 보고함.[목록3]- 채무자(소유자) 및 점유자를 만날 수 없어 점유관계 확인할 수 없음. - 임대차 관계를 조사하기 위하여 현장에 임하여 방문한 취지 및 연락처를 남겼으나, 아무런 연락이 없음. - 전입세대열람 결과 및 임대차정보제공을 요청한 결과 본건에 전입되거나 등록된 임차인이 없는 것으로 조사됨.[목록4]채무자(소유자) 및 점유자를 만날 수 없어 점유관계 확인할 수 없음.[목록5]- 채무자(소유자) 및 점유자를 만날 수 없어 점유관계 확인할 수 없음. - 임대차 관계를 조사하기 위하여 현장에 임하여 방문한 취지 및 연락처를 남겼으나, 아무런 연락이 없음. - 전입세대열람 결과 및 임대차정보제공을 요청한 결과 본건에 전입되거나 등록된 임차인이 없는 것으로 조사됨.

매각결과+

매각일자 / 결과 응찰자수 최고가 금액/응찰자명 차순위 금액
부동산
등기
임차인
그 외

부동산

매각목록

부동산 현황

1.토지감정요항표 1) 위치 및 주위환경 본건은 경기도 여주시 강천면 간매리 소재 "간매교차로" 북동측 근거리에 위치하며, 부근은 농경지, 농가주택, 임야 및 공장 등이 혼재하는 지역입니다. 2) 교통상황 본건까지 차량 접근 가능하며 대중교통사정은 버스정류장과의 거리 및 운행횟수 등으로 보아 보통입니다. 3) 형태 및 이용상태 기호(1) : 사다리형, 평지의 건부지 입니다.기호(4) : 자루형, 평지의 건부지 입니다. 4) 인접 도로상태 기호(1,4)의 북동측으로 로폭 약 4미터 내외의 포장도로와 접합니다. 5) 토지이용계획 및 제한상태 기호(1) 및 기호(4) 공히 계획관리지역, 가축사육제한구역(일부제한지역 1000m)<가축분뇨의 관리 및 이용에 관한 법률>, 배출시설설치제한지역<물환경보전법>, 자연보전권역<수도권정비계획법>, (한강)폐기물매립시설 설치제한지역<한강수계 상수원수질개선 및 주민지원 등에 관한 법률> 입니다. 6) 제시목록 외의 물건 후첨 "지적 및 건물개황도" 참고하시기 바랍니다. 7) 공부와의 차이 본건 기호(1)의 북동측 일부는 현황 "도로"로 이용 중입니다. 8) 기타참고사항(임대관례 및 기타) 임대관계: 미상입니다.기타: 없습니다. 2.건물감정평가요항표 1) 건물의 구조 기호(2): 일반철골구조 기타지붕 3층 구조(사용승인일자: 2008.02.26)로서, 외벽 : 비닐사이딩 및 치장벽돌 쌓기 등 마감 내벽 : 벽지도배 및 타일붙임 마감 창호 : 알루미늄 및 플라스틱샤시 창호 등 마감 입니다.기호(3): 일반철골구조 기타지붕 3층 구조(사용승인일자: 2008.01.17)로서, 외벽 : 비닐사이딩 및 치장벽돌 쌓기 등 마감 내벽 : 벽지도배 및 타일붙임 마감 창호 : 알루미늄 및 플라스틱샤시 창호 등 마감 입니다.기호(3)의 부속건물 중 휴게실 부분은 일반목구조 단층이고, 창고 및 화장실 부분과 온수탱크실 부분은 공히 일반철골구조 단층입니다.기호(5): 일반목구조 기타지붕 단층 구조(사용승인일자: 2008.12.09) 입니다.기호(5)의 부속건물(창고 및 화장실)은 블록조 단층입니다. 2) 이용상태 기호(2)은 1층: 식당, 주방, 사무실 2층: 총 7개의 사무실(내부 개별 화장실) 3층: 총 4개의 사무실(내부 개별 화장실) 로 이용 중입니다.기호(3)은 1층: 내부 개별 화장실을 갖춘 연구실 1 및 기자재실 2 2층: 총 3개의 회의실(내부 개별 화장실) 3층: 총 3개의 비품보관실(내부 개별 화장실) 로 이용 중이며,기호(3)의 부속건물은 휴게실, 창고 및 화장실, 온수탱크실로 각각 이용 중입니다.기호(5)는 작업장으로 이용 중이며, 기호(5)의 부속건물은 창고 및 화장실로 이용 중입니다.기호(2,3,5)의 자세한 내부 이용 내역은 후첨 "건물개황도"를 참조하시기 바랍니다. 3) 설비내역 기호(2,3)은 위생 및 급배수설비, 난방설비 등이 되어있으며, 기호(5)는 위생설비가 되어있습니다. 4) 부합물 및 종물 지상에 제시외건물(ㄱ-ㄹ)이 소재하며, 후면 "지적 및 건물개황도" 참조바랍니다. 5) 공부와의 차이 없습니다. 6) 기타참고사항(임대관례 및 기타) 임대관계: 미상입니다.기타: 없습니다.

감정평가

주변 입주 예정

거리 단지명 공급년월 세대 수
※ 해당 자료는 한국부동산원 청약홈 자료에 근거하며, 인근 5km 이내의 물건을 기준으로 산정되었습니다.

등기

등기부현황

채권합계 1,170,000,000원(2건)
등기일자 권리종류 권리자/채권액 권리
2020-09-24
소유자 임선혁 (소유자) 멤버십
단독소유 -
2020-09-24
(을16)
근저당권설정 지평농업협동조합 멤버십
말소기준 등기 1,040,000,000원
2021-01-07
(을18)
근저당권설정 주식회사아크로산업개발 멤버십
- 130,000,000원
2021-01-20
(을18-1)
근저당권이전 김원석 멤버십
- -
2022-11-08
(갑14)
임의경매개시결정
(2022타경3931)
지평농업협동조합 멤버십
경매기입 등기 865,995,429원
더보기 더보기
※ 신규 발급등기의 분석자료 반영에는 최대 1일까지 소요될수 있습니다.(등기분석,임차인분석,분석노트 등)

임차인

매각물건 명세서

구분 법원 사건번호 작성일자 매각명세서
1 여주지원 2022타경3931[1] 2024.01.16
구분 법원/
사건번호
작성일자 매각명세서
1 여주지원
2022타경3931[1]
2024.01.16

인수되는 권리/가처분(매각 명세서)

해당사항없음

지상권(매각 명세서)

해당사항없음

물건 비고(매각 명세서)

일괄매각. 제시외 건물 포함

임차인현황

임차인 보증금/차임 전입/확정/배당 대항력
[현황조사]
우대명
(사무실임차인)
점유부분:
미상
보증:
5,000,000
차임:
100,000
사업: 2021-10-08
확정: -
배당: -
멤버십

현황 조사서

조사일시

2022년11월22일12시50분

부동산의 현황

1. 목록1.4. 토지는 등기사항증명서의 표시와 같이 대지로 이용되고 있으며, 가장자리를 따라서 수십그루의 수목이 울타리 역할을 하고 있음.
2. 목록2.3.5. 건물은 대부분 폐쇄되어 운영되지 않은 것으로 보이나, 목록2. 건물 1층에는 의자와 책상이 놓여져 있어 사무실 용도로 사용하고 있는 것으로도 보여짐.
3. 목록3. 건물의 부속건물은 건축물현황도상 `3동`으로, 목록2. 뒷편 제시 외 건물 2개동은 건축물현황도상 `4동` `5동`으로 표시되어 있고, 목록5. 건물의 부속건물은 건축물현황도상 `2동`으로 표시되어 있음.
4. 목록2. 서측에 접하여 제시 외 창고 1개동이 소재하고(건축물현황도상 `DECK부분`으로 표시됨), 목록5. 건물과 부속건물에 연결하여 차양막 시설이 되어 있음.
위 임차인은 상가건물임대차 현황서상 임차인임.

점유 조사

[목록1]채무자(소유자) 및 점유자를 만날 수 없어 점유관계 확인할 수 없음.[목록2]- 채무자(소유자) 및 점유자를 만날 수 없어 점유관계 확인할 수 없음. - 임대차 관계를 조사하기 위하여 현장에 임하여 방문한 취지 및 연락처를 남겼으나, 아무런 연락이 없음. - 전입세대열람 결과 전입된 임차인은 없고, 임대차정보제공을 요청한 결과 등록된 임차인이 있으므로 이를 임차인으로 보고함.[목록3]- 채무자(소유자) 및 점유자를 만날 수 없어 점유관계 확인할 수 없음. - 임대차 관계를 조사하기 위하여 현장에 임하여 방문한 취지 및 연락처를 남겼으나, 아무런 연락이 없음. - 전입세대열람 결과 및 임대차정보제공을 요청한 결과 본건에 전입되거나 등록된 임차인이 없는 것으로 조사됨.[목록4]채무자(소유자) 및 점유자를 만날 수 없어 점유관계 확인할 수 없음.[목록5]- 채무자(소유자) 및 점유자를 만날 수 없어 점유관계 확인할 수 없음. - 임대차 관계를 조사하기 위하여 현장에 임하여 방문한 취지 및 연락처를 남겼으나, 아무런 연락이 없음. - 전입세대열람 결과 및 임대차정보제공을 요청한 결과 본건에 전입되거나 등록된 임차인이 없는 것으로 조사됨.

1
소재지 경기도여주시강천면설경주길118-10
점유인 우대명(임차인)
점유부분 미상(기타 - 사무실)
점유기간 미상
보증금/차임 5,000,000/100,000
전입/확정일자 2021.10.08/미상

미납관리비 조사내역

확인일자 미납금액 관리소번호 메모

※ 해당 정보는 참고용으로 제공되며 입찰 전 반드시 관리사무소를 통해 직접 확인하시기 바랍니다.

시세

전문가

그외

관할법원 관할법원 (입찰장소)

수원지방법원 여주지원

경매2계 : 031-880-7500

경기 여주시 현암동 640-10 주소복사

Q&A Q&A

Q. 대법원경매가 무엇인가요?누구나 입찰에 참여할 수 있나요?

경매채무자(빌린 자)가 채무를 갚지 않았을 때 채권자(빌려준 자)의 신청으로 대법원이 채무자의 재산을 대신 매각하는 과정을 말합니다.

법원은 감정인에게 자산을 평가하게 한 후, 최저가를 정하여 그 금액 이상으로 입찰한 입찰자 중 최고가 매수인을 결정합니다.

대법원의 주관하에 국민 모두가 참여할 수 있습니다.

Q. 경매 입찰은 어떻게 하나요?누구나 입찰에 참여할 수 있나요?

1. 입찰하시고자 하는 경매물건을 정하신 후, 입찰하시고자 하는 입찰가를 최저가 이상으로 정합니다.

2. 해당 물건의 매각기일에 직접 관할법원에 방문하셔서 법원내에 비치된 입찰서를 작성하신 후 입찰하시면 됩니다.

TIP! 법원에 가실 때에는 입찰보증금(최저가의 10~30%)과 신분증을 지참하여 방문하세요.

Q. 용어가 너무 어려워서 내용을 이해하기 어려워요누구나 입찰에 참여할 수 있나요?

매각기일
매각기일은 경매 법원이 부동산에 대하여 매각 입찰을 진행하는 날을 말합니다.

유찰
매각 기일에 매수하고자 하는 사람이 없어 매각되지 않아 무효가 되는 것을 유찰이라고 합니다.

최저 매각 가격
최초 경매를 진행할때 감정인이 평가한 가격을 기준으로 책정한 금액이며 입찰자는 최저 매각 가격과 동일하거나 이상의 금액으로 입찰해야 합니다. 매각 기일에 있어 입찰자가 없어 유찰되면 통상 20~30% 저감된 금액이 다음 최저 매각 가격이 됩니다.

매수 보증금
경매 물건을 매수하고자 하는사람은 최저 매각 가격의 10분의 1(다르게 정해질 수 있음)에 해당하는 보증금액을 입찰표와 함께 집행관에게 제출하는 방법으로 제공합니다. 매각 절차가 종결된 후 집행관은 최고가 매수신고인이나 차순위매수신고인 이외의 매수신청인에게는 즉시 매수 보증금을 반환해 줍니다.

더 많은 내용을 알고 싶다면 경매마당 학습하기 코너에 준비된 용어설명을 이용해보세요.

경매정보는 법원자료와 일치하도록 하였으나 권리사항변동, 입력착오 등의 원인으로 사실과 다를 수 있습니다. 이용약관에 의거 면책조건으로 제공됨을 알리며, 경매입찰시 반드시 관련 공부를 재확인하시기 바랍니다.

PC버전으로 보기