경기 평택시 도일동 16-22
경기 평택시 도일동 16-22
 주OOOOOOOO
주OOOOOOOO
                             주OOOOOOOOO
주OOOOOOOOO
                             장OO
장OO
                            1. 일괄매각. 목록1 토지상에 설치된 지하수 관정 매각 포함. 2. 목록 2,12,13의 현황은 “도로”이고, 목록 14~17,28은 지적도상 맹지이므로 확인요함 3. 목록 18~25 다세대 주택은 대지권이 아직 확정되지 않은 상태이고 기준 준공검사미필로 건축물대장 미작성 상태임. 4. 목록 1,11 지상에 소유자 미상의 컨테이너 2동이 소재하나 이동이 용이하여 평가 및 매각에서 제외함 5. 목록 1~11,14,27은 건축허가 및 신고된 토지이며 2018.02.26. 감정평가 기준시점 현재 토목공사 완료 및 진행 중 중단된 상태임(해당 관청에 확인요). 본건은 “평택브레인시티 일반산업단지(진행중)” 동측 근거리에 위치함 6. 2018. 5. 31.자 유치권 신고인 주식회사 디에스건설로부터 금 945,896,320원에 대하여 유치권신고가 있고, 유치권 존재여부에 대한 재판에서 유치권자가 945,896,320원에 대하여 일부 승소함(서울고등 2021나2005681). 7. 2020. 11. 20.자 유치권신고인 주식회사 디에스건설로부터 금 509,784,000원(2020.11.16.기준)에 대하여 유치권행사를 위한 필요비, 유익비 등 관련 청구채권신고가 있었으나 성립여부 불분명. 유치권(필요비,유익비)관련 비용상환청구 등에 대한 재판에서 유치권신고인이 총 금 101,330,350원에 대하여 승소한 각 판결문을 제출함(평택지원 2018가단2368, 평택지원 2017가단5254). 8. 2023. 5. 3.자 유치권신고인 주식회사 디에스건설로부터 금 241,471,250원(2023.4.30.기준)에 대하여 유치권행사를 위한 필요비, 유익비 등 관련 청구채권신고가 있었으나 성립여부 불분명.
1. 일괄매각. 목록1 토지상에 설치된 지하수 관정 매각 포함.
2. 목록 2,12,13의 현황은 “도로”이고, 목록 14~17,28은 지적도상 맹지이므로 확인요함
3. 목록 18~25 다세대 주택은 대지권이 아직 확정되지 않은 상태이고 기준 준공검사미필로 건축물대장 미작성 상태임.
4. 목록 1,11 지상에 소유자 미상의 컨테이너 2동이 소재하나 이동이 용이하여 평가 및 매각에서 제외함
5. 목록 1~11,14,27은 건축허가 및 신고된 토지이며 2018.02.26. 감정평가 기준시점 현재 토목공사 완료 및 진행 중 중단된 상
태임(해당 관청에 확인요). 본건은 “평택브레인시티 일반산업단지(진행중)” 동측 근거리에 위치함
6. 2018. 5. 31.자 유치권 신고인 주식회사 디에스건설로부터 금 945,896,320원에 대하여 유치권신고가 있고, 유치권 존재여부
에 대한 재판에서 유치권자가 945,896,320원에 대하여 일부 승소함(서울고등 2021나2005681).
7. 2020. 11. 20.자 유치권신고인 주식회사 디에스건설로부터 금 509,784,000원(2020.11.16.기준)에 대하여 유치권행사를 위한
필요비, 유익비 등 관련 청구채권신고가 있었으나 성립여부 불분명. 유치권(필요비,유익비)관련 비용상환청구 등에 대한 재판에
서 유치권신고인이 총 금 101,330,350원에 대하여 승소한 각 판결문을 제출함(평택지원 2018가단2368, 평택지원 2017가단
5254).
8. 2023. 5. 3.자 유치권신고인 주식회사 디에스건설로부터 금 241,471,250원(2023.4.30.기준)에 대하여 유치권행사를 위한 필요
비, 유익비 등 관련 청구채권신고가 있었으나 성립여부 불분명.
[목록1]* 점유자를 만나지 못하여 조사불능. * 제시외 컨테이너 있음[목록2]점유자를 만나지 못하여 조사불능.[목록3]점유자를 만나지 못하여 조사불능.[목록4]점유자를 만나지 못하여 조사불능.[목록5]* 점유자를 만나지 못하여 조사불능. * 제시외 건물 있음[목록6]* 점유자를 만나지 못하여 조사불능. * 제시외 건물 있음[목록7]* 점유자를 만나지 못하여 조사불능. * 제시외 건물 있음[목록8]* 점유자를 만나지 못하여 조사불능. * 제시외 건물 있음[목록9]점유자를 만나지 못하여 조사불능.[목록10]점유자를 만나지 못하여 조사불능.[목록11]* 점유자를 만나지 못하여 조사불능. * 제시외 컨테이너 있음[목록12]* 점유자를 만나지 못하여 조사불능. * 현황상 `도로`임[목록13]* 점유자를 만나지 못하여 조사불능. * 현황상 `도로`임[목록14]점유자를 만나지 못하여 조사불능.[목록15]점유자를 만나지 못하여 조사불능.[목록16]점유자를 만나지 못하여 조사불능.[목록17]점유자를 만나지 못하여 조사불능.
| 매각일자 / 결과 | 응찰자수 | 최고가 금액/응찰자명 | 차순위 금액 | 
|---|
등기열람(월5회), 임차인 내역, 권리분석
현황조사, 감정평가, 실거래가
...
※ 건축물 도면은 ‘건축물 대장의 기재 및 관리에 관한 규칙’ 에 따라 현재 경매가 진행중인 물건에만 제공됩니다.
※ 지분물건의 경우 면적은 지분에 해당하는 면적이 아닌 전체 면적으로 표기됩니다
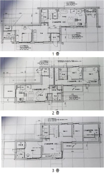
1.토지감정요항표 1) 위치 및 주위환경 본건은 경기도 평택시 도일동 소재 “황새알골” 마을 내에 위치하며, 주위는전원주택단지, 소규모 제조장, 농경지, 임야 등으로 형성되어 있고 서측으로브레인시티사업지(개발예정)가 인접하여 있음. 2) 교통상황 본건까지 차량출입 가능하고 북측인근으로 노선버스정류장이 소재하나 대중교통사정은 다소 불편한 편임. 3) 형태 및 이용상태 전체적으로 북하향 완경사지를 평탄하게 조상한 전원주택단지로서 기준시점 현재기호(5,6,7,8)지상에는 등기사항전부증명서에 등재된 건물(다세대주택)이 소재하고 기호(2,12,13)은 도로이며 나머지 토지들은 주거나지로 이용중임. 4) 인접 도로상태 기호(1, 3-11)은 현황 콘크리트포장도로인 세로(기호2,12,13)와 접하며, 기호(14-17)은 맹지임. 5) 토지이용계획 및 제한상태 자연녹지지역, 가축사육제한구역(일부제한 300m이내-전 축종 제한). 6) 제시목록 외의 물건 본건 기호(5,6,7,8)지상에 등기사항전부증명서에 등재된 미완공상태의 다세대주택이 소재하고 기호(1,11)지상에 이동식컨테이너(3*6)가 각각 소재함. 7) 공부와의 차이 없 음. 8) 기타참고사항(임대관례 및 기타) -- 2.건물감정평가요항표 1) 건물의 구조 기호(ㄱ-ㄹ):철근콘크리트조 경사슬래브 슁글잇기지붕 3층 다세대주택으로서 외벽 : 벽돌 치장마감 등 내벽 : 미준공상태로 몰탈마감 등 창호 : 샷시창호 2) 이용상태 다세대주택으로 이용예정이나 현재 미준공상태임. 3) 설비내역 공사 미완료상태임. 4) 부합물 및 종물 없 음. 5) 공부와의 차이 없 음. 6) 기타참고사항(임대관례 및 기타) --
| 거리 | 단지명 | 공급년월 | 세대 수 | 
|---|
| 등기일자 | 권리종류 | 권리자/채권액 | 권리 | ||
|---|---|---|---|---|---|
| 등기자료 조사 중 입니다. | |||||
| 구분 | 법원 | 사건번호 | 작성일자 | 매각명세서 | 
|---|---|---|---|---|
| 1 | 평택지원 | 2018타경204[1] | 2023.08.09 | 
| 구분 | 법원/ 사건번호 | 작성일자 | 매각명세서 | 
|---|---|---|---|
| 1 | 평택지원 2018타경204[1] | 2023.08.09 | 
1. 일괄매각. 목록1 토지상에 설치된 지하수 관정 매각 포함.
2. 목록 2,12,13의 현황은 “도로”이고, 목록 14~17,28은 지적도상 맹지이므로 확인요함
3. 목록 18~25 다세대 주택은 대지권이 아직 확정되지 않은 상태이고 기준 준공검사미필로 건축물대장 미작성 상태임.
4. 목록 1,11 지상에 소유자 미상의 컨테이너 2동이 소재하나 이동이 용이하여 평가 및 매각에서 제외함
5. 목록 1~11,14,27은 건축허가 및 신고된 토지이며 2018.02.26. 감정평가 기준시점 현재 토목공사 완료 및 진행 중 중단된 상
태임(해당 관청에 확인요). 본건은 “평택브레인시티 일반산업단지(진행중)” 동측 근거리에 위치함
6. 2018. 5. 31.자 유치권 신고인 주식회사 디에스건설로부터 금 945,896,320원에 대하여 유치권신고가 있고, 유치권 존재여부
에 대한 재판에서 유치권자가 945,896,320원에 대하여 일부 승소함(서울고등 2021나2005681).
7. 2020. 11. 20.자 유치권신고인 주식회사 디에스건설로부터 금 509,784,000원(2020.11.16.기준)에 대하여 유치권행사를 위한
필요비, 유익비 등 관련 청구채권신고가 있었으나 성립여부 불분명. 유치권(필요비,유익비)관련 비용상환청구 등에 대한 재판에
서 유치권신고인이 총 금 101,330,350원에 대하여 승소한 각 판결문을 제출함(평택지원 2018가단2368, 평택지원 2017가단
5254).
8. 2023. 5. 3.자 유치권신고인 주식회사 디에스건설로부터 금 241,471,250원(2023.4.30.기준)에 대하여 유치권행사를 위한 필요
비, 유익비 등 관련 청구채권신고가 있었으나 성립여부 불분명.
| 임차인 | 보증금/차임 | 전입/확정/배당 | 대항력 | 
|---|---|---|---|
| 매각물건명세서상 임차인이 존재하지 않습니다. | |||
2018년01월23일16시29분
-
[목록1]* 점유자를 만나지 못하여 조사불능. * 제시외 컨테이너 있음[목록2]점유자를 만나지 못하여 조사불능.[목록3]점유자를 만나지 못하여 조사불능.[목록4]점유자를 만나지 못하여 조사불능.[목록5]* 점유자를 만나지 못하여 조사불능. * 제시외 건물 있음[목록6]* 점유자를 만나지 못하여 조사불능. * 제시외 건물 있음[목록7]* 점유자를 만나지 못하여 조사불능. * 제시외 건물 있음[목록8]* 점유자를 만나지 못하여 조사불능. * 제시외 건물 있음[목록9]점유자를 만나지 못하여 조사불능.[목록10]점유자를 만나지 못하여 조사불능.[목록11]* 점유자를 만나지 못하여 조사불능. * 제시외 컨테이너 있음[목록12]* 점유자를 만나지 못하여 조사불능. * 현황상 `도로`임[목록13]* 점유자를 만나지 못하여 조사불능. * 현황상 `도로`임[목록14]점유자를 만나지 못하여 조사불능.[목록15]점유자를 만나지 못하여 조사불능.[목록16]점유자를 만나지 못하여 조사불능.[목록17]점유자를 만나지 못하여 조사불능.
| 확인일자 | 미납금액 | 관리소번호 | 메모 | 
|---|
※ 해당 정보는 참고용으로 제공되며 입찰 전 반드시 관리사무소를 통해 직접 확인하시기 바랍니다.
수원지방법원 평택지원
경매5계 : 031-650-3114
경기 평택시 동삭동 663
Q. 대법원경매가 무엇인가요?
경매란 채무자(빌린 자)가 채무를 갚지 않았을 때 채권자(빌려준 자)의 신청으로 대법원이 채무자의 재산을 대신 매각하는 과정을 말합니다.
                        법원은 감정인에게 자산을 평가하게 한 후, 최저가를 정하여 그 금액 이상으로 입찰한 입찰자 중 최고가 매수인을 결정합니다.
                        대법원의 주관하에 국민 모두가 참여할 수 있습니다.
Q. 경매 입찰은 어떻게 하나요?
Q. 용어가 너무 어려워서 내용을 이해하기 어려워요
경매정보는 법원자료와 일치하도록 하였으나 권리사항변동, 입력착오 등의 원인으로 사실과 다를 수 있습니다. 이용약관에 의거 면책조건으로 제공됨을 알리며, 경매입찰시 반드시 관련 공부를 재확인하시기 바랍니다.
PC버전으로 보기