알림

알림 내역

알림 신청내역/취소

로고 수원지방법원 평택지원 [경매5계] 2022타경42045
경기도 평택시 통복시장로6번길 18-6, 지하층1호 외 6개 호

경기 평택시 통복동 85-8

주소복사
경매구분 임의경매
용도 상가
토지 607.3㎡(183.7평)
건물 1909.07㎡(577.5평)
감정가 3,797,000,000원
최저가 1,302,371,000원
보증금 130,240,000원 (10%)
청구액 78,000,000원
개시결정 2022년 03월 29일
감정일 2022년 04월 05일
배당종기 2022년 06월 27일
매각일 2024년 04월 15일
2022타경42045
2022타경42045
2022타경42045
2022타경42045
2022타경42045
2022타경42045
2022타경42045
2022타경42045
2022타경42045
2022타경42045
2022타경42045
2022타경42045
2022타경42045
2022타경42045
2022타경42045
2022타경42045
2022타경42045
2022타경42045
2022타경42045
2022타경42045
2022타경42045
2022타경42045
2022타경42045
2022타경42045
2022타경42045
2022타경42045
2022타경42045
2022타경42045
2022타경42045
2022타경42045
2022타경42045
감정가
37억9700만원
최저가 66%
13억237만1000원
취하 2024년 04월 15일
유찰 3회지분매각
유찰 3회지분매각
경매구분 임의경매
용도 상가
토지 607.3㎡(183.7평)
건물 1909.07㎡(577.5평)
감정가 3,797,000,000원
최저가 1,302,371,000원
보증금 130,240,000원 (10%)
청구액 78,000,000원
개시결정 2022년 03월 29일
감정일 2022년 04월 05일
배당종기 2022년 06월 27일
매각일 2024년 04월 15일
취하 2024년 04월 15일

당사자 내역

채무자겸소유자 채OOOOOOOOOOOOOOOOO
채무자겸소유자 이OO
채권자 알OOOOOOOOOO
채권자 가OO
압류권자 평OO
교부권자 도OOOO
교부권자 평OO
배당요구권자 주OOOOOOOO
교부권자 평OOOO
공유자 이OO
압류권자 국OOOOOOO
압류권자 도OOOO
임차인 정OO
임차인 강OO
임차인 채OO
임차인 박OO
가압류권자 주OOOOOOOO
가압류권자 유OO
근저당권자 수OOOOOOOOO
근저당권부질권자 강OO
근저당권부질권자 정OO
근저당권부질권자 박OO
교부권자 국OOOOOOOOOOOO

기일 내역

취하
2024.04.15
기일변경
2024.01.22
기일변경
2023.11.27
18억6053만원 유찰
2023.10.23
26억5790만원 유찰
2023.07.24
기일변경
2023.05.08
37억9700만원 유찰

기일 변경(2024년04월03일)

변경 후 추후지정

물건 비고(공고문)

1. 일괄매각. 2. 목록 2,4,5,6,7,8은 지분매각임. 공유자의 우선매수청구는 1회로 제한함(공유자가 우선매수권을 행사하여 매수신고를 한 후 매각기일 종결 고지 전까지 보증금을 납부하지 아니하면 그 공유자는 이후의 매각기일에서는 우선매수권을 행사할 수 없음). 3. 감정평가 당시 목록6 물건(무도장 및 음식점)은 임차인이 운영중이고 인테리어시설비는 임차인이 설치한 것으로 조사되어 평가에서 제외되었는바 이해관계인의 유의 요함.

물건 비고(매각 명세서)

1. 일괄매각. 2. 목록 2,4,5,6,7,8은 지분매각임. 공유자의 우선매수청구는 1회로 제한함(공유자가 우선매수권을 행사하여 매수신고를 한 후
매각기일 종결 고지 전까지 보증금을 납부하지 아니하면 그 공유자는 이후의 매각기일에서는 우선매수권을 행사할 수 없음).
3. 감정평가 당시 목록6 물건(무도장 및 음식점)은 임차인이 운영중이고 인테리어시설비는 임차인이 설치한 것으로 조사되어
평가에서 제외되었는바 이해관계인의 유의 요함.

현황 조사(현황 조사서)

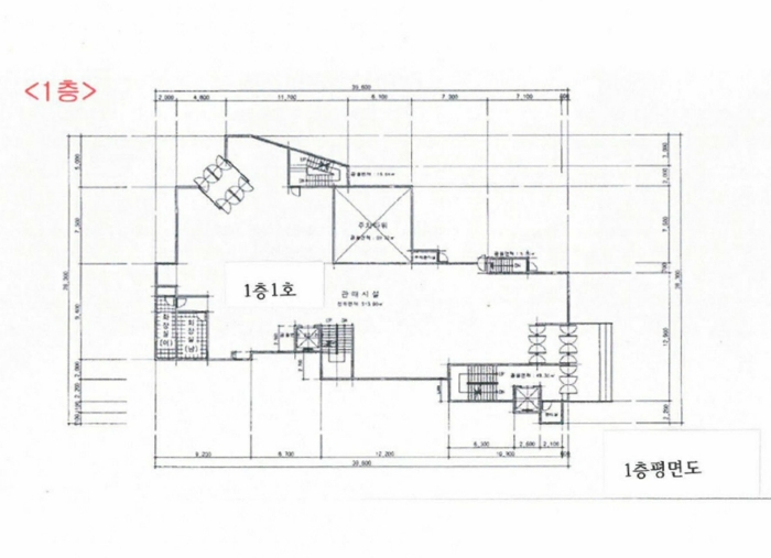
* 본건 건물 각층에는 기본적으로 1호, 2호 등의 호실명패가 부착되어 있지 않아 호실 구분이 분명치 않으므로 건축물현황도를 첨부함.
* 지하 1층은 입구의 출입문이 폐쇄되어 있고, 조명조차 꺼져 있으며 퀴퀴한 냄새가 배어있는 것으로 보아 오랫동안 사용되지 않는 것으로 추정됨.
* 1층은 전체가 `패션마트104` 의류판매점의 영업장으로 사용되고 있으며 영업주이자 임차인 박상일은 상가건물임대차 현황서 기재 내역과 같이 임차하여 영업하고 있다고 진술.
* 본건 건물 엘리베이터 옆 안내판에 `지상1층부터 지상3층까지 패션마트104의 각 분야별 판매점포가 있고, 지하1층에 수선실, 놀이방 등이, 지상5층에 매션마트104 물류센터가 있다`는 내용으로 표시되어 있으나, 위 박상일은 자신은 1층만 사용하고 있고, 지하1층이나 2층,3층,5층은 사용하지 않고 있다고 진술.
* 2층은 통로의 출입문이 폐쇄되어 있음. 엘리베이터 옆 방실 츨입문 옆에 `(주)티엠씨` 간판이 부착되어 있으나 출입문은 잠겨 있음.
* 3층은 출입문이 잠겨있지 않으나 내부는 불이 꺼져 있고 몇몇 물품만 있는 공실임.
* 4층은 전체가 `경동콜라텍` 영업장으로 사용되고 있고 내부에 무도장, 식당, 휴게실, 흡연실 등이 있음. 비교적 나이가 많은 남녀 손님 수십명이 요란한 음악 아래 춤추고 취식하는 등 유흥를 즐기고 있었음.
* 5층에는 관리사무실과 패션마트104 물류센터 명패가 부착되어 있으나, 관리사무실에는 아무도 없었고, 패션마트104 물류센터 명패가 부착된 방실에는 잡동사니만 있을뿐 의류 등 물품은 없었음.
- 위 임차인등록자는 상가건물임대차 현황서에 등재된 자인바, 현지조사 방문시 폐문부재로 사람을 만나지 못하거나 영업자의 구두 진술만 들었을 뿐 임대차계약서 등 서류로 임대차관계 내역을 확인하지 못하였고, 임차인일 경우 배당요구 종기일까지 권리신고 및 배당요구 신청서를 제출하여야 법률의 규정에 따른 임차인보호를 받을 수 있다는 내용의 경매안내문을 영업자에게 교부하거나 우편함에 투입하고 문틈에도 끼워두었음.
- 이에 임차인을 보호하기 위하여 임차인 여부가 확인되지 아니한 상가건물임대차 현황서 등재인을 임차인으로 추정하여 등록하였고, 본건 경매 이해관계인은 차후 권리신고 및 배당요구 신청서 제출 등에 의하여 위 임차인등록자가 진정한 임차인인지 여부를 판단할 필요가 있음.

점유 조사(현황 조사서)

[목록2]* 폐문으로 점유자를 만나지 못하여 점유관계를 알 수 없음. * 전입세대 열람결과 등재인 없음. 전입세대열람내역 첨부. * 세무서에 임대차정보 제공요청 결과 등재된 임차인 없음. 상가건물임대차 현황서 첨부.[목록3]* 임차인 박상일이 점유하면서 패션마트104 의류판매점 영업중임. * 전입세대 열람결과 등재인 없음. 전입세대열람내역 첨부. * 세무서에 임대차정보 제공요청 결과 임차인 1인 등재되어 있음. 상가건물임대차 현황서 첨부.[목록4]* 폐문으로 점유자를 만나지 못하여 점유관계를 알 수 없음. * 전입세대 열람결과 등재인 없음. 전입세대열람내역 첨부. * 세무서에 임대차정보 제공요청 결과 임차인 1인 등재되어 있음. 상가건물임대차 현황서 첨부.[목록5]* 폐문으로 점유자를 만나지 못하여 점유관계를 알 수 없음. * 전입세대 열람결과 등재인 없음. 전입세대열람내역 첨부. * 세무서에 임대차정보 제공요청 결과 등재된 임차인 없음. 상가건물임대차 현황서 첨부.[목록6]* 임차인 강미숙이 점유하면서 `경동콜라텍` 영업중임. * 전입세대 열람결과 등재인 없음. 전입세대열람내역 첨부. * 세무서에 임대차정보 제공요청 결과 임차인 1인 등재되어 있음. 상가건물임대차 현황서 첨부.[목록7]* 폐문으로 점유자를 만나지 못하여 점유관계를 알 수 없음. * 전입세대 열람결과 등재인 없음. 전입세대열람내역 첨부. * 세무서에 임대차정보 제공요청 결과 등재된 임차인 없음. 상가건물임대차 현황서 첨부.[목록8]* 폐문으로 점유자를 만나지 못하여 점유관계를 알 수 없음. * 전입세대 열람결과 등재인 없음. 전입세대열람내역 첨부. * 세무서에 임대차정보 제공요청 결과 등재된 임차인 없음. 상가건물임대차 현황서 첨부.

매각결과+

매각일자 / 결과 응찰자수 최고가 금액/응찰자명 차순위 금액
부동산
등기
임차인
그 외

부동산

매각목록

※ 건축물 도면은 ‘건축물 대장의 기재 및 관리에 관한 규칙’ 에 따라 현재 경매가 진행중인 물건에만 제공됩니다.
※ 지분물건의 경우 면적은 지분에 해당하는 면적이 아닌 전체 면적으로 표기됩니다

감정평가

감정평가서 요약

1.구분건물감정평가요항표 1) 위치 및 주위환경 본건은 경기도 평택시 통복동 소재 "평택역" 북측 근거리에 위치하며 인근은 근린생활시설,시장, 업무용건물 등이 밀집한 후면 상가지대로서 제반 주위환경 무난함. 2) 교통상황 본건까지 차량출입이 가능하고 인근에 노선버스정류장 및 근거리에 평택역이 소재하여 대중교통사정은 무난함. 3) 건물의 구조 철골조 및 철근콘크리트조 슬래브지붕 5층 중 지하층 1호등 7개호로서 외벽 : 세멘몰탈위 돌붙임 및 일부 판넬마감등 내벽 : 몰탈위 페인팅, 인테리어 마감등 창호 : 칼라일미늄새시 및 페어그라스 창임. 4) 이용상태 지하층1호,2층1호, 3층1호 : 기준시점 현재 일부 일시적창고 및 대부분 공실임.1층1호 : 판매시설(의류판매점)4층1호 : 영업시설(무도장 및 음식점)로 이용중임.5층1호 : 사무실로 이용했으나 기준시점 현재 공실임.5층2호 : 사무실등으로 이용했으나 기준시점 현재 공실임. 5) 설비내역 공용위생설비, 승강기, 화재탐지기, 주차타워 등이 되어있음. 6) 토지의 형상 및 이용상태 부정형의 평지로 판매시설 및 영업시설 건부지로 이용중임. 7) 인접 도로상태등 본건 동측으로 소로와 접함. 8) 토지이용계획 및 제한상태 일반상업지역, 일반미관지구, 소로2류(폭8m-10m)(접합), 소로3류(폭8m미만)(접합) 9) 공부와의 차이 없음. 10) 기타참고사항(임대관례 및 기타) 1) 임대관계 : 미상임.2) 기 타 ① 본건의 내부구조도는 건축물대장상 도면을 참조하여 일반적이고 표준적인 상태로 도시 하였습니다. 본건의 이용상황과는 상이할 수 있으니 경매참가시 확인하여 주시기 바랍 니다. ② 본건 중 4층 1호(무도장 및 음식점)는 임차인이 운영중이고 인테리어시설비는 임차인이 설치한 것으로 조사되어 평가에서 제외되었는바 이해관계인은 경매참여시 유의하시기 바랍니다.

주변 입주 예정

거리 단지명 공급년월 세대 수
※ 해당 자료는 한국부동산원 청약홈 자료에 근거하며, 인근 5km 이내의 물건을 기준으로 산정되었습니다.

등기

등기부현황

채권합계 958,290,000원(6건)
등기일자 권리종류 권리자/채권액 권리
2008-06-18
(을1)
근저당권설정 수산업협동조합중앙회 소멸
말소기준 등기 4,680,000,000원
2023-02-27
(을1-1)
가처분 알파자산관리주식회사 소멸
- 피보전권리 장래의 대위변제를 이유로 하는 근저당권이전등기청구권
2013-08-01
(을3)
근저당권설정 김진태 소멸
- 78,000,000원
2021-05-18
(을3-3)
근저당권이전 알파자산관리주식회사 소멸
- -
2021-06-08
(을3-5)
질권 박옥심 소멸
- 60,000,000원
2013-08-01
(을3)
근저당권설정 장제욱 소멸
- 180,000,000원
2021-05-18
(을3-4)
근저당권이전 알파자산관리주식회사 소멸
- -
2021-06-08
(을3-6)
질권 정성희 소멸
- 135,000,000원
2015-01-20
(갑4)
가압류 유재근 소멸
- 114,000,000원
2015-02-11
(갑5)
가압류 주식회사신한은행 소멸
- 23,706,230원
2015-12-02
(갑8)
압류 평택시 소멸
- -
2021-04-06
(갑39)
압류 도봉세무서 소멸
- -
2022-03-29
(갑40)
임의경매개시결정
(2022타경42045)
알파자산관리주식회사 소멸
경매기입 등기 78,000,000원
2022-07-05
(갑41)
강제경매개시결정
(2022타경44645)
가길현 소멸
경매기입 등기
2023-04-19
(갑42)
가처분 알파자산관리주식회사 소멸
- 피보전권리 토지소유권에 기한 건물철거청구권
2023-04-27
(갑43)
가압류 알파자산관리주식회사 소멸
- 249,238,356원
2023-04-27
(갑44)
가압류 알파자산관리주식회사 소멸
- 113,153,424원
2023-04-27
(갑45)
가압류 알파자산관리주식회사 소멸
- 380,214,932원
더보기 더보기
※ 신규 발급등기의 분석자료 반영에는 최대 1일까지 소요될수 있습니다.(등기분석,임차인분석,분석노트 등)

임차인

매각물건 명세서

구분 법원 사건번호 작성일자 매각명세서
1 평택지원 2022타경42045[1] 2024.01.02
구분 법원/
사건번호
작성일자 매각명세서
1 평택지원
2022타경42045[1]
2024.01.02

물건 비고(매각 명세서)

1. 일괄매각. 2. 목록 2,4,5,6,7,8은 지분매각임. 공유자의 우선매수청구는 1회로 제한함(공유자가 우선매수권을 행사하여 매수신고를 한 후
매각기일 종결 고지 전까지 보증금을 납부하지 아니하면 그 공유자는 이후의 매각기일에서는 우선매수권을 행사할 수 없음).
3. 감정평가 당시 목록6 물건(무도장 및 음식점)은 임차인이 운영중이고 인테리어시설비는 임차인이 설치한 것으로 조사되어
평가에서 제외되었는바 이해관계인의 유의 요함.

임차인현황

임차인 보증금/차임 전입/확정/배당 대항력
강미숙
(점포임차인)
점유부분:
4층 738.65 평방미 터
보증:
30,000,000
차임:
2,500,000
사업: 2015-02-09
확정: -
배당: 2022-05-09
-
[현황조사]
박상일
(점포임차인)
점유부분:
1층1/2, 344.4평 방미터
보증:
60,000,000
차임:
4,000,000
사업: 2022-01-10
확정: 미상
배당: -
-
[현황조사]
정상진
(점포임차인)
점유부분:
2층 502호 542.23 평방미 터
보증:
40,000,000
차임:
3,200,000
사업: 2019-02-07
확정: 미상
배당: -
-
[현황조사]
채미지
(점포임차인)
점유부분:
2층 218평방 미터
보증:
50,000,000
차임:
4,500,000
사업: 2018-06-27
확정: 미상
배당: -
-

현황 조사서

조사일시

2022년04월18일13시52분

부동산의 현황

* 본건 건물 각층에는 기본적으로 1호, 2호 등의 호실명패가 부착되어 있지 않아 호실 구분이 분명치 않으므로 건축물현황도를 첨부함.
* 지하 1층은 입구의 출입문이 폐쇄되어 있고, 조명조차 꺼져 있으며 퀴퀴한 냄새가 배어있는 것으로 보아 오랫동안 사용되지 않는 것으로 추정됨.
* 1층은 전체가 `패션마트104` 의류판매점의 영업장으로 사용되고 있으며 영업주이자 임차인 박상일은 상가건물임대차 현황서 기재 내역과 같이 임차하여 영업하고 있다고 진술.
* 본건 건물 엘리베이터 옆 안내판에 `지상1층부터 지상3층까지 패션마트104의 각 분야별 판매점포가 있고, 지하1층에 수선실, 놀이방 등이, 지상5층에 매션마트104 물류센터가 있다`는 내용으로 표시되어 있으나, 위 박상일은 자신은 1층만 사용하고 있고, 지하1층이나 2층,3층,5층은 사용하지 않고 있다고 진술.
* 2층은 통로의 출입문이 폐쇄되어 있음. 엘리베이터 옆 방실 츨입문 옆에 `(주)티엠씨` 간판이 부착되어 있으나 출입문은 잠겨 있음.
* 3층은 출입문이 잠겨있지 않으나 내부는 불이 꺼져 있고 몇몇 물품만 있는 공실임.
* 4층은 전체가 `경동콜라텍` 영업장으로 사용되고 있고 내부에 무도장, 식당, 휴게실, 흡연실 등이 있음. 비교적 나이가 많은 남녀 손님 수십명이 요란한 음악 아래 춤추고 취식하는 등 유흥를 즐기고 있었음.
* 5층에는 관리사무실과 패션마트104 물류센터 명패가 부착되어 있으나, 관리사무실에는 아무도 없었고, 패션마트104 물류센터 명패가 부착된 방실에는 잡동사니만 있을뿐 의류 등 물품은 없었음.
- 위 임차인등록자는 상가건물임대차 현황서에 등재된 자인바, 현지조사 방문시 폐문부재로 사람을 만나지 못하거나 영업자의 구두 진술만 들었을 뿐 임대차계약서 등 서류로 임대차관계 내역을 확인하지 못하였고, 임차인일 경우 배당요구 종기일까지 권리신고 및 배당요구 신청서를 제출하여야 법률의 규정에 따른 임차인보호를 받을 수 있다는 내용의 경매안내문을 영업자에게 교부하거나 우편함에 투입하고 문틈에도 끼워두었음.
- 이에 임차인을 보호하기 위하여 임차인 여부가 확인되지 아니한 상가건물임대차 현황서 등재인을 임차인으로 추정하여 등록하였고, 본건 경매 이해관계인은 차후 권리신고 및 배당요구 신청서 제출 등에 의하여 위 임차인등록자가 진정한 임차인인지 여부를 판단할 필요가 있음.

점유 조사

[목록2]* 폐문으로 점유자를 만나지 못하여 점유관계를 알 수 없음. * 전입세대 열람결과 등재인 없음. 전입세대열람내역 첨부. * 세무서에 임대차정보 제공요청 결과 등재된 임차인 없음. 상가건물임대차 현황서 첨부.[목록3]* 임차인 박상일이 점유하면서 패션마트104 의류판매점 영업중임. * 전입세대 열람결과 등재인 없음. 전입세대열람내역 첨부. * 세무서에 임대차정보 제공요청 결과 임차인 1인 등재되어 있음. 상가건물임대차 현황서 첨부.[목록4]* 폐문으로 점유자를 만나지 못하여 점유관계를 알 수 없음. * 전입세대 열람결과 등재인 없음. 전입세대열람내역 첨부. * 세무서에 임대차정보 제공요청 결과 임차인 1인 등재되어 있음. 상가건물임대차 현황서 첨부.[목록5]* 폐문으로 점유자를 만나지 못하여 점유관계를 알 수 없음. * 전입세대 열람결과 등재인 없음. 전입세대열람내역 첨부. * 세무서에 임대차정보 제공요청 결과 등재된 임차인 없음. 상가건물임대차 현황서 첨부.[목록6]* 임차인 강미숙이 점유하면서 `경동콜라텍` 영업중임. * 전입세대 열람결과 등재인 없음. 전입세대열람내역 첨부. * 세무서에 임대차정보 제공요청 결과 임차인 1인 등재되어 있음. 상가건물임대차 현황서 첨부.[목록7]* 폐문으로 점유자를 만나지 못하여 점유관계를 알 수 없음. * 전입세대 열람결과 등재인 없음. 전입세대열람내역 첨부. * 세무서에 임대차정보 제공요청 결과 등재된 임차인 없음. 상가건물임대차 현황서 첨부.[목록8]* 폐문으로 점유자를 만나지 못하여 점유관계를 알 수 없음. * 전입세대 열람결과 등재인 없음. 전입세대열람내역 첨부. * 세무서에 임대차정보 제공요청 결과 등재된 임차인 없음. 상가건물임대차 현황서 첨부.

1
소재지 경기도평택시통복시장로6번길18-6,1층1호
점유인 박상일(임차인)
점유부분 1층1/2, 344.4평방미터(점포)
점유기간 2022.01.03~2023.12.31
보증금/차임 60,000,000/4,000,000
전입/확정일자 2022.01.10/미상
1
소재지 경기도평택시통복시장로6번길18-6,2층1호
점유인 정상진(임차인)
점유부분 2층 502호 542.23평방미터(점포)
점유기간 2019.02.21~2121.02.20
보증금/차임 40,000,000/3,200,000
전입/확정일자 2019.02.07/미상
1
소재지 경기도평택시통복시장로6번길18-6,4층1호
점유인 강미숙(임차인)
점유부분 4층 전관 760.334평방미터(점포)
점유기간 2015.02.01~2018.01.31
보증금/차임 30,000,000/3,080,000
전입/확정일자 2015.02.09/미상
2
소재지 경기도평택시통복시장로6번길18-6,2층1호
점유인 채미지(임차인)
점유부분 2층 218평방미터(점포)
점유기간 2018.07.01~2020.06.30
보증금/차임 50,000,000/4,500,000
전입/확정일자 2018.06.27/미상
2
소재지 경기도평택시통복시장로6번길18-6,4층1호
점유인 강미숙(임차인)
점유부분 4층 738.65평방미터(점포)
점유기간 2015.02.01~2020.12.31
보증금/차임 30,000,000/2,800,000
전입/확정일자 2020.02.20/미상

미납관리비 조사내역

확인일자 미납금액 관리소번호 메모

※ 해당 정보는 참고용으로 제공되며 입찰 전 반드시 관리사무소를 통해 직접 확인하시기 바랍니다.

시세

전문가

그외

관할법원 관할법원 (입찰장소)

수원지방법원 평택지원

경매5계 : 031-650-3114

경기 평택시 동삭동 663 주소복사

Q&A Q&A

Q. 대법원경매가 무엇인가요?누구나 입찰에 참여할 수 있나요?

경매채무자(빌린 자)가 채무를 갚지 않았을 때 채권자(빌려준 자)의 신청으로 대법원이 채무자의 재산을 대신 매각하는 과정을 말합니다.

법원은 감정인에게 자산을 평가하게 한 후, 최저가를 정하여 그 금액 이상으로 입찰한 입찰자 중 최고가 매수인을 결정합니다.

대법원의 주관하에 국민 모두가 참여할 수 있습니다.

Q. 경매 입찰은 어떻게 하나요?누구나 입찰에 참여할 수 있나요?

1. 입찰하시고자 하는 경매물건을 정하신 후, 입찰하시고자 하는 입찰가를 최저가 이상으로 정합니다.

2. 해당 물건의 매각기일에 직접 관할법원에 방문하셔서 법원내에 비치된 입찰서를 작성하신 후 입찰하시면 됩니다.

TIP! 법원에 가실 때에는 입찰보증금(최저가의 10~30%)과 신분증을 지참하여 방문하세요.

Q. 용어가 너무 어려워서 내용을 이해하기 어려워요누구나 입찰에 참여할 수 있나요?

매각기일
매각기일은 경매 법원이 부동산에 대하여 매각 입찰을 진행하는 날을 말합니다.

유찰
매각 기일에 매수하고자 하는 사람이 없어 매각되지 않아 무효가 되는 것을 유찰이라고 합니다.

최저 매각 가격
최초 경매를 진행할때 감정인이 평가한 가격을 기준으로 책정한 금액이며 입찰자는 최저 매각 가격과 동일하거나 이상의 금액으로 입찰해야 합니다. 매각 기일에 있어 입찰자가 없어 유찰되면 통상 20~30% 저감된 금액이 다음 최저 매각 가격이 됩니다.

매수 보증금
경매 물건을 매수하고자 하는사람은 최저 매각 가격의 10분의 1(다르게 정해질 수 있음)에 해당하는 보증금액을 입찰표와 함께 집행관에게 제출하는 방법으로 제공합니다. 매각 절차가 종결된 후 집행관은 최고가 매수신고인이나 차순위매수신고인 이외의 매수신청인에게는 즉시 매수 보증금을 반환해 줍니다.

더 많은 내용을 알고 싶다면 경매마당 학습하기 코너에 준비된 용어설명을 이용해보세요.

경매정보는 법원자료와 일치하도록 하였으나 권리사항변동, 입력착오 등의 원인으로 사실과 다를 수 있습니다. 이용약관에 의거 면책조건으로 제공됨을 알리며, 경매입찰시 반드시 관련 공부를 재확인하시기 바랍니다.

PC버전으로 보기