알림

알림 내역

알림 신청내역/취소

대법원
물건내역
사건내역
기일내역
송달내역
현황조사
지도
사진보기
문서
매각기일공고문
매각물건명세서
감정평가서 M
등기부등본
전입세대열람원 M
건축물대장 M
분석
예상배당표 M
수익률분석 M
입찰가분석 M
조회수분석 M
인근지역통계 M
사이트
대법원
국토부 실거래가
토지이음
아실
네이버 단지정보
네이버 매물정보
호갱노노
부동산플래닛
로고 수원지방법원 안산지원 [경매4계] 2023타경63624
경기도 광명시 도덕로 56, 103동 13층1305호 (광명동,광명중앙하이츠아파트)

경기 광명시 광명동 732

주소복사
경매구분 임의경매
용도 아파트
토지 30㎡(9.08평)
건물 84.8㎡(25.65평)
감정가 544,000,000원
최저가 380,800,000원
보증금 38,080,000원 (10%)
청구액 288,075,787원
개시결정 2023년 10월 30일
감정일 2023년 11월 17일
배당종기 2024년 01월 22일
매각일 2025년 06월 05일
2023타경63624
2023타경63624
2023타경63624
2023타경63624
2023타경63624
2023타경63624
2023타경63624
2023타경63624
2023타경63624
2023타경63624
2023타경63624
감정가
5억4400만원
2120만8577원/평
낙찰가 7%
5억500만원
배당종결 2025년 06월 05일
유찰 1회
유찰 1회
경매구분 임의경매
용도 아파트
토지 30㎡(9.08평)
건물 84.8㎡(25.65평)
감정가 544,000,000원
최저가 380,800,000원
보증금 38,080,000원 (10%)
청구액 288,075,787원
개시결정 2023년 10월 30일
감정일 2023년 11월 17일
배당종기 2024년 01월 22일
매각일 2025년 06월 05일
배당종결 2025년 06월 05일

당사자 내역

채무자겸소유자 홍OO
채권자 비OOOOOOOOOOOOOOOOOOOOOOOOOOOOO
근저당권부질권자 제OOOOOOOOOOO
근저당권자 서OOOOOOO
근저당권자 비OOOOOOOOOOOOOOOOOOOOOOOOOOOOO
교부권자 광OO

기일 내역

2025.07.21(16:00)
매각
2025.06.12(14:00)
최고가매각허가결정
2025.06.05(10:30)
5억500만원 매각
3억8080만원 최저가
2024.06.13(10:30)
기일변경
2024.05.02(10:30)
5억4400만원 유찰

매각공고

현황 조사(현황 조사서)

5호와 6호 라인의 아파트가 계단으로 연결되어 있음

점유 조사(현황 조사서)

[목록1]현장을 방문하였으나 소유자 기타 점유자를 만나지 못하였고, 전입세대확인서에는 소유자 겸 채무자가 등재되어 있고, 외국인체류확인서에는 등재사항이 없음

매각결과+

매각일자 / 결과 응찰자수 최고가 금액/응찰자명 차순위 금액

가장 빠른 경매 정보 플랫폼 경매마당
남들보다 먼저 정보를 선점하세요

간단한 로그인 후 바로 이용 가능합니다

bolt 대법원 보다 빠른 물건 정보
verified 가장 많은 경매 물건 제공
trending_up 월 5회 등기부 무료 열람

현황정보

매각목록

부동산 현황

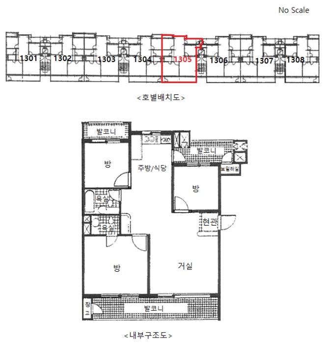
1) 위치 및 주위환경 본건은 경기도 광염시 광명동 소재 "광문중학교" 북동측 인근에 위치하며 주위는 아파트, 단 독주택, 다세대주택, 점포 등이 혼재하는 지역임. 2) 교통상황 본건은 차량 접근이 용이하고, 인근에 노선버스 정류장이 소재하여 대중교통사정은 무난함. 3) 건물의 구조 철근콘크리트조 슬래브 지붕 15층 중 13층 1305로서 외벽 : 시멘몰탈위 페인팅 마감. 내벽 : 시멘몰탈위 벽지 도배 및 일부 타일 등 마감. 창호 : 샷시 이중 창호임. 4) 이용상태 아파트(후첨 "내부구조도" 참조)로 이용 중임. 5) 설비내역 위생 및 급ㆍ배수설비, 소화설비, 도시가스설비, 난방설비, 승강기설비 등이 되어 있음. 6) 토지의 형상 및 이용상태 부정형 완경사의 토지로서 아파트 부지로 이용중임. 7) 인접 도로상태등 본건 아파트단지는 주위로 소로2류, 소로3류 및 중로1류와 접함. 8) 토지이용계획 및 제한상태 제3종일반주거지역, 소로2류(폭 8m-10m)(국지도로)(접합), 소로3류(폭 8m 미만)(국지도로) (접합), 중로1류(폭 20m-25m)(보조간선도로)(접합) 상대보호구역(2013-04-22)(광문중학교해 당 교육청에 문의)<교육환경 보호에 관한 법률>, 절대보호구역(해당지역 교육청에 문의)<교 육환경 보호에 관한 법률>, 과밀억제권역<수도권정비계획법> 토지거래계약에관한허가구역 (-2024.3.1.(국토교통부 지정)) 9) 공부와의 차이 해당사항 없음. 10) 기타참고사항(임대관례 및 기타) 본건 아파트의 임대관계는 미상임.

주변 입주 예정

거리 단지명 공급년월 세대 수
※ 해당 자료는 한국부동산원 청약홈 자료에 근거하며, 인근 5km 이내의 물건을 기준으로 산정되었습니다.

등기

등기부현황

채권합계 620,400,000원(2건)
등기일자 권리종류 권리자/채권액 권리
2001-03-09
소유자 홍OOOOOOOO OO
단독소유 -
2017-01-23
(을1)
근저당권설정 서OOOOOOO OO
말소기준 등기 289,200,000원
2022-01-21
(을2)
근저당권설정 비OOOOOOOOOO OO
- 331,200,000원
2024-03-27
(을2-1)
근저당권이전 주OOOOOOOOOO OO
- -
2024-03-27
(을2-2)
근질권 제OOOOOOOOOOO OO
- 331,200,000원
2023-10-30
(갑2)
임의경매개시결정
(2023타경63624)
비OOOOOOOOOO OO
경매기입 등기 288,075,787원
더보기
※ 신규 발급등기의 분석자료 반영에는 최대 1일까지 소요될수 있습니다.(등기분석,임차인분석,분석노트 등)

임차인

매각물건 명세서

구분 법원 사건번호 작성일자 매각명세서
1 안산지원 2023타경63624[1] 2025. 4. 28.
2 안산지원 2023타경63624[1] 2024.04.01
구분 법원/
사건번호
작성일자 매각명세서
1 안산지원
2023타경63624[1]
2025. 4. 28.
2 안산지원
2023타경63624[1]
2024.04.01

임차인현황

임차인 보증금/차임 전입/확정/배당 대항력
매각물건명세서상 임차인이 존재하지 않습니다.

현황 조사서

조사일시

2023년11월15일15시00분

부동산의 현황

5호와 6호 라인의 아파트가 계단으로 연결되어 있음

점유 조사

[목록1]현장을 방문하였으나 소유자 기타 점유자를 만나지 못하였고, 전입세대확인서에는 소유자 겸 채무자가 등재되어 있고, 외국인체류확인서에는 등재사항이 없음

조사일시

2023년11월15일15시00분

부동산의 현황

5호와 6호 라인의 아파트가 계단으로 연결되어 있음

점유 조사

[목록1]현장을 방문하였으나 소유자 기타 점유자를 만나지 못하였고, 전입세대확인서에는 소유자 겸 채무자가 등재되어 있고, 외국인체류확인서에는 등재사항이 없음

미납관리비 조사내역

확인일자 미납금액 관리소번호 메모

※ 해당 정보는 참고용으로 제공되며 입찰 전 반드시 관리사무소를 통해 직접 확인하시기 바랍니다.

시세분석

인근 낙찰사례

기타

전문가

관할법원 (입찰장소)

수원지방법원 안산지원

경매4계 : 031-481-1114

경기 안산시 단원구 고잔동 711 주소복사

Q&A

Q. 대법원경매가 무엇인가요?누구나 입찰에 참여할 수 있나요?

경매채무자(빌린 자)가 채무를 갚지 않았을 때 채권자(빌려준 자)의 신청으로 대법원이 채무자의 재산을 대신 매각하는 과정을 말합니다.

법원은 감정인에게 자산을 평가하게 한 후, 최저가를 정하여 그 금액 이상으로 입찰한 입찰자 중 최고가 매수인을 결정합니다.

대법원의 주관하에 국민 모두가 참여할 수 있습니다.

Q. 경매 입찰은 어떻게 하나요?누구나 입찰에 참여할 수 있나요?

1. 입찰하시고자 하는 경매물건을 정하신 후, 입찰하시고자 하는 입찰가를 최저가 이상으로 정합니다.

2. 해당 물건의 매각기일에 직접 관할법원에 방문하셔서 법원내에 비치된 입찰서를 작성하신 후 입찰하시면 됩니다.

TIP! 법원에 가실 때에는 입찰보증금(최저가의 10~30%)과 신분증을 지참하여 방문하세요.

Q. 용어가 너무 어려워서 내용을 이해하기 어려워요누구나 입찰에 참여할 수 있나요?

매각기일
매각기일은 경매 법원이 부동산에 대하여 매각 입찰을 진행하는 날을 말합니다.

유찰
매각 기일에 매수하고자 하는 사람이 없어 매각되지 않아 무효가 되는 것을 유찰이라고 합니다.

최저 매각 가격
최초 경매를 진행할때 감정인이 평가한 가격을 기준으로 책정한 금액이며 입찰자는 최저 매각 가격과 동일하거나 이상의 금액으로 입찰해야 합니다. 매각 기일에 있어 입찰자가 없어 유찰되면 통상 20~30% 저감된 금액이 다음 최저 매각 가격이 됩니다.

매수 보증금
경매 물건을 매수하고자 하는사람은 최저 매각 가격의 10분의 1(다르게 정해질 수 있음)에 해당하는 보증금액을 입찰표와 함께 집행관에게 제출하는 방법으로 제공합니다. 매각 절차가 종결된 후 집행관은 최고가 매수신고인이나 차순위매수신고인 이외의 매수신청인에게는 즉시 매수 보증금을 반환해 줍니다.

더 많은 내용을 알고 싶다면 경매마당 학습하기 코너에 준비된 용어설명을 이용해보세요.

경매정보는 법원자료와 일치하도록 하였으나 권리사항변동, 입력착오 등의 원인으로 사실과 다를 수 있습니다. 이용약관에 의거 면책조건으로 제공됨을 알리며, 경매입찰시 반드시 관련 공부를 재확인하시기 바랍니다.

PC버전으로 보기