알림

알림 내역

알림 신청내역/취소

대법원
물건내역
사건내역
기일내역
송달내역
현황조사
지도
사진보기
문서
매각기일공고문
매각물건명세서
감정평가서 M
등기부등본
전입세대열람원 M
건축물대장 M
분석
예상배당표 M
수익률분석 M
입찰가분석 M
조회수분석 M
인근지역통계 M
사이트
대법원
국토부 실거래가
토지이음
아실
네이버 단지정보
네이버 매물정보
호갱노노
부동산플래닛
로고 수원지방법원 안산지원 [경매11계] 2024타경55057
경기도 광명시 소하로92번길 5, 2층207호 (소하동,에버그린)

경기 광명시 소하동 1343-5

주소복사
경매구분 강제경매
용도 오피스텔(사무)
토지 18.5㎡(5.6평)
건물 67.8㎡(20.51평)
감정가 388,000,000원
최저가 93,158,800원
보증금 18,631,800원 (20%)
청구액 315,000,000원
개시결정 2024년 04월 01일
감정일 2024년 04월 12일
배당종기 2024년 06월 24일
매각일 2025년 05월 28일
2024타경55057
2024타경55057
2024타경55057
2024타경55057
2024타경55057
2024타경55057
2024타경55057
2024타경55057
2024타경55057
2024타경55057
2024타경55057
2024타경55057
2024타경55057
2024타경55057
2024타경55057
2024타경55057
2024타경55057
2024타경55057
2024타경55057
감정가
3억8800만원
1891만7601원/평
낙찰가 18%
3억1985만원
배당종결 2025년 05월 28일
유찰 4회선순위임차인재매각임차권등기
유찰 4회선순위임차인재매각임차권등기
경매구분 강제경매
용도 오피스텔(사무)
토지 18.5㎡(5.6평)
건물 67.8㎡(20.51평)
감정가 388,000,000원
최저가 93,158,800원
보증금 18,631,800원 (20%)
청구액 315,000,000원
개시결정 2024년 04월 01일
감정일 2024년 04월 12일
배당종기 2024년 06월 24일
매각일 2025년 05월 28일
배당종결 2025년 05월 28일

당사자 내역

채무자겸소유자 백OO
채권자 주OOOOOOO
가압류권자 주OOOOOOO
압류권자 광OO
압류권자 부OOOO
교부권자 국OOOOOOOOOOOOO
임차권자 나OO
임차권자 주OOOOOOOOOOOOOOOOOOOOO
교부권자 부OOOO
교부권자 의OOO
교부권자 광OO
교부권자 은OO
배당요구권자 주OOOOOOO

기일 내역

2025.07.11(16:00)
기한후납부
2025.06.04(14:00)
최고가매각허가결정
2025.05.28(10:30)
3억1985만원 매각
9315만8800원 최저가
2025.04.09(10:30)
1억3308만4000원 유찰
2025.02.26(10:30)
1억9012만원 유찰
2025.01.08(10:30)
2억7160만원 유찰
2024.12.11(10:30)
3억8800만원 유찰

매각공고

물건 비고(공고문)

재매각임. 매수신청보증금은 최저매각가격의 20%.

임차인(매각 명세서)

<비고>
주택도시보증공사(임차인 나혜연의 승계인):주택임차권등기일은 2023.04.26.이고, 이 사건 경매신청채권자임. 임차인 나혜연의
승계인임

인수되는 권리/가처분(매각 명세서)

매수인에게 대항할 수 있는 을구3번 주택임차권등기(2023.4.26. 제15412호)있음. 배당에서 보증금이 전액 변제되지 아니하면
잔액을 매수인이 인수함.

물건 비고(매각 명세서)

재매각임. 매수신청보증금은 최저매각가격의 20%.

점유 조사(현황 조사서)

[목록1]1. 본건 부동산에 현황조사차 방문하였으나 폐문부재로 소유자 및 점유자 등을 만나지 못했고, 안내문을 부착하였으나 전화 등의 연락이 없어 점유자 확인 불능임.
2. 별지 전입세대확인서 및 외국인체류확인서상 등재자 없음.
3. 별지 상가건물임대차 현황서상 등재자 없음.

매각결과+

매각일자 / 결과 응찰자수 최고가 금액/응찰자명 차순위 금액

가장 빠른 경매 정보 플랫폼 경매마당
남들보다 먼저 정보를 선점하세요

간단한 로그인 후 바로 이용 가능합니다

bolt 대법원 보다 빠른 물건 정보
verified 가장 많은 경매 물건 제공
trending_up 월 5회 등기부 무료 열람

현황정보

매각목록

부동산 현황

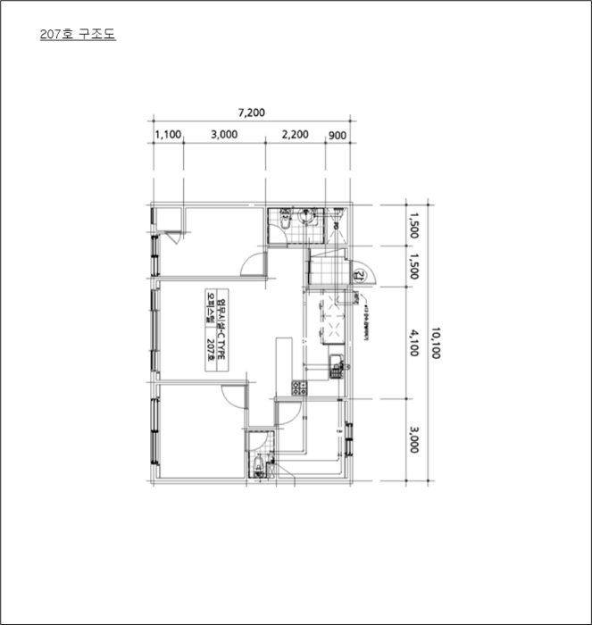
1) 위치 및 주위환경 경기도 광명시 소하동 소재 "이마트" 서측 인근에 위치하는 에버그린(업무시설 및 근린생활 시설) 내에 소재하며, 인근일대는 주로 업무 및 상업용 부동산들이 밀집하여 소재하는 상업 지대를 형성하고 있음. 2) 교통상황 본 건물까지 차량출입 용이하고 인근에 버스정류장 및 공영주차장이 소재하며, 제반 교통 여건은 보통 수준임. 3) 건물의 구조 철근콘크리트구조 평스라브지붕 7층건 내 2층 207호로서 외벽 : 돌붙임 등 마감. 내벽 : 벽지 및 타일 등 마감. 창호 : 칼라샷시 등 창호임. 4) 이용상태 오피스텔로 이용중임.(별첨 내부구조도 참조) 5) 설비내역 보일러설비에 의한 개별난방 구조이며, 엘리베이터설비, 위생설비, 급.배수설비, 출입구 보안개폐설비 등 되어있음. 6) 토지의 형상 및 이용상태 장방향의 평지로서 업무시설 및 근린생활시설 건부지로 이용중임. 7) 인접 도로상태등 북측으로 폭15미터, 남측으로 폭6미터 정도의 포장도로에 접함. 8) 토지이용계획 및 제한상태 일반상업지역, 제1종지구단위계획구역, 중로2류(폭 15m-20m)(집산도로)(접합) 과밀억제권역 <수도권정비계획법>, 택지개발지구<택지개발촉진법>. 9) 공부와의 차이 없 음. 10) 기타참고사항(임대관례 및 기타) 임대관계 : 미 상 임. 기 타 : 본건 내부이용상태는 관계인 부재로 인하여 건축물현황도 및 탐문조사에 의거 하였으며, 동 유형 구분건물의 일반적인 설비상황을 기준하여 평가하였으니 경매진행시 참고하시기 바람.

주변 입주 예정

거리 단지명 공급년월 세대 수
※ 해당 자료는 한국부동산원 청약홈 자료에 근거하며, 인근 5km 이내의 물건을 기준으로 산정되었습니다.

등기

등기부현황

채권합계 778,000,000원(1건)
등기일자 권리종류 권리자/채권액 권리
2019-07-02
소유자 백OOOOOOOO
단독소유 -
2022-11-10
(갑6)
가압류 주OOOOOOO 소멸
말소기준 등기 778,000,000원
2023-02-02
(갑7)
압류 광OO 소멸
- -
2023-02-09
(갑8)
압류 부OOOOO 소멸
- -
2023-04-26
(을3)
임차권설정 나OO 소멸
- 315,000,000원
2024-04-01
(갑9)
강제경매개시결정
(2024타경55057)
주OOOOOOO 소멸
경매기입 등기 315,000,000원
2024-04-17
(갑10)
압류 국OOOOOOO 소멸
- -
더보기
※ 신규 발급등기의 분석자료 반영에는 최대 1일까지 소요될수 있습니다.(등기분석,임차인분석,분석노트 등)

임차인

매각물건 명세서

구분 법원 사건번호 작성일자 매각명세서
1 안산지원 2024타경55057[1] 2025. 7. 15.
2 안산지원 2024타경55057[1] 2025. 4. 29.
3 안산지원 2024타경55057[1] 2024.10.24
4 안산지원 2024타경55057[1] 작성일자 미확인
구분 법원/
사건번호
작성일자 매각명세서
1 안산지원
2024타경55057[1]
2025. 7. 15.
2 안산지원
2024타경55057[1]
2025. 4. 29.
3 안산지원
2024타경55057[1]
2024.10.24
4 안산지원
2024타경55057[1]
작성일자 미확인

임차인(매각 명세서)

<비고>
주택도시보증공사(임차인 나혜연의 승계인):주택임차권등기일은 2023.04.26.이고, 이 사건 경매신청채권자임. 임차인 나혜연의
승계인임

인수되는 권리/가처분(매각 명세서)

매수인에게 대항할 수 있는 을구3번 주택임차권등기(2023.4.26. 제15412호)있음. 배당에서 보증금이 전액 변제되지 아니하면
잔액을 매수인이 인수함.

물건 비고(매각 명세서)

재매각임. 매수신청보증금은 최저매각가격의 20%.

임차인현황

임차인 보증금/차임 전입/확정/배당 대항력
나혜연
(주거임차권자)
점유부분:
2층 207호 전체
보증:
315,000,000
차임:
-
전입: 2021-08-03
확정: 2021-07-13
배당: -
멤버십
주택도 시보증 공사(임 차인 나혜연 의 승계인)
(주거임차권자)
점유부분:
2층 207호 전체
보증:
315,000,000
차임:
-
전입: 2021-08-03
확정: 2021-07-13
배당: 2024.6.20.
멤버십

현황 조사서

조사일시

2024년04월15일13시05분

부동산의 현황

-

점유 조사

[목록1]1. 본건 부동산에 현황조사차 방문하였으나 폐문부재로 소유자 및 점유자 등을 만나지 못했고, 안내문을 부착하였으나 전화 등의 연락이 없어 점유자 확인 불능임.
2. 별지 전입세대확인서 및 외국인체류확인서상 등재자 없음.
3. 별지 상가건물임대차 현황서상 등재자 없음.

미납관리비 조사내역

확인일자 미납금액 관리소번호 메모

※ 해당 정보는 참고용으로 제공되며 입찰 전 반드시 관리사무소를 통해 직접 확인하시기 바랍니다.

시세분석

인근 낙찰사례

기타

전문가

관할법원 (입찰장소)

수원지방법원 안산지원

경매11계 : 031-481-1114

경기 안산시 단원구 고잔동 711 주소복사

Q&A

Q. 대법원경매가 무엇인가요?누구나 입찰에 참여할 수 있나요?

경매채무자(빌린 자)가 채무를 갚지 않았을 때 채권자(빌려준 자)의 신청으로 대법원이 채무자의 재산을 대신 매각하는 과정을 말합니다.

법원은 감정인에게 자산을 평가하게 한 후, 최저가를 정하여 그 금액 이상으로 입찰한 입찰자 중 최고가 매수인을 결정합니다.

대법원의 주관하에 국민 모두가 참여할 수 있습니다.

Q. 경매 입찰은 어떻게 하나요?누구나 입찰에 참여할 수 있나요?

1. 입찰하시고자 하는 경매물건을 정하신 후, 입찰하시고자 하는 입찰가를 최저가 이상으로 정합니다.

2. 해당 물건의 매각기일에 직접 관할법원에 방문하셔서 법원내에 비치된 입찰서를 작성하신 후 입찰하시면 됩니다.

TIP! 법원에 가실 때에는 입찰보증금(최저가의 10~30%)과 신분증을 지참하여 방문하세요.

Q. 용어가 너무 어려워서 내용을 이해하기 어려워요누구나 입찰에 참여할 수 있나요?

매각기일
매각기일은 경매 법원이 부동산에 대하여 매각 입찰을 진행하는 날을 말합니다.

유찰
매각 기일에 매수하고자 하는 사람이 없어 매각되지 않아 무효가 되는 것을 유찰이라고 합니다.

최저 매각 가격
최초 경매를 진행할때 감정인이 평가한 가격을 기준으로 책정한 금액이며 입찰자는 최저 매각 가격과 동일하거나 이상의 금액으로 입찰해야 합니다. 매각 기일에 있어 입찰자가 없어 유찰되면 통상 20~30% 저감된 금액이 다음 최저 매각 가격이 됩니다.

매수 보증금
경매 물건을 매수하고자 하는사람은 최저 매각 가격의 10분의 1(다르게 정해질 수 있음)에 해당하는 보증금액을 입찰표와 함께 집행관에게 제출하는 방법으로 제공합니다. 매각 절차가 종결된 후 집행관은 최고가 매수신고인이나 차순위매수신고인 이외의 매수신청인에게는 즉시 매수 보증금을 반환해 줍니다.

더 많은 내용을 알고 싶다면 경매마당 학습하기 코너에 준비된 용어설명을 이용해보세요.

경매정보는 법원자료와 일치하도록 하였으나 권리사항변동, 입력착오 등의 원인으로 사실과 다를 수 있습니다. 이용약관에 의거 면책조건으로 제공됨을 알리며, 경매입찰시 반드시 관련 공부를 재확인하시기 바랍니다.

PC버전으로 보기