알림

알림 내역

알림 신청내역/취소

NEW
상태가 변경되면
알려드려요!
로고 수원지방법원 안산지원 [경매11계] 2024타경58803
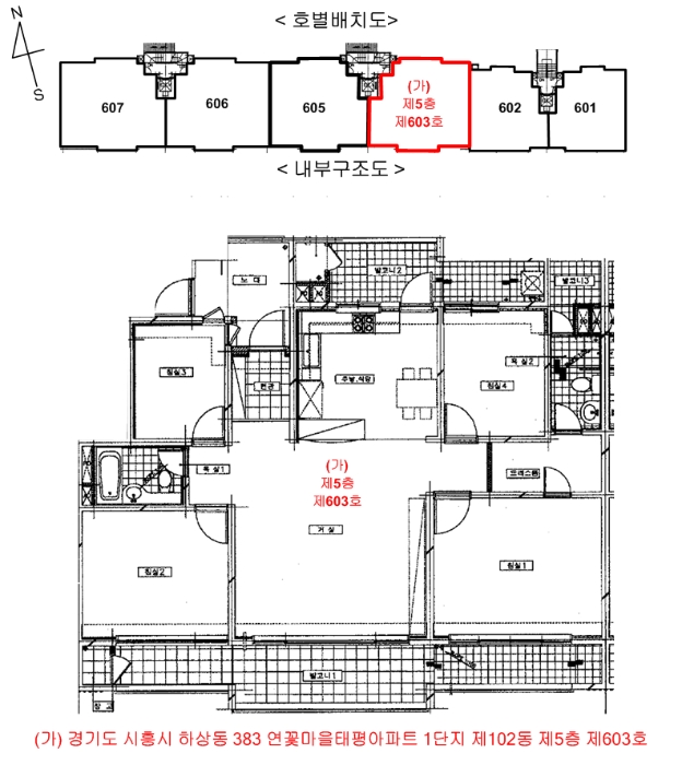
경기도 시흥시 상직길 9, 102동 5층603호 (하상동,연꽃마을태평아파트1단지)

경기 시흥시 하상동 383

주소복사
경매구분 임의경매
용도 아파트
토지 53.57㎡(16.2평)
건물 116.42㎡(35.2평)
감정가 411,000,000원
최저가 287,700,000원
보증금 28,770,000원 (10%)
청구액 91,426,469원
개시결정 2024년 05월 23일
감정일 2024년 06월 03일
배당종기 2024년 08월 12일
매각일 2025년 08월 13일
2024타경58803
2024타경58803
2024타경58803
2024타경58803
2024타경58803
2024타경58803
2024타경58803
2024타경58803
2024타경58803
2024타경58803
2024타경58803
감정가
4억1100만원
최저가 30%
2억8770만원
집행정지됨 2025년 08월 13일
유찰 1회
유찰 1회
경매구분 임의경매
용도 아파트
토지 53.57㎡(16.2평)
건물 116.42㎡(35.2평)
감정가 411,000,000원
최저가 287,700,000원
보증금 28,770,000원 (10%)
청구액 91,426,469원
개시결정 2024년 05월 23일
감정일 2024년 06월 03일
배당종기 2024년 08월 12일
매각일 2025년 08월 13일
집행정지됨 2025년 08월 13일

당사자 내역

채무자겸소유자 정OO
채권자 세OOOOOOOOOOOO
근저당권부질권자 웰OOOOOOOOO
근저당권자 흥OOOOOOOOO
근저당권자 세OOOOOOOOOOO
전세권자 세OOOOOOOOOOO
교부권자 시OO
교부권자 국OOOOOOOOOOO

기일 내역

집행정지됨
2025.09.16(14:00)
최고가매각허가취소결정
2025.08.20(14:00)
최고가매각허가결정
2025.08.13(10:30)
3억1850만원 매각
2억8770만원 최저가
2025.05.28(10:30)
기일변경
2025.02.26(10:30)
기일변경
2025.01.08(10:30)
4억1100만원 유찰

임차인(매각 명세서)

<비고>
세븐파이낸셜대부주식회사:세븐파이낸셜대부주식회사는 전세권자로서 전세권설정등기일은 2024.01.04.임

점유 조사(현황 조사서)

[목록1]1. 본건 부동산에 현황조사차 방문하였으나 폐문부재로 소유자 및 점유자 등을 만나지 못했고, 안내문을 부착하였으나 전화 등의 연락이 없어 점유자 확인 불능임.
2. 별지 전입세대확인서 및 주민등록표등본상 채무자(소유자)의 배우자가 세대주로 등재되어 있음.

매각결과+

매각일자 / 결과 응찰자수 최고가 금액/응찰자명 차순위 금액
부동산
등기
임차인
그 외

부동산

매각목록

※ 건축물 도면은 ‘건축물 대장의 기재 및 관리에 관한 규칙’ 에 따라 현재 경매가 진행중인 물건에만 제공됩니다.
※ 지분물건의 경우 면적은 지분에 해당하는 면적이 아닌 전체 면적으로 표기됩니다

감정평가

감정평가서 요약

1) 위치 및 주위환경 대상물건은 경기도 시흥시 하상동 소재 "시흥고등학교" 서측 인근에 위치하는‘연꽃마을태평 아파트1단지’제5층 제603호(아파트)로서, 주위는 아파트단지, 공원, 각급 학교, 각종 근린 생활시설 등이 혼재하는 지역으로 제반 주위 환경은 보통입니다. 2) 교통상황 본건까지 차량의 진ㆍ출입이 가능하며, 북동측 "연성로"를 따라 대중교통수단을 이용할 수 있는 노선버스정류장이 소재합니다. 3) 건물의 구조 철근콘크리트벽식구조 박공지붕 지하1층/지상20층 건물 내 제102동 제5층 제603호로서, (사용승인일 : 2003.04.10.) 외벽 : 모르타르 위 페인트 마감 등. 창호 : 하이새시 창호 등입니다. 4) 이용상태 본건은 아파트(연꽃마을태평아파트1단지)로 이용중입니다. 5) 설비내역 위생설비(급배수, 급탕), 난방설비(도시가스보일러), 소방설비(옥내소화전), 지하주차장 등 이 되어있습니다. 6) 토지의 형상 및 이용상태 인접도로 및 인접토지와 등고평탄한 사다리형 토지로서, 아파트(연꽃마을태평아파트1단지) 건부지로 이용중입니다. 7) 인접 도로상태등 단지내 도로를 통하여 외곽 공도와 접합니다. 8) 토지이용계획 및 제한상태 토지기호(1) : 도시지역, 제3종일반주거지역, 지구단위계획구역, 소로1류(폭 10m-12m)(국지 도로)(접합), 소로2류(폭 8m-10m)(국지도로)(접합), 소로2류(폭 8m-10m)(특수도로)(접합), 중로3류(폭 12m-15m)(집산도로)(접합), 가축사육제한구역<가축분뇨의 관리 및 이용에 관한 법률>, 상대보호구역<교육환경 보호에 관한 법률>, 상대보호구역(2013-07-18)<교육환경 보호 에 관한 법률>, 절대보호구역(2013-07-19)<교육환경 보호에 관한 법률>, 과밀억제권역<수도 권정비계획법>. 9) 공부와의 차이 없습니다. 10) 기타참고사항(임대관례 및 기타) 임대관계 : 미상입니다. 기타사항 : 없습니다.

단지정보

연꽃마을태평1단지
시공사 태평주택 총 주차 대수 300대 (세대당1.54대)
사용승인 2003년 04월 10일(23년차) 동/세대 2동/194세대
관리실 031-404-6397 최고층 20층
면적 95㎡, 131㎡, 145A㎡, 147B㎡

주변 입주 예정

거리 단지명 공급년월 세대 수
※ 해당 자료는 한국부동산원 청약홈 자료에 근거하며, 인근 5km 이내의 물건을 기준으로 산정되었습니다.

등기

등기부현황

채권합계 390,100,000원(4건)
등기일자 권리종류 권리자/채권액 권리
2017-05-25
소유자 정선아 (소유자)
단독소유 -
2018-08-13
(을12)
근저당권설정 흥국생명보험주식회사 소멸
말소기준 등기 255,600,000원
2023-11-07
(을12-1)
근저당권변경 소멸
- 235,100,000원
2024-01-04
(을16)
근저당권설정 세븐파이낸셜대부주식회사 소멸
- 130,000,000원
2024-11-28
(을16-3)
근질권 웰컴저축은행주식회사 소멸
- 130,000,000원
2024-01-04
(을17)
근저당권설정 세븐파이낸셜대부주식회사 소멸
- 20,000,000원
2024-11-28
(을17-2)
근질권 웰컴저축은행주식회사 소멸
- 20,000,000원
2024-01-04
(을18)
전세권설정 세븐파이낸셜대부주식회사 소멸
- 5,000,000원
2024-05-23
(갑13)
임의경매개시결정
(2024타경58803)
세븐파이낸셜대부주식회사 소멸
경매기입 등기 91,426,469원
더보기 더보기
※ 신규 발급등기의 분석자료 반영에는 최대 1일까지 소요될수 있습니다.(등기분석,임차인분석,분석노트 등)

임차인

매각물건 명세서

구분 법원 사건번호 작성일자 매각명세서
1 안산지원 2024타경58803[1] 2025. 7. 15.
2 안산지원 2024타경58803[1] 2025. 4. 29.
3 안산지원 2024타경58803[1] 2024.12.10
4 안산지원 2024타경58803[1] 작성일자 미확인
구분 법원/
사건번호
작성일자 매각명세서
1 안산지원
2024타경58803[1]
2025. 7. 15.
2 안산지원
2024타경58803[1]
2025. 4. 29.
3 안산지원
2024타경58803[1]
2024.12.10
4 안산지원
2024타경58803[1]
작성일자 미확인

임차인(매각 명세서)

<비고>
세븐파이낸셜대부주식회사:세븐파이낸셜대부주식회사는 전세권자로서 전세권설정등기일은 2024.01.04.임

임차인현황

임차인 보증금/차임 전입/확정/배당 대항력
세븐파 이낸셜 대부주 식회사
(주거전세권자)
점유부분:
건물의 전부
보증:
5,000,000
차임:
-
전입: -
확정: -
배당: -
-

현황 조사서

조사일시

2024년06월04일14시45분

부동산의 현황

-

점유 조사

[목록1]1. 본건 부동산에 현황조사차 방문하였으나 폐문부재로 소유자 및 점유자 등을 만나지 못했고, 안내문을 부착하였으나 전화 등의 연락이 없어 점유자 확인 불능임.
2. 별지 전입세대확인서 및 주민등록표등본상 채무자(소유자)의 배우자가 세대주로 등재되어 있음.

조사일시

2024년06월04일14시45분

부동산의 현황

-

점유 조사

[목록1]1. 본건 부동산에 현황조사차 방문하였으나 폐문부재로 소유자 및 점유자 등을 만나지 못했고, 안내문을 부착하였으나 전화 등의 연락이 없어 점유자 확인 불능임.
2. 별지 전입세대확인서 및 주민등록표등본상 채무자(소유자)의 배우자가 세대주로 등재되어 있음.

미납관리비 조사내역

확인일자 미납금액 관리소번호 메모

※ 해당 정보는 참고용으로 제공되며 입찰 전 반드시 관리사무소를 통해 직접 확인하시기 바랍니다.

시세

전문가

그외

관할법원 관할법원 (입찰장소)

수원지방법원 안산지원

경매11계 : 031-481-1114

경기 안산시 단원구 고잔동 711 주소복사

Q&A Q&A

Q. 대법원경매가 무엇인가요?누구나 입찰에 참여할 수 있나요?

경매채무자(빌린 자)가 채무를 갚지 않았을 때 채권자(빌려준 자)의 신청으로 대법원이 채무자의 재산을 대신 매각하는 과정을 말합니다.

법원은 감정인에게 자산을 평가하게 한 후, 최저가를 정하여 그 금액 이상으로 입찰한 입찰자 중 최고가 매수인을 결정합니다.

대법원의 주관하에 국민 모두가 참여할 수 있습니다.

Q. 경매 입찰은 어떻게 하나요?누구나 입찰에 참여할 수 있나요?

1. 입찰하시고자 하는 경매물건을 정하신 후, 입찰하시고자 하는 입찰가를 최저가 이상으로 정합니다.

2. 해당 물건의 매각기일에 직접 관할법원에 방문하셔서 법원내에 비치된 입찰서를 작성하신 후 입찰하시면 됩니다.

TIP! 법원에 가실 때에는 입찰보증금(최저가의 10~30%)과 신분증을 지참하여 방문하세요.

Q. 용어가 너무 어려워서 내용을 이해하기 어려워요누구나 입찰에 참여할 수 있나요?

매각기일
매각기일은 경매 법원이 부동산에 대하여 매각 입찰을 진행하는 날을 말합니다.

유찰
매각 기일에 매수하고자 하는 사람이 없어 매각되지 않아 무효가 되는 것을 유찰이라고 합니다.

최저 매각 가격
최초 경매를 진행할때 감정인이 평가한 가격을 기준으로 책정한 금액이며 입찰자는 최저 매각 가격과 동일하거나 이상의 금액으로 입찰해야 합니다. 매각 기일에 있어 입찰자가 없어 유찰되면 통상 20~30% 저감된 금액이 다음 최저 매각 가격이 됩니다.

매수 보증금
경매 물건을 매수하고자 하는사람은 최저 매각 가격의 10분의 1(다르게 정해질 수 있음)에 해당하는 보증금액을 입찰표와 함께 집행관에게 제출하는 방법으로 제공합니다. 매각 절차가 종결된 후 집행관은 최고가 매수신고인이나 차순위매수신고인 이외의 매수신청인에게는 즉시 매수 보증금을 반환해 줍니다.

더 많은 내용을 알고 싶다면 경매마당 학습하기 코너에 준비된 용어설명을 이용해보세요.

경매정보는 법원자료와 일치하도록 하였으나 권리사항변동, 입력착오 등의 원인으로 사실과 다를 수 있습니다. 이용약관에 의거 면책조건으로 제공됨을 알리며, 경매입찰시 반드시 관련 공부를 재확인하시기 바랍니다.

PC버전으로 보기
NEW
상태가 변경되면
알려드려요!