알림

알림 내역

알림 신청내역/취소

대법원
물건내역
사건내역
기일내역
송달내역
현황조사
지도
사진보기
문서
매각기일공고문
매각물건명세서
감정평가서 M
등기부등본
전입세대열람원 M
건축물대장 M
분석
예상배당표 M
수익률분석 M
입찰가분석 M
조회수분석 M
인근지역통계 M
사이트
대법원
국토부 실거래가
토지이음
아실
네이버 단지정보
네이버 매물정보
호갱노노
부동산플래닛
로고 수원지방법원 안산지원 [경매10계] 2024타경61793
경기도 시흥시 산현마을길 25-5

경기 시흥시 산현동 508-2

주소복사
경매구분 강제경매
용도 사무실
토지 295.2㎡(89.3평)
건물 493.15㎡(149.18평)
감정가 2,400,360,400원
최저가 1,176,176,000원
보증금 117,617,600원 (10%)
청구액 201,493,698원
개시결정 2024년 07월 05일
감정일 2024년 07월 19일
배당종기 2024년 09월 24일
매각일 2025년 08월 19일
2024타경61793
2024타경61793
2024타경61793
2024타경61793
2024타경61793
2024타경61793
2024타경61793
2024타경61793
2024타경61793
2024타경61793
2024타경61793
2024타경61793
2024타경61793
2024타경61793
2024타경61793
2024타경61793
2024타경61793
감정가
24억36만400원
2687만9736원/평 (토지)
낙찰가 37%
15억377만원
배당종결 2025년 08월 19일
유찰 2회임차권등기선순위임차인
유찰 2회임차권등기선순위임차인
경매구분 강제경매
용도 사무실
토지 295.2㎡(89.3평)
건물 493.15㎡(149.18평)
감정가 2,400,360,400원
최저가 1,176,176,000원
보증금 117,617,600원 (10%)
청구액 201,493,698원
개시결정 2024년 07월 05일
감정일 2024년 07월 19일
배당종기 2024년 09월 24일
매각일 2025년 08월 19일
배당종결 2025년 08월 19일

당사자 내역

채무자겸소유자 양OO
채권자 한OO
근저당권부질권자 느OOOOOOOOOO
임차인 설OO
임차인 박OO
임차인 장OO
근저당권자 엠OOOOOOOOOOOOOOOOOOOOOOOOO
교부권자 동OOOO
교부권자 시OO
임차권자 한OO
임차권자 박OO
교부권자 시OOOO
교부권자 김OOOO

기일 내역

2025.09.29(16:00)
납부
2025.08.26(14:00)
최고가매각허가결정
2025.08.19(10:30)
15억377만원 매각
11억7617만6000원 최저가
2025.07.01(10:30)
16억8025만2000원 유찰
2025.05.27(10:30)
24억36만400원 유찰

매각공고

물건 비고(공고문)

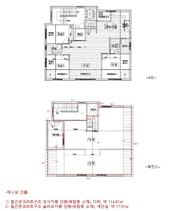
일괄매각. 제시외 건물 포함

임차인(매각 명세서)

<비고>
한창훈:임차인은 경매신청채권자이고, 배당요구일자는 경매신청일임

인수되는 권리/가처분(매각 명세서)

2023.5.8.자 제33297호 주택임차권등기, 2024.5.22.자 제33303호 주택임차권등기 있음. 배당에서 보증금이 전액 변제되지 아니
하면 잔액을 매수인이 인수함.

물건 비고(매각 명세서)

일괄매각. 제시외 건물 포함

현황 조사(현황 조사서)

본건 부동산은 4층과 옥상으로 이루어진 건물이며 1층에는 101호 풀꽃초밥 음식점과 폐가

점유 조사(현황 조사서)

[목록1]1. 본건 부동산 301호에 현황조사차 방문하여 임차인 설선화를 만나 면담한바, 본인이 본건 부동산을 점유 사용하고 있으며 다른 임차인은 없다고 함.(안내문 교부), 전입세대확인서 및 주민등록표등본상 설선화가 세대주로 등재되어 있음.
2. 본건 부동산 1층 101호 `풀꽃초밥`음식점에 현황조사차 방문하여 임차인 장인규의 직원 윤세영을 만나 면담한바, 장인규가 본건 부동산을 점유 사용하고 있으며 다른 임차인은 없다고 함.(안내문 교부), 상가건물임대차현황서상 장인규 등재되어 있음.
3. 본건 부동산 102,201,202,302,401호에 방문하였으나, 소유자 및 점유자를 만나지 못하여 점유자 확인할 수 없음(안내문 부착)
4. 별지 전입세대확인서 및 주민등록표등본상 채무자(소유자) 아닌 `박서윤`이 세대주로 등재되어 있어 일응 임차인으로 보고함.
[목록2]1. 본건 부동산 301호에 현황조사차 방문하여 임차인 설선화를 만나 면담한바, 본인이 본건 부동산을 점유 사용하고 있으며 다른 임차인은 없다고 함.(안내문 교부), 전입세대확인서 및 주민등록표등본상 설선화가 세대주로 등재되어 있음.
2. 본건 부동산 1층 101호 `풀꽃초밥`음식점에 현황조사차 방문하여 임차인 장인규의 직원 윤세영을 만나 면담한바, 장인규가 본건 부동산을 점유 사용하고 있으며 다른 임차인은 없다고 함.(안내문 교부), 상가건물임대차현황서상 장인규 등재되어 있음.
3. 본건 부동산 102,201,202,302,401호에 방문하였으나, 소유자 및 점유자를 만나지 못하여 점유자 확인할 수 없음(안내문 부착)
4. 별지 전입세대확인서 및 주민등록표등본상 채무자(소유자) 아닌 `박서윤`이 세대주로 등재되어 있어 일응 임차인으로 보고함.

매각결과+

매각일자 / 결과 응찰자수 최고가 금액/응찰자명 차순위 금액

가장 빠른 경매 정보 플랫폼 경매마당
남들보다 먼저 정보를 선점하세요

간단한 로그인 후 바로 이용 가능합니다

bolt 대법원 보다 빠른 물건 정보
verified 가장 많은 경매 물건 제공
trending_up 월 5회 등기부 무료 열람

현황정보

매각목록

부동산 현황

1) 위치 및 주위환경 대상물건은 경기도 시흥시 산현동 소재 "산현초등학교" 북측 인근에 위치하며, 주위는 공동주택, 단독주택, 다가구주택, 주상용 및 근린생활시설 등이 혼재하는 지역으로 제반 주위환경은 보통임. 2) 교통상황 대상물건까지 일반 차량의 진출입이 가능하며, 인근에 버스정류장이 소재하는 등 제반 교통상황은 보통임. 3) 형태 및 이용상태 인접필지 및 인접도로 대비 대체로 등고평탄한 가장형 토지로서 주상용 건부지로 이용중임. 4) 인접 도로상태 동측으로 노폭 약 10미터 내외의 포장도로에 접함. 5) 토지이용계획 및 제한상태 도시지역, 제1종일반주거지역(2016-08-16), 지구단위계획구역, 소로2류(폭 8m-10m)(2016-08 -16)(접합), 가축사육제한구역<가축분뇨의 관리 및 이용에 관한 법률>, 공공주택지구<공공 주택 특별법>, 상대보호구역(2013-07-18)<교육환경 보호에 관한 법률>, 과밀억제권역<수도 권정비계획법> 임. 6) 제시목록 외의 물건 제시외 물건 ㉠, ㉡이 소재함. 7) 공부와의 차이 - 8) 기타참고사항(임대관례 및 기타) 임대미상임. 1) 건물의 구조 철근콘크리트구조 (철근)콘크리트지붕 4층 건물로서, 사용승인일자는 2018.07.04.일이며, 외벽 : 돌붙임 등 마감. 내벽 : 1층은 내부인테리어, 몰탈위 페인팅 등 마감이며, 2-4층은 내부 미상임. 창호 : 페어글라스창호, 알루미늄 및 플라스탁창호 등임. 2) 이용상태 주상용으로 이용중임. -1층 : 근린생활시설(2개호)로 이용중임. -2층 : 주택(2가구)으로 이용중임. -3층 : 주택(2가구)으로 이용중임. -4층 : 주택(1가구)으로 이용중임. 3) 설비내역 기본적인 위생 및 급배수설비, 난방설비 등이 되어 있음. 4) 부합물 및 종물 - 5) 공부와의 차이 - 6) 기타참고사항(임대관례 및 기타) -임대미상임. -이해관계인의 부재 등으로 인하여 건축물현황도를 기준으로 내부도시 하였는 바, 실제와 상이할수 있는 바 경매진행시 참고하시기 바람.

주변 입주 예정

거리 단지명 공급년월 세대 수
※ 해당 자료는 한국부동산원 청약홈 자료에 근거하며, 인근 5km 이내의 물건을 기준으로 산정되었습니다.

등기

등기부현황

채권합계 1,284,000,000원(2건)
등기일자 권리종류 권리자/채권액 권리
2022-04-29
소유자 양OOOOOOOO OO
단독소유 -
2022-04-29
(을3)
근저당권설정 영OOOOOOOOO OO
말소기준 등기 1,080,000,000원
2024-11-08
(을3-1)
근저당권이전 엠OOOOOOOOO OO
- -
2024-11-08
(을3-2)
근질권 느OOOOOOOOOO OO
- 1,080,000,000원
2022-08-05
(을5)
근저당권설정 영OOOOOOOOO OO
- 204,000,000원
2024-11-08
(을5-1)
근저당권이전 엠OOOOOOOOO OO
- -
2024-11-08
(을5-2)
근질권 느OOOOOOOOOO OO
- 204,000,000원
2023-05-08
(을6)
임차권설정 한OO OO
- 190,000,000원
2024-05-22
(을7)
임차권설정 박OO OO
- 200,000,000원
2024-07-05
(갑3)
강제경매개시결정
(2024타경61793)
한OO OO
경매기입 등기 201,493,698원
2025-02-10
(갑4)
임의경매개시결정
(2025타경51643)
엠OOOOOOOOO OO
경매기입 등기
더보기
※ 신규 발급등기의 분석자료 반영에는 최대 1일까지 소요될수 있습니다.(등기분석,임차인분석,분석노트 등)

임차인

매각물건 명세서

구분 법원 사건번호 작성일자 매각명세서
1 안산지원 2024타경61793[1] 2025. 4. 28.
구분 법원/
사건번호
작성일자 매각명세서
1 안산지원
2024타경61793[1]
2025. 4. 28.

임차인(매각 명세서)

<비고>
한창훈:임차인은 경매신청채권자이고, 배당요구일자는 경매신청일임

인수되는 권리/가처분(매각 명세서)

2023.5.8.자 제33297호 주택임차권등기, 2024.5.22.자 제33303호 주택임차권등기 있음. 배당에서 보증금이 전액 변제되지 아니
하면 잔액을 매수인이 인수함.

물건 비고(매각 명세서)

일괄매각. 제시외 건물 포함

임차인현황

임차인 보증금/차임 전입/확정/배당 대항력
[현황조사]
박OO
(주거임차인)
점유부분:
101호
보증:
미상
차임:
미상
전입: 2022-06-22
확정: 미상
배당: -
멤버십
박OO
(임차권자)
점유부분:
302호( 59m2)
보증:
200,000,000
차임:
-
사업: 2022-03-11
확정: 2022-03-11
배당: -
멤버십
설OO
(주거임차인 / 소액임차인)
점유부분:
301호 전부
보증:
30,000,000
차임:
1,100,000
전입: 2022-09-29
확정: 2022-09-29
배당: 2024.8.20.
멤버십
장OO
(점포임차인)
점유부분:
1층 중 일부(10 1호, 65m2)
보증:
30,000,000
차임:
1,800,000
사업: 2023-07-17
확정: 2023-07-18
배당: 2024.8.30.
멤버십
한OO
(임차권자)
점유부분:
201호 전부
보증:
190,000,000
차임:
-
사업: 2021-02-26
확정: 2021-02-03
배당: 2024.6.28.
멤버십

현황 조사서

조사일시

2024년07월15일12시33분

부동산의 현황

본건 부동산은 4층과 옥상으로 이루어진 건물이며 1층에는 101호 풀꽃초밥 음식점과 폐가

점유 조사

[목록1]1. 본건 부동산 301호에 현황조사차 방문하여 임차인 설선화를 만나 면담한바, 본인이 본건 부동산을 점유 사용하고 있으며 다른 임차인은 없다고 함.(안내문 교부), 전입세대확인서 및 주민등록표등본상 설선화가 세대주로 등재되어 있음.
2. 본건 부동산 1층 101호 `풀꽃초밥`음식점에 현황조사차 방문하여 임차인 장인규의 직원 윤세영을 만나 면담한바, 장인규가 본건 부동산을 점유 사용하고 있으며 다른 임차인은 없다고 함.(안내문 교부), 상가건물임대차현황서상 장인규 등재되어 있음.
3. 본건 부동산 102,201,202,302,401호에 방문하였으나, 소유자 및 점유자를 만나지 못하여 점유자 확인할 수 없음(안내문 부착)
4. 별지 전입세대확인서 및 주민등록표등본상 채무자(소유자) 아닌 `박서윤`이 세대주로 등재되어 있어 일응 임차인으로 보고함.
[목록2]1. 본건 부동산 301호에 현황조사차 방문하여 임차인 설선화를 만나 면담한바, 본인이 본건 부동산을 점유 사용하고 있으며 다른 임차인은 없다고 함.(안내문 교부), 전입세대확인서 및 주민등록표등본상 설선화가 세대주로 등재되어 있음.
2. 본건 부동산 1층 101호 `풀꽃초밥`음식점에 현황조사차 방문하여 임차인 장인규의 직원 윤세영을 만나 면담한바, 장인규가 본건 부동산을 점유 사용하고 있으며 다른 임차인은 없다고 함.(안내문 교부), 상가건물임대차현황서상 장인규 등재되어 있음.
3. 본건 부동산 102,201,202,302,401호에 방문하였으나, 소유자 및 점유자를 만나지 못하여 점유자 확인할 수 없음(안내문 부착)
4. 별지 전입세대확인서 및 주민등록표등본상 채무자(소유자) 아닌 `박서윤`이 세대주로 등재되어 있어 일응 임차인으로 보고함.

1
소재지 경기도 시흥시 산현마을길 25-5
점유인 설OO(임차인)
점유부분 301호(주거)
점유기간 미상
보증금/차임 미상/미상
전입/확정일자 2022.09.29/미상
2
소재지 경기도 시흥시 산현마을길 25-5
점유인 박OO(임차인)
점유부분 101호(주거)
점유기간 미상
보증금/차임 미상/미상
전입/확정일자 2022.06.22/미상
3
소재지 경기도 시흥시 산현마을길 25-5
점유인 장OO(임차인)
점유부분 101호(점포)
점유기간 2023.07.17-2025.07.16
보증금/차임 30,000,000/1,800,000
전입/확정일자 2023.07.17/2023.07.18

미납관리비 조사내역

확인일자 미납금액 관리소번호 메모

※ 해당 정보는 참고용으로 제공되며 입찰 전 반드시 관리사무소를 통해 직접 확인하시기 바랍니다.

시세분석

인근 낙찰사례

기타

전문가

관할법원 (입찰장소)

수원지방법원 안산지원

경매10계 : 031-481-1114

경기 안산시 단원구 고잔동 711 주소복사

Q&A

Q. 대법원경매가 무엇인가요?누구나 입찰에 참여할 수 있나요?

경매채무자(빌린 자)가 채무를 갚지 않았을 때 채권자(빌려준 자)의 신청으로 대법원이 채무자의 재산을 대신 매각하는 과정을 말합니다.

법원은 감정인에게 자산을 평가하게 한 후, 최저가를 정하여 그 금액 이상으로 입찰한 입찰자 중 최고가 매수인을 결정합니다.

대법원의 주관하에 국민 모두가 참여할 수 있습니다.

Q. 경매 입찰은 어떻게 하나요?누구나 입찰에 참여할 수 있나요?

1. 입찰하시고자 하는 경매물건을 정하신 후, 입찰하시고자 하는 입찰가를 최저가 이상으로 정합니다.

2. 해당 물건의 매각기일에 직접 관할법원에 방문하셔서 법원내에 비치된 입찰서를 작성하신 후 입찰하시면 됩니다.

TIP! 법원에 가실 때에는 입찰보증금(최저가의 10~30%)과 신분증을 지참하여 방문하세요.

Q. 용어가 너무 어려워서 내용을 이해하기 어려워요누구나 입찰에 참여할 수 있나요?

매각기일
매각기일은 경매 법원이 부동산에 대하여 매각 입찰을 진행하는 날을 말합니다.

유찰
매각 기일에 매수하고자 하는 사람이 없어 매각되지 않아 무효가 되는 것을 유찰이라고 합니다.

최저 매각 가격
최초 경매를 진행할때 감정인이 평가한 가격을 기준으로 책정한 금액이며 입찰자는 최저 매각 가격과 동일하거나 이상의 금액으로 입찰해야 합니다. 매각 기일에 있어 입찰자가 없어 유찰되면 통상 20~30% 저감된 금액이 다음 최저 매각 가격이 됩니다.

매수 보증금
경매 물건을 매수하고자 하는사람은 최저 매각 가격의 10분의 1(다르게 정해질 수 있음)에 해당하는 보증금액을 입찰표와 함께 집행관에게 제출하는 방법으로 제공합니다. 매각 절차가 종결된 후 집행관은 최고가 매수신고인이나 차순위매수신고인 이외의 매수신청인에게는 즉시 매수 보증금을 반환해 줍니다.

더 많은 내용을 알고 싶다면 경매마당 학습하기 코너에 준비된 용어설명을 이용해보세요.

경매정보는 법원자료와 일치하도록 하였으나 권리사항변동, 입력착오 등의 원인으로 사실과 다를 수 있습니다. 이용약관에 의거 면책조건으로 제공됨을 알리며, 경매입찰시 반드시 관련 공부를 재확인하시기 바랍니다.

PC버전으로 보기