알림

알림 내역

알림 신청내역/취소

로고 수원지방법원 안산지원 [경매4계] 2024타경64686
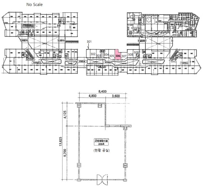
경기도 시흥시 거북섬중앙로 1, 2동 3층306호 (정왕동,시화엠티브이보니타가)

경기 시흥시 정왕동 2709

주소복사
경매구분 임의경매
용도 상가
토지 72.75㎡(22평)
건물 101.41㎡(30.7평)
감정가 815,000,000원
최저가 279,545,000원
보증금 27,960,000원 (10%)
청구액 578,693,560원
개시결정 2024년 08월 29일
감정일 2024년 09월 13일
배당종기 2024년 11월 18일
매각일 2025년 07월 10일
2024타경64686
2024타경64686
2024타경64686
2024타경64686
2024타경64686
2024타경64686
2024타경64686
2024타경64686
2024타경64686
2024타경64686
2024타경64686
2024타경64686
2024타경64686
2024타경64686
2024타경64686
2024타경64686
감정가
8억1500만원
최저가 66%
2억7954만5000원
취하 2025년 07월 10일
유찰 3회
유찰 3회
경매구분 임의경매
용도 상가
토지 72.75㎡(22평)
건물 101.41㎡(30.7평)
감정가 815,000,000원
최저가 279,545,000원
보증금 27,960,000원 (10%)
청구액 578,693,560원
개시결정 2024년 08월 29일
감정일 2024년 09월 13일
배당종기 2024년 11월 18일
매각일 2025년 07월 10일
취하 2025년 07월 10일

당사자 내역

채무자겸소유자 한OO
채권자 한OOOOOOOOO
근저당권자 한OOOOOOOOO
가압류권자 주OOOOOOO
가압류권자 한OOOOOOO
교부권자 시OO

기일 내역

취하/취소
2025.07.10(10:30)
2억7954만5000원 진행
2025.06.05(10:30)
3억9935만원 유찰
2025.04.24(10:30)
5억7050만원 유찰
2025.03.13(10:30)
8억1500만원 유찰

취하/취소(2025년07월09일)

2025.7.7. 부동산임의경매 취하/취소

물건 비고(공고문)

대지권의 목적인 각 토지에 별도등기(‘공유수면 관리 및 매립에 관한 법률’에 따른 금지사항 부기등기) 존재

물건 비고(매각 명세서)

대지권의 목적인 각 토지에 별도등기(‘공유수면 관리 및 매립에 관한 법률’에 따른 금지사항 부기등기) 존재

현황 조사(현황 조사서)

본건 부동

점유 조사(현황 조사서)

[목록1]1. 본건 부동산에 현황조사차 방문하였으나 폐문으로 소유자 및 점유자 등을 만나지 못하여 점유관계를 확인할 수 없었음.(안내문 부착)
2. 별지 전입세대확인서, 상가건물임대차 현황서 및 외국인체류확인서상 각 등재자 없음.

매각결과+

매각일자 / 결과 응찰자수 최고가 금액/응찰자명 차순위 금액
부동산
등기
임차인
그 외

부동산

매각목록

부동산 현황

1) 위치 및 주위환경 본건은 경기도 시흥시 정왕동 소재 "거북섬" 북동측 인근에 위치하며 주위는 오피텔, 지식산 업센터, 대형 쇼핑센터, 위락시설, 아파트단지 등이 혼재하는 지역임. 2) 교통상황 본건은 차량 접근이 용이하고, 인근에 노선 버스 정류장이 소재하여 대중교통사정은 무난함. 3) 건물의 구조 일반철골조 (철근)콘크리트지붕 3층 중 3층 306호로서 외벽 : 시멘몰탈위 페인팅 및 벽돌 치장쌓기 등 마감. 내벽 : 석고 판넬 마감. 창호 : 샷시 이중 창호임. 4) 이용상태 공부상 제2종근링생활시설(일반음식점)이나 현황은 공실임. 5) 설비내역 위생 및 급ㆍ배수설비, 소화설비, 승강기설비, 시스템 냉.난방설비 등이 되어 있음. 6) 토지의 형상 및 이용상태 4필 장방형의 토지로서 근린생활시설 건부지로 이용중임. 7) 인접 도로상태등 본건은 주위로 대로2류, 중로1류, 중로2류, 소로1류 와 접함. 8) 토지이용계획 및 제한상태 *기호1 : 일반상업지역, 지구단위계획구역, 대로2류(폭 30m-35m)(2020-07-14)(대로 엠티브이 2-18)(접합), 중로1류(폭 20m-25m)(중로 엠티브이1-60)(접합), 중로2류(폭 15m-20m)(중로 엠티브이2-26)(접합) 가축사육제한구역<가축분뇨의 관리 및 이용에 관한 법률>, 국가산업단 지<산업입지 및 개발에 관한 법률>, 특수지역(반월특수지역)<산업입지 및 개발에 관한 법 률>, 성장관리권역<수도권정비계획법>. *기호2 : 일반상업지역, 지구단위계획구역, 대로2류(폭 30m-35m)(2020-07-14)(대로 엠티브이 2-18)(접합), 소로1류(폭 10m-12m)(2020-07-14)(소로 엠티브이1-4)(접합), 중로1류(폭 20m -25m)(중로 엠티브이1-71)(접합), 중로2류(폭 15m-20m)(중로 엠티브이2-26)(접합), 가축사 육제한구역<가축분뇨의 관리 및 이용에 관한 법률>, 국가산업단지<산업입지 및 개발에 관 한 법률>, 특수지역(반월특수지역)<산업입지 및 개발에 관한 법률>, 성장관리권역<수도권정 비계획법>. *기호3 : 일반상업지역, 지구단위계획구역, 소로1류(폭 10m-12m)(2020-07-14)(소로 엠티브이 1-4)(접합), 중로1류(폭 20m-25m)(중로 엠티브이1-61)(접합), 중로1류(폭 20m-25m)(중로 엠 티브이1-71)(접합), 중로2류(폭 15m-20m)(2016-08-19)(중로 엠티브이2-27)(접합), 가축사육 제한구역<가축분뇨의 관리 및 이용에 관한 법률>, 국가산업단지<산업입지 및 개발에 관한 법률>, 특수지역(반월특수지역)<산업입지 및 개발에 관한 법률>, 성장관리권역<수도권정비 계획법>. *기호4 : 일반상업지역, 지구단위계획구역, 중로1류(폭 20m-25m)(중로 엠티브이1-60)(접합), 중로1류(폭 20m-25m)(중로 엠티브이1-61)(접합), 중로2류(폭 15m-20m)(2016-08-19)(중로 엠 티브이2-27)(접합) 가축사육제한구역<가축분뇨의 관리 및 이용에 관한 법률>, 국가산업단지 <산업입지 및 개발에 관한 법률>, 특수지역(반월특수지역)<산업입지 및 개발에 관한 법률> 성장관리권역<수도권정비계획법>. 9) 공부와의 차이 없음. 10) 기타참고사항(임대관례 및 기타) 본건 임대관계는 미상임.

감정평가

주변 입주 예정

거리 단지명 공급년월 세대 수
※ 해당 자료는 한국부동산원 청약홈 자료에 근거하며, 인근 5km 이내의 물건을 기준으로 산정되었습니다.

등기

등기부현황

채권합계 1,125,340,000원(3건)
등기일자 권리종류 권리자/채권액 권리
2023-06-08
소유자 한상범 (소유자)
단독소유 -
2023-06-08
(을1)
근저당권설정 한국양봉농업협동조합 소멸
말소기준 등기 660,000,000원
2024-07-02
(갑3)
가압류 주식회사신한은행 소멸
- 141000000원
(금375000000원 중금141000000원 일부금)
2024-08-27
(갑4)
가압류 한국무역보험공사 소멸
- 90,343,816원
2024-08-29
(갑5)
임의경매개시결정
(2024타경64686)
한국양봉농업협동조합 소멸
경매기입 등기 578,693,560원
더보기 더보기
※ 신규 발급등기의 분석자료 반영에는 최대 1일까지 소요될수 있습니다.(등기분석,임차인분석,분석노트 등)

임차인

매각물건 명세서

구분 법원 사건번호 작성일자 매각명세서
1 안산지원 2024타경64686[1] 2025. 2. 12.
구분 법원/
사건번호
작성일자 매각명세서
1 안산지원
2024타경64686[1]
2025. 2. 12.

물건 비고(매각 명세서)

대지권의 목적인 각 토지에 별도등기(‘공유수면 관리 및 매립에 관한 법률’에 따른 금지사항 부기등기) 존재

임차인현황

임차인 보증금/차임 전입/확정/배당 대항력
매각물건명세서상 임차인이 존재하지 않습니다.

현황 조사서

조사일시

2024년09월05일15시48분

부동산의 현황

본건 부동

점유 조사

[목록1]1. 본건 부동산에 현황조사차 방문하였으나 폐문으로 소유자 및 점유자 등을 만나지 못하여 점유관계를 확인할 수 없었음.(안내문 부착)
2. 별지 전입세대확인서, 상가건물임대차 현황서 및 외국인체류확인서상 각 등재자 없음.

미납관리비 조사내역

확인일자 미납금액 관리소번호 메모

※ 해당 정보는 참고용으로 제공되며 입찰 전 반드시 관리사무소를 통해 직접 확인하시기 바랍니다.

시세

전문가

그외

관할법원 관할법원 (입찰장소)

수원지방법원 안산지원

경매4계 : 031-481-1114

경기 안산시 단원구 고잔동 711 주소복사

Q&A Q&A

Q. 대법원경매가 무엇인가요?누구나 입찰에 참여할 수 있나요?

경매채무자(빌린 자)가 채무를 갚지 않았을 때 채권자(빌려준 자)의 신청으로 대법원이 채무자의 재산을 대신 매각하는 과정을 말합니다.

법원은 감정인에게 자산을 평가하게 한 후, 최저가를 정하여 그 금액 이상으로 입찰한 입찰자 중 최고가 매수인을 결정합니다.

대법원의 주관하에 국민 모두가 참여할 수 있습니다.

Q. 경매 입찰은 어떻게 하나요?누구나 입찰에 참여할 수 있나요?

1. 입찰하시고자 하는 경매물건을 정하신 후, 입찰하시고자 하는 입찰가를 최저가 이상으로 정합니다.

2. 해당 물건의 매각기일에 직접 관할법원에 방문하셔서 법원내에 비치된 입찰서를 작성하신 후 입찰하시면 됩니다.

TIP! 법원에 가실 때에는 입찰보증금(최저가의 10~30%)과 신분증을 지참하여 방문하세요.

Q. 용어가 너무 어려워서 내용을 이해하기 어려워요누구나 입찰에 참여할 수 있나요?

매각기일
매각기일은 경매 법원이 부동산에 대하여 매각 입찰을 진행하는 날을 말합니다.

유찰
매각 기일에 매수하고자 하는 사람이 없어 매각되지 않아 무효가 되는 것을 유찰이라고 합니다.

최저 매각 가격
최초 경매를 진행할때 감정인이 평가한 가격을 기준으로 책정한 금액이며 입찰자는 최저 매각 가격과 동일하거나 이상의 금액으로 입찰해야 합니다. 매각 기일에 있어 입찰자가 없어 유찰되면 통상 20~30% 저감된 금액이 다음 최저 매각 가격이 됩니다.

매수 보증금
경매 물건을 매수하고자 하는사람은 최저 매각 가격의 10분의 1(다르게 정해질 수 있음)에 해당하는 보증금액을 입찰표와 함께 집행관에게 제출하는 방법으로 제공합니다. 매각 절차가 종결된 후 집행관은 최고가 매수신고인이나 차순위매수신고인 이외의 매수신청인에게는 즉시 매수 보증금을 반환해 줍니다.

더 많은 내용을 알고 싶다면 경매마당 학습하기 코너에 준비된 용어설명을 이용해보세요.

경매정보는 법원자료와 일치하도록 하였으나 권리사항변동, 입력착오 등의 원인으로 사실과 다를 수 있습니다. 이용약관에 의거 면책조건으로 제공됨을 알리며, 경매입찰시 반드시 관련 공부를 재확인하시기 바랍니다.

PC버전으로 보기