알림

알림 내역

알림 신청내역/취소

로고 수원지방법원 안산지원 [경매2계] 2024타경66385[1]
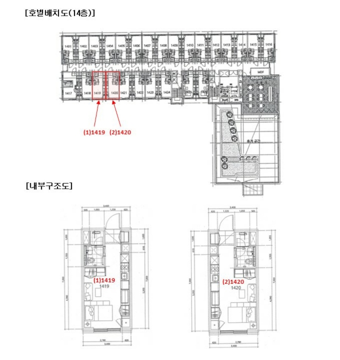
경기도 안산시 단원구 시화호수로841번길 28-8, 14층1419호 (성곡동,더하이어티)

경기 안산시 단원구 성곡동 849

주소복사
경매구분 임의경매
용도 사무실
토지 7.46㎡(2.3평)
건물 20.78㎡(6.3평)
감정가 137,000,000원
최저가 32,894,000원
보증금 3,289,400원 (10%)
청구액 207,188,013원
개시결정 2024년 09월 09일
감정일 2024년 09월 25일
배당종기 2024년 11월 14일
매각일 2026년 01월 15일
2024타경66385[1]
2024타경66385[1]
2024타경66385[1]
2024타경66385[1]
2024타경66385[1]
2024타경66385[1]
2024타경66385[1]
2024타경66385[1]
2024타경66385[1]
2024타경66385[1]
2024타경66385[1]
2024타경66385[1]
2024타경66385[1]
감정가
1억3700만원
최저가 76%
3289만4000원
공고 2026년 01월 15일 입찰 D-56일
유찰 4회
유찰 4회
경매구분 임의경매
용도 사무실
토지 7.46㎡(2.3평)
건물 20.78㎡(6.3평)
감정가 137,000,000원
최저가 32,894,000원
보증금 3,289,400원 (10%)
청구액 207,188,013원
개시결정 2024년 09월 09일
감정일 2024년 09월 25일
배당종기 2024년 11월 14일
매각일 2026년 01월 15일
공고 2026년 01월 15일 입찰 D-56일

당사자 내역

채무자겸소유자 양OO
채권자 중OOOOO
근저당권자 중OOOOO
압류권자 국OOOOOOOOOOO
교부권자 안OOOOO
교부권자 국OOOOOOOOOOO
배당요구권자 신OOOOOOO

기일 내역

2026.01.15(10:30)
3289만4000원 진행
2025.09.18(10:30)
4699만1000원 유찰
2025.08.14(10:30)
6713만원 유찰
2025.06.26(10:30)
9590만원 유찰
2025.05.22(10:30)
1억3700만원 유찰

현황 조사(현황 조사서)

- 목록 1.2.에 대하여 폐문부재로 소유자나 점유자를 만나지 못하여 각 목적물 출입문에 안내문을 부착함.

점유 조사(현황 조사서)

[목록1]- 목적물에 대하여 현황조사차 방문하였으나 폐문부재로 소유자나 점유자를 만나지 못하였음.

- 본건 출입문에 안내문을 부착하여 두었으나 점유관계를 확인할 수 없음.

- 전입세대확인서 및 외국인체류확인서, 상가건물임대차 현황서에 등재된 세대주나 전입자가 없음.

매각결과+

매각일자 / 결과 응찰자수 최고가 금액/응찰자명 차순위 금액

동일사건 물건목록

번호 주소 상태/입찰일 물건내역
1
본건
경기도 안산시 단원구 시화호수로841번길 28-8, 14층1419호 (성곡동,더하이어티) 공고
2026.01.15
-
2 경기도 안산시 단원구 시화호수로841번길 28-8, 14층1420호 (성곡동,더하이어티) 납부
2025.09.18
바로가기
부동산
등기
임차인
그 외

부동산

매각목록

부동산 현황

1) 위치 및 주위환경 본건은 경기도 안산시 단원구 성곡동 소재 "온누리운동장" 남동측 인근에 위치하며, 주위는 오피스텔, 근린생활시설, 공장, 물류센터 등이 혼재하는 지역으로 주위환경은 보통임. 2) 교통상황 본건이 소재하는 건물까지 차량출입 가능하며, 인근에 노선버스정류장이 소재하는 등 대중교통상황은 보통임. 3) 건물의 구조 철근콘크리트구조 평지붕 14층 건물 내 14층 1419호, 1420호로서, 외벽 : 석재 붙임 및 치장벽돌 마감 등. 내벽 : 벽지 및 타일 마감 등. 창호 : 샷시창호 등임. 4) 이용상태 각 오피스텔로 이용중임.(후첨 건물개황도 참조) 5) 설비내역 위생 및 급배수설비, 도시가스 및 개별난방, 승강기, 소방관련설비, 주차장 등 되어있음. 6) 토지의 형상 및 이용상태 5필지 일단의 사다리형 평지로서, 업무시설(오피스텔) 및 근린생활시설 건부지로 이용중임. 7) 인접 도로상태등 본건 서측으로 노폭 약 20m 내외, 북측으로 노폭 약 12m 내외의 포장도로에 각각 접함. 8) 토지이용계획 및 제한상태 - 성곡동 849 : 도시지역, 준공업지역, 중로1류(폭 20m-25m)(접합), 중로3류(폭 12m-15m)(접합), 국가산업단지(시화국가산업단지)<산업입지 및 개발에 관한 법률>, 산업단지기타(반월특수지역)<산업입지 및 개발에 관한 법률>, 지원시설구역<산업집적활성화 및 공장설립에 관한 법률>, 성장관리권역<수도권정비계획법>, 중점경관관리구역. - 성곡동 849-1, 849-12, 849-14 : 도시지역, 준공업지역, 중로3류(폭 12m-15m)(접합), 국가산업단지(시화국가산업단지)<산업입지 및 개발에 관한 법률>, 산업단지기타(반월특수지역)<산업입지 및 개발에 관한 법률>, 지원시설구역<산업집적활성화 및 공장설립에 관한 법률>, 성장관리권역<수도권정비계획법>, 중점경관관리구역. - 성곡동 849-11 : 도시지역, 준공업지역, 중로1류(폭 20m-25m)(접합), 국가산업단지(시화국가산업단지)<산업입지 및 개발에 관한 법률>, 산업단지기타(반월특수지역)<산업입지 및 개발에 관한 법률>, 지원시설구역<산업집적활성화 및 공장설립에 관한 법률>, 성장관리권역<수도권정비계획법>, 중점경관관리구역. 9) 공부와의 차이 해당사항 없음. 10) 기타참고사항(임대관례 및 기타) 임대관계 미상임.

감정평가

주변 입주 예정

거리 단지명 공급년월 세대 수
※ 해당 자료는 한국부동산원 청약홈 자료에 근거하며, 인근 5km 이내의 물건을 기준으로 산정되었습니다.

등기

등기부현황

채권합계 120,000,000원(1건)
등기일자 권리종류 권리자/채권액 권리
2022-07-26
소유자 양덕자 (소유자) 멤버십
단독소유 -
2022-07-26
(을1)
근저당권설정 중소기업은행 멤버십
말소기준 등기 120,000,000원
2024-04-24
(갑3)
압류 국민건강보험공단 멤버십
- -
2024-09-10
(갑4)
임의경매개시결정
(2024타경66385)
중소기업은행 멤버십
경매기입 등기 207,188,013원
더보기 더보기
※ 신규 발급등기의 분석자료 반영에는 최대 1일까지 소요될수 있습니다.(등기분석,임차인분석,분석노트 등)

임차인

매각물건 명세서

구분 법원 사건번호 작성일자 매각명세서
1 안산지원 2024타경66385[1] 2025. 4. 1.
구분 법원/
사건번호
작성일자 매각명세서
1 안산지원
2024타경66385[1]
2025. 4. 1.

임차인현황

임차인 보증금/차임 전입/확정/배당 대항력
매각물건명세서상 임차인이 존재하지 않습니다.

현황 조사서

조사일시

2024년09월23일10시43분

부동산의 현황

- 목록 1.2.에 대하여 폐문부재로 소유자나 점유자를 만나지 못하여 각 목적물 출입문에 안내문을 부착함.

점유 조사

[목록1]- 목적물에 대하여 현황조사차 방문하였으나 폐문부재로 소유자나 점유자를 만나지 못하였음.

- 본건 출입문에 안내문을 부착하여 두었으나 점유관계를 확인할 수 없음.

- 전입세대확인서 및 외국인체류확인서, 상가건물임대차 현황서에 등재된 세대주나 전입자가 없음.

미납관리비 조사내역

확인일자 미납금액 관리소번호 메모

※ 해당 정보는 참고용으로 제공되며 입찰 전 반드시 관리사무소를 통해 직접 확인하시기 바랍니다.

시세

전문가

그외

관할법원 관할법원 (입찰장소)

수원지방법원 안산지원

경매2계 : 031-481-1114

경기 안산시 단원구 고잔동 711 주소복사

Q&A Q&A

Q. 대법원경매가 무엇인가요?누구나 입찰에 참여할 수 있나요?

경매채무자(빌린 자)가 채무를 갚지 않았을 때 채권자(빌려준 자)의 신청으로 대법원이 채무자의 재산을 대신 매각하는 과정을 말합니다.

법원은 감정인에게 자산을 평가하게 한 후, 최저가를 정하여 그 금액 이상으로 입찰한 입찰자 중 최고가 매수인을 결정합니다.

대법원의 주관하에 국민 모두가 참여할 수 있습니다.

Q. 경매 입찰은 어떻게 하나요?누구나 입찰에 참여할 수 있나요?

1. 입찰하시고자 하는 경매물건을 정하신 후, 입찰하시고자 하는 입찰가를 최저가 이상으로 정합니다.

2. 해당 물건의 매각기일에 직접 관할법원에 방문하셔서 법원내에 비치된 입찰서를 작성하신 후 입찰하시면 됩니다.

TIP! 법원에 가실 때에는 입찰보증금(최저가의 10~30%)과 신분증을 지참하여 방문하세요.

Q. 용어가 너무 어려워서 내용을 이해하기 어려워요누구나 입찰에 참여할 수 있나요?

매각기일
매각기일은 경매 법원이 부동산에 대하여 매각 입찰을 진행하는 날을 말합니다.

유찰
매각 기일에 매수하고자 하는 사람이 없어 매각되지 않아 무효가 되는 것을 유찰이라고 합니다.

최저 매각 가격
최초 경매를 진행할때 감정인이 평가한 가격을 기준으로 책정한 금액이며 입찰자는 최저 매각 가격과 동일하거나 이상의 금액으로 입찰해야 합니다. 매각 기일에 있어 입찰자가 없어 유찰되면 통상 20~30% 저감된 금액이 다음 최저 매각 가격이 됩니다.

매수 보증금
경매 물건을 매수하고자 하는사람은 최저 매각 가격의 10분의 1(다르게 정해질 수 있음)에 해당하는 보증금액을 입찰표와 함께 집행관에게 제출하는 방법으로 제공합니다. 매각 절차가 종결된 후 집행관은 최고가 매수신고인이나 차순위매수신고인 이외의 매수신청인에게는 즉시 매수 보증금을 반환해 줍니다.

더 많은 내용을 알고 싶다면 경매마당 학습하기 코너에 준비된 용어설명을 이용해보세요.

경매정보는 법원자료와 일치하도록 하였으나 권리사항변동, 입력착오 등의 원인으로 사실과 다를 수 있습니다. 이용약관에 의거 면책조건으로 제공됨을 알리며, 경매입찰시 반드시 관련 공부를 재확인하시기 바랍니다.

PC버전으로 보기