알림

알림 내역

알림 신청내역/취소

대법원
물건내역
사건내역
기일내역
송달내역
현황조사
지도
사진보기
문서
매각기일공고문
매각물건명세서
감정평가서
등기부등본
전입세대열람원 M
건축물대장 M
분석
예상배당표 M
수익률분석 M
입찰가분석 M
조회수분석 M
인근지역통계 M
사이트
대법원
국토부 실거래가
토지이음
아실
네이버 단지정보
네이버 매물정보
호갱노노
부동산플래닛
로고 수원지방법원 안양지원 [경매2계] 2024타경105417
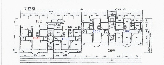
경기도 군포시 수리산로 40, 804동 15층1505호 (산본동,한양수리아파트)

경기 군포시 산본동 1151-5

주소복사
경매구분 임의경매
용도 아파트
토지 46.44㎡(14.05평)
건물 96.36㎡(29.15평)
감정가 627,000,000원
최저가 501,600,000원
보증금 50,160,000원 (10%)
청구액 306,267,865원
개시결정 2024년 10월 21일
감정일 2024년 10월 28일
배당종기 2025년 01월 02일
매각일 2025년 07월 08일
2024타경105417
2024타경105417
2024타경105417
2024타경105417
2024타경105417
2024타경105417
2024타경105417
2024타경105417
2024타경105417
2024타경105417
2024타경105417
2024타경105417
2024타경105417
2024타경105417
2024타경105417
감정가
6억2700만원
2150만9434원/평
낙찰가 10%
5억6700만원
배당종결 2025년 07월 08일
유찰 1회
유찰 1회
경매구분 임의경매
용도 아파트
토지 46.44㎡(14.05평)
건물 96.36㎡(29.15평)
감정가 627,000,000원
최저가 501,600,000원
보증금 50,160,000원 (10%)
청구액 306,267,865원
개시결정 2024년 10월 21일
감정일 2024년 10월 28일
배당종기 2025년 01월 02일
매각일 2025년 07월 08일
배당종결 2025년 07월 08일

당사자 내역

채무자겸소유자 망OOOOOOOOOOOOO
채권자 한OOOOOOO
임차인 신OO
근저당권자 경OOOOOOO
근저당권자 오OOOOOOOOOOOOOOOOOOOOOOOOOOOOOOOO
근저당권자 한OOOOOOO
교부권자 국OOOOOOOOOOOO
교부권자 군OO
압류권자 안OOOO
압류권자 동OOOOO

기일 내역

2025.08.22(16:00)
납부
2025.07.15(14:00)
최고가매각허가결정
2025.07.08(10:00)
5억6700만원 매각
5억160만원 최저가
2025.06.03(10:00)
기일변경
2025.04.22(10:00)
6억2700만원 유찰

매각결과+

매각일자 / 결과 응찰자수 최고가 금액/응찰자명 차순위 금액

가장 빠른 경매 정보 플랫폼 경매마당
남들보다 먼저 정보를 선점하세요

간단한 로그인 후 바로 이용 가능합니다

bolt 대법원 보다 빠른 물건 정보
verified 가장 많은 경매 물건 제공
trending_up 월 5회 등기부 무료 열람

현황정보

매각목록

부동산 현황

1) 위치 및 주위환경 본건 경기도 군포시 산본동 소재 "수리고등학교" 북측 인근에 위치하며 주위는 아파트단지, 학교, 근린생활시설, 공원 등이 혼재하는 지역임. 2) 교통상황 본건 단지까지 차량의 출입이 가능하며 인근에 버스정류장 및 근거리에 전철 "수리산역"이 소재하여 대중교통사정은 무난시됨. 3) 건물의 구조 철근콘크리트조 슬래브지붕 20층건 내 15층 1505호로서, 외벽 : 몰탈위 페인팅 마감 내벽 : 벽지 및 일부 타일붙임 등 마감 (탐문사항) 창호 : 샷시 창호임. (탐문사항) ※ 본건이 소재하는 5호 라인은 15층 건물임. 4) 이용상태 아파트(후첨 건물개황도 참조) 로 이용중임. 5) 설비내역 위생 및 급배수설비, 난방설비, 승강기설비, 소화전설비 등 되어있음. 6) 토지의 형상 및 이용상태 부정형의 토지로서 아파트 건부지로 이용중임. 7) 인접 도로상태등 단지내 도로가 외곽 공도와 연계됨. 8) 토지이용계획 및 제한상태 도시지역, 제3종일반주거지역, 개발행위허가제한지역(2024-09-11), 지구단위계획구역, 중로1류(폭 20m-25m)(접합), 가축사육제한구역(2013-10-15)(전부제한구역)<가축분뇨의 관리 및 이용에 관한 법률>, 상대보호구역<교육환경 보호에 관한 법률>, 절대보호구역 <교육환경 보호에 관한 법률>, 비행안전제3구역(전술)(2022-09-06)(비행안전제3구역 (전술) 해발178.21m이하 위탁)<군사기지 및 군사시설 보호법>, 과밀억제지역<산업집적 활성화 및 공장설립에 관한 법률>, 과밀억제권역(2022-09-06)<수도권정비계획법>, 토지거래계약에관한허가구역(2024-07-10)(주거용제외 / 지정기간 2024.7.10.-2024. 12.31.)임. 9) 공부와의 차이 해당사항 없음. 10) 기타참고사항(임대관례 및 기타) 임대관계 미상임.

주변 입주 예정

거리 단지명 공급년월 세대 수
※ 해당 자료는 한국부동산원 청약홈 자료에 근거하며, 인근 5km 이내의 물건을 기준으로 산정되었습니다.

임차인

임차인현황

임차인 보증금/차임 전입/확정/배당 대항력
[현황조사]
신OO
(주거임차인)
점유부분:
미상
보증:
미상
차임:
미상
전입: 2018-08-16
확정: 미상
배당: -
멤버십

현황 조사(현황 조사서)

1.위 내용은 전입세대확인서 및 주민등록표등본에 등재된 내용으로 정확한 임대차 관계는 미상임. 2.위 기재한 임차인 신*빈이 임차인인지 여부는 확인할 수 없었고, 채무자(소유자) 세대의 세대주로 등재되어 있어 기재 하였으므로 추가 확인이 필요함

점유 조사(현황 조사서)

[목록1]1.현황조사를 위해 방문하였으나 폐문으로 아무도 만나지 못하여 상세점유관계 미상 (안내문 부착)
2.별지 전입세대확인서 및 주민등록표등본상 채무자(소유자)는 동생이 세대주인 주민등록등본상에 형으로 등재되어 있음.

미납관리비 조사내역 미납관리비 유의사항

확인일자 미납금액 관리소번호 메모

등기

등기부현황

채권합계 646,300,000원(3건)
등기일자 권리종류 권리자/채권액 권리
2017-11-03
(을14)
근저당권설정 삼OOOOOOOOOOO OO
말소기준 등기 352,800,000원
2024-04-16
(을14-1)
근저당권이전 한OOOOOOO OO
- -
2019-05-13
(을15)
근저당권설정 삼OOOOOOOOOOO OO
- 17,500,000원
2024-04-16
(을15-1)
근저당권이전 한OOOOOOO OO
- -
2021-07-23
(을17)
근저당권설정 주OOOOOOOOOO OO
- 276,000,000원
2024-04-05
(을17-2)
근저당권이전 오OOOOOOOOOOOOO OO
- -
2021-12-01
(갑14)
압류 동OOOOOO OO
- -
2024-09-03
(갑17)
압류 안OOOOO OO
- -
2024-09-27
소유자 신OOOOOOOO OO
단독소유 -
2024-10-21
(갑19)
임의경매개시결정
(2024타경105417)
한OOOOOOO OO
경매기입 등기 306,267,865원
더보기
※ 신규 발급등기의 분석자료 반영에는 최대 1일까지 소요될수 있습니다.(등기분석,임차인분석,분석노트 등)

시세분석

낙찰가 및 실거래가

낙찰 가격분포

주변 낙찰사례의 가격대와 거래 시점을 그래프로 확인할 수 있어요

전체 0

기타

전문가

관할법원 (입찰장소)

수원지방법원 안양지원

경매2계 : 031-8086-1114

경기 안양시 동안구 관양동 1593 주소복사

Q&A

Q. 대법원경매가 무엇인가요?누구나 입찰에 참여할 수 있나요?

경매채무자(빌린 자)가 채무를 갚지 않았을 때 채권자(빌려준 자)의 신청으로 대법원이 채무자의 재산을 대신 매각하는 과정을 말합니다.

법원은 감정인에게 자산을 평가하게 한 후, 최저가를 정하여 그 금액 이상으로 입찰한 입찰자 중 최고가 매수인을 결정합니다.

대법원의 주관하에 국민 모두가 참여할 수 있습니다.

Q. 경매 입찰은 어떻게 하나요?누구나 입찰에 참여할 수 있나요?

1. 입찰하시고자 하는 경매물건을 정하신 후, 입찰하시고자 하는 입찰가를 최저가 이상으로 정합니다.

2. 해당 물건의 매각기일에 직접 관할법원에 방문하셔서 법원내에 비치된 입찰서를 작성하신 후 입찰하시면 됩니다.

TIP! 법원에 가실 때에는 입찰보증금(최저가의 10~30%)과 신분증을 지참하여 방문하세요.

Q. 용어가 너무 어려워서 내용을 이해하기 어려워요누구나 입찰에 참여할 수 있나요?

매각기일
매각기일은 경매 법원이 부동산에 대하여 매각 입찰을 진행하는 날을 말합니다.

유찰
매각 기일에 매수하고자 하는 사람이 없어 매각되지 않아 무효가 되는 것을 유찰이라고 합니다.

최저 매각 가격
최초 경매를 진행할때 감정인이 평가한 가격을 기준으로 책정한 금액이며 입찰자는 최저 매각 가격과 동일하거나 이상의 금액으로 입찰해야 합니다. 매각 기일에 있어 입찰자가 없어 유찰되면 통상 20~30% 저감된 금액이 다음 최저 매각 가격이 됩니다.

매수 보증금
경매 물건을 매수하고자 하는사람은 최저 매각 가격의 10분의 1(다르게 정해질 수 있음)에 해당하는 보증금액을 입찰표와 함께 집행관에게 제출하는 방법으로 제공합니다. 매각 절차가 종결된 후 집행관은 최고가 매수신고인이나 차순위매수신고인 이외의 매수신청인에게는 즉시 매수 보증금을 반환해 줍니다.

더 많은 내용을 알고 싶다면 경매마당 학습하기 코너에 준비된 용어설명을 이용해보세요.

경매정보는 법원자료와 일치하도록 하였으나 권리사항변동, 입력착오 등의 원인으로 사실과 다를 수 있습니다. 이용약관에 의거 면책조건으로 제공됨을 알리며, 경매입찰시 반드시 관련 공부를 재확인하시기 바랍니다.

PC버전으로 보기