알림

알림 내역

알림 신청내역/취소

로고 울산지방법원 본원 [경매1계] 2020타경111347[2]
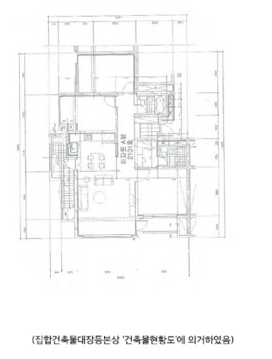
울산광역시 동구 상진2길 25, 19층2101호 (방어동,월드스카이파크)

울산 동구 방어동 308-3

주소복사
경매구분 강제경매
용도 아파트
토지 26.9㎡(8.1평)
건물 84.95㎡(25.7평)
감정가 210,000,000원
최저가 8,475,000원
보증금 1,700,000원 (20%)
청구액 171,538,983원
개시결정 2020년 10월 20일
감정일 감정평가서 분석 중
배당종기 2021년 01월 11일
매각일 2023년 12월 20일
2020타경111347[2]
2020타경111347[2]
2020타경111347[2]
2020타경111347[2]
2020타경111347[2]
2020타경111347[2]
2020타경111347[2]
2020타경111347[2]
2020타경111347[2]
2020타경111347[2]
2020타경111347[2]
2020타경111347[2]
2020타경111347[2]
2020타경111347[2]
2020타경111347[2]
2020타경111347[2]
2020타경111347[2]
2020타경111347[2]
감정가
2억1000만원
낙찰가 96%
850만7100원
배당종결 2023년 12월 20일
유찰 15회임차권등기선순위임차인재매각
유찰 15회임차권등기선순위임차인재매각
경매구분 강제경매
용도 아파트
토지 26.9㎡(8.1평)
건물 84.95㎡(25.7평)
감정가 210,000,000원
최저가 8,475,000원
보증금 1,700,000원 (20%)
청구액 171,538,983원
개시결정 2020년 10월 20일
감정일 감정평가서 분석 중
배당종기 2021년 01월 11일
매각일 2023년 12월 20일
배당종결 2023년 12월 20일

당사자 내역

채무자겸소유자 황OOOOOOOOOOOOOOOOO
채권자 심OO
임차인 주OOOOOOOOOOOOOOOOOOOOOO
임차인 김OO
근저당권자 수OOO
교부권자 국OOOOOOOOOOOOOO
임차권자 심OO
가압류권자 심OO
교부권자 울OOOOOO

기일 내역

2024.03.22
납부 (2024.03.18)
2024.02.13
차순위매각허가결정
2024.01.26
미납
2023.12.28
최고가매각허가결정
2023.12.20
850만7100원 매각
847만5000원 최저가
2023.11.15
1210만7000원 유찰
2023.10.10
1729만5000원 유찰
2023.08.29
2470만7000원 유찰
2023.07.25
3529만5000원 유찰
2023.06.20
5042만1000원 유찰
2023.05.16
7203만원 유찰
2023.04.11
1억290만원 유찰
2023.03.08
1억4700만원 유찰
2023.02.01
2억1000만원 유찰
2022.11.29
최고가매각불허가결정
2022.11.22
1억6557만7890원 매각
2470만7000원 최저가
2022.10.11
3529만5000원 유찰
2022.09.06
5042만1000원 유찰
2022.08.02
7203만원 유찰
2022.06.28
1억290만원 유찰
2021.12.22
기일변경
2021.11.17
1억4700만원 유찰
2021.10.13
2억1000만원 유찰

기일 변경(2021년12월16일)

변경 후 추후지정

임차인(매각 명세서)

<비고>
김승화:부동산(아파트)전세계약서 작성일은 2020.01.31.임., 배당에서 위 임차인 김승화의 임차보증금이 전액 변제되지 아니하
면 그 잔액을 매수인이 인수할 수 있음.
심재복:1. 주택임차권등기권자로서 주택임차권등기일은 2020.03.26.임. 이 사건 경매신청 채권자임.
별지와 같이 본건에 대하여 임차인 김승화가 2021.12.10.자로 배당의견서를 제출하였고, 이에 대하여 신청채권자 및 임차인
심재복이 2021.12.24.자로 점유에 관한 내용의 보정서를 제출하였고, 다시 임차인 김승화가 2022.01.05.자로 신청채권자 겸 임
차인 심재복의 주장에 대한 내용에 관한 보정서를 제출하였고, 위 임차인 김승화가 2022.11.30. 배당배제신청서를 제출하였으
니 응찰시 참고바람.
2. 위 임차인 김승화와 심재복 사이에 점유관계와 관련하여 다툼이 있고, 위 주택임차권등기와 관련하여 등기부의 형식으로
보면 심재복의 전입일자 2018.02.23.이 이 사건 말소기준권리일자 2020.10.20.보다 빠르므로 이 사건 경매절차상 매수인이 위
심재복의 임차보증금을 인수할 수도 있으니, 그 임차보증금의 인수여부와 관련하여 주의해서 응찰하기 바람.
3. 이 건 매각물건명세서에 첨부한 배당의견서, 보정서, 배당배제신청서 등을 면밀히 검토한 후에 응찰하기 바람.

인수되는 권리/가처분(매각 명세서)

을구 순위 7번 주택임차권등기(2020. 3. 26.) 있음(임차보증금 185,000,000원, 주민등록일자 2018.02.23., 확정일자 2018.02.01.).

현황 조사(현황 조사서)

본건 부동산은 울산시 동구 방어동에 소재하는 통칭-월드스카이파크 임.

점유 조사(현황 조사서)

[목록2]본건 부동산은 폐문으로 점유자 조사불가하여 주민센터에 전입세대 주민등록 열람한 바, 세대주-김승화 (전입:2020.02.14)외 세대원2명 전입되어 있음(전입세대열람 내역 및 주민등록등본 첨부함).

매각결과+

매각일자 / 결과 응찰자수 최고가 금액/응찰자명 차순위 금액

동일사건 물건목록

번호 주소 상태/입찰일 물건내역
1 울산광역시 동구 상진2길 25, 20층2202호 (방어동,월드스카이파크) 배당종결
2021.10.13
바로가기
2
본건
울산광역시 동구 상진2길 25, 19층2101호 (방어동,월드스카이파크) 배당종결
2023.12.20
-
3 울산광역시 동구 상진2길 25, 18층2002호 (방어동,월드스카이파크) 배당종결
-
바로가기
부동산
등기
임차인
그 외

부동산

매각목록

※ 건축물 도면은 ‘건축물 대장의 기재 및 관리에 관한 규칙’ 에 따라 현재 경매가 진행중인 물건에만 제공됩니다.
※ 지분물건의 경우 면적은 지분에 해당하는 면적이 아닌 전체 면적으로 표기됩니다

감정평가

감정평가서 요약

1.구분건물감정평가요항표 1) 위치 및 주위환경 울산광역시 동구 방어동 소재 "방어진초등학교" 남서측 인근에 위치하며, 주위는 공동주택 및 단독주택, 근린생활시설 등으로 형성된 지역임. 2) 교통상황 차량진출입 가능하며, 대중교통 여건은 보통임. 3) 건물의 구조 철근콘크리트구조 스라브지붕 20층 중 20층 2202호외 2세대로서 외벽 : 미장 석재 마감 및 몰탈위페인트 내벽 : 벽지 및 타일 등 창호 : 샷시창등으로 치장 또는 마감되었음. 4) 이용상태 공동주택(아파트)로 이용중임. 5) 설비내역 도시가스에 의한 개별난방설비, 상.하수도시설, 위생 및 급배수설비, 승강기설비, 옥내소화전 등이 구비되어 있음. 6) 토지의 형상 및 이용상태 5필 일단의 부정형의 토지로서, 공동주택, 근린생활시설 및 오피스텔용 건물의 부지로 이용중임. 7) 인접 도로상태등 주변 가로망상태 보통시 됨. 8) 토지이용계획 및 제한상태 -- 9) 공부와의 차이 없음. 10) 기타참고사항(임대관례 및 기타) 임대관계 미상이며, 기타사항 없음.

단지정보

월드스카이파크
시공사 월드종합건설(주) 총 주차 대수 17대 (세대당1.06대)
사용승인 2013년 10월 25일(13년차) 동/세대 1동/16세대
관리실 - 최고층 20층
면적 74㎡, 80㎡, 99㎡, 107A㎡, 107B㎡

주변 입주 예정

거리 단지명 공급년월 세대 수
※ 해당 자료는 한국부동산원 청약홈 자료에 근거하며, 인근 5km 이내의 물건을 기준으로 산정되었습니다.

등기

등기부현황

채권합계 198,870,000원(2건)
등기일자 권리종류 권리자/채권액 권리
2017-10-16
소유자 황은희 (소유자)
단독소유 -
2020-03-26
(을7)
임차권설정 심재복 인수
전입:2018년2월23일/확정:2018년2월1일 185,000,000
2020-10-20
(갑15)
강제경매개시결정
(2020타경111347)
심재복 소멸
말소기준
경매기입 등기
171,538,983원
2021-07-02
(갑16)
가압류 중소기업은행 소멸
- 13,874,612
더보기 더보기
※ 신규 발급등기의 분석자료 반영에는 최대 1일까지 소요될수 있습니다.(등기분석,임차인분석,분석노트 등)

임차인

매각물건 명세서

구분 법원 사건번호 작성일자 매각명세서
1 울산지법 2020타경111347[2] 2023.11.15
구분 법원/
사건번호
작성일자 매각명세서
1 울산지법
2020타경111347[2]
2023.11.15

임차인(매각 명세서)

<비고>
김승화:부동산(아파트)전세계약서 작성일은 2020.01.31.임., 배당에서 위 임차인 김승화의 임차보증금이 전액 변제되지 아니하
면 그 잔액을 매수인이 인수할 수 있음.
심재복:1. 주택임차권등기권자로서 주택임차권등기일은 2020.03.26.임. 이 사건 경매신청 채권자임.
별지와 같이 본건에 대하여 임차인 김승화가 2021.12.10.자로 배당의견서를 제출하였고, 이에 대하여 신청채권자 및 임차인
심재복이 2021.12.24.자로 점유에 관한 내용의 보정서를 제출하였고, 다시 임차인 김승화가 2022.01.05.자로 신청채권자 겸 임
차인 심재복의 주장에 대한 내용에 관한 보정서를 제출하였고, 위 임차인 김승화가 2022.11.30. 배당배제신청서를 제출하였으
니 응찰시 참고바람.
2. 위 임차인 김승화와 심재복 사이에 점유관계와 관련하여 다툼이 있고, 위 주택임차권등기와 관련하여 등기부의 형식으로
보면 심재복의 전입일자 2018.02.23.이 이 사건 말소기준권리일자 2020.10.20.보다 빠르므로 이 사건 경매절차상 매수인이 위
심재복의 임차보증금을 인수할 수도 있으니, 그 임차보증금의 인수여부와 관련하여 주의해서 응찰하기 바람.
3. 이 건 매각물건명세서에 첨부한 배당의견서, 보정서, 배당배제신청서 등을 면밀히 검토한 후에 응찰하기 바람.

인수되는 권리/가처분(매각 명세서)

을구 순위 7번 주택임차권등기(2020. 3. 26.) 있음(임차보증금 185,000,000원, 주민등록일자 2018.02.23., 확정일자 2018.02.01.).

임차인현황

임차인 보증금/차임 전입/확정/배당 대항력
김승화
(주거임차인)
점유부분:
2101호 전부
보증:
160,000,000
차임:
-
전입: 2020-02-14
확정: 2020-02-14
배당: 2020-12-15
-
심재복
(주거임차권자)
점유부분:
제2101 호
보증:
185,000,000
차임:
-
전입: 2018-02-23
확정: 2018-02-01
배당: -
-

현황 조사서

조사일시

2020년11월02일11시27분 / 2020년11월13일15시50분 / 2020년11월23일18시00분

부동산의 현황

본건 부동산은 울산시 동구 방어동에 소재하는 통칭-월드스카이파크 임.

점유 조사

[목록2]본건 부동산은 폐문으로 점유자 조사불가하여 주민센터에 전입세대 주민등록 열람한 바, 세대주-김승화 (전입:2020.02.14)외 세대원2명 전입되어 있음(전입세대열람 내역 및 주민등록등본 첨부함).

조사일시

-

부동산의 현황

-

점유 조사

[목록2]본건 부동산은 폐문으로 점유자 조사불가하여 주민센터에 전입세대 주민등록 열람한 바, 세대주-김승화 (전입:2020.02.14)외 세대원2명 전입되어 있음(전입세대열람 내역 및 주민등록등본 첨부함).

미납관리비 조사내역

확인일자 미납금액 관리소번호 메모

※ 해당 정보는 참고용으로 제공되며 입찰 전 반드시 관리사무소를 통해 직접 확인하시기 바랍니다.

시세

전문가

그외

관할법원 관할법원 (입찰장소)

울산지방법원 본원

경매1계 : 052-216-8000

울산 남구 옥동 1415 주소복사

Q&A Q&A

Q. 대법원경매가 무엇인가요?누구나 입찰에 참여할 수 있나요?

경매채무자(빌린 자)가 채무를 갚지 않았을 때 채권자(빌려준 자)의 신청으로 대법원이 채무자의 재산을 대신 매각하는 과정을 말합니다.

법원은 감정인에게 자산을 평가하게 한 후, 최저가를 정하여 그 금액 이상으로 입찰한 입찰자 중 최고가 매수인을 결정합니다.

대법원의 주관하에 국민 모두가 참여할 수 있습니다.

Q. 경매 입찰은 어떻게 하나요?누구나 입찰에 참여할 수 있나요?

1. 입찰하시고자 하는 경매물건을 정하신 후, 입찰하시고자 하는 입찰가를 최저가 이상으로 정합니다.

2. 해당 물건의 매각기일에 직접 관할법원에 방문하셔서 법원내에 비치된 입찰서를 작성하신 후 입찰하시면 됩니다.

TIP! 법원에 가실 때에는 입찰보증금(최저가의 10~30%)과 신분증을 지참하여 방문하세요.

Q. 용어가 너무 어려워서 내용을 이해하기 어려워요누구나 입찰에 참여할 수 있나요?

매각기일
매각기일은 경매 법원이 부동산에 대하여 매각 입찰을 진행하는 날을 말합니다.

유찰
매각 기일에 매수하고자 하는 사람이 없어 매각되지 않아 무효가 되는 것을 유찰이라고 합니다.

최저 매각 가격
최초 경매를 진행할때 감정인이 평가한 가격을 기준으로 책정한 금액이며 입찰자는 최저 매각 가격과 동일하거나 이상의 금액으로 입찰해야 합니다. 매각 기일에 있어 입찰자가 없어 유찰되면 통상 20~30% 저감된 금액이 다음 최저 매각 가격이 됩니다.

매수 보증금
경매 물건을 매수하고자 하는사람은 최저 매각 가격의 10분의 1(다르게 정해질 수 있음)에 해당하는 보증금액을 입찰표와 함께 집행관에게 제출하는 방법으로 제공합니다. 매각 절차가 종결된 후 집행관은 최고가 매수신고인이나 차순위매수신고인 이외의 매수신청인에게는 즉시 매수 보증금을 반환해 줍니다.

더 많은 내용을 알고 싶다면 경매마당 학습하기 코너에 준비된 용어설명을 이용해보세요.

경매정보는 법원자료와 일치하도록 하였으나 권리사항변동, 입력착오 등의 원인으로 사실과 다를 수 있습니다. 이용약관에 의거 면책조건으로 제공됨을 알리며, 경매입찰시 반드시 관련 공부를 재확인하시기 바랍니다.

PC버전으로 보기