알림

알림 내역

알림 신청내역/취소

로고 울산지방법원 본원 [경매5계] 2024타경106886
울산광역시 남구 봉월로82번길 46, 7층702호 (신정동,더렉스)

울산 남구 신정동 627-3

주소복사
경매구분 강제경매
용도 오피스텔(사무)
토지 10.69㎡(3.2평)
건물 69.39㎡(21평)
감정가 200,000,000원
최저가 48,020,000원
보증금 4,810,000원 (10%)
청구액 216,660,214원
개시결정 2024년 05월 03일
감정일 2024년 05월 29일
배당종기 2024년 08월 05일
매각일 2025년 11월 19일
2024타경106886
2024타경106886
2024타경106886
2024타경106886
2024타경106886
2024타경106886
2024타경106886
2024타경106886
감정가
2억원
최저가 76%
4802만원
공고 2025년 11월 19일 입찰 D-15일
유찰 6회임차권등기선순위임차인
유찰 6회임차권등기선순위임차인
경매구분 강제경매
용도 오피스텔(사무)
토지 10.69㎡(3.2평)
건물 69.39㎡(21평)
감정가 200,000,000원
최저가 48,020,000원
보증금 4,810,000원 (10%)
청구액 216,660,214원
개시결정 2024년 05월 03일
감정일 2024년 05월 29일
배당종기 2024년 08월 05일
매각일 2025년 11월 19일
공고 2025년 11월 19일 입찰 D-15일

당사자 내역

채무자겸소유자 주OOOOOOOOOOOOOOOOOOOOOO
채무자겸소유자 주OOOOOOOOO
채권자 한OOOOOOO
압류권자 울OOOO
압류권자 울OOOOOOO
교부권자 울OOOO
임차권자 박OO
교부권자 울OOOOOOO

기일 내역

2025.11.19(10:00)
4802만원 진행
2025.10.15(10:00)
6860만원 유찰
2025.09.03(10:00)
9800만원 유찰
2025.07.30(10:00)
1억4000만원 유찰
2025.06.25(10:00)
2억원 유찰
2025.05.21(10:00)
기일변경
2025.04.16(10:00)
1억4000만원 유찰
2025.03.12(10:00)
2억원 유찰

물건 비고(공고문)

신정더렉스 관리사무소의 "현재 공실 세대, 소유자 또는 입주하는 세대 경매받을 시 미납관리비 완납 후 입주하셔야 합니다."라는 문구의 안내문이 현관문에 붙어 있어, 응찰시 이에 대한 확인요함(감정평가서에 첨부된 현관 사진용지 참조).

임차인(매각 명세서)

박슬기:등기사항증명서상 주택임차권설정등기일은 2023.08.30.임.신청채권자 한국주택금융공사는 주택임차권자 박슬기의 보증금반환채권을 양수함.

인수되는 권리/가처분(매각 명세서)

을구 순위 1번 임차권등기(2023.08.30.제90115호) 있음.(임대차보증금 205,000,000원, 전입일자 2021.08.25. 확정일자 2021.08.10.) 배당에서 보증금이 전액 변제되지 아니하면 잔액을 매수인이 인수함.

물건 비고(매각 명세서)

신정더렉스 관리사무소의 "현재 공실 세대, 소유자 또는 입주하는 세대 경매받을 시 미납관리비 완납 후 입주하셔야 합니다."라는 문구의 안내문이 현관문에 붙어 있어, 응찰시 이에 대한 확인요함(감정평가서에 첨부된 현관 사진용지 참조).

현황 조사(현황 조사서)

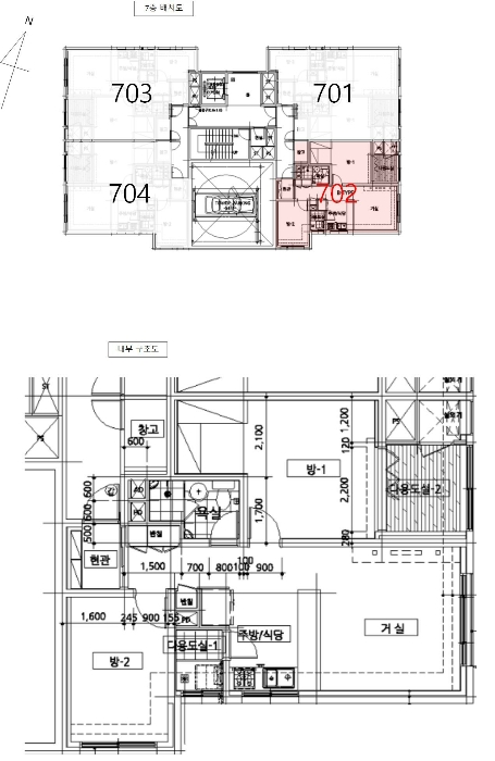
본건 부동산은 울산 남구 신정동 소재 울산광역시청 북측 인근한 더렉스 702호임.

점유 조사(현황 조사서)

[목록1]본건 부동산은 폐문부재로 점유자 조사불가하여 ①행정복지센터에 전입세대 열람한 바, 전입세대 없음(전입세대확인서 내역 첨부함).
②관할세무서에 상가건물임대차현황서 열람한 바, 해당사항 없음(상가건물 임대차현황서 첨부함).

매각결과+

매각일자 / 결과 응찰자수 최고가 금액/응찰자명 차순위 금액
부동산
등기
임차인
그 외

부동산

매각목록

※ 건축물 도면은 ‘건축물 대장의 기재 및 관리에 관한 규칙’ 에 따라 현재 경매가 진행중인 물건에만 제공됩니다.
※ 지분물건의 경우 면적은 지분에 해당하는 면적이 아닌 전체 면적으로 표기됩니다

감정평가

감정평가서 요약

1) 위치 및 주위환경 울산광역시 남구 신정동 울산광역시청 북측 인근에 소재하며 주변은 근린생활시설, 공동주택 , 오피스텔, 단독주택, 공공시설 등으로 형성되어 있음. 2) 교통상황 차량접근 가능하고 인근에 버스정류장이 소재함. 3) 건물의 구조 철근콘크리트구조 (철근)콘크리트지붕 20층건내 7층으로 외벽 : 석재,페인팅 창호 : 샤시 내부 : 벽지 등 (내부 미확인) 4) 이용상태 오피스텔. 5) 설비내역 위생 및 급배수, 화재관리, 승강기, 도시가스 설비 등. 6) 토지의 형상 및 이용상태 인접도로와 대체로 등고이고 평탄한 가장형지로 오피스텔 및 아파트 부지임. 7) 인접 도로상태등 북서측으로 폭 8미터 정도의 도로와 접함. 8) 토지이용계획 및 제한상태 일반상업지역, 소로2류(폭 8m-10m)(접합) 가축사육제한구역<가축분뇨의 관리 및 이용에 관한 법률> 9) 공부와의 차이 없음. 10) 기타참고사항(임대관례 및 기타) 임대관계 미상임.

단지정보

더렉스
시공사 렉스종합건설주식회사 총 주차 대수 15대 (세대당1.07대)
사용승인 2018년 07월 06일(8년차) 동/세대 1동/14세대
관리실 - 최고층 20층
면적 113㎡

주변 입주 예정

거리 단지명 공급년월 세대 수
※ 해당 자료는 한국부동산원 청약홈 자료에 근거하며, 인근 5km 이내의 물건을 기준으로 산정되었습니다.

등기

등기부현황

채권합계 205,000,000원(1건)
등기일자 권리종류 권리자/채권액 권리
2021-09-01
소유자 주식회사신라디앤씨 (소유자)
단독소유 -
2022-08-18
(갑5)
압류 울산세무서장 소멸
말소기준 등기 -
2022-10-19
(갑6)
압류 남구(울산광역시) 소멸
- -
2023-08-30
(을1)
임차권설정 박슬기 소멸
- 205,000,000원
2024-05-03
(갑7)
강제경매개시결정
(2024타경106886)
한국주택금융공사 소멸
경매기입 등기 216,660,214원
더보기 더보기
※ 신규 발급등기의 분석자료 반영에는 최대 1일까지 소요될수 있습니다.(등기분석,임차인분석,분석노트 등)

임차인

매각물건 명세서

구분 법원 사건번호 작성일자 매각명세서
1 울산지법 2024타경106886[1] 2025. 10. 28.
2 울산지법 2024타경106886[1] 2025. 9. 10.
3 울산지법 2024타경106886[1] 2025. 8. 11.
4 울산지법 2024타경106886[1] 2025. 7. 3.
5 울산지법 2024타경106886[1] 2025. 5. 9.
6 울산지법 2024타경106886[1] 2025. 3. 24.
7 울산지법 2024타경106886[1] 2025. 2. 12.
구분 법원/
사건번호
작성일자 매각명세서
1 울산지법
2024타경106886[1]
2025. 10. 28.
2 울산지법
2024타경106886[1]
2025. 9. 10.
3 울산지법
2024타경106886[1]
2025. 8. 11.
4 울산지법
2024타경106886[1]
2025. 7. 3.
5 울산지법
2024타경106886[1]
2025. 5. 9.
6 울산지법
2024타경106886[1]
2025. 3. 24.
7 울산지법
2024타경106886[1]
2025. 2. 12.

임차인(매각 명세서)

박슬기:등기사항증명서상 주택임차권설정등기일은 2023.08.30.임.신청채권자 한국주택금융공사는 주택임차권자 박슬기의 보증금반환채권을 양수함.

인수되는 권리/가처분(매각 명세서)

을구 순위 1번 임차권등기(2023.08.30.제90115호) 있음.(임대차보증금 205,000,000원, 전입일자 2021.08.25. 확정일자 2021.08.10.) 배당에서 보증금이 전액 변제되지 아니하면 잔액을 매수인이 인수함.

물건 비고(매각 명세서)

신정더렉스 관리사무소의 "현재 공실 세대, 소유자 또는 입주하는 세대 경매받을 시 미납관리비 완납 후 입주하셔야 합니다."라는 문구의 안내문이 현관문에 붙어 있어, 응찰시 이에 대한 확인요함(감정평가서에 첨부된 현관 사진용지 참조).

임차인현황

임차인 보증금/차임 전입/확정/배당 대항력
박슬기
(주거 임차권자)
점유부분:
건물의 제7층의 제702호 69.3894㎥ 전부
보증:
205,000,000
차임:
-
전입: 2021-08-25
확정: 2021-08-10
배당: -
있음
(인수유의)

현황 조사서

조사일시

2024년05월31일10시43분

부동산의 현황

본건 부동산은 울산 남구 신정동 소재 울산광역시청 북측 인근한 더렉스 702호임.

점유 조사

[목록1]본건 부동산은 폐문부재로 점유자 조사불가하여 ①행정복지센터에 전입세대 열람한 바, 전입세대 없음(전입세대확인서 내역 첨부함).
②관할세무서에 상가건물임대차현황서 열람한 바, 해당사항 없음(상가건물 임대차현황서 첨부함).

미납관리비 조사내역

확인일자 미납금액 관리소번호 메모

※ 해당 정보는 참고용으로 제공되며 입찰 전 반드시 관리사무소를 통해 직접 확인하시기 바랍니다.

시세

전문가

그외

관할법원 관할법원 (입찰장소)

울산지방법원 본원

경매5계 : 052-216-8000

울산 남구 옥동 1415 주소복사

Q&A Q&A

Q. 대법원경매가 무엇인가요?누구나 입찰에 참여할 수 있나요?

경매채무자(빌린 자)가 채무를 갚지 않았을 때 채권자(빌려준 자)의 신청으로 대법원이 채무자의 재산을 대신 매각하는 과정을 말합니다.

법원은 감정인에게 자산을 평가하게 한 후, 최저가를 정하여 그 금액 이상으로 입찰한 입찰자 중 최고가 매수인을 결정합니다.

대법원의 주관하에 국민 모두가 참여할 수 있습니다.

Q. 경매 입찰은 어떻게 하나요?누구나 입찰에 참여할 수 있나요?

1. 입찰하시고자 하는 경매물건을 정하신 후, 입찰하시고자 하는 입찰가를 최저가 이상으로 정합니다.

2. 해당 물건의 매각기일에 직접 관할법원에 방문하셔서 법원내에 비치된 입찰서를 작성하신 후 입찰하시면 됩니다.

TIP! 법원에 가실 때에는 입찰보증금(최저가의 10~30%)과 신분증을 지참하여 방문하세요.

Q. 용어가 너무 어려워서 내용을 이해하기 어려워요누구나 입찰에 참여할 수 있나요?

매각기일
매각기일은 경매 법원이 부동산에 대하여 매각 입찰을 진행하는 날을 말합니다.

유찰
매각 기일에 매수하고자 하는 사람이 없어 매각되지 않아 무효가 되는 것을 유찰이라고 합니다.

최저 매각 가격
최초 경매를 진행할때 감정인이 평가한 가격을 기준으로 책정한 금액이며 입찰자는 최저 매각 가격과 동일하거나 이상의 금액으로 입찰해야 합니다. 매각 기일에 있어 입찰자가 없어 유찰되면 통상 20~30% 저감된 금액이 다음 최저 매각 가격이 됩니다.

매수 보증금
경매 물건을 매수하고자 하는사람은 최저 매각 가격의 10분의 1(다르게 정해질 수 있음)에 해당하는 보증금액을 입찰표와 함께 집행관에게 제출하는 방법으로 제공합니다. 매각 절차가 종결된 후 집행관은 최고가 매수신고인이나 차순위매수신고인 이외의 매수신청인에게는 즉시 매수 보증금을 반환해 줍니다.

더 많은 내용을 알고 싶다면 경매마당 학습하기 코너에 준비된 용어설명을 이용해보세요.

경매정보는 법원자료와 일치하도록 하였으나 권리사항변동, 입력착오 등의 원인으로 사실과 다를 수 있습니다. 이용약관에 의거 면책조건으로 제공됨을 알리며, 경매입찰시 반드시 관련 공부를 재확인하시기 바랍니다.

PC버전으로 보기