알림

알림 내역

알림 신청내역/취소

대법원
물건내역
사건내역
기일내역
송달내역
현황조사
지도
사진보기
문서
매각기일공고문
매각물건명세서
감정평가서 M
등기부등본
전입세대열람원 M
건축물대장 M
분석
예상배당표 M
수익률분석 M
입찰가분석 M
조회수분석 M
인근지역통계 M
사이트
대법원
국토부 실거래가
토지이음
아실
네이버 단지정보
네이버 매물정보
호갱노노
부동산플래닛
로고 창원지방법원 진주지원 [경매4계] 2024타경442[2]
경상남도 남해군 상주면 남해대로675번길 14-4

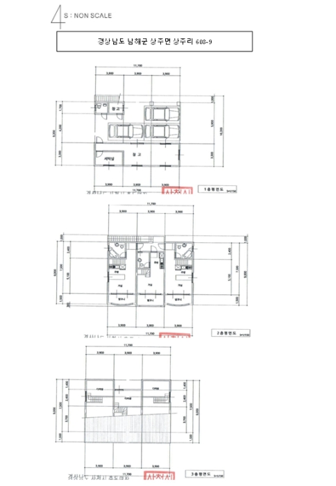
경남 남해군 상주면 상주리 608-9

주소복사
경매구분 임의경매
용도 다가구
토지 206㎡(62.32평)
건물 166.55㎡(50.38평)
감정가 325,335,500원
최저가 166,571,000원
보증금 33,314,200원 (20%)
청구액 439,986,958원
개시결정 2024년 01월 23일
감정일 2024년 02월 08일
배당종기 2024년 04월 17일
매각일 2025년 10월 13일
2024타경442[2]
2024타경442[2]
2024타경442[2]
2024타경442[2]
2024타경442[2]
2024타경442[2]
2024타경442[2]
2024타경442[2]
2024타경442[2]
2024타경442[2]
2024타경442[2]
2024타경442[2]
2024타경442[2]
2024타경442[2]
2024타경442[2]
2024타경442[2]
2024타경442[2]
2024타경442[2]
2024타경442[2]
2024타경442[2]
2024타경442[2]
감정가
3억2533만5500원
522만403원/평 (토지)
낙찰가 47%
1억7320만원
배당종결 2025년 10월 13일
유찰 3회재매각
유찰 3회재매각
경매구분 임의경매
용도 다가구
토지 206㎡(62.32평)
건물 166.55㎡(50.38평)
감정가 325,335,500원
최저가 166,571,000원
보증금 33,314,200원 (20%)
청구액 439,986,958원
개시결정 2024년 01월 23일
감정일 2024년 02월 08일
배당종기 2024년 04월 17일
매각일 2025년 10월 13일
배당종결 2025년 10월 13일

당사자 내역

채무자겸소유자 박OOOOOOOOOOOOOOOOO
채무자겸소유자 박OOO
채권자 케OOOOOOOOOOOOOOOOOOOOOOOOOO
가압류권자 남OO
가압류권자 송OO
가압류권자 송OO
가압류권자 박OO
가압류권자 조OO
가압류권자 유OO
배당요구권자 백OO
가압류권자 이OO
가압류권자 곽OO
가압류권자 문OO
가압류권자 황OO
가압류권자 이OO
가압류권자 진OO
가압류권자 신OOOOOOOO
가압류권자 백OO
근저당권자 남OOOOOOO
가압류권자 김OO

기일 내역

2025.11.14(16:00)
납부
2025.10.20(14:00)
최고가매각허가결정
2025.10.13(10:00)
1억7320만원 매각
1억6657만1000원 최저가
2025.08.25(10:00)
2억821만4000원 유찰
2025.06.30(16:00)
미납
2025.05.19(14:00)
최고가매각허가결정
2025.05.12(10:00)
2억5500만원 매각
2억821만4000원 최저가
2025.03.31(10:00)
2억6026만8000원 유찰
2025.02.17(10:00)
3억2533만5500원 유찰

매각공고

물건 비고(공고문)

-일괄매각 -목록4. 현황 '펜션'임

물건 비고(매각 명세서)

-일괄매각
-목록4. 현황 '펜션'임

점유 조사(현황 조사서)

[목록4]1. 본건 전입세대 열람결과 내역없음.
2. 본건 상가건물 임대차 현황서 열람결과 내역없음.
3. 문인혜(박애연(채무자의 며느리)) 면담함.

매각결과+

매각일자 / 결과 응찰자수 최고가 금액/응찰자명 차순위 금액

가장 빠른 경매 정보 플랫폼 경매마당
남들보다 먼저 정보를 선점하세요

간단한 로그인 후 바로 이용 가능합니다

bolt 대법원 보다 빠른 물건 정보
verified 가장 많은 경매 물건 제공
trending_up 월 5회 등기부 무료 열람

현황정보

매각목록

부동산 현황

1) 위치 및 주위환경 본건은 경상남도 남해군 상주면 상주리 소재 "상주중학교" 북서측 인근에 위치하며, 주위는 관광지로 해수욕장과 주변 상가 및 기존 농촌취락 등으로 형성되어 있음. 2) 교통상황 차량진입이 가능하고, 주변에 국도 19호선이 위치하고 있어 제반 대중교통사정은 보통임. 3) 형태 및 이용상태 기호(1) : 부정형의 평지로, 단독주택(팬션) 부지로 이용중임. 기호(3) : 사다리형의 평지로, 단독주택(다가구주택)(팬션) 부지로 이용중임. 4) 인접 도로상태 기호(1),(3) 공히 북동측으로 노폭 약 4미터의 도로와 접함. 5) 토지이용계획 및 제한상태 기호(1),(3) : 계획관리지역, 자연취락지구, 가축사육제한구역(모든축종 제한)<가축분뇨의 관리 및 이용에 관한 법률>, 상대보호구역<교육환경보호에 관한 법률>, 하수처리구역<하수도법>. 6) 제시목록 외의 물건 없음. 7) 공부와의 차이 없음. 8) 기타참고사항(임대관례 및 기타) 1)임대관계 : 미상임. 2)기 타 : 없음. 1) 건물의 구조 기호(2) 철근콘크리트구조 콘크리트평슬래브지붕 3층 단독주택으로,(사용승인일:2011.9.7) 외벽 : 몰탈위페인트 마감 내벽 : 벽지 및 일부 타일마감 바닥 : 장판지 및 일부타일 마감 창호 : 하이샤시 창호임. 기호(4) 철근콘크리트구조 콘크리트경사슬래브지붕 3층 단독주택(다가구주택)으로,(사용승인일:2011.9.7) 외벽 : 몰탈위페인트 마감 내벽 : 벽지 및 일부 타일마감 바닥 : 장판지 및 일부타일 마감 창호 : 하이샤시 창호임. 2) 이용상태 기호(2), (4) 공히 팬션으로 이용중임. 3) 설비내역 기호(2), (4) 공히 제반 급배수설비 및 위생설비, 냉난방설비 등이 갖추어져 있음. 4) 부합물 및 종물 기호(2) 건물의 옥상 계단실은 기호(2) 건물에 포함하여 평가하였음. 5) 공부와의 차이 기호(2), (4) 건물의 이용상황이 의뢰목록상 단독주택이나, 현황 팬션으로 이용중임. 6) 기타참고사항(임대관례 및 기타) 1)임대관계 : 미상임. 2)기 타 : 없음.

주변 입주 예정

거리 단지명 공급년월 세대 수
※ 해당 자료는 한국부동산원 청약홈 자료에 근거하며, 인근 5km 이내의 물건을 기준으로 산정되었습니다.

등기

등기부현황

채권합계 885,000,000원(6건)
등기일자 권리종류 권리자/채권액 권리
2013-07-12
(을2)
근저당권설정 남OOOOOOO OO
말소기준 등기 650,000,000원
2019-06-25
소유자 박OOOOOOOO OO
단독소유 -
2019-06-26
(을2-2)
근저당권변경 OO
- 540,000,000원
2025-01-23
(을2-3)
근저당권이전 케OOOOOOOOOOOO OO
- -
2024-01-23
(갑4)
임의경매개시결정
(2024타경442)
남OOOOOOO OO
경매기입 등기 439,986,958원
2024-01-31
(갑5)
가압류 김OO OO
- 90,000,000원
2024-02-06
(갑6)
가압류 진OO OO
- 50,000,000원
2024-03-06
(갑7)
가압류 이OO OO
- 45,000,000원
2024-03-11
(갑8)
가압류 황OO OO
- 100,000,000원
2024-03-13
(갑9)
가압류 문OO OO
- 60,000,000원
더보기
※ 신규 발급등기의 분석자료 반영에는 최대 1일까지 소요될수 있습니다.(등기분석,임차인분석,분석노트 등)

임차인

매각물건 명세서

구분 법원 사건번호 작성일자 매각명세서
1 진주지원 2024타경442[2] 2025. 7. 3.
2 진주지원 2024타경442[2] 2024.12.02
구분 법원/
사건번호
작성일자 매각명세서
1 진주지원
2024타경442[2]
2025. 7. 3.
2 진주지원
2024타경442[2]
2024.12.02

물건 비고(매각 명세서)

-일괄매각
-목록4. 현황 '펜션'임

임차인현황

임차인 보증금/차임 전입/확정/배당 대항력
매각물건명세서상 임차인이 존재하지 않습니다.

현황 조사서

조사일시

2024년02월07일14시49분

부동산의 현황

-

점유 조사

[목록4]1. 본건 전입세대 열람결과 내역없음.
2. 본건 상가건물 임대차 현황서 열람결과 내역없음.
3. 문인혜(박애연(채무자의 며느리)) 면담함.

미납관리비 조사내역

확인일자 미납금액 관리소번호 메모

※ 해당 정보는 참고용으로 제공되며 입찰 전 반드시 관리사무소를 통해 직접 확인하시기 바랍니다.

시세분석

인근 낙찰사례

기타

전문가

관할법원 (입찰장소)

창원지방법원 진주지원

경매4계 : 055-760-3300

경남 진주시 신안동 884-1 주소복사

Q&A

Q. 대법원경매가 무엇인가요?누구나 입찰에 참여할 수 있나요?

경매채무자(빌린 자)가 채무를 갚지 않았을 때 채권자(빌려준 자)의 신청으로 대법원이 채무자의 재산을 대신 매각하는 과정을 말합니다.

법원은 감정인에게 자산을 평가하게 한 후, 최저가를 정하여 그 금액 이상으로 입찰한 입찰자 중 최고가 매수인을 결정합니다.

대법원의 주관하에 국민 모두가 참여할 수 있습니다.

Q. 경매 입찰은 어떻게 하나요?누구나 입찰에 참여할 수 있나요?

1. 입찰하시고자 하는 경매물건을 정하신 후, 입찰하시고자 하는 입찰가를 최저가 이상으로 정합니다.

2. 해당 물건의 매각기일에 직접 관할법원에 방문하셔서 법원내에 비치된 입찰서를 작성하신 후 입찰하시면 됩니다.

TIP! 법원에 가실 때에는 입찰보증금(최저가의 10~30%)과 신분증을 지참하여 방문하세요.

Q. 용어가 너무 어려워서 내용을 이해하기 어려워요누구나 입찰에 참여할 수 있나요?

매각기일
매각기일은 경매 법원이 부동산에 대하여 매각 입찰을 진행하는 날을 말합니다.

유찰
매각 기일에 매수하고자 하는 사람이 없어 매각되지 않아 무효가 되는 것을 유찰이라고 합니다.

최저 매각 가격
최초 경매를 진행할때 감정인이 평가한 가격을 기준으로 책정한 금액이며 입찰자는 최저 매각 가격과 동일하거나 이상의 금액으로 입찰해야 합니다. 매각 기일에 있어 입찰자가 없어 유찰되면 통상 20~30% 저감된 금액이 다음 최저 매각 가격이 됩니다.

매수 보증금
경매 물건을 매수하고자 하는사람은 최저 매각 가격의 10분의 1(다르게 정해질 수 있음)에 해당하는 보증금액을 입찰표와 함께 집행관에게 제출하는 방법으로 제공합니다. 매각 절차가 종결된 후 집행관은 최고가 매수신고인이나 차순위매수신고인 이외의 매수신청인에게는 즉시 매수 보증금을 반환해 줍니다.

더 많은 내용을 알고 싶다면 경매마당 학습하기 코너에 준비된 용어설명을 이용해보세요.

경매정보는 법원자료와 일치하도록 하였으나 권리사항변동, 입력착오 등의 원인으로 사실과 다를 수 있습니다. 이용약관에 의거 면책조건으로 제공됨을 알리며, 경매입찰시 반드시 관련 공부를 재확인하시기 바랍니다.

PC버전으로 보기