알림

알림 내역

알림 신청내역/취소

로고 광주지방법원 본원 [경매3계] 2021타경778
전라남도 나주시 봉황면 만년동길 84-7 외 3 필지

전남 나주시 봉황면 만봉리 514-34

주소복사
경매구분 강제경매
용도 단독주택
토지 721㎡(218.1평)
건물 162.63㎡(49.2평)
감정가 290,414,600원
최저가 203,290,000원
보증금 20,330,000원 (10%)
청구액 17,111,780원
접수일 2021년 01월 25일
개시결정 2021년 01월 26일
감정일 2021년 02월 08일
매각일 2021년 09월 02일
2021타경778
2021타경778
2021타경778
2021타경778
2021타경778
2021타경778
2021타경778
2021타경778
2021타경778
2021타경778
2021타경778
2021타경778
2021타경778
2021타경778
2021타경778
2021타경778
2021타경778
2021타경778
2021타경778
2021타경778
2021타경778
2021타경778
2021타경778
2021타경778
감정가
2억9041만4600원
낙찰가 3%
3억원
배당종결 2021년 09월 02일
유찰 1회
유찰 1회
경매구분 강제경매
용도 단독주택
토지 721㎡(218.1평)
건물 162.63㎡(49.2평)
감정가 290,414,600원
최저가 203,290,000원
보증금 20,330,000원 (10%)
청구액 17,111,780원
접수일 2021년 01월 25일
개시결정 2021년 01월 26일
감정일 2021년 02월 08일
매각일 2021년 09월 02일
배당종결 2021년 09월 02일

당사자 내역

채무자겸소유자 정OO
채권자 신OOOOOOOO
근저당권자 봉OOOOOOO
근저당권자 광OOOOOOOOOO

기일 내역

2021.10.19
납부 (2021.10.19)
2021.10.07
기한변경
2021.09.09
최고가매각허가결정
2021.09.02
3억원 매각
2억329만원 최저가
2021.07.22
2억9041만4600원 유찰

물건 비고(공고문)

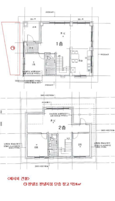
- 일괄매각 - 제시외 건물 매각 포함 - 물건1 지상 소재 석축, 조경시설(조경수, 조경석 등), 수영장, 태양광설비, 정자, 우물, 연못, 테라스, 데크 등(토지 및 건물에 포함하여 평가됨) 각 매각 포함

물건 비고(매각 명세서)

- 일괄매각
- 제시외 건물 매각 포함
- 물건1 지상 소재 석축, 조경시설(조경수, 조경석 등), 수영장, 태양광설비, 정자, 우물, 연못, 테라스, 데크 등(토지 및 건물에
포함하여 평가됨) 각 매각 포함

점유 조사(현황 조사서)

[목록5]현황조사 보고일시와 같이 현장을 방문하였으나 채무자 및 점유자를 만날 수 없어 점유여부 및 임대차관계, 제시외건물 소유관계여부 알수없음. 주민등록전입세대를 열람한 바 전입자 없음.

매각결과+

매각일자 / 결과 응찰자수 최고가 금액/응찰자명 차순위 금액
부동산
등기
임차인
그 외

부동산

매각목록

※ 건축물 도면은 ‘건축물 대장의 기재 및 관리에 관한 규칙’ 에 따라 현재 경매가 진행중인 물건에만 제공됩니다.
※ 지분물건의 경우 면적은 지분에 해당하는 면적이 아닌 전체 면적으로 표기됩니다

감정평가

감정평가서 요약

1.토지감정요항표 1) 위치 및 주위환경 본건은 전라남도 나주시 봉황면 만봉리 소재 "만련전원마을" 내에 위치하며, 주위는 전원주택, 주거나지 등이 혼재하는 전원주택지대임. 2) 교통상황 본건까지 차량접근 가능하나. 대중교통 등 제반교통사정은 다소 불편시됨. 3) 형태 및 이용상태 북동측 하향의 완경사지대에 부지조성된 4필지 일단의 사다리형 토지로서 단독주택 건부지로 이용중임. 4) 인접 도로상태 동측으로 노폭 약 6미터 내외의 포장도로와 접함. 5) 토지이용계획 및 제한상태 기호 1-4 공히 계획관리지역, 자연취락지구, 가축사육제한구역(200m제한구역_그밖의 가축)<가축분뇨의 관리 및 이용에 관한 법률>임. 6) 제시목록 외의 물건 해당사항 없음. 7) 공부와의 차이 해당사항 없음. 8) 기타참고사항(임대관례 및 기타) 미상 및 해당사항 없음. 2.건물감정평가요항표 1) 건물의 구조 철근콘크리트구조 기와잇기지붕 2층 건룰로서(사용승인일 : 2014년 8월 20일) 외벽 : 치장벽돌쌓기 등 마감. 내벽 : - 창호 : 샤시 창호임. 2) 이용상태 주택으로 이용중임.(후첨 <내부구조도> 참조) 3) 설비내역 위생 및 급배수설비, 난방설비 등 되어있음. 4) 부합물 및 종물 후첨 <지적 및 건물개황도> 참조. 5) 공부와의 차이 해당사항 없음. 6) 기타참고사항(임대관례 및 기타) 미상 및 해당사항 없음.

주변 입주 예정

거리 단지명 공급년월 세대 수
※ 해당 자료는 한국부동산원 청약홈 자료에 근거하며, 인근 5km 이내의 물건을 기준으로 산정되었습니다.

등기

등기부현황

채권합계 204,820,000원(3건)
등기일자 권리종류 권리자/채권액 권리
2014-08-27
(을1)
근저당권설정 봉황농업협동조합 소멸
말소기준 등기 60,000,000
2016-07-27
소유자 정찬흥 (소유자)
단독소유 -
2017-03-02
(을8)
근저당권설정 광주웨슬리신용협동조합 소멸
- 123,500,000
2020-04-20
(갑3)
가압류 신한카드주식회사 소멸
- 21,324,214
2021-01-26
(갑4)
강제경매개시결정
(2021타경778)
신한카드주식회사 소멸
경매기입 등기 17,111,780원
더보기 더보기
※ 신규 발급등기의 분석자료 반영에는 최대 1일까지 소요될수 있습니다.(등기분석,임차인분석,분석노트 등)

임차인

매각물건 명세서

구분 법원 사건번호 작성일자 매각명세서
1 광주지법 2021타경778[1] 2021.05.17
구분 법원/
사건번호
작성일자 매각명세서
1 광주지법
2021타경778[1]
2021.05.17

물건 비고(매각 명세서)

- 일괄매각
- 제시외 건물 매각 포함
- 물건1 지상 소재 석축, 조경시설(조경수, 조경석 등), 수영장, 태양광설비, 정자, 우물, 연못, 테라스, 데크 등(토지 및 건물에
포함하여 평가됨) 각 매각 포함

임차인현황

임차인 보증금/차임 전입/확정/배당 대항력
매각물건명세서상 임차인이 존재하지 않습니다.

현황 조사서

조사일시

2021년02월04일11시25분 / 2021년02월18일14시15분 / 2021년02월24일15시30분 / 2021년03월04일13시15분 / 2021년04월02일10시50분

부동산의 현황

-

점유 조사

[목록5]현황조사 보고일시와 같이 현장을 방문하였으나 채무자 및 점유자를 만날 수 없어 점유여부 및 임대차관계, 제시외건물 소유관계여부 알수없음. 주민등록전입세대를 열람한 바 전입자 없음.

미납관리비 조사내역

확인일자 미납금액 관리소번호 메모

※ 해당 정보는 참고용으로 제공되며 입찰 전 반드시 관리사무소를 통해 직접 확인하시기 바랍니다.

시세

전문가

그외

관할법원 관할법원 (입찰장소)

광주지방법원 본원

경매3계 : 062-239-1114

광주 동구 지산동 342-1 주소복사

Q&A Q&A

Q. 대법원경매가 무엇인가요?누구나 입찰에 참여할 수 있나요?

경매채무자(빌린 자)가 채무를 갚지 않았을 때 채권자(빌려준 자)의 신청으로 대법원이 채무자의 재산을 대신 매각하는 과정을 말합니다.

법원은 감정인에게 자산을 평가하게 한 후, 최저가를 정하여 그 금액 이상으로 입찰한 입찰자 중 최고가 매수인을 결정합니다.

대법원의 주관하에 국민 모두가 참여할 수 있습니다.

Q. 경매 입찰은 어떻게 하나요?누구나 입찰에 참여할 수 있나요?

1. 입찰하시고자 하는 경매물건을 정하신 후, 입찰하시고자 하는 입찰가를 최저가 이상으로 정합니다.

2. 해당 물건의 매각기일에 직접 관할법원에 방문하셔서 법원내에 비치된 입찰서를 작성하신 후 입찰하시면 됩니다.

TIP! 법원에 가실 때에는 입찰보증금(최저가의 10~30%)과 신분증을 지참하여 방문하세요.

Q. 용어가 너무 어려워서 내용을 이해하기 어려워요누구나 입찰에 참여할 수 있나요?

매각기일
매각기일은 경매 법원이 부동산에 대하여 매각 입찰을 진행하는 날을 말합니다.

유찰
매각 기일에 매수하고자 하는 사람이 없어 매각되지 않아 무효가 되는 것을 유찰이라고 합니다.

최저 매각 가격
최초 경매를 진행할때 감정인이 평가한 가격을 기준으로 책정한 금액이며 입찰자는 최저 매각 가격과 동일하거나 이상의 금액으로 입찰해야 합니다. 매각 기일에 있어 입찰자가 없어 유찰되면 통상 20~30% 저감된 금액이 다음 최저 매각 가격이 됩니다.

매수 보증금
경매 물건을 매수하고자 하는사람은 최저 매각 가격의 10분의 1(다르게 정해질 수 있음)에 해당하는 보증금액을 입찰표와 함께 집행관에게 제출하는 방법으로 제공합니다. 매각 절차가 종결된 후 집행관은 최고가 매수신고인이나 차순위매수신고인 이외의 매수신청인에게는 즉시 매수 보증금을 반환해 줍니다.

더 많은 내용을 알고 싶다면 경매마당 학습하기 코너에 준비된 용어설명을 이용해보세요.

경매정보는 법원자료와 일치하도록 하였으나 권리사항변동, 입력착오 등의 원인으로 사실과 다를 수 있습니다. 이용약관에 의거 면책조건으로 제공됨을 알리며, 경매입찰시 반드시 관련 공부를 재확인하시기 바랍니다.

PC버전으로 보기