알림

알림 내역

알림 신청내역/취소

로고 광주지방법원 본원 [경매10계] 2023타경63193
전라남도 나주시 금천면 원곡길 209 외 3 필지 외 1개 동

전남 나주시 금천면 촌곡리 507-9

주소복사
경매구분 임의경매
용도 공장
토지 5965㎡(1804.41평)
건물 3192.73㎡(965.8평)
감정가 1,954,230,750원
최저가 560,318,000원
보증금 56,031,800원 (10%)
청구액 1,114,164,858원
개시결정 2023년 02월 27일
감정일 2023년 03월 15일
배당종기 2023년 05월 22일
매각일 2026년 03월 27일
2023타경63193
2023타경63193
2023타경63193
2023타경63193
2023타경63193
2023타경63193
2023타경63193
2023타경63193
2023타경63193
2023타경63193
2023타경63193
2023타경63193
2023타경63193
2023타경63193
2023타경63193
2023타경63193
2023타경63193
2023타경63193
2023타경63193
2023타경63193
2023타경63193
2023타경63193
2023타경63193
2023타경63193
2023타경63193
2023타경63193
2023타경63193
2023타경63193
2023타경63193
2023타경63193
2023타경63193
2023타경63193
2023타경63193
2023타경63193
2023타경63193
2023타경63193
2023타경63193
2023타경63193
2023타경63193
2023타경63193
2023타경63193
2023타경63193
2023타경63193
2023타경63193
2023타경63193
2023타경63193
2023타경63193
2023타경63193
2023타경63193
2023타경63193
2023타경63193
2023타경63193
2023타경63193
2023타경63193
2023타경63193
2023타경63193
2023타경63193
2023타경63193
2023타경63193
2023타경63193
2023타경63193
2023타경63193
2023타경63193
2023타경63193
2023타경63193
2023타경63193
2023타경63193
2023타경63193
2023타경63193
2023타경63193
2023타경63193
2023타경63193
2023타경63193
2023타경63193
2023타경63193
2023타경63193
2023타경63193
2023타경63193
2023타경63193
2023타경63193
2023타경63193
2023타경63193
감정가
19억5423만750원
최저가 71%
5억6031만8000원
공고 2026년 03월 27일 입찰 D-92일
유찰 5회농지취득자격증명선순위임차인
유찰 5회농지취득자격증명선순위임차인
경매구분 임의경매
용도 공장
토지 5965㎡(1804.41평)
건물 3192.73㎡(965.8평)
감정가 1,954,230,750원
최저가 560,318,000원
보증금 56,031,800원 (10%)
청구액 1,114,164,858원
개시결정 2023년 02월 27일
감정일 2023년 03월 15일
배당종기 2023년 05월 22일
매각일 2026년 03월 27일
공고 2026년 03월 27일 입찰 D-92일

당사자 내역

채무자겸소유자 주OO
채권자 목OOOOOOOOOOOO
가압류권자 농OOOOOOOOOOOOOOOOOOOOOOOOO
교부권자 나OO
교부권자 목OOOO
교부권자 나OOOO
가압류권자 농OOOOOOOOOOOOOOOOOOOOOOOOOO
가압류권자 농OOOOOOOO
가압류권자 주OOOOOOOOOOOOOOO
가압류권자 기OOOOOOO
가압류권자 농OOOOOOOO
임차인 김OO
가압류권자 농OOOOOOOOOOOOOOOOOOOOOOOO
가압류권자 목OOOOOOOOOOOO
가압류권자 농OOOOOOOOOOOOOOOOOOOOOOOOOO
가압류권자 농OOOOOOOO
가압류권자 농OOOOOOOOOOOOOOOOOOOOOOOOOO
가압류권자 주OOOOOOOO
임차인 조OO
임차인 초OOOOOOO
가압류권자 농OOOOOOOO

기일 내역

2026.03.27(10:00)
5억6031만8000원 진행
2026.01.09(10:00)
기일변경
2025.11.21(10:00)
7억39만7000원 유찰
2025.10.17(10:00)
8억7549만6000원 유찰
2025.08.29(10:00)
10억9437만원 유찰
2025.07.18(10:00)
13억6796만2000원 유찰
2025.06.05(10:00)
19억5423만750원 유찰

물건 비고(공고문)

- 일괄매각(제시외 건물 포함) - 목록4~6에 있는 자연석화단 및 정원수 매각에 포함 - 대부분의 기계기구를 철거 이전하여 소재불명인 상태이며 철거하고 일부 남아있는 기계기구(기계기구목록 일련번호 8번 보일러, 20번 소형살균기, 27번 자동포장기 4개 중 1개) 역시 내용년수가 경과하여 재사용이 어려울 것으로 보여 잔존가치 등으로 감정평가함 - 기계기구목록 일련번호 30번 생육실환기 Pan Model: DWN-16DRZ 90ea는 전 담보감정평가시 사진과 현 부착 기계기구가 동일한 것으로 보이는바 현재 부착된 (주)만승전기 제작의 Model MVD-150 66ea를 기준으로 감정평가함 - 목록 3은 농지취득자격증명이 필요하며(미제출시 매수신청보증금 물수함), 전용허가 없이 건축하여 원상회복명령이 발하여질 가능성 있음(2025. 03.11.자 나주시 금천면의 사실조회 회신 참조)

임차인(매각 명세서)

- 김희순: 조치형의 동거인임 - 초성영농조합법인: 채무자가 초성영농조합법인의 대표이사임

인수되는 권리/가처분(매각 명세서)

해당사항없음

지상권(매각 명세서)

해당사항없음

물건 비고(매각 명세서)

- 일괄매각(제시외 건물 포함)- 목록4~6에 있는 자연석화단 및 정원수 매각에 포함- 대부분의 기계기구를 철거 이전하여 소재불명인 상태이며 철거하고 일부 남아있는 기계기구(기계기구목록 일련번호 8번 보일러, 20번 소형살균기, 27번 자동포장기 4개 중 1개) 역시 내용년수가 경과하여 재사용이 어려울 것으로 보여 잔존가치 등으로 감정평가함- 기계기구목록 일련번호 30번 생육실환기 Pan Model: DWN-16DRZ 90ea는 전 담보감정평가시 사진과 현 부착 기계기구가

점유 조사(현황 조사서)

[목록1]현황장소 보고일시와 같이 현장에 방문하였으나 채무자 및 점유자를 만날수 없어 점유관계등은 알수 없음. 제시외건물은 소유자의 소유임. 상가건물임대차 현황서 등재된 초성영농조합법인 임대차관계등은 알수없음. 개문하여 내부확인한바 저당물건중 8번,20번,30번,36번만 현장에서 확인되고 나머지 기계기구는 소재불명함.
[목록2]현황장소 보고일시와 같이 현장에 방문하였으나 채무자 및 점유자를 만날 수 없어 권리신고 안내서를 문틈에 끼워두었으나 연락 없음. 제시외건물은 소유자의 소유임. 주민등록 전입세대 확인한바 조치형 전입되어 있으나 점유여부등은 알수 없음.
[목록3]현황장소 보고일시와 같이 현장에 방문하였으나 채무자 및 점유자를 만날수 없어 점유관계등은 알수 없음.
[목록4]현황장소 보고일시와 같이 현장에 방문하였으나 채무자 및 점유자를 만날수 없어 점유관계등은 알수 없음.
[목록5]현황장소 보고일시와 같이 현장에 방문하였으나 채무자 및 점유자를 만날수 없어 점유관계등은 알수 없음.
[목록6]현황장소 보고일시와 같이 현장에 방문하였으나 채무자 및 점유자를 만날수 없어 점유관계등은 알수 없음.

매각결과+

매각일자 / 결과 응찰자수 최고가 금액/응찰자명 차순위 금액
부동산
등기
임차인
그 외

부동산

매각목록

부동산 현황

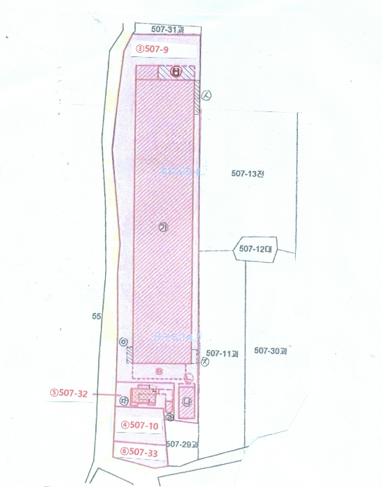
1) 위치 및 부근의 상황 본건은 전라남도 나주시 금천면 촌곡리 소재 본촌마을 북측 인근에 위치하며 주변은 농가마을과 과수원 등 농경지로 형성된 농촌지대임. 2) 토지의 상황 가.형태 및 이용상황 기호3-6 토지가 상호 연접된 평지로, 기호3 토지는 버섯재배사부지, 기호4-6 토지는 주거용건물 부지로 이용함. 나.인접 도로상태 기호3-6 토지의 서측으로 폭 4-5미터 가량의 골목길과 접함. 다.토지이용계획 및 공법상 제한상태 기호3,5: 농림지역, 가축사육제한구역, 비행안전제3구역, 농업진흥구역. 기호4,6: 계획관리지역, 자연취락지구, 가축사육제한구역, 비행안전제3구역, 농업진흥 구역. 라.기호4-6 지상에 자연석화단과 철죽, 소나무, 종려, 동백, 봉숭아 등의 정원수가 식재 되어 있어 평가함. 3) 건물의 구조 및 현상 기호(1-가): 일반철골구조 판넬지붕 단층(층고 약 6m)으로, 내,외벽: 판넬마감, 바닥: 콘크리트 마감 등, 버섯재배사 등으로 이용하였으나 현재 공실상태임. 기호(1-나): 경량철골구조 판넬지붕 단층으로, 외벽: 판넬마감, 내벽: 벽지 등, 창호: 새시창호, 관리사(직원숙소)로 이용하였음. 기호(2-다): 벽돌조 슬래브지붕 2층으로, 외벽: 적연와 치장쌓기, 내벽: 벽지 등, 창호: 새시창호, 위생 및 난방설비 등, 주택(직원숙소)으로 이용하였으나 현재는 임대중인 것으로 탐문됨. 기호(2-라): 시멘트벽돌조 슬래브지붕 단층으로, 외벽: 세멘몰탈위 페인팅, 내벽: 벽지 등, 창호: 새시창호, 난방설비 등, 주택(직원숙소)으로 이용하였음. (제시외건물) 별지 지적 및 건물개황도에 도시한 바와같이 기호3 지상에 기호(ㅁ)-(ㅈ)건물이 소재 하고 기호4-6 지상에 기호(ㄱ)-(ㄹ)건물이 소재함. ※기호(2-다) 건물만 거주(임대로 탐문됨)하고 나머지 건물은 모두 약 2년전부터 비어 있는 상태임. 4) 기계/기구의 현상 -기호(1-가)건물 내외에 버섯재배 등에 필요한 설비가 있었으나 약 2년전에 가동을 중단 하고 대부분의 기계기구를 철거 이전하여 소재불명인 상태이며 철거하고 일부 남아있는 기계기구 역시 모두 내용년수가 경과되어 재사용이 어려울 것으로 보여 잔존가치 등으로 평가함, -기계기구 기호30 생육실환기 Pan Model DWN-160DRZ×90ea는 전 담보감정평가시 사진과 현 부착 기계기구가 동일한 것으로 보이는바 현재 부착된 (주)만승전기 제작의 Model MVD-150×66ea를 기준으로 평가함. 5) 공작물의 현상 없 음. 6) 기타참고사항 --.

감정평가

주변 입주 예정

거리 단지명 공급년월 세대 수
※ 해당 자료는 한국부동산원 청약홈 자료에 근거하며, 인근 5km 이내의 물건을 기준으로 산정되었습니다.

등기

등기부현황

채권합계 2,586,590,000원(13건)
등기일자 권리종류 권리자/채권액 권리
2007-10-19
소유자 주태균 (소유자) 멤버십
단독소유 -
2009-07-03
(을8)
근저당권설정 목포무안신안축산업협동조합 멤버십
말소기준 등기 1,430,000,000원
2023-01-13
(갑6)
가압류 주식회사우정통상 멤버십
- 131,036,112원
2023-02-08
(갑7)
가압류 농업협동조합중앙회농림수산업자신용보증기금관리기관 멤버십
- 261,645,532원
2023-02-08
(갑8)
가압류 농협은행주식회사 멤버십
- 46,172,741원
2023-02-08
(갑9)
가압류 농림수산업자신용보증기금관리기관농업협동조합중앙회 멤버십
- 85,714,279원
2023-02-08
(갑10)
가압류 목포무안신안축산업협동조합 멤버십
- 35,594,294원
2023-02-27
(갑11)
가압류 기술보증기금 멤버십
- 368,000,000원
2023-02-27
(갑12)
임의경매개시결정
(2023타경63193)
목포무안신안축산업협동조합 멤버십
경매기입 등기 1,114,164,858원
2023-02-28
(갑13)
가압류 주식회사한국스탠다드차타드은행 멤버십
- 44,786,218원
2023-03-07
(갑14)
가압류 무안농업협동조합 멤버십
- 40,719,848원
2023-03-07
(갑15)
가압류 농림수산업자신용보증기금관리기관농업협동조합중앙회 멤버십
- 25,213,231원
2023-03-17
(갑16)
가압류 농협은행주식회사 멤버십
- 14,710,843원
2023-03-20
(갑17)
가압류 농협은행주식회사 멤버십
- 19,686,233원
2023-03-28
(갑18)
가압류 농업협동조합중앙회(농림수산업자신용보증기금관리기관) 멤버십
- 83,361,439원
2025-02-25
(갑19)
압류 무안군 멤버십
- -
더보기 더보기
※ 신규 발급등기의 분석자료 반영에는 최대 1일까지 소요될수 있습니다.(등기분석,임차인분석,분석노트 등)

임차인

매각물건 명세서

구분 법원 사건번호 작성일자 매각명세서
1 광주지법 2023타경63193[1] 2025. 10. 20.
2 광주지법 2023타경63193[1] 2025. 2. 27.
3 광주지법 2023타경63193[1] 작성일자 미확인
구분 법원/
사건번호
작성일자 매각명세서
1 광주지법
2023타경63193[1]
2025. 10. 20.
2 광주지법
2023타경63193[1]
2025. 2. 27.
3 광주지법
2023타경63193[1]
작성일자 미확인

임차인(매각 명세서)

- 김희순: 조치형의 동거인임 - 초성영농조합법인: 채무자가 초성영농조합법인의 대표이사임

인수되는 권리/가처분(매각 명세서)

해당사항없음

지상권(매각 명세서)

해당사항없음

물건 비고(매각 명세서)

- 일괄매각(제시외 건물 포함)- 목록4~6에 있는 자연석화단 및 정원수 매각에 포함- 대부분의 기계기구를 철거 이전하여 소재불명인 상태이며 철거하고 일부 남아있는 기계기구(기계기구목록 일련번호 8번 보일러, 20번 소형살균기, 27번 자동포장기 4개 중 1개) 역시 내용년수가 경과하여 재사용이 어려울 것으로 보여 잔존가치 등으로 감정평가함- 기계기구목록 일련번호 30번 생육실환기 Pan Model: DWN-16DRZ 90ea는 전 담보감정평가시 사진과 현 부착 기계기구가

임차인현황

임차인 보증금/차임 전입/확정/배당 대항력
김희순
(주거 임차인 / 소액임차인)
점유부분:
전부
보증:
7,000,000
차임:
월 400,000
전입: 2023-04-03
확정: 2023-04-14
배당: -
멤버십
[현황조사]
조치형
(알수없음 임차인)
점유부분:
미상
보증:
-
차임:
-
사업: 2021-12-02
확정: -
배당: -
멤버십
[현황조사]
초성영농조합법인
(알수없음 임차인)
점유부분:
미상
보증:
-
차임:
-
사업: 2008-09-09
확정: -
배당: -
멤버십

현황 조사서

조사일시

2023년03월06일16시00분 / 2003년03월09일10시55분 / 2023년03월11일11시40분 / 2023년03월15일11시50분 / 2023년03월16일10시45분

부동산의 현황

-

점유 조사

[목록1]현황장소 보고일시와 같이 현장에 방문하였으나 채무자 및 점유자를 만날수 없어 점유관계등은 알수 없음. 제시외건물은 소유자의 소유임. 상가건물임대차 현황서 등재된 초성영농조합법인 임대차관계등은 알수없음. 개문하여 내부확인한바 저당물건중 8번,20번,30번,36번만 현장에서 확인되고 나머지 기계기구는 소재불명함.
[목록2]현황장소 보고일시와 같이 현장에 방문하였으나 채무자 및 점유자를 만날 수 없어 권리신고 안내서를 문틈에 끼워두었으나 연락 없음. 제시외건물은 소유자의 소유임. 주민등록 전입세대 확인한바 조치형 전입되어 있으나 점유여부등은 알수 없음.
[목록3]현황장소 보고일시와 같이 현장에 방문하였으나 채무자 및 점유자를 만날수 없어 점유관계등은 알수 없음.
[목록4]현황장소 보고일시와 같이 현장에 방문하였으나 채무자 및 점유자를 만날수 없어 점유관계등은 알수 없음.
[목록5]현황장소 보고일시와 같이 현장에 방문하였으나 채무자 및 점유자를 만날수 없어 점유관계등은 알수 없음.
[목록6]현황장소 보고일시와 같이 현장에 방문하였으나 채무자 및 점유자를 만날수 없어 점유관계등은 알수 없음.

1
소재지 전라남도 나주시 금천면 원곡길 209
점유인 초성영농조합법인(임차인)
점유부분 미상(기타)
점유기간 미상
보증금/차임 미상/미상
전입/확정일자 2008.09.09/미상
2
소재지 전라남도 나주시 금천면 원곡길 211
점유인 조치형(임차인)
점유부분 미상(기타)
점유기간 미상
보증금/차임 미상/미상
전입/확정일자 2021.12.02/미상

미납관리비 조사내역

확인일자 미납금액 관리소번호 메모

※ 해당 정보는 참고용으로 제공되며 입찰 전 반드시 관리사무소를 통해 직접 확인하시기 바랍니다.

시세

전문가

그외

관할법원 관할법원 (입찰장소)

광주지방법원 본원

경매10계 : 062-239-1114

광주 동구 지산동 342-1 주소복사

Q&A Q&A

Q. 대법원경매가 무엇인가요?누구나 입찰에 참여할 수 있나요?

경매채무자(빌린 자)가 채무를 갚지 않았을 때 채권자(빌려준 자)의 신청으로 대법원이 채무자의 재산을 대신 매각하는 과정을 말합니다.

법원은 감정인에게 자산을 평가하게 한 후, 최저가를 정하여 그 금액 이상으로 입찰한 입찰자 중 최고가 매수인을 결정합니다.

대법원의 주관하에 국민 모두가 참여할 수 있습니다.

Q. 경매 입찰은 어떻게 하나요?누구나 입찰에 참여할 수 있나요?

1. 입찰하시고자 하는 경매물건을 정하신 후, 입찰하시고자 하는 입찰가를 최저가 이상으로 정합니다.

2. 해당 물건의 매각기일에 직접 관할법원에 방문하셔서 법원내에 비치된 입찰서를 작성하신 후 입찰하시면 됩니다.

TIP! 법원에 가실 때에는 입찰보증금(최저가의 10~30%)과 신분증을 지참하여 방문하세요.

Q. 용어가 너무 어려워서 내용을 이해하기 어려워요누구나 입찰에 참여할 수 있나요?

매각기일
매각기일은 경매 법원이 부동산에 대하여 매각 입찰을 진행하는 날을 말합니다.

유찰
매각 기일에 매수하고자 하는 사람이 없어 매각되지 않아 무효가 되는 것을 유찰이라고 합니다.

최저 매각 가격
최초 경매를 진행할때 감정인이 평가한 가격을 기준으로 책정한 금액이며 입찰자는 최저 매각 가격과 동일하거나 이상의 금액으로 입찰해야 합니다. 매각 기일에 있어 입찰자가 없어 유찰되면 통상 20~30% 저감된 금액이 다음 최저 매각 가격이 됩니다.

매수 보증금
경매 물건을 매수하고자 하는사람은 최저 매각 가격의 10분의 1(다르게 정해질 수 있음)에 해당하는 보증금액을 입찰표와 함께 집행관에게 제출하는 방법으로 제공합니다. 매각 절차가 종결된 후 집행관은 최고가 매수신고인이나 차순위매수신고인 이외의 매수신청인에게는 즉시 매수 보증금을 반환해 줍니다.

더 많은 내용을 알고 싶다면 경매마당 학습하기 코너에 준비된 용어설명을 이용해보세요.

경매정보는 법원자료와 일치하도록 하였으나 권리사항변동, 입력착오 등의 원인으로 사실과 다를 수 있습니다. 이용약관에 의거 면책조건으로 제공됨을 알리며, 경매입찰시 반드시 관련 공부를 재확인하시기 바랍니다.

PC버전으로 보기