알림

알림 내역

알림 신청내역/취소

대법원
물건내역
사건내역
기일내역
송달내역
현황조사
지도
사진보기
문서
매각기일공고문
매각물건명세서
감정평가서 M
등기부등본
전입세대열람원 M
건축물대장 M
분석
예상배당표 M
수익률분석 M
입찰가분석 M
조회수분석 M
인근지역통계 M
사이트
대법원
국토부 실거래가
토지이음
아실
네이버 단지정보
네이버 매물정보
호갱노노
부동산플래닛
로고 광주지방법원 본원 [경매9계] 2024타경75001[1]
광주광역시 서구 상무중앙로78번길 10, 제2층 제201호

광주 서구 치평동 1233-2

주소복사
경매구분 임의경매
용도 상가
토지 118.75㎡(35.92평)
건물 385.69㎡(116.67평)
감정가 1,738,000,000원
최저가 778,624,000원
보증금 77,862,400원 (10%)
청구액 2,643,062,964원
개시결정 2024년 07월 02일
감정일 2024년 08월 10일
배당종기 2024년 10월 18일
매각일 2026년 04월 08일
2024타경75001[1]
2024타경75001[1]
2024타경75001[1]
2024타경75001[1]
2024타경75001[1]
2024타경75001[1]
2024타경75001[1]
2024타경75001[1]
2024타경75001[1]
2024타경75001[1]
2024타경75001[1]
2024타경75001[1]
2024타경75001[1]
2024타경75001[1]
2024타경75001[1]
2024타경75001[1]
2024타경75001[1]
2024타경75001[1]
2024타경75001[1]
2024타경75001[1]
감정가
17억3800만원
1489만6717원/평
최저가 55%
7억7862만4000원
667만3729원/평
공고 2026년 04월 08일 입찰 D-36일
유찰 3회선순위임차인
유찰 3회선순위임차인
경매구분 임의경매
용도 상가
토지 118.75㎡(35.92평)
건물 385.69㎡(116.67평)
감정가 1,738,000,000원
최저가 778,624,000원
보증금 77,862,400원 (10%)
청구액 2,643,062,964원
개시결정 2024년 07월 02일
감정일 2024년 08월 10일
배당종기 2024년 10월 18일
매각일 2026년 04월 08일
공고 2026년 04월 08일 입찰 D-36일

당사자 내역

채무자겸소유자 유OOOOOOOO
채권자 화OOOOOOOO
채권자 영OOOOOOOOO
채무자 유OOOOOOOOO
임차인 장OO
임차인 유OOOOOOOOOOOOOOOO
임차인 유OOOOOOOOOOOOO
교부권자 서OOOOO
압류권자 화OOOOOOO
압류권자 서OOOOO
근저당권자 화OOOOOOO
압류권자 광OOOOOOO
근저당권자 영OOOOOOOOO
임차인 유OOOOOOOOOOOOO
임차인 유OOOOOOOOOOOOOO
교부권자 광OOOOOOO
임차인 주OOOOOOOOOOO
임차인 유OOOOOOOOOOOOOOOO
임차인 유OOOOOOOOOOOOOOO
임차인 유OOOOOOOOOOOOO
임차인 유OOOOOOOOOOOO
임차인 유OOOOOOOOOOOOOO
임차인 주OOOOOOOOOOOOOO
임차인 유OOOOOOOOOOOOO
임차인 김OO

기일 내역

2026.04.08(10:00)
7억7862만4000원 진행
2026.01.14(10:00)
기일변경
2025.12.03(10:00)
9억7328만원 유찰
2025.10.22(10:00)
기일변경
2025.09.10(10:00)
12억1660만원 유찰
2025.05.08(10:00)
기일변경
2025.03.26(10:00)
17억3800만원 유찰

매각공고

물건 비고(공고문)

- 공부상 용도는 '휴게음식점'이나, 현황은 '사무실'로 이용중임.

임차인(매각 명세서)

- 상가건물임대차현황서(2024.07.31.자 서광주세무서장 발급)에 의하면, [① 임차인: 유한회사 더벨류업, 200114-0116911, 대표자: 정자영, 사업자등록신청일: 2020.08.26., 임대차 대상물: 201호, 385.69㎡, 임대차기간: 2020.08.25.~2021.08.24., ② 임차인: 유한회사 포베레지산, 200114-0151115, 대표자: 정자영, 사업자등록신청일: 2023.08.17., 임대차 대상물: 2층, 27㎡, 임대차기간: 2023.08.14.~2025.08.13., ③ 임차인: 주식회사 더조은타일, 200111-0699111, 대표자: 정자영, 사업자등록신청일: 2023.06.19., 임대차 대상물: 2층, 504.44㎡, 임대차기간: 2023.06.12.~2026.06.11., ④ 임차인: 유한회사 엘앤제이아키텍, 200114-0124138, 대표자: 정자영, 사업자등록신청일: 2023.08.09., 임대차 대상물: 2층 201호, 36㎡, 임대차기간: 2023.07.25.~2025.07.24., ⑤ 임차인: 주식회사 청린, 205211-0051736, 대표자: 서재철, 사업자등록신청일: 2022.01.11., 임대차 대상물: 2층 201호, 49.58㎡, 임대차기간: 2022.01.07.~2024.01.06., ⑥ 임차인: 유한회사 엠엘컴퍼니, 200114-0150901, 대표자: 이민, 사업자등록신청일: 2023.08.14., 임대차 대상물: 2층, 33㎡, 임대차기간: 2023.08.04.~2025.08.03., ⑦ 임차인: 유한회사 솔릭개발2, 200114-0141132, 대표자: 정자영, 사업자등록신청일: 2022.07.28., 임대차 대상물: 201호, 30㎡, 임대차기간: 2022.07.20.~2024.07.19., ⑧ 임차인: 유한회사 인일기백, 201114-0044525, 대표자: 정자영, 사업자등록신청일: 2021.12.28. 임대차 대상물: 2층, 31.33㎡, 임대차기간: 2021.12.24.~2023.12.23., ⑨ 임차인: 유한회사 와이케이콘코드, 200114-0146306, 대표자: 윤재완, 사업자등록신청일: 2023.02.16., 임대차 대상물: 2층, 33㎡, 임대차기간: 2023.02.16.~2025.02.15., ⑩ 임차인: 유한회사 디프리마수완, 200114-0142172, 대표자: 정자영, 사업자등록신청일: 2022.08.30., 임대차 대상물: 201호, 30㎡, 임대차기간: 2022.08.20.~2024.08.19. ⑪ 임차인: 유한회사 신라개발, 200114-0141190, 대표자: 정자영, 사업자등록신청일: 2022.07.29., 임대차 대상물: 201호, 30㎡, 임대차기간: 2022.07.20.~2024.07.19.]과 같이 기재되어 있음

물건 비고(매각 명세서)

- 공부상 용도는 '휴게음식점'이나, 현황은 '사무실'로 이용중임.

점유 조사(현황 조사서)

[목록1]임차인 주식회사 더조은타일의 직원 곽한수에게 문의함. 2층전체사용중이며, 2층내에 일부칸막이를 이용하여 사무실을 유한회사 포베레지산, 유한회사 더조은타인앤석재, 유한회사 디프리마수완, 유한회사 신라개발에서 이용하고 있으며, 상가임대차현황서와 계약서내용이 상이함. 그외 상가임대차현황서에 등재된 유한회사 더벨류업, 유한회사 엘앤제이아키텍, 주식회사 청린, 유한회사 엠엘컴퍼니, 유한회사 솔릭개발2, 유한회사 인일기백, 유한회사 와이케이콘코드의 점유여부 및 임대차관계여부 알수없음. 주민등록상 등재된 김주영의 점유여부 및 임대차관계알수없음.

매각결과+

매각일자 / 결과 응찰자수 최고가 금액/응찰자명 차순위 금액

가장 빠른 경매 정보 플랫폼 경매마당
남들보다 먼저 정보를 선점하세요

간단한 로그인 후 바로 이용 가능합니다

bolt 대법원 보다 빠른 물건 정보
verified 가장 많은 경매 물건 제공
trending_up 월 5회 등기부 무료 열람

현황정보

매각목록

부동산 현황

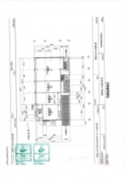
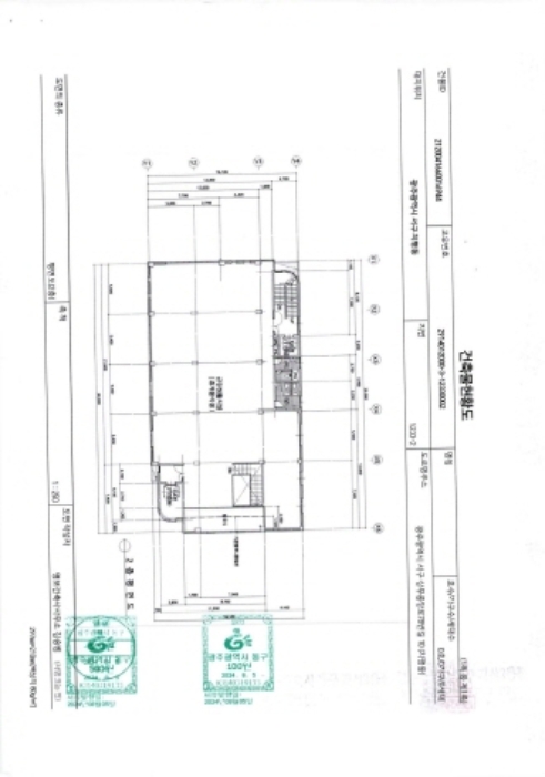
1) 위치 및 주위환경 본건은 광주광역시 서구 치평동 소재 "운천초등학교" 북동측 인근에 위치하며, 주위는 상업용 건물, 업무용 건물 등이 소재하는 중심상가지대임. 2) 교통상황 본건까지 차량출입이 가능하며, 인근 또는 근거리에 버스정류장, 지하철 상무역 및 간선도로 가 소재하는 등 제반 교통사정은 무난한 편임. 3) 건물의 구조 철근콘크리트구조 슬라브지붕 지하: 1층, 지상: 5층 건물 내 (기호1) 제2층 제201호 및 (기호2) 제1층 제101로서, 외벽: 판넬붙임, 석재붙임, 강화유리, 페인팅 마감 등임. 내벽: 타일붙임, 인테리어 마감 등임. 창호: 새시 창호임. 4) 이용상태 기호1: 공부상 용도는 휴게음식점이며, 현황 사무실(더조은타일&석재 등)로 이용 중임. 기호2: 공부상 용도는 휴게음식점이며, 현황 음식점(도야짬뽕)으로 이용 중임. 5) 설비내역 위생 및 급배수설비, 승강기설비, 옥내소화전설비, 도시가스시설, 주차장시설 등을 갖추고 있음. 6) 토지의 형상 및 이용상태 세장형의 평지이며, 상업용 건부지로 이용 중임. 7) 인접 도로상태등 본건 북측으로 접한 왕복 2차선 포장도로를 통하여 본건으로의 차량접근이 가능함. 8) 토지이용계획 및 제한상태 도시지역, 중심상업지역, 방화지구, 지구단위계획구역, 소로1류(폭 10m-12m)(접합), 중로2류 (폭 15m-20m)(접합), 가로구역별 최고높이 제한지역<건축법>, 상대보호구역(신나는유치원) <교육환경 보호에 관한 법률>, 비행안전제6구역(전술)<군사기지 및 군사시설 보호법>, 군용 비행장 소음대책구역 제3종구역(2021-12-29)<군용비행장ㆍ군사격장 소음 방지 및 피해보상에 관한 법률>. 9) 공부와의 차이 없음. 10) 기타참고사항(임대관례 및 기타) 임대관계는 미상임.

주변 입주 예정

거리 단지명 공급년월 세대 수
※ 해당 자료는 한국부동산원 청약홈 자료에 근거하며, 인근 5km 이내의 물건을 기준으로 산정되었습니다.

등기

등기부현황

채권합계 5,628,000,000원(2건)
등기일자 권리종류 권리자/채권액 권리
2022-01-28
소유자 유OOOOOOOOOOOOO OO
단독소유 -
2022-01-28
(을11)
근저당권설정 화OOOOOOO OO
말소기준 등기 3,048,000,000원
2022-04-08
(을12)
근저당권설정 영OOOOOOOOO OO
- 2,580,000,000원
2024-07-02
(갑7)
임의경매개시결정
(2024타경75001)
화OOOOOOO OO
경매기입 등기 2,643,062,964원
2024-07-17
(갑8)
압류 서OOOOOO OO
- -
2024-08-12
(갑9)
임의경매개시결정
(2024타경78727)
영OOOOOOOOO OO
경매기입 등기
더보기
※ 신규 발급등기의 분석자료 반영에는 최대 1일까지 소요될수 있습니다.(등기분석,임차인분석,분석노트 등)

임차인

매각물건 명세서

구분 법원 사건번호 작성일자 매각명세서
1 광주지법 2024타경75001[1] 2026. 1. 14.
2 광주지법 2024타경75001[1] 2025. 10. 13.
3 광주지법 2024타경75001[1] 2025. 5. 12.
4 광주지법 2024타경75001[1] 2025.01.17
구분 법원/
사건번호
작성일자 매각명세서
1 광주지법
2024타경75001[1]
2026. 1. 14.
2 광주지법
2024타경75001[1]
2025. 10. 13.
3 광주지법
2024타경75001[1]
2025. 5. 12.
4 광주지법
2024타경75001[1]
2025.01.17

임차인(매각 명세서)

- 상가건물임대차현황서(2024.07.31.자 서광주세무서장 발급)에 의하면, [① 임차인: 유한회사 더벨류업, 200114-0116911, 대표자: 정자영, 사업자등록신청일: 2020.08.26., 임대차 대상물: 201호, 385.69㎡, 임대차기간: 2020.08.25.~2021.08.24., ② 임차인: 유한회사 포베레지산, 200114-0151115, 대표자: 정자영, 사업자등록신청일: 2023.08.17., 임대차 대상물: 2층, 27㎡, 임대차기간: 2023.08.14.~2025.08.13., ③ 임차인: 주식회사 더조은타일, 200111-0699111, 대표자: 정자영, 사업자등록신청일: 2023.06.19., 임대차 대상물: 2층, 504.44㎡, 임대차기간: 2023.06.12.~2026.06.11., ④ 임차인: 유한회사 엘앤제이아키텍, 200114-0124138, 대표자: 정자영, 사업자등록신청일: 2023.08.09., 임대차 대상물: 2층 201호, 36㎡, 임대차기간: 2023.07.25.~2025.07.24., ⑤ 임차인: 주식회사 청린, 205211-0051736, 대표자: 서재철, 사업자등록신청일: 2022.01.11., 임대차 대상물: 2층 201호, 49.58㎡, 임대차기간: 2022.01.07.~2024.01.06., ⑥ 임차인: 유한회사 엠엘컴퍼니, 200114-0150901, 대표자: 이민, 사업자등록신청일: 2023.08.14., 임대차 대상물: 2층, 33㎡, 임대차기간: 2023.08.04.~2025.08.03., ⑦ 임차인: 유한회사 솔릭개발2, 200114-0141132, 대표자: 정자영, 사업자등록신청일: 2022.07.28., 임대차 대상물: 201호, 30㎡, 임대차기간: 2022.07.20.~2024.07.19., ⑧ 임차인: 유한회사 인일기백, 201114-0044525, 대표자: 정자영, 사업자등록신청일: 2021.12.28. 임대차 대상물: 2층, 31.33㎡, 임대차기간: 2021.12.24.~2023.12.23., ⑨ 임차인: 유한회사 와이케이콘코드, 200114-0146306, 대표자: 윤재완, 사업자등록신청일: 2023.02.16., 임대차 대상물: 2층, 33㎡, 임대차기간: 2023.02.16.~2025.02.15., ⑩ 임차인: 유한회사 디프리마수완, 200114-0142172, 대표자: 정자영, 사업자등록신청일: 2022.08.30., 임대차 대상물: 201호, 30㎡, 임대차기간: 2022.08.20.~2024.08.19. ⑪ 임차인: 유한회사 신라개발, 200114-0141190, 대표자: 정자영, 사업자등록신청일: 2022.07.29., 임대차 대상물: 201호, 30㎡, 임대차기간: 2022.07.20.~2024.07.19.]과 같이 기재되어 있음

물건 비고(매각 명세서)

- 공부상 용도는 '휴게음식점'이나, 현황은 '사무실'로 이용중임.

임차인현황

임차인 보증금/차임 전입/확정/배당 대항력
[현황조사]
김주영
(알수없음 임차인)
점유부분:
미상
보증:
-
차임:
-
사업: 2021-11-09
확정: -
배당: -
멤버십
[현황조사]
유한회사 더벨류업, 정자영
(알수없음 임차인)
점유부분:
미상
보증:
-
차임:
-
사업: 2020-08-26
확정: -
배당: -
멤버십
[현황조사]
유한회사 더조은타일앤석재
(점포 임차인)
점유부분:
2층 201-2호
보증:
38,000,000
차임:
-
사업: 미전입
확정: -
배당: -
멤버십
[현황조사]
유한회사 디프리마수완, 정자영
(점포 임차인)
점유부분:
2층 201-4호
보증:
30,000,000
차임:
-
사업: 2022-08-30
확정: -
배당: -
멤버십
[현황조사]
유한회사 솔릭개발2, 정자영
(알수없음 임차인)
점유부분:
미상
보증:
-
차임:
-
사업: 2022-07-28
확정: -
배당: -
멤버십
[현황조사]
유한회사 신라개발, 정자영
(점포 임차인)
점유부분:
2층 201-3호
보증:
30,000,000
차임:
-
사업: 2022-07-29
확정: -
배당: -
멤버십
[현황조사]
유한회사 앨앤제이아키텍, 정자영
(알수없음 임차인)
점유부분:
미상
보증:
-
차임:
-
사업: 2023-08-09
확정: -
배당: -
멤버십
[현황조사]
유한회사 엠엘컴퍼니, 이민
(알수없음 임차인)
점유부분:
미상
보증:
-
차임:
-
사업: 2023-08-14
확정: -
배당: -
멤버십
[현황조사]
유한회사 와이케이콘코드, 윤재완
(알수없음 임차인)
점유부분:
미상
보증:
-
차임:
-
사업: 2023-02-16
확정: -
배당: -
멤버십
[현황조사]
유한회사 인일기백, 정자영
(알수없음 임차인)
점유부분:
미상
보증:
-
차임:
-
사업: 2021-12-28
확정: -
배당: -
멤버십
[현황조사]
유한회사 포베레지산, 정자영
(점포 임차인)
점유부분:
2층 201-1호
보증:
30,000,000
차임:
-
사업: 2023-08-17
확정: -
배당: -
멤버십
[현황조사]
주식회사 더조은타일, 정자영
(점포 임차인)
점유부분:
2층 201호
보증:
-
차임:
-
사업: 2023-06-19
확정: -
배당: -
멤버십
[현황조사]
주식회사 청린, 서재철
(알수없음 임차인)
점유부분:
미상
보증:
-
차임:
-
사업: 2022-01-11
확정: -
배당: -
멤버십

현황 조사서

조사일시

2024년08월05일10시05분 / 2024년08월09일11시05분 / 2024년08월20일11시40분 / 2024년08월30일09시40분

부동산의 현황

-

점유 조사

[목록1]임차인 주식회사 더조은타일의 직원 곽한수에게 문의함. 2층전체사용중이며, 2층내에 일부칸막이를 이용하여 사무실을 유한회사 포베레지산, 유한회사 더조은타인앤석재, 유한회사 디프리마수완, 유한회사 신라개발에서 이용하고 있으며, 상가임대차현황서와 계약서내용이 상이함. 그외 상가임대차현황서에 등재된 유한회사 더벨류업, 유한회사 엘앤제이아키텍, 주식회사 청린, 유한회사 엠엘컴퍼니, 유한회사 솔릭개발2, 유한회사 인일기백, 유한회사 와이케이콘코드의 점유여부 및 임대차관계여부 알수없음. 주민등록상 등재된 김주영의 점유여부 및 임대차관계알수없음.

1
소재지 광주광역시 서구 상무중앙로78번길 10, 제2층 제201호
점유인 주식회사 더조은타일, 정자영(임차인)
점유부분 2층 201호(점포)
점유기간 미상
보증금/차임 미상/미상
전입/확정일자 2023.06.19/미상
2
소재지 광주광역시 서구 상무중앙로78번길 10, 제2층 제201호
점유인 유한회사 포베레지산, 정자영(임차인)
점유부분 2층201-1호(점포)
점유기간 미상
보증금/차임 30,000,000/미상
전입/확정일자 2023.08.17/미상
3
소재지 광주광역시 서구 상무중앙로78번길 10, 제2층 제201호
점유인 유한회사 더조은타일앤석재(임차인)
점유부분 2층201-2호(점포)
점유기간 미상
보증금/차임 38,000,000/미상
전입/확정일자 미전입/미상
4
소재지 광주광역시 서구 상무중앙로78번길 10, 제2층 제201호
점유인 유한회사 신라개발, 정자영(임차인)
점유부분 2층201-3호(점포)
점유기간 미상
보증금/차임 30,000,000/미상
전입/확정일자 2022.07.29/미상
5
소재지 광주광역시 서구 상무중앙로78번길 10, 제2층 제201호
점유인 유한회사 디프리마수완, 정자영(임차인)
점유부분 2층201-4호(점포)
점유기간 미상
보증금/차임 30,000,000/미상
전입/확정일자 2022.08.30/미상
6
소재지 광주광역시 서구 상무중앙로78번길 10, 제2층 제201호
점유인 유한회사 더벨류업, 정자영(임차인)
점유부분 미상(기타)
점유기간 미상
보증금/차임 미상/미상
전입/확정일자 2020.08.26/미상
7
소재지 광주광역시 서구 상무중앙로78번길 10, 제2층 제201호
점유인 유한회사 앨앤제이아키텍, 정자영(임차인)
점유부분 미상(기타)
점유기간 미상
보증금/차임 미상/미상
전입/확정일자 2023.08.09/미상
8
소재지 광주광역시 서구 상무중앙로78번길 10, 제2층 제201호
점유인 주식회사 청린, 서재철(임차인)
점유부분 미상(기타)
점유기간 미상
보증금/차임 미상/미상
전입/확정일자 2022.01.11/미상
9
소재지 광주광역시 서구 상무중앙로78번길 10, 제2층 제201호
점유인 유한회사 엠엘컴퍼니, 이민(임차인)
점유부분 미상(기타)
점유기간 미상
보증금/차임 미상/미상
전입/확정일자 2023.08.14/미상
10
소재지 광주광역시 서구 상무중앙로78번길 10, 제2층 제201호
점유인 유한회사 솔릭개발2, 정자영(임차인)
점유부분 미상(기타)
점유기간 미상
보증금/차임 미상/미상
전입/확정일자 2022.07.28/미상
11
소재지 광주광역시 서구 상무중앙로78번길 10, 제2층 제201호
점유인 유한회사 인일기백, 정자영(임차인)
점유부분 미상(기타)
점유기간 미상
보증금/차임 미상/미상
전입/확정일자 2021.12.28/미상
12
소재지 광주광역시 서구 상무중앙로78번길 10, 제2층 제201호
점유인 유한회사 와이케이콘코드, 윤재완(임차인)
점유부분 미상(기타)
점유기간 미상
보증금/차임 미상/미상
전입/확정일자 2023.02.16/미상
13
소재지 광주광역시 서구 상무중앙로78번길 10, 제2층 제201호
점유인 김주영(임차인)
점유부분 미상(기타)
점유기간 미상
보증금/차임 미상/미상
전입/확정일자 2021.11.09/미상

미납관리비 조사내역

확인일자 미납금액 관리소번호 메모

※ 해당 정보는 참고용으로 제공되며 입찰 전 반드시 관리사무소를 통해 직접 확인하시기 바랍니다.

시세분석

인근 낙찰사례

기타

전문가

관할법원 (입찰장소)

광주지방법원 본원

경매9계 : 062-239-1114

광주 동구 지산동 342-1 주소복사

Q&A

Q. 대법원경매가 무엇인가요?누구나 입찰에 참여할 수 있나요?

경매채무자(빌린 자)가 채무를 갚지 않았을 때 채권자(빌려준 자)의 신청으로 대법원이 채무자의 재산을 대신 매각하는 과정을 말합니다.

법원은 감정인에게 자산을 평가하게 한 후, 최저가를 정하여 그 금액 이상으로 입찰한 입찰자 중 최고가 매수인을 결정합니다.

대법원의 주관하에 국민 모두가 참여할 수 있습니다.

Q. 경매 입찰은 어떻게 하나요?누구나 입찰에 참여할 수 있나요?

1. 입찰하시고자 하는 경매물건을 정하신 후, 입찰하시고자 하는 입찰가를 최저가 이상으로 정합니다.

2. 해당 물건의 매각기일에 직접 관할법원에 방문하셔서 법원내에 비치된 입찰서를 작성하신 후 입찰하시면 됩니다.

TIP! 법원에 가실 때에는 입찰보증금(최저가의 10~30%)과 신분증을 지참하여 방문하세요.

Q. 용어가 너무 어려워서 내용을 이해하기 어려워요누구나 입찰에 참여할 수 있나요?

매각기일
매각기일은 경매 법원이 부동산에 대하여 매각 입찰을 진행하는 날을 말합니다.

유찰
매각 기일에 매수하고자 하는 사람이 없어 매각되지 않아 무효가 되는 것을 유찰이라고 합니다.

최저 매각 가격
최초 경매를 진행할때 감정인이 평가한 가격을 기준으로 책정한 금액이며 입찰자는 최저 매각 가격과 동일하거나 이상의 금액으로 입찰해야 합니다. 매각 기일에 있어 입찰자가 없어 유찰되면 통상 20~30% 저감된 금액이 다음 최저 매각 가격이 됩니다.

매수 보증금
경매 물건을 매수하고자 하는사람은 최저 매각 가격의 10분의 1(다르게 정해질 수 있음)에 해당하는 보증금액을 입찰표와 함께 집행관에게 제출하는 방법으로 제공합니다. 매각 절차가 종결된 후 집행관은 최고가 매수신고인이나 차순위매수신고인 이외의 매수신청인에게는 즉시 매수 보증금을 반환해 줍니다.

더 많은 내용을 알고 싶다면 경매마당 학습하기 코너에 준비된 용어설명을 이용해보세요.

경매정보는 법원자료와 일치하도록 하였으나 권리사항변동, 입력착오 등의 원인으로 사실과 다를 수 있습니다. 이용약관에 의거 면책조건으로 제공됨을 알리며, 경매입찰시 반드시 관련 공부를 재확인하시기 바랍니다.

PC버전으로 보기