알림

알림 내역

알림 신청내역/취소

로고 광주지방법원 본원 [경매4계] 2025타경32749
광주광역시 북구 지야동 806-15 가동 외 1 필지 외 1개 동

광주 북구 지야동 806-15

주소복사
경매구분 임의경매
용도 기타
토지 2969㎡(898.1평)
건물 584.55㎡(176.8평)
감정가 2,759,127,650원
최저가 1,931,390,000원
보증금 193,139,000원 (10%)
청구액 2,199,037,708원
개시결정 2025년 05월 15일
감정일 2025년 05월 23일
배당종기 2025년 08월 08일
매각일 2026년 02월 24일
2025타경32749
2025타경32749
2025타경32749
2025타경32749
2025타경32749
2025타경32749
2025타경32749
2025타경32749
2025타경32749
2025타경32749
2025타경32749
2025타경32749
감정가
27억5912만7650원
최저가 30%
19억3139만원
공고 2026년 02월 24일 입찰 D-70일
유찰 1회
유찰 1회
경매구분 임의경매
용도 기타
토지 2969㎡(898.1평)
건물 584.55㎡(176.8평)
감정가 2,759,127,650원
최저가 1,931,390,000원
보증금 193,139,000원 (10%)
청구액 2,199,037,708원
개시결정 2025년 05월 15일
감정일 2025년 05월 23일
배당종기 2025년 08월 08일
매각일 2026년 02월 24일
공고 2026년 02월 24일 입찰 D-70일

당사자 내역

채무자겸소유자 주OOOOOOOOO
채권자 광OOOOOOOOO
근저당권자 이OO
압류권자 광OOOOOOO
가압류권자 광OOOOOOO
가압류권자 볼OOOOOOOOOOOOOOOO
가압류권자 엠OOOOOOOOO
교부권자 북OOOOO
교부권자 광OOOOOOO
교부권자 광OOOOOOOOOOOOOO
교부권자 국OOOOOOOOOOOOOO
배당요구권자 볼OOOOOOOOOOOOOOOO

기일 내역

2026.02.24(10:00)
19억3139만원 진행
2026.01.13(10:00)
기일변경
2025.12.02(10:00)
27억5912만7650원 유찰

물건 비고(공고문)

일괄매각(제시외 건물 및 기계기구 각 포함) 본건 토지 지상 수목 및 조경석 각 매각 포함 본건 목록 3. 토지 지상의 이동 가능한 쓰레기폐기함, 포크레인 및 지계차 각 매각 제외 본건 목록 1. 건물 내부 및 목록 3. 토지 지상에 소유자 미상의 폐기물이 방치된 것으로 조사됨(감정평가서 및 현황조사보고서 참조)

물건 비고(매각 명세서)

일괄매각(제시외 건물 및 기계기구 각 포함)본건 토지 지상 수목 및 조경석 각 매각 포함본건 목록 3. 토지 지상의 이동 가능한 쓰레기폐기함, 포크레인 및 지계차 각 매각 제외본건 목록 1. 건물 내부 및 목록 3. 토지 지상에 소유자 미상의 폐기물이 방치된 것으로 조사됨(감정평가서 및 현황조사보고서 참조)

점유 조사(현황 조사서)

[목록1]현황조사 보고일시와 같이 현장에 방문하였으나 현재 운영하지않는 상태이며,채무자 및 점유자를 만날수없어 점유여부 및 임대차관계여부 알수없음. 상가임대차현황서 및 주민등록등재여부 열람한바 전입자없음.
[목록2]현황조사 보고일시와 같이 현장에 방문하였으나 현재 운영하지않는 상태이며,채무자 및 점유자를 만날수없어 점유여부 및 임대차관계여부 알수없음. 상가임대차현황서 및 주민등록등재여부 열람한바 전입자없음.
[목록3]현황조사 보고일시와 같이 현장에 방문하였으나 현재 운영하지않는 상태이며,채무자 및 점유자를 만날수없어 점유여부 및 임대차관계여부 알수없음. 지상에 제시외건물 및 번호판없는 포크레인, 혼합된폐기물, 폐기물적재되어있지않는 많은수의 압롤박스, 트럭, 차량계근대, 수전전설비, 조경수, 조경석등의 소유관계알수없음. 상가임대차현황서 및 주민등록등재여부 열람한바 전입자없음.
[목록4]현장확인

매각결과+

매각일자 / 결과 응찰자수 최고가 금액/응찰자명 차순위 금액
부동산
등기
임차인
그 외

부동산

매각목록

부동산 현황

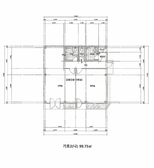
1) 위치 및 주위환경 본건은 광주광역시 북구 지야동 소재 '지야마을' 동측 인근에 위치하며, 주위는 제조업소, 경지정리된 농경지 등이 혼재하는 시가지주변 공장지대임. 2) 교통상황 본건까지 차량의 접근이 가능하며, 인근에 간선도로 및 버스승강장 등이 소재하고 있어, 일반적인 교통상황은 보통시 됨. 3) 형태 및 이용상태 기호3 세장형 평지 공업용 기호4 가장형 평지 도로 4) 인접 도로상태 기호(3)은 남서측의 약5m내외의 포장도로에 접하고, 기호(4)는 현황 도로임. 5) 토지이용계획 및 제한상태 기호3 : 생산녹지지역 비행안전제3구역(전술)(2018-10-19)<군사기지 및 군사시설 보호법> 기호4 : 생산녹지지역 비행안전제3구역(전술)(2018-10-19)<군사기지 및 군사시설 보호법> 6) 제시목록 외의 물건 - 7) 공부와의 차이 - 8) 기타참고사항(임대관례 및 기타) - 1) 건물의 구조 기호1(가) 구조 : 일반철골구조 지붕용판넬지붕 외벽 : 판넬 등 마감 내벽 : 판넬 등 마감 바닥 : 콘크리트 등 마감 창호 : 샷시창 등 마감 기호2(나) 구조 : 일반철골구조 지붕용판넬지붕 외벽 : 복합판넬, 일부 징크판넬 등 마감 내벽 : 벽지, 타일 등 마감 바닥 : 타일 등 마감 창호 : 샷시창 등 마감 ㄱ(1~2층) 구조 : 컨테이너조 및 판넬조 판넬지붕 외벽 : 컨테이너, 판넬 등 마감 내벽 : 판넬 등 마감 바닥 : 장판 등 마감 창호 : 샷시창 등 마감 ㄴ 구조 : 판넬조 판넬지붕 외벽 : 판넬 등 마감 내벽 : 판넬 등 마감 바닥 : 콘크리트 등 마감 2) 이용상태 기호1(가) : 폐기물재활용시설 기호2(나) : 사무소(사무소, 식당 등) ㄱ(1~2층) : 숙직실 ㄴ : 창고 3) 설비내역 기호2(나) : 냉방설비, 급배수설비, 위생설비 4) 부합물 및 종물 별첨 ""명세표 및 건물개황도"" 참조. 5) 공부와의 차이 공부와 별차이 없음. 6) 기타참고사항(임대관례 및 기타) 임대관계는 미상임.

감정평가

주변 입주 예정

거리 단지명 공급년월 세대 수
※ 해당 자료는 한국부동산원 청약홈 자료에 근거하며, 인근 5km 이내의 물건을 기준으로 산정되었습니다.

등기

등기부현황

채권합계 4,372,220,000원(5건)
등기일자 권리종류 권리자/채권액 권리
2022-07-19
소유자 주식회사동양에너지 (소유자) 멤버십
단독소유 -
2022-07-19
(을12)
근저당권설정 광주신안신용협동조합 멤버십
말소기준 등기 2,730,000,000원
2024-02-28
(을13)
근저당권설정 이현희 멤버십
- 1,500,000,000원
2024-12-27
(갑4)
압류 북구(광주광역시) 멤버십
- -
2025-04-14
(갑5)
가압류 광주신용보증재단 멤버십
- 19,270,837원
2025-04-29
(갑6)
가압류 볼보파이낸셜서비스코리아주식회사 멤버십
- 110,165,748원
2025-05-13
(갑7)
가압류 엠지캐피탈주식회사 멤버십
- 12,798,557원
2025-05-15
(갑8)
임의경매개시결정
(2025타경32749)
광주신안신용협동조합 멤버십
경매기입 등기 2,199,037,708원
2025-06-09
(갑9)
압류 국민건강보험공단 멤버십
- -
더보기 더보기
※ 신규 발급등기의 분석자료 반영에는 최대 1일까지 소요될수 있습니다.(등기분석,임차인분석,분석노트 등)

임차인

매각물건 명세서

구분 법원 사건번호 작성일자 매각명세서
1 광주지법 2025타경32749[1] 2025. 12. 2.
2 광주지법 2025타경32749[1] 2025. 11. 12.
구분 법원/
사건번호
작성일자 매각명세서
1 광주지법
2025타경32749[1]
2025. 12. 2.
2 광주지법
2025타경32749[1]
2025. 11. 12.

물건 비고(매각 명세서)

일괄매각(제시외 건물 및 기계기구 각 포함)본건 토지 지상 수목 및 조경석 각 매각 포함본건 목록 3. 토지 지상의 이동 가능한 쓰레기폐기함, 포크레인 및 지계차 각 매각 제외본건 목록 1. 건물 내부 및 목록 3. 토지 지상에 소유자 미상의 폐기물이 방치된 것으로 조사됨(감정평가서 및 현황조사보고서 참조)

임차인현황

임차인 보증금/차임 전입/확정/배당 대항력
매각물건명세서상 임차인이 존재하지 않습니다.

현황 조사서

조사일시

2025년05월20일15시00분 / 2025년05월21일13시05분 / 2025년05월26일11시20분 / 2025년06월02일10시40분

부동산의 현황

-

점유 조사

[목록1]현황조사 보고일시와 같이 현장에 방문하였으나 현재 운영하지않는 상태이며,채무자 및 점유자를 만날수없어 점유여부 및 임대차관계여부 알수없음. 상가임대차현황서 및 주민등록등재여부 열람한바 전입자없음.
[목록2]현황조사 보고일시와 같이 현장에 방문하였으나 현재 운영하지않는 상태이며,채무자 및 점유자를 만날수없어 점유여부 및 임대차관계여부 알수없음. 상가임대차현황서 및 주민등록등재여부 열람한바 전입자없음.
[목록3]현황조사 보고일시와 같이 현장에 방문하였으나 현재 운영하지않는 상태이며,채무자 및 점유자를 만날수없어 점유여부 및 임대차관계여부 알수없음. 지상에 제시외건물 및 번호판없는 포크레인, 혼합된폐기물, 폐기물적재되어있지않는 많은수의 압롤박스, 트럭, 차량계근대, 수전전설비, 조경수, 조경석등의 소유관계알수없음. 상가임대차현황서 및 주민등록등재여부 열람한바 전입자없음.
[목록4]현장확인

미납관리비 조사내역

확인일자 미납금액 관리소번호 메모

※ 해당 정보는 참고용으로 제공되며 입찰 전 반드시 관리사무소를 통해 직접 확인하시기 바랍니다.

시세

전문가

그외

관할법원 관할법원 (입찰장소)

광주지방법원 본원

경매4계 : 062-239-1114

광주 동구 지산동 342-1 주소복사

Q&A Q&A

Q. 대법원경매가 무엇인가요?누구나 입찰에 참여할 수 있나요?

경매채무자(빌린 자)가 채무를 갚지 않았을 때 채권자(빌려준 자)의 신청으로 대법원이 채무자의 재산을 대신 매각하는 과정을 말합니다.

법원은 감정인에게 자산을 평가하게 한 후, 최저가를 정하여 그 금액 이상으로 입찰한 입찰자 중 최고가 매수인을 결정합니다.

대법원의 주관하에 국민 모두가 참여할 수 있습니다.

Q. 경매 입찰은 어떻게 하나요?누구나 입찰에 참여할 수 있나요?

1. 입찰하시고자 하는 경매물건을 정하신 후, 입찰하시고자 하는 입찰가를 최저가 이상으로 정합니다.

2. 해당 물건의 매각기일에 직접 관할법원에 방문하셔서 법원내에 비치된 입찰서를 작성하신 후 입찰하시면 됩니다.

TIP! 법원에 가실 때에는 입찰보증금(최저가의 10~30%)과 신분증을 지참하여 방문하세요.

Q. 용어가 너무 어려워서 내용을 이해하기 어려워요누구나 입찰에 참여할 수 있나요?

매각기일
매각기일은 경매 법원이 부동산에 대하여 매각 입찰을 진행하는 날을 말합니다.

유찰
매각 기일에 매수하고자 하는 사람이 없어 매각되지 않아 무효가 되는 것을 유찰이라고 합니다.

최저 매각 가격
최초 경매를 진행할때 감정인이 평가한 가격을 기준으로 책정한 금액이며 입찰자는 최저 매각 가격과 동일하거나 이상의 금액으로 입찰해야 합니다. 매각 기일에 있어 입찰자가 없어 유찰되면 통상 20~30% 저감된 금액이 다음 최저 매각 가격이 됩니다.

매수 보증금
경매 물건을 매수하고자 하는사람은 최저 매각 가격의 10분의 1(다르게 정해질 수 있음)에 해당하는 보증금액을 입찰표와 함께 집행관에게 제출하는 방법으로 제공합니다. 매각 절차가 종결된 후 집행관은 최고가 매수신고인이나 차순위매수신고인 이외의 매수신청인에게는 즉시 매수 보증금을 반환해 줍니다.

더 많은 내용을 알고 싶다면 경매마당 학습하기 코너에 준비된 용어설명을 이용해보세요.

경매정보는 법원자료와 일치하도록 하였으나 권리사항변동, 입력착오 등의 원인으로 사실과 다를 수 있습니다. 이용약관에 의거 면책조건으로 제공됨을 알리며, 경매입찰시 반드시 관련 공부를 재확인하시기 바랍니다.

PC버전으로 보기