알림

알림 내역

알림 신청내역/취소

대법원
물건내역
사건내역
기일내역
송달내역
현황조사
지도
사진보기
문서
매각기일공고문
매각물건명세서
감정평가서
등기부등본
전입세대열람원 M
건축물대장 M
분석
예상배당표 M
수익률분석 M
입찰가분석 M
조회수분석 M
인근지역통계 M
사이트
대법원
국토부 실거래가
토지이음
아실
네이버 단지정보
네이버 매물정보
호갱노노
부동산플래닛
로고 광주지방법원 목포지원 [경매2계] 2022타경52083
전라남도 목포시 영산로 635, 2층203호

전남 목포시 석현동 815-1

주소복사
경매구분 청산을위한형식적경매
용도 상가
토지 96.23㎡(29.11평)
건물 195.62㎡(59.18평)
감정가 190,000,000원
최저가 2,995,000원
보증금 599,000원 (20%)
청구액 0원
개시결정 2022년 04월 28일
감정일 2022년 05월 11일
배당종기 2022년 08월 01일
매각일 2025년 07월 28일
2022타경52083
2022타경52083
2022타경52083
2022타경52083
2022타경52083
2022타경52083
2022타경52083
2022타경52083
2022타경52083
2022타경52083
감정가
1억9000만원
낙찰가 98%
411만1000원
배당종결 2025년 07월 28일
유찰 18회형식적경매재매각선순위전세권
유찰 18회형식적경매재매각선순위전세권
경매구분 청산을위한형식적경매
용도 상가
토지 96.23㎡(29.11평)
건물 195.62㎡(59.18평)
감정가 190,000,000원
최저가 2,995,000원
보증금 599,000원 (20%)
청구액 0원
개시결정 2022년 04월 28일
감정일 2022년 05월 11일
배당종기 2022년 08월 01일
매각일 2025년 07월 28일
배당종결 2025년 07월 28일

당사자 내역

신청인 문OO
상대방겸소유자 김OO
교부권자 목OO
교부권자 국OOOOOOOOOOOOOO
신청인겸소유자 김OO
신청인겸소유자 김OO
신청인겸소유자 문OO
상대방겸소유자 김OO
상대방겸소유자 문OO
신청인 김OO
압류권자 국OOOOOOOOOOOO
압류권자 목OO
전세권자 전OOOOOOOOOOOOOOOO
배당요구권자 신OOOOO
가압류권자 엘OOOOOOOOOO
신청인 김OO
교부권자 광OOOOOOOO

기일 내역

2025.09.09(16:00)
납부
2025.08.04(16:00)
최고가매각허가결정
2025.07.28(10:00)
411만1000원 매각
299만5000원 최저가
2025.06.02(10:00)
374만4000원 유찰
2025.04.07(10:00)
468만원 유찰
2025.02.24(10:00)
585만원 유찰
2025.01.13(10:00)
731만2000원 유찰
2024.11.25(10:00)
914만원 유찰
2024.10.14(10:00)
1142만5000원 유찰
2024.09.02(10:00)
1428만1000원 유찰
2024.07.16(16:00)
미납
2024.06.10(16:00)
최고가매각허가결정
2024.06.03(10:00)
2100만원 매각
1428만1000원 최저가
2024.04.22(10:00)
1785만1000원 유찰
2024.03.04(10:00)
2231만4000원 유찰
2024.01.22(10:00)
2789만3000원 유찰
2023.11.27(10:00)
3486만6000원 유찰
2023.10.16(10:00)
4358만2000원 유찰
2023.08.28(10:00)
5447만7000원 유찰
2023.07.10(10:00)
기일변경
2023.05.22(10:00)
6809만6000원 유찰
2023.04.10(10:00)
8512만원 유찰
2023.02.27(10:00)
1억640만원 유찰
2023.01.09(10:00)
1억3300만원 유찰
2022.11.14(10:00)
1억9000만원 유찰

매각공고

인수되는 권리/가처분(매각 명세서)

을구 순위 9번 전세권설정등기(2007. 12. 20. 제76955호)는 말소되지 않고 매수인에게 인수됨

점유 조사(현황 조사서)

[목록1]▷ 본건 목적물에 방문하여 확인한 바 폐문부재하여 점유관계를 파악하지 못하였으며, 전입 확인결과 별첨과 같이 전입세대 없으며, 출입문에 `전라남도장애인체육회 탁구연습장` 상호의 안내표시판 걸려있음.

매각결과+

매각일자 / 결과 응찰자수 최고가 금액/응찰자명 차순위 금액

현황정보

매각목록

부동산 현황

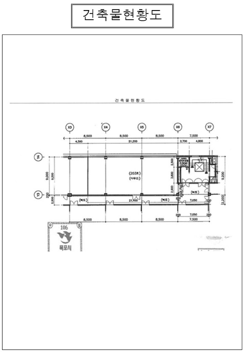
1) 위치 및 주위환경 본건은 목포시 석현동 소재 목포중앙병원 북측 인근에 위치하는 석현제일빌딩 2층 203호로서 부근은 상가, 음식점, 병원 등으로 형성된 노변상가지대이며, 서측 후면은 아파트단지로 형성되어 있음. 2) 교통상황 시내버스승강장이 소재하는 간선도로변에 위치하여 일반적인 교통상황은 양호함. 3) 건물의 구조 철근콘크리트구조 및 일반철골구조 (철근)콘크리트지붕 5층건내 2층 203호로서 내부는 4칸으로 구획되어 있으며, 2006년10월19일 사용승인 되었음. 외벽: 화강석판재 붙임, 칼라유리창 내벽: 몰탈위 페인팅 외벽: 샤시창임. 4) 이용상태 집합건축물대장상 용도: 업무시설(사무소) 현황: 목포장애인탁구협회 연습장 등으로 이용중임. 5) 설비내역 급배수 및 위생설비, 천장부착형 냉난방설비, 화재탐지 및 경보설비, 스프링클러, 소화전, 승강기 등이 시설되어 있음. 6) 토지의 형상 및 이용상태 장방형으로 지반은 평탄하며, 상업 및 업무시설부지로 이용중임. 7) 인접 도로상태등 동측으로 왕복8차선, 북측으로 왕복4차선 아스팔트포장도로와 접함. 8) 토지이용계획 및 제한상태 도시지역, 제2종일반주거지역, 가축사육제한구역(전부제한)<가축분뇨의 관리 밍 이용에 관한 법률>, 철도보호지구<철도안전법>. 9) 공부와의 차이 없 음. 10) 기타참고사항(임대관례 및 기타) 임대관계는 미상임.

주변 입주 예정

거리 단지명 공급년월 세대 수
※ 해당 자료는 한국부동산원 청약홈 자료에 근거하며, 인근 5km 이내의 물건을 기준으로 산정되었습니다.

등기

등기부현황

채권합계 249,160,000원(2건)
등기일자 권리종류 권리자/채권액 권리
2007-12-20
(을9)
전세권설정 OOOO 인수
- 150,000,000원
2009-09-16
(갑8)
가압류 OOOO 소멸
말소기준 등기 99,160,000원
2017-12-05
(갑18)
압류 OOOO 소멸
- -
2018-06-27
(갑19)
압류 OOOO 소멸
- -
2022-04-28
(갑21)
임의경매개시결정
(2022타경52083)
OOOO 소멸
경매기입 등기
더보기
※ 신규 발급등기의 분석자료 반영에는 최대 1일까지 소요될수 있습니다.(등기분석,임차인분석,분석노트 등)

임차인

매각물건 명세서

구분 법원 사건번호 작성일자 매각명세서
1 목포지원 2022타경52083[1] 2025.01.16
2 목포지원 2022타경52083[1] 작성일자 미확인
구분 법원/
사건번호
작성일자 매각명세서
1 목포지원
2022타경52083[1]
2025.01.16
2 목포지원
2022타경52083[1]
작성일자 미확인

인수되는 권리/가처분(매각 명세서)

을구 순위 9번 전세권설정등기(2007. 12. 20. 제76955호)는 말소되지 않고 매수인에게 인수됨

임차인현황

임차인 보증금/차임 전입/확정/배당 대항력
매각물건명세서상 임차인이 존재하지 않습니다.

현황 조사서

조사일시

2022년05월04일 / 2022년05월10일 / 2022년05월16일

부동산의 현황

-

점유 조사

[목록1]▷ 본건 목적물에 방문하여 확인한 바 폐문부재하여 점유관계를 파악하지 못하였으며, 전입 확인결과 별첨과 같이 전입세대 없으며, 출입문에 `전라남도장애인체육회 탁구연습장` 상호의 안내표시판 걸려있음.

조사일시

2022년05월04일 / 2022년05월10일 / 2022년05월16일

부동산의 현황

-

점유 조사

[목록1]▷ 본건 목적물에 방문하여 확인한 바 폐문부재하여 점유관계를 파악하지 못하였으며, 전입 확인결과 별첨과 같이 전입세대 없으며, 출입문에 `전라남도장애인체육회 탁구연습장` 상호의 안내표시판 걸려있음.

미납관리비 조사내역

확인일자 미납금액 관리소번호 메모

※ 해당 정보는 참고용으로 제공되며 입찰 전 반드시 관리사무소를 통해 직접 확인하시기 바랍니다.

시세분석

기타

전문가

관할법원 (입찰장소)

광주지방법원 목포지원

경매2계 : 061-270-6600

전남 목포시 옥암동 1201 주소복사

Q&A

Q. 대법원경매가 무엇인가요?누구나 입찰에 참여할 수 있나요?

경매채무자(빌린 자)가 채무를 갚지 않았을 때 채권자(빌려준 자)의 신청으로 대법원이 채무자의 재산을 대신 매각하는 과정을 말합니다.

법원은 감정인에게 자산을 평가하게 한 후, 최저가를 정하여 그 금액 이상으로 입찰한 입찰자 중 최고가 매수인을 결정합니다.

대법원의 주관하에 국민 모두가 참여할 수 있습니다.

Q. 경매 입찰은 어떻게 하나요?누구나 입찰에 참여할 수 있나요?

1. 입찰하시고자 하는 경매물건을 정하신 후, 입찰하시고자 하는 입찰가를 최저가 이상으로 정합니다.

2. 해당 물건의 매각기일에 직접 관할법원에 방문하셔서 법원내에 비치된 입찰서를 작성하신 후 입찰하시면 됩니다.

TIP! 법원에 가실 때에는 입찰보증금(최저가의 10~30%)과 신분증을 지참하여 방문하세요.

Q. 용어가 너무 어려워서 내용을 이해하기 어려워요누구나 입찰에 참여할 수 있나요?

매각기일
매각기일은 경매 법원이 부동산에 대하여 매각 입찰을 진행하는 날을 말합니다.

유찰
매각 기일에 매수하고자 하는 사람이 없어 매각되지 않아 무효가 되는 것을 유찰이라고 합니다.

최저 매각 가격
최초 경매를 진행할때 감정인이 평가한 가격을 기준으로 책정한 금액이며 입찰자는 최저 매각 가격과 동일하거나 이상의 금액으로 입찰해야 합니다. 매각 기일에 있어 입찰자가 없어 유찰되면 통상 20~30% 저감된 금액이 다음 최저 매각 가격이 됩니다.

매수 보증금
경매 물건을 매수하고자 하는사람은 최저 매각 가격의 10분의 1(다르게 정해질 수 있음)에 해당하는 보증금액을 입찰표와 함께 집행관에게 제출하는 방법으로 제공합니다. 매각 절차가 종결된 후 집행관은 최고가 매수신고인이나 차순위매수신고인 이외의 매수신청인에게는 즉시 매수 보증금을 반환해 줍니다.

더 많은 내용을 알고 싶다면 경매마당 학습하기 코너에 준비된 용어설명을 이용해보세요.

경매정보는 법원자료와 일치하도록 하였으나 권리사항변동, 입력착오 등의 원인으로 사실과 다를 수 있습니다. 이용약관에 의거 면책조건으로 제공됨을 알리며, 경매입찰시 반드시 관련 공부를 재확인하시기 바랍니다.

PC버전으로 보기