알림

알림 내역

알림 신청내역/취소

대법원
물건내역
사건내역
기일내역
송달내역
현황조사
지도
사진보기
문서
매각기일공고문
매각물건명세서
감정평가서
등기부등본
전입세대열람원 M
건축물대장 M
분석
예상배당표 M
수익률분석 M
입찰가분석 M
조회수분석 M
인근지역통계 M
사이트
대법원
국토부 실거래가
토지이음
아실
네이버 단지정보
네이버 매물정보
호갱노노
부동산플래닛
로고 광주지방법원 목포지원 [경매2계] 2024타경51978
전라남도 목포시 수문로111번길 14

전남 목포시 죽교동 82-66

주소복사
경매구분 강제경매
용도 단독주택
토지 96㎡(29.04평)
건물 120.7㎡(36.51평)
감정가 101,394,500원
최저가 56,781,000원
보증금 5,678,100원 (10%)
청구액 25,000,000원
개시결정 2024년 04월 09일
감정일 2024년 04월 23일
배당종기 2024년 07월 10일
매각일 2025년 06월 02일
2024타경51978
2024타경51978
2024타경51978
2024타경51978
2024타경51978
2024타경51978
2024타경51978
2024타경51978
2024타경51978
2024타경51978
2024타경51978
2024타경51978
2024타경51978
2024타경51978
2024타경51978
2024타경51978
2024타경51978
감정가
1억139만4500원
낙찰가 44%
5680만원
배당종결 2025년 06월 02일
유찰 2회선순위임차인임차권등기
유찰 2회선순위임차인임차권등기
경매구분 강제경매
용도 단독주택
토지 96㎡(29.04평)
건물 120.7㎡(36.51평)
감정가 101,394,500원
최저가 56,781,000원
보증금 5,678,100원 (10%)
청구액 25,000,000원
개시결정 2024년 04월 09일
감정일 2024년 04월 23일
배당종기 2024년 07월 10일
매각일 2025년 06월 02일
배당종결 2025년 06월 02일

당사자 내역

채무자겸소유자 박OO
채권자 김OO
임차인 김OO
임차인 고OO
교부권자 국OOOOOOOOOOOO
교부권자 목OO
임차권자 김OO

기일 내역

2025.07.15(16:00)
매각
2025.06.09(16:00)
최고가매각허가결정
2025.06.02(10:00)
5680만원 매각
5678만1000원 최저가
2025.04.07(10:00)
7097만6000원 유찰
2025.02.24(10:00)
1억139만4500원 유찰
2025.01.13(10:00)
기일변경

매각공고

기일 변경(2025년01월09일)

변경 후 추후지정

물건 비고(공고문)

-일괄매각. 제시외 건물 포함 -1층은 공실

임차인(매각 명세서)

<비고>
고소단:신청채권자 김두나의 모
김두나:신청채권자임, l2013.03.20.자 계약서(임차인 김영미(김두나 동생) 작성)의 확정일자: 2013.04.05.임, 22015.04.28.자 재
계약서(임차인 김두나 작성)의 확정일자: 2015.04.30.임.

물건 비고(매각 명세서)

-일괄매각. 제시외 건물 포함
-1층은 공실

현황 조사(현황 조사서)

- 본건 기호(2) 목적물 지상에는 현황결과 별첨 현황사진과 같이 본건 기호(1) 목적물(가) 및 제시외건물(ㄱ,ㄴ,ㄷ)이 소재함. - 위 제시외건물(ㄱ,ㄴ,ㄷ)은 미등기 건물로서 건축물대장 또한 등재되지 않은 건물이며, 이는 본건 목적물(가)의 종물 및 부합물로 판단되고 거주자 고소단에 의하면 임대인이 시설한 것으로 알고있다 주장함. - 제시외건물 - ㄱ : 샷시조 샷시지붕 건물일부 ㄴ : 샷시조 샷시지붕 건물일부 ㄷ : 시멘트블록조 슬레브지붕 계단 및 다용도실 - 위(1-1)에 등재된 김두나는 동인을 만나지 못하였으나 거주자 고소단의 자녀로 임대차계약 명의인이며 우리 사무소에 제출한 임대차계약서를 토대로 작성하였음. - 위(1-2)에 등재된 고소단은 동인을 만나 답변한 내역 및 전입세대확인서를 토대로 작성하였음. - 위(1-3)에 등재된 김관태는 동인을 만나지 못하여 그 전입사유에 대해서는 확인하지 못하였으며, 전입세대확인서를 토대로 작성하였음.

점유 조사(현황 조사서)

[목록1]- 본건 기호(1,2) 목적물 소재지에 수차례 방문하여 2층 거주자 고소단을 만나 문의한 바 1층은 `공실`상태이고 동인은 2층에 거주한다고 주장하여 그 점유를 확인하였으며, 전입세대확인서를 확인한 바 별첨과 같이 말소자 외 고소단, 김관태가 전입세대에 존재함.

매각결과+

매각일자 / 결과 응찰자수 최고가 금액/응찰자명 차순위 금액

현황정보

매각목록

부동산 현황

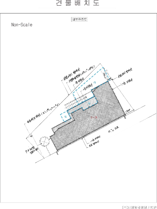
1) 위치 및 주위환경 본건은 전라남도 목포시 죽교동 소재“죽교동교차로”남측 인근에 위치하며, 주변은 단독주택 등이 소재하는 기존 주택지대로서 주위환경은 보통임. 2) 교통상황 본건까지 차량접근 가능하며, 인근에 버스승강장이 소재하는 등 제반 교통상황은 보통임. 3) 형태 및 이용상태 사다리형 완경사지로서, 주거용 건부지로 이용 중임. 4) 인접 도로상태 남동측으로 폭 약 3M - 4M의 아스팔트 포장도로, 남서측으로 소폭의 콘크리트 포장도로가 개설되어 있음. 5) 토지이용계획 및 제한상태 제1종일반주거지역, 고도지구(4층(12m)이하), 가축사육제한구역<가축분뇨의 관리 및 이용에 관한 법률>,상대보호구역<교육환경 보호에 관한 법률>임. 6) 제시목록 외의 물건 제시외건물 ㄱ) : 조적조 슬래브지붕 단층, 주택일부, 약 18.0㎡, ㄴ) : 새시조 강판지붕 단층, 현관, 약 1.9㎡, ㄷ) : 새시조 강판지붕 1-가) 2층 소재, 다용도실, 약 4.9㎡임. 7) 공부와의 차이 해당사항 없음. 8) 기타참고사항(임대관례 및 기타) 해당사항 없음. 1) 건물의 구조 일련번호 1-가) 시멘트 벽돌조 슬라브 위 강판지붕 단층 건물로서, 외벽 : 벽돌 치장 등, 내벽 : 벽지 마감 등, 바닥 : 장판지 깔기 등, 창호 : 새시창호 등임. 2) 이용상태 일련번호 1-가) 주택으로 이용 중임. 3) 설비내역 위생 및 급배수설비, 전기설비, 도시가스에 의한 난방설비 등이 되어 있음. 4) 부합물 및 종물 해당사항 없음. 5) 공부와의 차이 본건 건물 일련번호 1-가)는 공부상 구조가 “시멘트벽돌조 슬라브지붕”이나, 현황 “시멘트벽돌조 슬라브 위 강판지붕"임. 6) 기타참고사항(임대관례 및 기타) 해당사항 없음.

주변 입주 예정

거리 단지명 공급년월 세대 수
※ 해당 자료는 한국부동산원 청약홈 자료에 근거하며, 인근 5km 이내의 물건을 기준으로 산정되었습니다.

등기

등기부현황

채권합계 25,000,000원(1건)
등기일자 권리종류 권리자/채권액 권리
2023-11-22
(을7)
임차권설정 OOOO 인수
- 25,000,000원
2024-03-29
소유자 OOOO
단독소유 -
2024-04-09
(갑4)
강제경매개시결정
(2024타경51978)
OOOO 소멸
말소기준
경매기입 등기
25,000,000원
※ 신규 발급등기의 분석자료 반영에는 최대 1일까지 소요될수 있습니다.(등기분석,임차인분석,분석노트 등)

임차인

매각물건 명세서

구분 법원 사건번호 작성일자 매각명세서
1 목포지원 2024타경51978[1] 2025.01.21
2 목포지원 2024타경51978[1] 작성일자 미확인
구분 법원/
사건번호
작성일자 매각명세서
1 목포지원
2024타경51978[1]
2025.01.21
2 목포지원
2024타경51978[1]
작성일자 미확인

임차인(매각 명세서)

<비고>
고소단:신청채권자 김두나의 모
김두나:신청채권자임, l2013.03.20.자 계약서(임차인 김영미(김두나 동생) 작성)의 확정일자: 2013.04.05.임, 22015.04.28.자 재
계약서(임차인 김두나 작성)의 확정일자: 2015.04.30.임.

물건 비고(매각 명세서)

-일괄매각. 제시외 건물 포함
-1층은 공실

임차인현황

임차인 보증금/차임 전입/확정/배당 대항력
[현황조사]
고소단
(주거임차인)
점유부분:
본건 기호(1) 목적물( 가) 2층 주장
보증:
미상
차임:
-
전입: 2013-03-20
확정: 미상
배당: -
멤버십
김두나
(주거임차권자 / 소액임차인)
점유부분:
건물2층 전부
보증:
25,000,000
차임:
-
전입: 2013-03-20
확정: 2013-04-05
배당: 2024-04-22
멤버십

현황 조사서

조사일시

2024년04월12일 / 2024년04월17일

부동산의 현황

- 본건 기호(2) 목적물 지상에는 현황결과 별첨 현황사진과 같이 본건 기호(1) 목적물(가) 및 제시외건물(ㄱ,ㄴ,ㄷ)이 소재함. - 위 제시외건물(ㄱ,ㄴ,ㄷ)은 미등기 건물로서 건축물대장 또한 등재되지 않은 건물이며, 이는 본건 목적물(가)의 종물 및 부합물로 판단되고 거주자 고소단에 의하면 임대인이 시설한 것으로 알고있다 주장함. - 제시외건물 - ㄱ : 샷시조 샷시지붕 건물일부 ㄴ : 샷시조 샷시지붕 건물일부 ㄷ : 시멘트블록조 슬레브지붕 계단 및 다용도실 - 위(1-1)에 등재된 김두나는 동인을 만나지 못하였으나 거주자 고소단의 자녀로 임대차계약 명의인이며 우리 사무소에 제출한 임대차계약서를 토대로 작성하였음. - 위(1-2)에 등재된 고소단은 동인을 만나 답변한 내역 및 전입세대확인서를 토대로 작성하였음. - 위(1-3)에 등재된 김관태는 동인을 만나지 못하여 그 전입사유에 대해서는 확인하지 못하였으며, 전입세대확인서를 토대로 작성하였음.

점유 조사

[목록1]- 본건 기호(1,2) 목적물 소재지에 수차례 방문하여 2층 거주자 고소단을 만나 문의한 바 1층은 `공실`상태이고 동인은 2층에 거주한다고 주장하여 그 점유를 확인하였으며, 전입세대확인서를 확인한 바 별첨과 같이 말소자 외 고소단, 김관태가 전입세대에 존재함.

1
소재지 전라남도 목포시 수문로111번길 14
점유인 김두나(임차인)
점유부분 본건 기호(1) 2층 주장(주거)
점유기간 2015.04.28~현재
보증금/차임 25,000,000/미상
전입/확정일자 2013.03.20/2015.04.30
2
소재지 전라남도 목포시 수문로111번길 14
점유인 고소단(임차인)
점유부분 본건 기호(1) 목적물(가) 2층 주장(주거)
점유기간 2013.03.20~현재
보증금/차임 미상/미상
전입/확정일자 2013.03.20/미상
3
소재지 전라남도 목포시 수문로111번길 14
점유인 김관태(임차인)
점유부분 미상(기타)
점유기간 미상
보증금/차임 미상/미상
전입/확정일자 2012.03.16/미상

미납관리비 조사내역

확인일자 미납금액 관리소번호 메모

※ 해당 정보는 참고용으로 제공되며 입찰 전 반드시 관리사무소를 통해 직접 확인하시기 바랍니다.

시세분석

기타

전문가

관할법원 (입찰장소)

광주지방법원 목포지원

경매2계 : 061-270-6600

전남 목포시 옥암동 1201 주소복사

Q&A

Q. 대법원경매가 무엇인가요?누구나 입찰에 참여할 수 있나요?

경매채무자(빌린 자)가 채무를 갚지 않았을 때 채권자(빌려준 자)의 신청으로 대법원이 채무자의 재산을 대신 매각하는 과정을 말합니다.

법원은 감정인에게 자산을 평가하게 한 후, 최저가를 정하여 그 금액 이상으로 입찰한 입찰자 중 최고가 매수인을 결정합니다.

대법원의 주관하에 국민 모두가 참여할 수 있습니다.

Q. 경매 입찰은 어떻게 하나요?누구나 입찰에 참여할 수 있나요?

1. 입찰하시고자 하는 경매물건을 정하신 후, 입찰하시고자 하는 입찰가를 최저가 이상으로 정합니다.

2. 해당 물건의 매각기일에 직접 관할법원에 방문하셔서 법원내에 비치된 입찰서를 작성하신 후 입찰하시면 됩니다.

TIP! 법원에 가실 때에는 입찰보증금(최저가의 10~30%)과 신분증을 지참하여 방문하세요.

Q. 용어가 너무 어려워서 내용을 이해하기 어려워요누구나 입찰에 참여할 수 있나요?

매각기일
매각기일은 경매 법원이 부동산에 대하여 매각 입찰을 진행하는 날을 말합니다.

유찰
매각 기일에 매수하고자 하는 사람이 없어 매각되지 않아 무효가 되는 것을 유찰이라고 합니다.

최저 매각 가격
최초 경매를 진행할때 감정인이 평가한 가격을 기준으로 책정한 금액이며 입찰자는 최저 매각 가격과 동일하거나 이상의 금액으로 입찰해야 합니다. 매각 기일에 있어 입찰자가 없어 유찰되면 통상 20~30% 저감된 금액이 다음 최저 매각 가격이 됩니다.

매수 보증금
경매 물건을 매수하고자 하는사람은 최저 매각 가격의 10분의 1(다르게 정해질 수 있음)에 해당하는 보증금액을 입찰표와 함께 집행관에게 제출하는 방법으로 제공합니다. 매각 절차가 종결된 후 집행관은 최고가 매수신고인이나 차순위매수신고인 이외의 매수신청인에게는 즉시 매수 보증금을 반환해 줍니다.

더 많은 내용을 알고 싶다면 경매마당 학습하기 코너에 준비된 용어설명을 이용해보세요.

경매정보는 법원자료와 일치하도록 하였으나 권리사항변동, 입력착오 등의 원인으로 사실과 다를 수 있습니다. 이용약관에 의거 면책조건으로 제공됨을 알리며, 경매입찰시 반드시 관련 공부를 재확인하시기 바랍니다.

PC버전으로 보기