알림

알림 내역

알림 신청내역/취소

로고 광주지방법원 순천지원 [경매8계] 2022타경2626
전라남도 광양시 광양읍 숲샘길 80 외 2 필지

전남 광양시 광양읍 인서리 149

주소복사
경매구분 임의경매
용도 상가
토지 4368㎡(1321.3평)
건물 7805.53㎡(2361.2평)
감정가 11,546,043,300원
최저가 4,138,102,000원
보증금 413,810,200원 (10%)
청구액 2,140,409,110원
개시결정 2022년 06월 23일
감정일 2022년 06월 30일
배당종기 2022년 09월 19일
매각일 2026년 02월 02일
2022타경2626
2022타경2626
2022타경2626
2022타경2626
2022타경2626
2022타경2626
2022타경2626
2022타경2626
2022타경2626
2022타경2626
2022타경2626
2022타경2626
2022타경2626
2022타경2626
2022타경2626
2022타경2626
2022타경2626
2022타경2626
2022타경2626
2022타경2626
2022타경2626
2022타경2626
2022타경2626
2022타경2626
2022타경2626
2022타경2626
2022타경2626
2022타경2626
2022타경2626
2022타경2626
2022타경2626
2022타경2626
2022타경2626
2022타경2626
2022타경2626
2022타경2626
2022타경2626
2022타경2626
2022타경2626
2022타경2626
2022타경2626
2022타경2626
2022타경2626
2022타경2626
2022타경2626
2022타경2626
2022타경2626
2022타경2626
2022타경2626
2022타경2626
2022타경2626
2022타경2626
2022타경2626
2022타경2626
2022타경2626
2022타경2626
2022타경2626
2022타경2626
2022타경2626
2022타경2626
2022타경2626
2022타경2626
감정가
115억4604만3300원
최저가 64%
41억3810만2000원
공고 2026년 02월 02일 입찰 D-59일
유찰 4회유치권선순위임차인
유찰 4회유치권선순위임차인
경매구분 임의경매
용도 상가
토지 4368㎡(1321.3평)
건물 7805.53㎡(2361.2평)
감정가 11,546,043,300원
최저가 4,138,102,000원
보증금 413,810,200원 (10%)
청구액 2,140,409,110원
개시결정 2022년 06월 23일
감정일 2022년 06월 30일
배당종기 2022년 09월 19일
매각일 2026년 02월 02일
공고 2026년 02월 02일 입찰 D-59일

당사자 내역

채무자겸소유자 의OOOOOOOOOO
채권자 광OOOOOO
채권자 정O
배당요구권자 윤OO
배당요구권자 이OO
교부권자 국OOOOOOOOOOOOOO
배당요구권자 이OO
배당요구권자 주OOOOOOOO
배당요구권자 주OOOOOOOOOO
배당요구권자 주OOOOOOOO
배당요구권자 메OOOOOOOO
배당요구권자 (선정당사자)OOO
배당요구권자 농OOOOOOOOOOOOO
배당요구권자 주OOOOOOOO
배당요구권자 주OOOOOOOO
교부권자 순OOOO
유치권자 서OO
가압류권자 이OO
가압류권자 메OOOOOOOOOO
가압류권자 김OO
배당요구권자 김OO
배당요구권자 정OO
유치권자 김OO
임금채권자 장OO
교부권자 광OO
가압류권자 박OO
임차인 의OOOOOOOOOO
임차인 주OOOOOO
임차인 김OO
근저당권자 여OOOOOOOO
근저당권자 진OOOOOO
근저당권자 주OOOOOOOO
가압류권자 주OOOOOOOO
가압류권자 서OO
가압류권자 주OOOOOOOO
임금채권자 근OOOOO
가압류권자 이OO
가압류권자 장OO
가압류권자 한OOOOOOOO
가압류권자 근OOOOO
가압류권자 주OOOOOOOO
압류권자 국OOOOOOO
압류권자 국OOOOOOO
압류권자 광OO
배당요구권자 남OO

기일 내역

2026.02.02(10:00)
41억3810만2000원 진행
2025.11.03(10:00)
기일변경
2025.09.15(10:00)
기일변경
2025.08.04(10:00)
51억7262만7000원 유찰
2025.06.16(10:00)
64억6578만4000원 유찰
2024.05.30(16:00)
최고가매각허가취소결정
2024.05.14(16:00)
최고가매각허가결정
2024.05.07(10:00)
68억5000만원 매각
64억6578만4000원 최저가
2023.07.31(10:00)
기일변경
2023.06.12(10:00)
80억8223만원 유찰
2023.05.01(10:00)
115억4604만3300원 유찰
2023.03.20(10:00)
기일변경

공고 내용 수정(2023년04월19일)

2023.4.19.자로 유치권확인소송 접수증명 제출됨

물건 비고(공고문)

1. 일괄매각. 수목,조경석,제시외 건물 포함 2. 컨테이너 제외 3. 2023.4.19.자로 유치권확인소송(순천지원2023가단1894) 접수증명 제출되었으나, 성립여부는 불분명 4. 2023.6.8.자로 유치권신고서 및 2023.6.12.자로 유치권배제신청서가 접수되었으나, 성립여부는 불분명

임차인(매각 명세서)

김재홍:배당요구 종기 이후에 배당요구함의료법인 서영의료재단:상가건물임대차현황서상 사업자등록신청한 임차인 법인은 이 사건 채무자 겸 소유자 법인임.(본건 부동산에 대하여 채무자 겸 소유자 법인이 2019.07.30.에 소유권이전등기 경료함)주식회사 화문:임대차기간 및 차임, 사업자등록신청일, 임차부분은 상가건물임대차현황서에 기재된 내용임

현황 조사(현황 조사서)

1. 주변은 상가 및 주택으로 형성됨.

점유 조사(현황 조사서)

[목록1]1. 지상층에는 광양우리병원 간판이 걸려 있으나 오래전에 영업이 중단된 상태라고 함. 직원 및 환자 전혀 없음.
2. 1층 병원 입구에 카폐 상점 있으나 공실 상태임.
3. 지하에는 장례식장 있으나 또한 영업 중단된 상태임.

매각결과+

매각일자 / 결과 응찰자수 최고가 금액/응찰자명 차순위 금액
부동산
등기
임차인
그 외

부동산

매각목록

부동산 현황

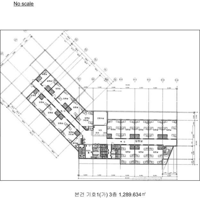
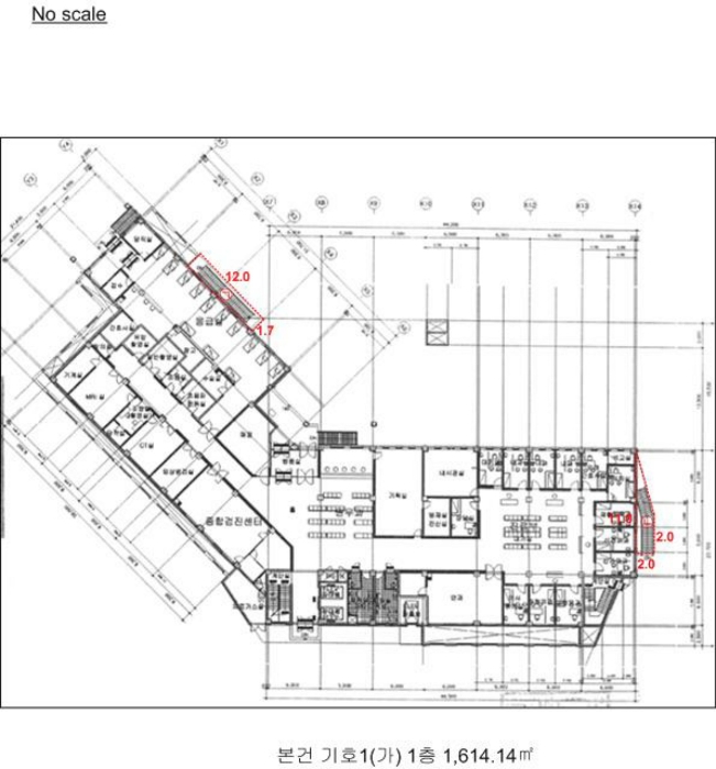
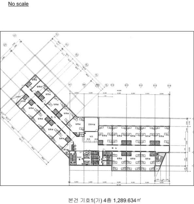
1) 위치 및 주위환경 본건 기호(2-4)는 전라남도 광양시 광양읍 인서리 소재 "광양동초등학교" 남서측 인근에 위치하며, 주변은 학교, 근린생활시설 및 주택 등이 혼재한 주택 및 상가혼용지대로서 주위환경은 보통시됨. 2) 교통상황 본건까지 차량접근 가능하며, 제반교통사정은 보통시됨. 3) 형태 및 이용상태 평지대내 3필 일단의 부정형의 토지로, 상업용 건부지(병원, 현장조사시 개업준비중임)로 이용중임. 4) 인접 도로상태 본건 북측으로 왕복2차선의 아스팔트 포장도로가 개설되어 있으며, 본건 북서측으로 노폭 약 4미터의 아스팔트 포장도로에 접함. 5) 토지이용계획 및 제한상태 기호(2,3) : 제1종일반주거지역, 중로2류(접합), 가축사육제한구역, 상대보호구역, 절대보호구역임. 기호(4) : 제1종일반주거지역, 소로1류(접합), 가축사육제한구역, 상대보호구역임. 6) 제시목록 외의 물건 "건물 감정평가 요항표" 참조. 7) 공부와의 차이 없음. 8) 기타참고사항(임대관례 및 기타) 임대관계는 미상임. 1) 건물의 구조 본건 기호1(가) 철근콘크리트조 평지붕 4층건으로, 외벽 : 드라이비트, 치장석, 화강석 마감 등 내벽 : 목재치장, 페인트, 벽지 및 타일 마감 등 창호 : 새시창 구조임. 제시외건물 기호(ㄱ,ㄴ) ㅁ형강조 렉산지붕 단층건임. 2) 이용상태 기호1(가) 지하1층은 장례식장 및 식당, 1층-4층은 병원으로 이용예정중임. 제시외건물 기호(ㄱ,ㄴ)은 가추로 이용중임. 3) 설비내역 위생설비 및 급배수설비, 난방설비, 승강기설비, 소화전설비, 화재탐지시설 등이 되어 있음. 4) 부합물 및 종물 유첨 사진과 같이 제시외건물 기호(ㄱ,ㄴ)이 소재하며, 옥상에는 옥탑이 소재함. 5) 공부와의 차이 없음. 6) 기타참고사항(임대관례 및 기타) 임대관계는 미상임.

감정평가

주변 입주 예정

거리 단지명 공급년월 세대 수
※ 해당 자료는 한국부동산원 청약홈 자료에 근거하며, 인근 5km 이내의 물건을 기준으로 산정되었습니다.

등기

등기부현황

채권합계 12,223,610,000원(18건)
등기일자 권리종류 권리자/채권액 권리
2019-06-18
(갑8)
근저당권설정 여수중부새마을금고 멤버십
말소기준 등기 2,760,000,000원
2019-06-18
(갑8)
근저당권설정 진남새마을금고 멤버십
- 2,520,000,000원
2019-06-18
(을8)
근저당권설정 광주새마을금고 멤버십
- 2,520,000,000원
2019-07-30
소유자 의료법인서영의료재단 (소유자) 멤버십
단독소유 -
2020-08-19
(을9)
근저당권설정 주식회사하나은행 멤버십
- 1,200,000,000원
2020-11-19
(갑46)
가압류 주식회사초명약품 멤버십
- 21,159,425원
2021-03-24
(갑50)
가압류 서동희 멤버십
- 32,858,542원
2021-04-23
(갑51)
가압류 박인수 멤버십
- 27,474,300원
2021-06-07
(갑52)
가압류 주식회사나노메드 멤버십
- 44,543,710원
2021-07-07
(갑53)
압류 순천세무서장 멤버십
- -
2021-11-09
(갑58)
가압류 이석용 멤버십
- 19,816,670원
2022-01-05
(갑62)
가압류 장효영 멤버십
- 9,266,281원
2022-02-16
(갑63)
가압류 한국렌탈주식회사 멤버십
- 689,278,943원
2022-03-07
(갑64)
가압류 근로복지공단 멤버십
- 116,569,560원
2022-03-17
(갑65)
가압류 주식회사국민은행 멤버십
- 182,976,017원
2022-04-08
(갑66)
가압류 이상혁 멤버십
- 200,000,000원
2022-05-12
(갑67)
가압류 메리츠캐피탈주식회사 멤버십
- 151,291,417원
2022-06-23
(갑68)
임의경매개시결정
(2022타경2626)
광주새마을금고 멤버십
경매기입 등기 2,140,409,110원
2022-08-08
(갑69)
가압류 김연호 멤버십
- 25,198,800원
2022-12-29
(갑70)
가압류 정헌 멤버십
- 58,969,273원
2023-03-22
(갑71)
가압류 국민건강보험공단 멤버십
- 4,400,000,000원
2023-09-13
(갑73)
압류 국민건강보험공단 멤버십
- -
2023-09-18
(갑74)
강제경매개시결정
(2023타경57869)
정헌 멤버십
경매기입 등기
2024-03-11
(갑76)
가압류 박영우 멤버십
- 4,290,640원
더보기 더보기
※ 신규 발급등기의 분석자료 반영에는 최대 1일까지 소요될수 있습니다.(등기분석,임차인분석,분석노트 등)

임차인

매각물건 명세서

구분 법원 사건번호 작성일자 매각명세서
1 순천지원 2022타경2626[1] 2025. 10. 14.
2 순천지원 2022타경2626[1] 2025. 8. 28.
3 순천지원 2022타경2626[1] 2025. 7. 21.
4 순천지원 2022타경2626[1] 2025. 5. 22.
5 순천지원 2022타경2626[1] 2024.04.05
구분 법원/
사건번호
작성일자 매각명세서
1 순천지원
2022타경2626[1]
2025. 10. 14.
2 순천지원
2022타경2626[1]
2025. 8. 28.
3 순천지원
2022타경2626[1]
2025. 7. 21.
4 순천지원
2022타경2626[1]
2025. 5. 22.
5 순천지원
2022타경2626[1]
2024.04.05

임차인(매각 명세서)

김재홍:배당요구 종기 이후에 배당요구함의료법인 서영의료재단:상가건물임대차현황서상 사업자등록신청한 임차인 법인은 이 사건 채무자 겸 소유자 법인임.(본건 부동산에 대하여 채무자 겸 소유자 법인이 2019.07.30.에 소유권이전등기 경료함)주식회사 화문:임대차기간 및 차임, 사업자등록신청일, 임차부분은 상가건물임대차현황서에 기재된 내용임

임차인현황

임차인 보증금/차임 전입/확정/배당 대항력
김재홍
(기타 임차인)
점유부분:
지하1층 일부 722.418㎡
보증:
800,000,000
차임:
-
전입: -
확정: -
배당: 2023.3.14.
멤버십
[현황조사]
의료법인 서영의료재단
(의료시설으로 추정 임차인)
점유부분:
7,805.53㎡
보증:
500,000,000
차임:
30,000,000
사업: 2019-07-24
확정: -
배당: -
멤버십
[현황조사]
주식회사 화문
(알수 없음 임차인)
점유부분:
149-2번지 및 149-5번지 33.0580㎡
보증:
-
차임:
1원
사업: 2014-01-06
확정: -
배당: -
멤버십

현황 조사서

조사일시

2022년07월08일15시24분

부동산의 현황

1. 주변은 상가 및 주택으로 형성됨.

점유 조사

[목록1]1. 지상층에는 광양우리병원 간판이 걸려 있으나 오래전에 영업이 중단된 상태라고 함. 직원 및 환자 전혀 없음.
2. 1층 병원 입구에 카폐 상점 있으나 공실 상태임.
3. 지하에는 장례식장 있으나 또한 영업 중단된 상태임.

1
소재지 전라남도 광양시 광양읍 숲샘길 80
점유인 의료법인 서영의료재단(임차인)
점유부분 미상(기타)
점유기간 2019.07.23 ~ 2021.07.22
보증금/차임 5억원/3천만원
전입/확정일자 2019.07.24/미상
2
소재지 전라남도 광양시 광양읍 숲샘길 80
점유인 주식회사 화문(임차인)
점유부분 미상(기타)
점유기간 미상
보증금/차임 없음/1원
전입/확정일자 2014.01.06/미상

조사일시

2022년07월08일15시24분

부동산의 현황

1. 주변은 상가 및 주택으로 형성됨.

점유 조사

[목록1]1. 지상층에는 광양우리병원 간판이 걸려 있으나 오래전에 영업이 중단된 상태라고 함. 직원 및 환자 전혀 없음.
2. 1층 병원 입구에 카폐 상점 있으나 공실 상태임.
3. 지하에는 장례식장 있으나 또한 영업 중단된 상태임.

1
소재지 전라남도 광양시 광양읍 숲샘길 80
점유인 의료법인 서영의료재단(임차인)
점유부분 미상(기타)
점유기간 2019.07.23 ~ 2021.07.22
보증금/차임 5억원/3천만원
전입/확정일자 2019.07.24/미상
2
소재지 전라남도 광양시 광양읍 숲샘길 80
점유인 주식회사 화문(임차인)
점유부분 미상(기타)
점유기간 미상
보증금/차임 없음/1원
전입/확정일자 2014.01.06/미상

미납관리비 조사내역

확인일자 미납금액 관리소번호 메모

※ 해당 정보는 참고용으로 제공되며 입찰 전 반드시 관리사무소를 통해 직접 확인하시기 바랍니다.

시세

전문가

그외

관할법원 관할법원 (입찰장소)

광주지방법원 순천지원

경매8계 : 061-729-5114

전남 순천시 왕지동 777-1 주소복사

Q&A Q&A

Q. 대법원경매가 무엇인가요?누구나 입찰에 참여할 수 있나요?

경매채무자(빌린 자)가 채무를 갚지 않았을 때 채권자(빌려준 자)의 신청으로 대법원이 채무자의 재산을 대신 매각하는 과정을 말합니다.

법원은 감정인에게 자산을 평가하게 한 후, 최저가를 정하여 그 금액 이상으로 입찰한 입찰자 중 최고가 매수인을 결정합니다.

대법원의 주관하에 국민 모두가 참여할 수 있습니다.

Q. 경매 입찰은 어떻게 하나요?누구나 입찰에 참여할 수 있나요?

1. 입찰하시고자 하는 경매물건을 정하신 후, 입찰하시고자 하는 입찰가를 최저가 이상으로 정합니다.

2. 해당 물건의 매각기일에 직접 관할법원에 방문하셔서 법원내에 비치된 입찰서를 작성하신 후 입찰하시면 됩니다.

TIP! 법원에 가실 때에는 입찰보증금(최저가의 10~30%)과 신분증을 지참하여 방문하세요.

Q. 용어가 너무 어려워서 내용을 이해하기 어려워요누구나 입찰에 참여할 수 있나요?

매각기일
매각기일은 경매 법원이 부동산에 대하여 매각 입찰을 진행하는 날을 말합니다.

유찰
매각 기일에 매수하고자 하는 사람이 없어 매각되지 않아 무효가 되는 것을 유찰이라고 합니다.

최저 매각 가격
최초 경매를 진행할때 감정인이 평가한 가격을 기준으로 책정한 금액이며 입찰자는 최저 매각 가격과 동일하거나 이상의 금액으로 입찰해야 합니다. 매각 기일에 있어 입찰자가 없어 유찰되면 통상 20~30% 저감된 금액이 다음 최저 매각 가격이 됩니다.

매수 보증금
경매 물건을 매수하고자 하는사람은 최저 매각 가격의 10분의 1(다르게 정해질 수 있음)에 해당하는 보증금액을 입찰표와 함께 집행관에게 제출하는 방법으로 제공합니다. 매각 절차가 종결된 후 집행관은 최고가 매수신고인이나 차순위매수신고인 이외의 매수신청인에게는 즉시 매수 보증금을 반환해 줍니다.

더 많은 내용을 알고 싶다면 경매마당 학습하기 코너에 준비된 용어설명을 이용해보세요.

경매정보는 법원자료와 일치하도록 하였으나 권리사항변동, 입력착오 등의 원인으로 사실과 다를 수 있습니다. 이용약관에 의거 면책조건으로 제공됨을 알리며, 경매입찰시 반드시 관련 공부를 재확인하시기 바랍니다.

PC버전으로 보기