알림

알림 내역

알림 신청내역/취소

로고 전주지방법원 본원 [경매1계] 2021타경386
전라북도 완주군 이서면 반교로 363-76 (주건축물제1동)

전북 완주군 이서면 반교리 378-37

주소복사
경매구분 임의경매
용도 단독주택
토지 464㎡(140.4평)
건물 175.28㎡(53평)
감정가 640,824,640원
최저가 219,803,000원
보증금 43,970,000원 (20%)
청구액 277,070,292원
접수일 2021년 01월 13일
개시결정 2021년 01월 14일
감정일 2021년 01월 25일
매각일 2022년 12월 12일
2021타경386
2021타경386
2021타경386
2021타경386
2021타경386
2021타경386
2021타경386
2021타경386
2021타경386
2021타경386
2021타경386
감정가
6억4082만4640원
최저가 66%
2억1980만3000원
기타 2022년 12월 12일
유찰 3회유치권재매각특별매각조건
유찰 3회유치권재매각특별매각조건
경매구분 임의경매
용도 단독주택
토지 464㎡(140.4평)
건물 175.28㎡(53평)
감정가 640,824,640원
최저가 219,803,000원
보증금 43,970,000원 (20%)
청구액 277,070,292원
접수일 2021년 01월 13일
개시결정 2021년 01월 14일
감정일 2021년 01월 25일
매각일 2022년 12월 12일
기타 2022년 12월 12일

당사자 내역

소유자 주OOOOOOO
채권자 전OOOOOOOOOOOO
채무자 함OO
압류권자 완OO
가등기권자 박OO
가등기권자 김OO
교부권자 전OOOO
교부권자 완OO
교부권자 전OOOO
교부권자 국OOOOOOOOOOOOOO

기일 내역

기타
2023.02.01
대금지급기한
2022.12.19
최고가매각허가결정
2022.12.12
6억원 매각
2억1980만3000원 최저가
2022.10.31
3억1400만4000원 유찰
2022.08.24
미납
2022.07.18
최고가매각허가결정
2022.07.11
6억원 매각
3억1400만4000원 최저가
2022.05.16
4억4857만7000원 유찰
2022.03.31
미납
2022.02.28
최고가매각허가결정
2022.02.21
6억2000만원 매각
4억4857만7000원 최저가
2021.12.23
미납
2021.11.22
최고가매각허가결정
2021.11.15
5억9990만원 매각
4억4857만7000원 최저가
2021.10.06
6억4082만4640원 유찰

물건 비고(공고문)

일괄매각,본건 건물에 대하여 유치권 행사 중(감정서 참조) 특별매각조건 매수보증금 20%

인수되는 권리/가처분(매각 명세서)

해당사항없음

지상권(매각 명세서)

해당사항없음

물건 비고(매각 명세서)

일괄매각,본건 건물에 대하여 유치권 행사 중(감정서 참조)
특별매각조건 매수보증금 20%

현황 조사(현황 조사서)

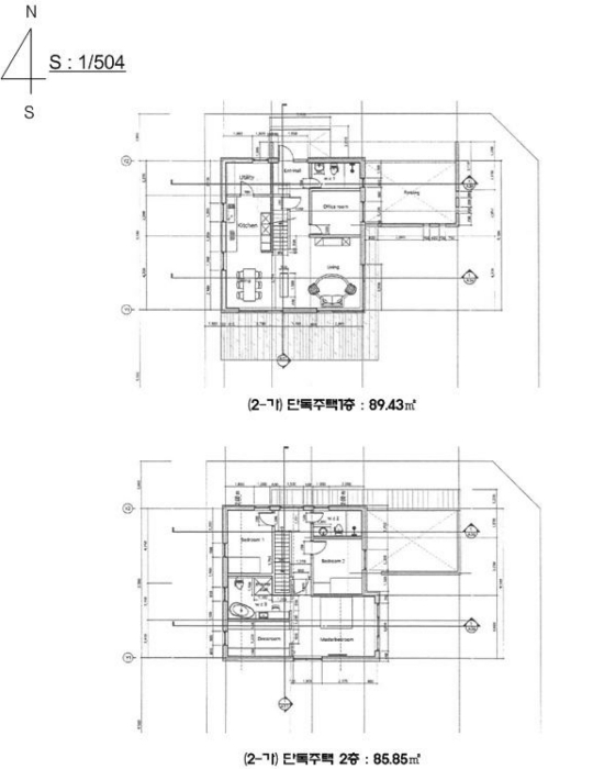
강판지붕 2층 단독주택

점유 조사(현황 조사서)

[목록1]위 장소를 몇차례 방문하였으나, 폐문되어 거주자를 만나지 못하여 점유관계는 미상임. 출입문에 알림메모지를 부착하였으나 연락이 없음. 주민등록전입세대 열람결과 전입자는 없음.[목록2]위 장소를 몇차례 방문하였으나, 폐문되어 거주자를 만나지 못하여 점유관계는 미상임. 출입문에 알림메모지를 부착하였으나 연락이 없음. 주민등록전입세대 열람결과 전입자는 없음.

매각결과+

매각일자 / 결과 응찰자수 최고가 금액/응찰자명 차순위 금액
부동산
등기
임차인
그 외

부동산

매각목록

※ 건축물 도면은 ‘건축물 대장의 기재 및 관리에 관한 규칙’ 에 따라 현재 경매가 진행중인 물건에만 제공됩니다.
※ 지분물건의 경우 면적은 지분에 해당하는 면적이 아닌 전체 면적으로 표기됩니다

감정평가

감정평가서 요약

1.토지감정요항표 1) 위치 및 주위환경 본건은 전라북도 완주군 이서면 반교리 물고기마을 북측 인근에 소재하며, 주변은 단독주택 및 주거나지, 농경지 등이 혼재하는 지역임. 2) 교통상황 본건까지 차량출입 가능하며, 인근에 반교로가 통과하는 등 제반교통여건은 보통인 편임. 3) 형태 및 이용상태 본건은 정방형평지로서 주거용건부지로 이용중임. 4) 인접 도로상태 본건은 북측 및 동측으로 폭 약 6m의 도로와 접함. 5) 토지이용계획 및 제한상태 본건은 도시지역, 자연녹지지역, 가축사육제한구역(상대제한지역 모든축종 제한)임. 6) 제시목록 외의 물건 - 7) 공부와의 차이 - 8) 기타참고사항(임대관례 및 기타) 임대관계 : 미상임.기 타 : - 2.건물감정평가요항표 1) 건물의 구조 본건 기호(2-가)는 일반목구조 강판지붕 2층 건물로서외 벽 : 적삼목사이딩 등 마감.내 벽 : 타일 및 친환경페인트 등 마감.창 호 : 샤시창임. 2) 이용상태 본건 기호(2-가)는 단독주택으로 이용중임. 3) 설비내역 본건 기호(2-가)에 급배수설비 및 위생설비, 난방설비, 방범설비, 소방설비 등 되어있음. 4) 부합물 및 종물 본건 기호(2-가)에 부합물 및 종물인 데크 및 시설물이 소재함. 5) 공부와의 차이 - 6) 기타참고사항(임대관례 및 기타) 임대관계 : 미상임.기 타 : -

주변 입주 예정

거리 단지명 공급년월 세대 수
※ 해당 자료는 한국부동산원 청약홈 자료에 근거하며, 인근 5km 이내의 물건을 기준으로 산정되었습니다.

등기

등기부현황

채권합계 347,000,000원(1건)
등기일자 권리종류 권리자/채권액 권리
2018-08-27
소유자 주식회사썬하우징 (소유자)
단독소유 -
2018-08-27
(을1)
근저당권설정 전주김제완주축산업협동조합 소멸
말소기준 등기 347,000,000원
2020-07-08
(갑2)
소유권이전청구권가등기 김정희 소멸
- -
2021-01-14
(갑3)
임의경매개시결정
(2021타경386)
전주김제완주축산업협동조합 소멸
경매기입 등기 277,070,292원
2021-01-21
(갑4)
압류 국민건강보험공단 소멸
- -
더보기 더보기
※ 신규 발급등기의 분석자료 반영에는 최대 1일까지 소요될수 있습니다.(등기분석,임차인분석,분석노트 등)

임차인

매각물건 명세서

구분 법원 사건번호 작성일자 매각명세서
1 전주지법 2021타경386[1] 2022.08.29
구분 법원/
사건번호
작성일자 매각명세서
1 전주지법
2021타경386[1]
2022.08.29

인수되는 권리/가처분(매각 명세서)

해당사항없음

지상권(매각 명세서)

해당사항없음

물건 비고(매각 명세서)

일괄매각,본건 건물에 대하여 유치권 행사 중(감정서 참조)
특별매각조건 매수보증금 20%

임차인현황

임차인 보증금/차임 전입/확정/배당 대항력
매각물건명세서상 임차인이 존재하지 않습니다.

현황 조사서

조사일시

2021년01월29일16시27분 / 2021년01월20일12시11분

부동산의 현황

강판지붕 2층 단독주택

점유 조사

[목록1]위 장소를 몇차례 방문하였으나, 폐문되어 거주자를 만나지 못하여 점유관계는 미상임. 출입문에 알림메모지를 부착하였으나 연락이 없음. 주민등록전입세대 열람결과 전입자는 없음.[목록2]위 장소를 몇차례 방문하였으나, 폐문되어 거주자를 만나지 못하여 점유관계는 미상임. 출입문에 알림메모지를 부착하였으나 연락이 없음. 주민등록전입세대 열람결과 전입자는 없음.

조사일시

-

부동산의 현황

-

점유 조사

[목록1]위 장소를 몇차례 방문하였으나, 폐문되어 거주자를 만나지 못하여 점유관계는 미상임. 출입문에 알림메모지를 부착하였으나 연락이 없음. 주민등록전입세대 열람결과 전입자는 없음.[목록2]위 장소를 몇차례 방문하였으나, 폐문되어 거주자를 만나지 못하여 점유관계는 미상임. 출입문에 알림메모지를 부착하였으나 연락이 없음. 주민등록전입세대 열람결과 전입자는 없음.

미납관리비 조사내역

확인일자 미납금액 관리소번호 메모

※ 해당 정보는 참고용으로 제공되며 입찰 전 반드시 관리사무소를 통해 직접 확인하시기 바랍니다.

시세

전문가

그외

관할법원 관할법원 (입찰장소)

전주지방법원 본원

경매1계 : 063-259-5438

전북 전주시 덕진구 만성동 1258-3 주소복사

Q&A Q&A

Q. 대법원경매가 무엇인가요?누구나 입찰에 참여할 수 있나요?

경매채무자(빌린 자)가 채무를 갚지 않았을 때 채권자(빌려준 자)의 신청으로 대법원이 채무자의 재산을 대신 매각하는 과정을 말합니다.

법원은 감정인에게 자산을 평가하게 한 후, 최저가를 정하여 그 금액 이상으로 입찰한 입찰자 중 최고가 매수인을 결정합니다.

대법원의 주관하에 국민 모두가 참여할 수 있습니다.

Q. 경매 입찰은 어떻게 하나요?누구나 입찰에 참여할 수 있나요?

1. 입찰하시고자 하는 경매물건을 정하신 후, 입찰하시고자 하는 입찰가를 최저가 이상으로 정합니다.

2. 해당 물건의 매각기일에 직접 관할법원에 방문하셔서 법원내에 비치된 입찰서를 작성하신 후 입찰하시면 됩니다.

TIP! 법원에 가실 때에는 입찰보증금(최저가의 10~30%)과 신분증을 지참하여 방문하세요.

Q. 용어가 너무 어려워서 내용을 이해하기 어려워요누구나 입찰에 참여할 수 있나요?

매각기일
매각기일은 경매 법원이 부동산에 대하여 매각 입찰을 진행하는 날을 말합니다.

유찰
매각 기일에 매수하고자 하는 사람이 없어 매각되지 않아 무효가 되는 것을 유찰이라고 합니다.

최저 매각 가격
최초 경매를 진행할때 감정인이 평가한 가격을 기준으로 책정한 금액이며 입찰자는 최저 매각 가격과 동일하거나 이상의 금액으로 입찰해야 합니다. 매각 기일에 있어 입찰자가 없어 유찰되면 통상 20~30% 저감된 금액이 다음 최저 매각 가격이 됩니다.

매수 보증금
경매 물건을 매수하고자 하는사람은 최저 매각 가격의 10분의 1(다르게 정해질 수 있음)에 해당하는 보증금액을 입찰표와 함께 집행관에게 제출하는 방법으로 제공합니다. 매각 절차가 종결된 후 집행관은 최고가 매수신고인이나 차순위매수신고인 이외의 매수신청인에게는 즉시 매수 보증금을 반환해 줍니다.

더 많은 내용을 알고 싶다면 경매마당 학습하기 코너에 준비된 용어설명을 이용해보세요.

경매정보는 법원자료와 일치하도록 하였으나 권리사항변동, 입력착오 등의 원인으로 사실과 다를 수 있습니다. 이용약관에 의거 면책조건으로 제공됨을 알리며, 경매입찰시 반드시 관련 공부를 재확인하시기 바랍니다.

PC버전으로 보기