전북특별자치도 임실군 임실읍 이도리 328-4
전북특별자치도 임실군 임실읍 이도리 328-4
 박OOOOOOOOOOOOO
박OOOOOOOOOOOOO
                             전OOOOOOOOOOOOOOOOOOOOOOOOOOOO
전OOOOOOOOOOOOOOOOOOOOOOOOOOOO
                             김O
김O
                            해당사항없음
해당사항없음
본건은 3층 다세대 주택으로 보이고, 본건 목록3.에 주거하는 임차인 김용의 진술에 의하면, 목록2.4.5.6.세대에는 주거자가 없는 것으로 안다고 함.
임차인 면담 및 전입세대열람내역서 등 참조하여 작성 함.
[목록5]현장 방문시 아무도 만나지 못하여 점유관계를 알 수 없음(전입세대열람내역 상 등재자가 없음).
| 매각일자 / 결과 | 응찰자수 | 최고가 금액/응찰자명 | 차순위 금액 | 
|---|
| 번호 | 주소 | 상태/입찰일 | 물건내역 | 
|---|---|---|---|
| 1 | 전라북도 임실군 임실읍 중동2길 10, 1층101호 | 배당종결 2023.02.27 | 바로가기 | 
| 2 | 전라북도 임실군 임실읍 중동2길 10, 1층102호 | 배당종결 2023.02.27 | 바로가기 | 
| 3 | 전라북도 임실군 임실읍 중동2길 10, 2층201호 | 배당종결 2023.04.10 | 바로가기 | 
| 4 | 전라북도 임실군 임실읍 중동2길 10, 2층202호 | 배당종결 2023.02.27 | 바로가기 | 
| 5 본건 | 전라북도 임실군 임실읍 중동2길 10, 3층301호 | 배당종결 2023.02.27 | - | 
| 6 | 전라북도 임실군 임실읍 중동2길 10, 3층302호 | 배당종결 2023.02.27 | 바로가기 | 
등기열람(월5회), 임차인 내역, 권리분석
현황조사, 감정평가, 실거래가
...
※ 건축물 도면은 ‘건축물 대장의 기재 및 관리에 관한 규칙’ 에 따라 현재 경매가 진행중인 물건에만 제공됩니다.
※ 지분물건의 경우 면적은 지분에 해당하는 면적이 아닌 전체 면적으로 표기됩니다
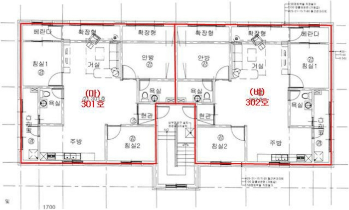
1.구분건물감정평가요항표 1) 위치 및 주위환경 전라북도 임실군 임실읍 이도리 소재 "임실공용터미널" 남측 인근에 위치하며, 주위는단독주택 및 아파트 등이 혼재하는 후면 주택지대로서, 제반 환경 여건은 보통임. 2) 교통상황 대상물건까지 제반 차량의 접근이 가능하고, 인근으로 간선도로가 소재하여 제반 교통 사정은 보통임. 3) 건물의 구조 (가-바) 철근콘크리트구조 경사스라브지붕 3층 중 제1층 제101호 外 5개호로서, 외벽: 치장벽돌 노출쌓기 등 내벽: 벽지도배 등 창호: 샷시 창호임. 4) 이용상태 (가-바) 다세대주택임. 5) 설비내역 기본적인 위생설비 및 난방설비 등을 갖추고 있음. 6) 토지의 형상 및 이용상태 부정형의 토지로서, 다세대주택 부지로 이용중임. 7) 인접 도로상태등 북측에 위치한 왕복 2차선의 포장도로를 통하여 진출입함. 8) 토지이용계획 및 제한상태 제2종일반주거지역(제2종일반주거지역), 소로2류(폭 8M-10M)(접합), 가축사육제한구역(절대금지_2종일반주거지역)<가축분뇨의 관리 및 이용에 관한 법률>, (영산강·섬진강)건축 등 허가제한지역(가축분뇨배출시설 신축 제한)<영산강·섬진강수계 물관리 및 주민지원 등에 관한 법률> 9) 공부와의 차이 해당사항 없음. 10) 기타참고사항(임대관례 및 기타) 임대관계: 미상임.기 타: --
| 거리 | 단지명 | 공급년월 | 세대 수 | 
|---|
| 등기일자 | 권리종류 | 권리자/채권액 | 권리 | 
|---|---|---|---|
| 2020-12-31 | 소유자 | 박철원 (소유자) | |
| 단독소유 | - | ||
| 2020-12-31 (을1) | 근저당권설정 | 전주동산신용협동조합 | 소멸 | 
| 말소기준 등기 | 410,400,000원 | ||
| 2021-02-10 (을2) | 근저당권설정 | 김성수 | 소멸 | 
| - | 200,000,000원 | ||
| 2022-02-10 (갑3) | 임의경매개시결정 (2022타경543) | 전주행복신용협동조합(변경전:전주동산신용협동조합) | 소멸 | 
| 경매기입 등기 | 358,997,291원 | 
| 구분 | 법원 | 사건번호 | 작성일자 | 매각명세서 | 
|---|---|---|---|---|
| 1 | 전주지법 | 2022타경543[5] | 2023.01.20 | 
| 구분 | 법원/ 사건번호 | 작성일자 | 매각명세서 | 
|---|---|---|---|
| 1 | 전주지법 2022타경543[5] | 2023.01.20 | 
해당사항없음
해당사항없음
| 임차인 | 보증금/차임 | 전입/확정/배당 | 대항력 | 
|---|---|---|---|
| 매각물건명세서상 임차인이 존재하지 않습니다. | |||
2022년02월23일10시06분
본건은 3층 다세대 주택으로 보이고, 본건 목록3.에 주거하는 임차인 김용의 진술에 의하면, 목록2.4.5.6.세대에는 주거자가 없는 것으로 안다고 함.
임차인 면담 및 전입세대열람내역서 등 참조하여 작성 함.
[목록5]현장 방문시 아무도 만나지 못하여 점유관계를 알 수 없음(전입세대열람내역 상 등재자가 없음).
| 확인일자 | 미납금액 | 관리소번호 | 메모 | 
|---|
※ 해당 정보는 참고용으로 제공되며 입찰 전 반드시 관리사무소를 통해 직접 확인하시기 바랍니다.
전주지방법원 본원
경매6계 : 063-259-5438
전북 전주시 덕진구 만성동 1258-3
Q. 대법원경매가 무엇인가요?
경매란 채무자(빌린 자)가 채무를 갚지 않았을 때 채권자(빌려준 자)의 신청으로 대법원이 채무자의 재산을 대신 매각하는 과정을 말합니다.
                        법원은 감정인에게 자산을 평가하게 한 후, 최저가를 정하여 그 금액 이상으로 입찰한 입찰자 중 최고가 매수인을 결정합니다.
                        대법원의 주관하에 국민 모두가 참여할 수 있습니다.
Q. 경매 입찰은 어떻게 하나요?
Q. 용어가 너무 어려워서 내용을 이해하기 어려워요
경매정보는 법원자료와 일치하도록 하였으나 권리사항변동, 입력착오 등의 원인으로 사실과 다를 수 있습니다. 이용약관에 의거 면책조건으로 제공됨을 알리며, 경매입찰시 반드시 관련 공부를 재확인하시기 바랍니다.
PC버전으로 보기