알림

알림 내역

알림 신청내역/취소

로고 전주지방법원 본원 [경매1계] 2022타경5340[13]
전라북도 전주시 덕진구 만성북로 23, 1동 4층407호 (만성동,골드타워)

전북특별자치도 전주시 덕진구 만성동 1339-13

주소복사
경매구분 임의경매
용도 상가
토지 38.6㎡(11.7평)
건물 91.52㎡(27.7평)
감정가 294,000,000원
최저가 70,589,000원
보증금 7,058,900원 (10%)
청구액 2,542,047,693원
개시결정 2022년 11월 10일
감정일 2022년 11월 21일
배당종기 2023년 02월 13일
매각일 2023년 12월 11일
2022타경5340[13]
2022타경5340[13]
2022타경5340[13]
2022타경5340[13]
2022타경5340[13]
2022타경5340[13]
2022타경5340[13]
2022타경5340[13]
2022타경5340[13]
2022타경5340[13]
2022타경5340[13]
2022타경5340[13]
2022타경5340[13]
2022타경5340[13]
2022타경5340[13]
감정가
2억9400만원
낙찰가 70%
8820만원
배당종결 2023년 12월 11일
유찰 4회
유찰 4회
경매구분 임의경매
용도 상가
토지 38.6㎡(11.7평)
건물 91.52㎡(27.7평)
감정가 294,000,000원
최저가 70,589,000원
보증금 7,058,900원 (10%)
청구액 2,542,047,693원
개시결정 2022년 11월 10일
감정일 2022년 11월 21일
배당종기 2023년 02월 13일
매각일 2023년 12월 11일
배당종결 2023년 12월 11일

당사자 내역

채무자겸소유자 주OOOOOOOO
채권자 북OOOOOOO
임차인 주OOOOOOOOOOOOO
임차인 안OO
임차인 유OOOOOOOOOOOO
임차인 김OO
임차인 유OOOOOOOOOOOOO
교부권자 천OOOO
교부권자 북OOOOO
교부권자 전OOOOOO
교부권자 국OOOOOOOOOOOO

기일 내역

2024.01.26
납부 (2024.01.26)
2023.12.18
최고가매각허가결정
2023.12.11
8820만원 매각
7058만9000원 최저가
2023.10.30
1억84만2000원 유찰
2023.09.11
기일변경
2023.07.31
기일변경
2023.06.12
1억4406만원 유찰
2023.05.01
2억580만원 유찰
2023.03.20
2억9400만원 유찰

기일 변경(2023년09월08일)

변경 후 추후지정

물건 비고(공고문)

본건은 일부 경계벽을 제거 및 가설하여 사용하고 있으나 경계벽 철거가 일시적인 것으로서, 경계벽 복원에 많은 비용이 들지 않고, 현황 각 호별로 도면 등에 의한 통로가 확보 되어 있어 각 호별로 구분사용이 가능할 것으로 보임(감정평가서 참조), 3층,4층은 관리비가 체납되어있음(부동산현황보고서 참조)

인수되는 권리/가처분(매각 명세서)

해당사항없음

지상권(매각 명세서)

해당사항없음

물건 비고(매각 명세서)

본건은 일부 경계벽을 제거 및 가설하여 사용하고 있으나 경계벽 철거가 일시적인 것으로서, 경계벽 복원에 많은 비용이 들지
않고, 현황 각 호별로 도면 등에 의한 통로가 확보 되어 있어 각 호별로 구분사용이 가능할 것으로 보임(감정평가서 참조), 3
층,4층은 관리비가 체납되어있음(부동산현황보고서 참조)

현황 조사(현황 조사서)

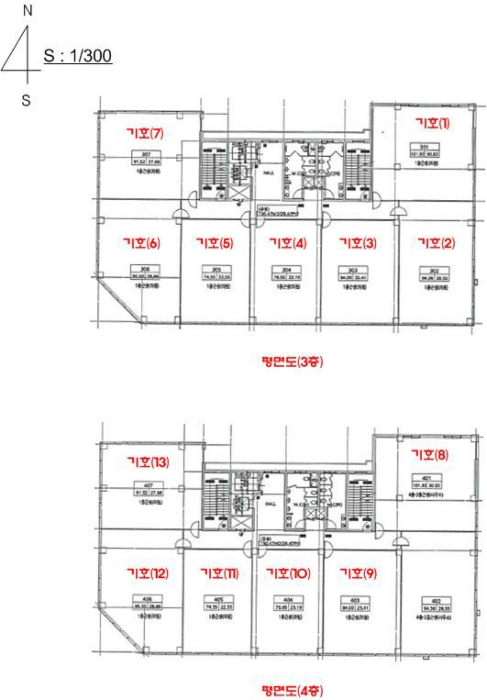
목록1 내지 13은 공부상 각 근린생활시설이고 ‘골드타워’건물의 점포들로서, 목록1 내지 목록7의 점포들은 공동출입문이 폐문되어 육안상 영업을 하지 않고 있는것으로 보이고(출입문에 `본건물 골드타워 3층 4층은 관리비가 체납되어 있으니 입찰참가님께서는 참고하시어 낙찰후 불미스러운 일이 발생하지 않도록 주식회사 장한관리공사에 확인하시어 입찰참가 하시길 바랍니다`라는 내용이 기재되어 있음), 목록8의 점포는‘브앤디 개발’상호의 사무실(임차인: 안준형)이고, 목록9의 점포는 와이에스 공인중개사 사무실이고(임차인: 김수정), 목록10 내지 목록13의 점포는 육안상 하나로 연결되어 있고 출입문이 폐문되어(출입문에 `큰사랑 스포츠클리닉` 상호가 기재되어 있음) 영업을 하지 않고 있는 상태로 보여짐.
위 사람은 위 김수정 및 위 안준형의 면담진술과 채무자겸 소유자인 주식회사 원큐시티의 대표자 윤용준의 전화진술과 상가건물임대차현황서 등을 참조하여 작성한 것임(위 윤용준의 전화진술에 의하면 목록1 내지 목록13의 점포 모두에 대하여 2021.6.경 유한회사 이끌림 범승희에게 임대차보증금 2억원과 월세 2천만원에 임대하여 주었다함)

점유 조사(현황 조사서)

[목록13]출장시 만난 본건 부동산의 401호 임차인이라고 주장하는 안준형의 면담진술(2022.11.22.15시10분경) 및 403호 임차인이라고 주장하는 김수정의 면담진술(2022.11.22.15시20분경)과 본건 부동산의 관리회사인 ㈜장한 관리공사의 사장 노상희의 전화진술(2022.11.22.15시30분경)과 본건 부동산의 채무자겸 소유자인 주식회사 원큐시티의 대표자 윤용준의 전화진술(2022.11.25.10시20분경)에 의하여 이건 현황을 조사하였으니 그 점유관계 등은 별도의 확인을 요함.

매각결과+

매각일자 / 결과 응찰자수 최고가 금액/응찰자명 차순위 금액

동일사건 물건목록

번호 주소 상태/입찰일 물건내역
1 전라북도 전주시 덕진구 만성북로 23, 1동 3층301호 (만성동,골드타워) 배당종결
2023.12.11
바로가기
2 전라북도 전주시 덕진구 만성북로 23, 1동 3층302호 (만성동,골드타워) 배당종결
2023.12.11
바로가기
3 전라북도 전주시 덕진구 만성북로 23, 1동 3층303호 (만성동,골드타워) 배당종결
2023.12.11
바로가기
4 전라북도 전주시 덕진구 만성북로 23, 1동 3층304호 (만성동,골드타워) 배당종결
2023.10.30
바로가기
5 전라북도 전주시 덕진구 만성북로 23, 1동 3층305호 (만성동,골드타워) 배당종결
2023.12.11
바로가기
6 전라북도 전주시 덕진구 만성북로 23, 1동 3층306호 (만성동,골드타워) 배당종결
2023.12.11
바로가기
7 전라북도 전주시 덕진구 만성북로 23, 1동 3층307호 (만성동,골드타워) 배당종결
2023.12.11
바로가기
8 전라북도 전주시 덕진구 만성북로 23, 1동 4층401호 (만성동,골드타워) 배당종결
2023.10.30
바로가기
9 전라북도 전주시 덕진구 만성북로 23, 1동 4층403호 (만성동,골드타워) 배당종결
2023.12.11
바로가기
10 전라북도 전주시 덕진구 만성북로 23, 1동 4층404호 (만성동,골드타워) 배당종결
2023.12.11
바로가기
11 전라북도 전주시 덕진구 만성북로 23, 1동 4층405호 (만성동,골드타워) 배당종결
2023.12.11
바로가기
12 전라북도 전주시 덕진구 만성북로 23, 1동 4층406호 (만성동,골드타워) 배당종결
2023.12.11
바로가기
13
본건
전라북도 전주시 덕진구 만성북로 23, 1동 4층407호 (만성동,골드타워) 배당종결
2023.12.11
-
부동산
등기
임차인
그 외

부동산

매각목록

부동산 현황

1.구분건물감정평가요항표 1) 위치 및 주위환경 본건은 전라북도 전주시 덕진구 만성동 전주양현중학교 북동측 인근에 소재하며, 주변은 아파트단지 및 근린생활시설, 단독주택, 상업나지 등이 혼재하는 지역임. 2) 교통상황 본건까지 차량출입 가능하며, 인근에 간선도로 및 버스승강장이 소재하는 등 제반교통여건은 양호한 편임. 3) 건물의 구조 철근콘크리트구조 (철근)콘크리트지붕 5층중 3층 301호외로서외 벽 : 돌붙임 등 마감.내 벽 : 내부인테리어 등 마감.창 호 : 강화유리 등 임. 4) 이용상태 본건은 공히 근린생활시설(401호 및 403호 일부는 사무실, 기타호는 의원)로 이용 및 이용예정임. 5) 설비내역 위생설비 및 급배수설비, 엘리베이터, 소화전설비 등이 되어있음. 6) 토지의 형상 및 이용상태 장방형평지로서 상업용건물부지로 이용중임. 7) 인접 도로상태등 본건은 서측에 접한 도로를 통해 차량출입함. 8) 토지이용계획 및 제한상태 준주거지역, 제1종지구단위계획구역(전주 만성 도시개발사업), 중로1류(폭 20m-25m)접합, 중로2류(폭 15m-20m)접합, 가축사육제한구역임. 9) 공부와의 차이 - 10) 기타참고사항(임대관례 및 기타) 임대관계 : 미상임.기 타 : 관리비 체납 등에 유의하시기 바람.

감정평가

주변 입주 예정

거리 단지명 공급년월 세대 수
※ 해당 자료는 한국부동산원 청약홈 자료에 근거하며, 인근 5km 이내의 물건을 기준으로 산정되었습니다.

등기

등기부현황

채권합계 3,000,000,000원(1건)
등기일자 권리종류 권리자/채권액 권리
2021-07-09
소유자 주식회사원큐시티 (소유자) 멤버십
단독소유 -
2021-07-09
(을6)
근저당권설정 북부천새마을금고 멤버십
말소기준 등기 3,000,000,000원
2022-11-10
(갑6)
임의경매개시결정
(2022타경5340)
북부천새마을금고 멤버십
경매기입 등기 2,542,047,693원
※ 신규 발급등기의 분석자료 반영에는 최대 1일까지 소요될수 있습니다.(등기분석,임차인분석,분석노트 등)

임차인

매각물건 명세서

구분 법원 사건번호 작성일자 매각명세서
1 전주지법 2022타경5340[13] 2023.09.21
구분 법원/
사건번호
작성일자 매각명세서
1 전주지법
2022타경5340[13]
2023.09.21

인수되는 권리/가처분(매각 명세서)

해당사항없음

지상권(매각 명세서)

해당사항없음

물건 비고(매각 명세서)

본건은 일부 경계벽을 제거 및 가설하여 사용하고 있으나 경계벽 철거가 일시적인 것으로서, 경계벽 복원에 많은 비용이 들지
않고, 현황 각 호별로 도면 등에 의한 통로가 확보 되어 있어 각 호별로 구분사용이 가능할 것으로 보임(감정평가서 참조), 3
층,4층은 관리비가 체납되어있음(부동산현황보고서 참조)

임차인현황

임차인 보증금/차임 전입/확정/배당 대항력
매각물건명세서상 임차인이 존재하지 않습니다.

현황 조사서

조사일시

2022년11월22일15시04분 / 2022년11월30일11시51분

부동산의 현황

목록1 내지 13은 공부상 각 근린생활시설이고 ‘골드타워’건물의 점포들로서, 목록1 내지 목록7의 점포들은 공동출입문이 폐문되어 육안상 영업을 하지 않고 있는것으로 보이고(출입문에 `본건물 골드타워 3층 4층은 관리비가 체납되어 있으니 입찰참가님께서는 참고하시어 낙찰후 불미스러운 일이 발생하지 않도록 주식회사 장한관리공사에 확인하시어 입찰참가 하시길 바랍니다`라는 내용이 기재되어 있음), 목록8의 점포는‘브앤디 개발’상호의 사무실(임차인: 안준형)이고, 목록9의 점포는 와이에스 공인중개사 사무실이고(임차인: 김수정), 목록10 내지 목록13의 점포는 육안상 하나로 연결되어 있고 출입문이 폐문되어(출입문에 `큰사랑 스포츠클리닉` 상호가 기재되어 있음) 영업을 하지 않고 있는 상태로 보여짐.
위 사람은 위 김수정 및 위 안준형의 면담진술과 채무자겸 소유자인 주식회사 원큐시티의 대표자 윤용준의 전화진술과 상가건물임대차현황서 등을 참조하여 작성한 것임(위 윤용준의 전화진술에 의하면 목록1 내지 목록13의 점포 모두에 대하여 2021.6.경 유한회사 이끌림 범승희에게 임대차보증금 2억원과 월세 2천만원에 임대하여 주었다함)

점유 조사

[목록13]출장시 만난 본건 부동산의 401호 임차인이라고 주장하는 안준형의 면담진술(2022.11.22.15시10분경) 및 403호 임차인이라고 주장하는 김수정의 면담진술(2022.11.22.15시20분경)과 본건 부동산의 관리회사인 ㈜장한 관리공사의 사장 노상희의 전화진술(2022.11.22.15시30분경)과 본건 부동산의 채무자겸 소유자인 주식회사 원큐시티의 대표자 윤용준의 전화진술(2022.11.25.10시20분경)에 의하여 이건 현황을 조사하였으니 그 점유관계 등은 별도의 확인을 요함.

미납관리비 조사내역

확인일자 미납금액 관리소번호 메모

※ 해당 정보는 참고용으로 제공되며 입찰 전 반드시 관리사무소를 통해 직접 확인하시기 바랍니다.

시세

전문가

그외

관할법원 관할법원 (입찰장소)

전주지방법원 본원

경매1계 : 063-259-5438

전북 전주시 덕진구 만성동 1258-3 주소복사

Q&A Q&A

Q. 대법원경매가 무엇인가요?누구나 입찰에 참여할 수 있나요?

경매채무자(빌린 자)가 채무를 갚지 않았을 때 채권자(빌려준 자)의 신청으로 대법원이 채무자의 재산을 대신 매각하는 과정을 말합니다.

법원은 감정인에게 자산을 평가하게 한 후, 최저가를 정하여 그 금액 이상으로 입찰한 입찰자 중 최고가 매수인을 결정합니다.

대법원의 주관하에 국민 모두가 참여할 수 있습니다.

Q. 경매 입찰은 어떻게 하나요?누구나 입찰에 참여할 수 있나요?

1. 입찰하시고자 하는 경매물건을 정하신 후, 입찰하시고자 하는 입찰가를 최저가 이상으로 정합니다.

2. 해당 물건의 매각기일에 직접 관할법원에 방문하셔서 법원내에 비치된 입찰서를 작성하신 후 입찰하시면 됩니다.

TIP! 법원에 가실 때에는 입찰보증금(최저가의 10~30%)과 신분증을 지참하여 방문하세요.

Q. 용어가 너무 어려워서 내용을 이해하기 어려워요누구나 입찰에 참여할 수 있나요?

매각기일
매각기일은 경매 법원이 부동산에 대하여 매각 입찰을 진행하는 날을 말합니다.

유찰
매각 기일에 매수하고자 하는 사람이 없어 매각되지 않아 무효가 되는 것을 유찰이라고 합니다.

최저 매각 가격
최초 경매를 진행할때 감정인이 평가한 가격을 기준으로 책정한 금액이며 입찰자는 최저 매각 가격과 동일하거나 이상의 금액으로 입찰해야 합니다. 매각 기일에 있어 입찰자가 없어 유찰되면 통상 20~30% 저감된 금액이 다음 최저 매각 가격이 됩니다.

매수 보증금
경매 물건을 매수하고자 하는사람은 최저 매각 가격의 10분의 1(다르게 정해질 수 있음)에 해당하는 보증금액을 입찰표와 함께 집행관에게 제출하는 방법으로 제공합니다. 매각 절차가 종결된 후 집행관은 최고가 매수신고인이나 차순위매수신고인 이외의 매수신청인에게는 즉시 매수 보증금을 반환해 줍니다.

더 많은 내용을 알고 싶다면 경매마당 학습하기 코너에 준비된 용어설명을 이용해보세요.

경매정보는 법원자료와 일치하도록 하였으나 권리사항변동, 입력착오 등의 원인으로 사실과 다를 수 있습니다. 이용약관에 의거 면책조건으로 제공됨을 알리며, 경매입찰시 반드시 관련 공부를 재확인하시기 바랍니다.

PC버전으로 보기