알림

알림 내역

알림 신청내역/취소

로고 전주지방법원 본원 [경매5계] 2022타경32113
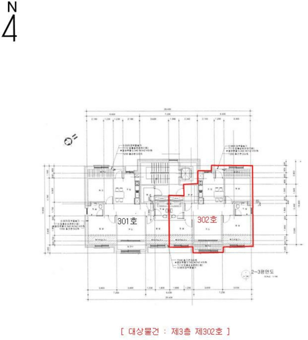
전라북도 전주시 완산구 정동길 5, 3층302호

전북특별자치도 전주시 완산구 삼천동2가 480-2

주소복사
경매구분 강제경매
용도 다세대
토지 -
건물 69.18㎡(20.9평)
감정가 149,700,000원
최저가 73,353,000원
보증금 14,680,000원 (20%)
청구액 233,254,794원
개시결정 2022년 03월 21일
감정일 2022년 03월 31일
배당종기 2022년 06월 21일
매각일 2023년 01월 09일
2022타경32113
2022타경32113
2022타경32113
2022타경32113
2022타경32113
2022타경32113
2022타경32113
2022타경32113
2022타경32113
감정가
1억4970만원
낙찰가 35%
9788만8000원
배당종결 2023년 01월 09일
유찰 2회재매각대지권미등기
유찰 2회재매각대지권미등기
경매구분 강제경매
용도 다세대
토지 -
건물 69.18㎡(20.9평)
감정가 149,700,000원
최저가 73,353,000원
보증금 14,680,000원 (20%)
청구액 233,254,794원
개시결정 2022년 03월 21일
감정일 2022년 03월 31일
배당종기 2022년 06월 21일
매각일 2023년 01월 09일
배당종결 2023년 01월 09일

당사자 내역

채무자겸소유자 홍OO
채권자 김OO
가압류권자 신OOOOO
교부권자 국OOOOOOOOOOOOOO

기일 내역

2023.04.10
기일변경
2023.02.23
미납
2023.01.16
최고가매각허가결정
2023.01.09
9788만8000원 매각
7335만3000원 최저가
2022.11.21
1억479만원 유찰
2022.09.26
1억4970만원 유찰

기일 변경(2023년03월28일)

변경 후 추후지정

물건 비고(공고문)

건물만 매각임. 토지(대지권)에 대하여는 이 법원 2023타경1819 사건으로 경매가 진행중에 있음.

인수되는 권리/가처분(매각 명세서)

해당사항없음

지상권(매각 명세서)

해당사항없음

현황 조사(현황 조사서)

주거용 연립주택

점유 조사(현황 조사서)

[목록1]채무자겸 소유자 홍승연의 딸 추재이 참여하에 이건 현황을 조사함 위 추재이에 의하면 위 소유자 홍승연 세대가 거주하고 있다고 함

매각결과+

매각일자 / 결과 응찰자수 최고가 금액/응찰자명 차순위 금액
부동산
등기
임차인
그 외

부동산

매각목록

※ 건축물 도면은 ‘건축물 대장의 기재 및 관리에 관한 규칙’ 에 따라 현재 경매가 진행중인 물건에만 제공됩니다.
※ 지분물건의 경우 면적은 지분에 해당하는 면적이 아닌 전체 면적으로 표기됩니다

감정평가

감정평가서 요약

1.구분건물감정평가요항표 1) 위치 및 주위환경 전라북도 전주시 완산구 삼천동2가 소재 "해성고등학교" 남측 인근에 위치하며, 주위 는 단독주택 및 연립주택 등이 소재하는 시 근교 지대임. 2) 교통상황 제반 차량의 접근이 가능하고, 인근으로 간선도로 및 버스정류장이 소재하여 제반 교통 사정은 보통임. 3) 건물의 구조 (1) 철근콘크리트구조 (철근)콘크리트지붕 4층 중 제3층 제302호로서, 외벽 : 치장벽돌 노출쌓기 등 내벽 : 벽지도배 등 바닥 : 강화마루 등 창호 : 샷시 창호임. 4) 이용상태 (1) 다세대주택임. 5) 설비내역 위생설비 및 난방설비, 승강기설비 등을 갖추고 있음. 6) 토지의 형상 및 이용상태 부정형의 토지로서, 다세대주택 부지로 이용중임. 7) 인접 도로상태등 북동측으로 노폭 약 4-5미터 정도의 포장도로가 소재함. 8) 토지이용계획 및 제한상태 자연녹지지역, 가축사육제한구역(2019-12-27)<가축분뇨의 관리 및 이용에 관한 법률>임. 9) 공부와의 차이 해당사항 없음. 10) 기타참고사항(임대관례 및 기타) 임대관계: 미상임. 기 타: --

주변 입주 예정

거리 단지명 공급년월 세대 수
※ 해당 자료는 한국부동산원 청약홈 자료에 근거하며, 인근 5km 이내의 물건을 기준으로 산정되었습니다.

등기

등기부현황

채권합계 -
등기일자 권리종류 권리자/채권액 권리
2022-01-24
소유자 홍승연 (소유자)
단독소유 -
2022-03-21
(갑3)
강제경매개시결정
(2022타경32113)
김병진 소멸
말소기준
경매기입 등기
233,254,794원
※ 신규 발급등기의 분석자료 반영에는 최대 1일까지 소요될수 있습니다.(등기분석,임차인분석,분석노트 등)

임차인

매각물건 명세서

구분 법원 사건번호 작성일자 매각명세서
1 전주지법 2022타경32113[1] 2022.07.18
구분 법원/
사건번호
작성일자 매각명세서
1 전주지법
2022타경32113[1]
2022.07.18

인수되는 권리/가처분(매각 명세서)

해당사항없음

지상권(매각 명세서)

해당사항없음

임차인현황

임차인 보증금/차임 전입/확정/배당 대항력
매각물건명세서상 임차인이 존재하지 않습니다.

현황 조사서

조사일시

2022년03월29일14시41분

부동산의 현황

주거용 연립주택

점유 조사

[목록1]채무자겸 소유자 홍승연의 딸 추재이 참여하에 이건 현황을 조사함 위 추재이에 의하면 위 소유자 홍승연 세대가 거주하고 있다고 함

미납관리비 조사내역

확인일자 미납금액 관리소번호 메모

※ 해당 정보는 참고용으로 제공되며 입찰 전 반드시 관리사무소를 통해 직접 확인하시기 바랍니다.

시세

전문가

그외

관할법원 관할법원 (입찰장소)

전주지방법원 본원

경매5계 : 063-259-5438

전북 전주시 덕진구 만성동 1258-3 주소복사

Q&A Q&A

Q. 대법원경매가 무엇인가요?누구나 입찰에 참여할 수 있나요?

경매채무자(빌린 자)가 채무를 갚지 않았을 때 채권자(빌려준 자)의 신청으로 대법원이 채무자의 재산을 대신 매각하는 과정을 말합니다.

법원은 감정인에게 자산을 평가하게 한 후, 최저가를 정하여 그 금액 이상으로 입찰한 입찰자 중 최고가 매수인을 결정합니다.

대법원의 주관하에 국민 모두가 참여할 수 있습니다.

Q. 경매 입찰은 어떻게 하나요?누구나 입찰에 참여할 수 있나요?

1. 입찰하시고자 하는 경매물건을 정하신 후, 입찰하시고자 하는 입찰가를 최저가 이상으로 정합니다.

2. 해당 물건의 매각기일에 직접 관할법원에 방문하셔서 법원내에 비치된 입찰서를 작성하신 후 입찰하시면 됩니다.

TIP! 법원에 가실 때에는 입찰보증금(최저가의 10~30%)과 신분증을 지참하여 방문하세요.

Q. 용어가 너무 어려워서 내용을 이해하기 어려워요누구나 입찰에 참여할 수 있나요?

매각기일
매각기일은 경매 법원이 부동산에 대하여 매각 입찰을 진행하는 날을 말합니다.

유찰
매각 기일에 매수하고자 하는 사람이 없어 매각되지 않아 무효가 되는 것을 유찰이라고 합니다.

최저 매각 가격
최초 경매를 진행할때 감정인이 평가한 가격을 기준으로 책정한 금액이며 입찰자는 최저 매각 가격과 동일하거나 이상의 금액으로 입찰해야 합니다. 매각 기일에 있어 입찰자가 없어 유찰되면 통상 20~30% 저감된 금액이 다음 최저 매각 가격이 됩니다.

매수 보증금
경매 물건을 매수하고자 하는사람은 최저 매각 가격의 10분의 1(다르게 정해질 수 있음)에 해당하는 보증금액을 입찰표와 함께 집행관에게 제출하는 방법으로 제공합니다. 매각 절차가 종결된 후 집행관은 최고가 매수신고인이나 차순위매수신고인 이외의 매수신청인에게는 즉시 매수 보증금을 반환해 줍니다.

더 많은 내용을 알고 싶다면 경매마당 학습하기 코너에 준비된 용어설명을 이용해보세요.

경매정보는 법원자료와 일치하도록 하였으나 권리사항변동, 입력착오 등의 원인으로 사실과 다를 수 있습니다. 이용약관에 의거 면책조건으로 제공됨을 알리며, 경매입찰시 반드시 관련 공부를 재확인하시기 바랍니다.

PC버전으로 보기