알림

알림 내역

알림 신청내역/취소

대법원
물건내역
사건내역
기일내역
송달내역
현황조사
지도
사진보기
문서
매각기일공고문
매각물건명세서
감정평가서 M
등기부등본
전입세대열람원 M
건축물대장 M
분석
예상배당표 M
수익률분석 M
입찰가분석 M
조회수분석 M
인근지역통계 M
사이트
대법원
국토부 실거래가
토지이음
아실
네이버 단지정보
네이버 매물정보
호갱노노
부동산플래닛
로고 전주지방법원 본원 [경매4계] 2024타경2468[2]
전북특별자치도 전주시 완산구 강당1길 22 외 1 필지

전북특별자치도 전주시 완산구 서완산동2가 334-19

주소복사
경매구분 임의경매
용도 단독주택
토지 325㎡(98.31평)
건물 437.4㎡(132.31평)
감정가 758,230,000원
최저가 371,533,000원
보증금 37,153,300원 (10%)
청구액 584,905,108원
개시결정 2024년 05월 08일
감정일 2024년 05월 16일
배당종기 2024년 08월 06일
매각일 2025년 06월 02일
2024타경2468[2]
2024타경2468[2]
2024타경2468[2]
2024타경2468[2]
2024타경2468[2]
2024타경2468[2]
2024타경2468[2]
2024타경2468[2]
2024타경2468[2]
2024타경2468[2]
2024타경2468[2]
2024타경2468[2]
2024타경2468[2]
2024타경2468[2]
2024타경2468[2]
2024타경2468[2]
2024타경2468[2]
2024타경2468[2]
2024타경2468[2]
2024타경2468[2]
2024타경2468[2]
2024타경2468[2]
2024타경2468[2]
2024타경2468[2]
2024타경2468[2]
2024타경2468[2]
2024타경2468[2]
2024타경2468[2]
2024타경2468[2]
2024타경2468[2]
2024타경2468[2]
2024타경2468[2]
2024타경2468[2]
2024타경2468[2]
2024타경2468[2]
2024타경2468[2]
2024타경2468[2]
2024타경2468[2]
2024타경2468[2]
2024타경2468[2]
2024타경2468[2]
2024타경2468[2]
2024타경2468[2]
2024타경2468[2]
2024타경2468[2]
2024타경2468[2]
2024타경2468[2]
2024타경2468[2]
2024타경2468[2]
2024타경2468[2]
2024타경2468[2]
2024타경2468[2]
2024타경2468[2]
2024타경2468[2]
2024타경2468[2]
2024타경2468[2]
2024타경2468[2]
2024타경2468[2]
2024타경2468[2]
2024타경2468[2]
2024타경2468[2]
2024타경2468[2]
2024타경2468[2]
2024타경2468[2]
2024타경2468[2]
2024타경2468[2]
2024타경2468[2]
2024타경2468[2]
2024타경2468[2]
2024타경2468[2]
2024타경2468[2]
2024타경2468[2]
2024타경2468[2]
2024타경2468[2]
감정가
7억5823만원
771만2644원/평 (토지)
낙찰가 38%
4억6788만8888원
배당종결 2025년 06월 02일
유찰 2회임차권등기
유찰 2회임차권등기
경매구분 임의경매
용도 단독주택
토지 325㎡(98.31평)
건물 437.4㎡(132.31평)
감정가 758,230,000원
최저가 371,533,000원
보증금 37,153,300원 (10%)
청구액 584,905,108원
개시결정 2024년 05월 08일
감정일 2024년 05월 16일
배당종기 2024년 08월 06일
매각일 2025년 06월 02일
배당종결 2025년 06월 02일

당사자 내역

채무자겸소유자 김OO
채권자 남OOOOOOO
임차인 권OO
임차인 권OO
임차인 김OO
임차인 육OO
임차인 송OO
임차인 주OO
임차인 류OO
임차인 김OO
임차인 이OO
임차인 유OO
임차인 서OO
임차인 송OO
임차인 최OO
임차인 김OO
임차인 한OOOOOOOOOOOOOOOO
임차인 한OOOOOOOOOOOOOOOO
임차인 한OOOOOOOOOOOOOOOO
임차인 한OOOOOOOOOOOOOOOO
임차인 한OOOOOOOOOOOOOOOO
가압류권자 고OO
임차인 MOOOOOOOO
임차인 임OO
임차인 박OO
가압류권자 서OOOOOOOOOO
임차인 홍OO
임차인 이OO
임차인 이OO
임차인 한OOOOOOOOOOOOOOOO
임차인 박OO
임차인 홍OOOOOOOOOOO
임차인 이OOOOOOOOOOOOOOO
임차인 송OOOOOOOOOOO
임차인 박OO
가압류권자 주OOOOOOOO
임차인 김OO
압류권자 전OOOOOO
교부권자 북OOOOO
교부권자 전OOOOOO
교부권자 전OOOOOO
교부권자 국OOOOOOOOOOOOOO
배당요구권자 서OOOOOOOOOO
배당요구권자 고OO
배당요구권자 신OOOOOOOO
주택임차권자 한OOOOOOO
배당요구권자 롯OOOOOOOO

기일 내역

2025.07.17(16:00)
납부
2025.06.09(16:00)
최고가매각허가결정
2025.06.02(10:00)
4억6788만8888원 매각
3억7153만3000원 최저가
2025.04.14(10:00)
5억3076만1000원 유찰
2025.02.24(10:00)
7억5823만원 유찰
2024.11.18(10:00)
기일변경

매각공고

기일 변경(2025년01월02일)

변경 후 추후지정

물건 비고(공고문)

일괄매각

임차인(매각 명세서)

<비고>
한국토지주택공사:(101호) 2022.11.16. 제92248호 임차권등기(전주지법 2022카임10077)
한국토지주택공사(임차인 송수영):임차인 송수영(302호)은 2024.03.22. 제24675호 임차권등기(전주지법2024카임10095)를 하
고 이전함.

인수되는 권리/가처분(매각 명세서)

해당사항 없음

지상권(매각 명세서)

해당사항 없음

물건 비고(매각 명세서)

일괄매각

현황 조사(현황 조사서)

목록1.은 목록2. 4층건물의 부지 및 주차장으로 사용되고 있으니 정확한 면적이나 인접토지와 의 경계 등은 측량등 별도의 확인이 필요함. 목록2.는 공부상 1층 상가, 2층 7가구, 3층 7가구, 4층 4가구이나 그 중 현황상 1층 상가는 4인이 임차하고 있고, 4층은 501호,503호,504호의 3가구가 거주함(502호 자체가 없음). 목록3.은 목록4.와 함께 목록5. 3층 건물의 부지로 사용되고 있으니 정확한 면적이나 인접토지와의 경계 등은 측량등 별도의 확인이 필요함. 목록4.는 목록3.과 함꼐 목록5. 3층건물의 부지로 사용되고 있고, 일부는 경계담장을 넘어 길죽하게 아스팔트 포장 도로까지 이어져 있는 토지이니 정확한 면적이나 인접토지와의 경계 등은 측량등 별도의 확인이 필요함. 목록5.는 3층의 단독주택건물(1층 1가구, 2층 3가구, 3층 3가구)이나 1층 101호는 공실로 보임. 목록2. 임지호(503호)는 LH에서 임차보증금을 지원받았다면서 LH가 소유자와 계약을 하였다고 진술하고, 상가임차인 홍현자는 재계약하면서 월세를 25만원으로 증액하였다고 하고, 상가임차인 이채원은 재계약하면서 월세를 45만원에서 43만원으로 감액하였다고 진술하고, 상가임차인 송은우(103호)는 상가에 잠을 잘 수 있는 곳이 있어 주소전입도 하였다고 진술하고, MENG YUZI(201호)는 휴대폰으로 임대차계약서를 보내왔고, 30만원 보증금을 월세로 전환해 한달더 거주하고 2024.07.15.자 이사를 간다고 문자메시지(2024.05.22.17:28)를 보내옴. 목록5.와 관련하여 유희상(203호),송준용(303호)의 진술에 의하면 1층 101호는 공실이라고 하고, 서인수(201호)의 진술에 의하면 부 서동주가 LH에서 보증금을 지원받아 LH에서 소유자와 계약을 하였고, 부모 및 동생이 이곳에 거주하고 있다고 하고, 송준용(303호), 최성남(202호)은 LH에서 임차보증금을 지원받았다면서 LH가 소유자와 계약을 하였다고 진술.

점유 조사(현황 조사서)

[목록3]현장에서 만난 임차인 서인수(201호), 유희상(203호)의 참여, 이이삭(301호)과의 전화면담(2024.13:32), 송준용(303호)과 전화면담(2024.05.20.19:46), 최성남(202호)과의 전화면담(2024.05.22.11:57)에 의하여 이건 현황을 조사함.
그 외 점유자 등은 만날 수 없어서 연락처가 기재된 안내문을 출입문에 부착해두었으나 점유자 등으로부터 아무런 연락이 없으므로 전입세대열람 내역에 등재된 각 세대주의 점유로 보고함. 단 점유권원 등은 별도 확인이 필요함.
[목록4]현장에서 만난 임차인 서인수(201호), 유희상(203호)의 참여, 이이삭(301호)과의 전화면담(2024.13:32), 송준용(303호)과 전화면담(2024.05.20.19:46), 최성남(202호)과의 전화면담(2024.05.22.11:57)에 의하여 이건 현황을 조사함.
그 외 점유자 등은 만날 수 없어서 연락처가 기재된 안내문을 출입문에 부착해두었으나 점유자 등으로부터 아무런 연락이 없으므로 전입세대열람 내역에 등재된 각 세대주의 점유로 보고함. 단 점유권원 등은 별도 확인이 필요함.
[목록5]현장에서 만난 임차인 서인수(201호), 유희상(203호)의 참여, 이이삭(301호)과의 전화면담(2024.13:32), 송준용(303호)과 전화면담(2024.05.20.19:46), 최성남(202호)과의 전화면담(2024.05.22.11:57)에 의하여 이건 현황을 조사함.
서인수, 유희상, 이이삭, 송준용, 최성남의 진술에 의하면 각 호수를 점유하고 있다고 함.
그 외 점유자 등은 만날 수 없어서 연락처가 기재된 안내문을 출입문에 부착해두었으나 점유자 등으로부터 아무런 연락이 없으므로 전입세대열람 내역에 등재된 각 세대주의 점유로 보고함. 단 점유권원 등은 별도 확인이 필요함.

매각결과+

매각일자 / 결과 응찰자수 최고가 금액/응찰자명 차순위 금액

가장 빠른 경매 정보 플랫폼 경매마당
남들보다 먼저 정보를 선점하세요

간단한 로그인 후 바로 이용 가능합니다

bolt 대법원 보다 빠른 물건 정보
verified 가장 많은 경매 물건 제공
trending_up 월 5회 등기부 무료 열람

현황정보

매각목록

부동산 현황

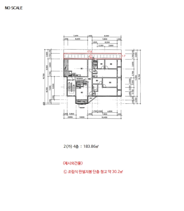
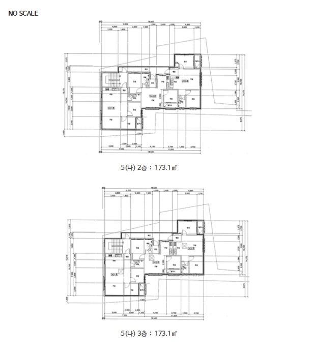
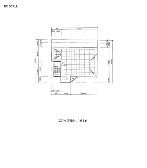
1) 위치 및 주위환경 -기호1) 본건은 전북특별자치도 전주시 덕진구 인후동1가 소재 「인후초등학교」북동측 인근에 위치하며, 부근은 주로 주상용 및 단독주택, 학교 등으로 이루어진 주상용지대로서 주변환경은 대체로 양호합니다. -기호3,4) 본건은 전북특별자치도 전주시 완산구 서완산동2가 소재 「오페라하우스아파트」동측 인근에 위치하며, 부근은 주로 주거용건물, 아파트 등으로 이루어진 주거지대로서 주변환경은 대체로 양호합니다. 2) 교통상황 -기호1,3,4) 각 토지까지 차량출입 가능하며, 인근에 시내버스정류장이 위치하여, 일반적인 대중교통사정은 양호합니다. 3) 형태 및 이용상태 -기호1) 세장형의 토지로서 주변 토지와 등고 평탄하며, 주상용부지로 이용중입니다. -기호3,4) 2필 일단지 부정형의 토지로서 자체 지반은 평탄하나 주변 토지는 전체적으로 완경사이며, 주택부지로 이용중입니다. 4) 인접 도로상태 -기호1) 남측으로 약 8M 정도의 포장도로에 접합니다. -기호3,4) 서측으로 약 8M 정도의 포장도로에 접합니다. 5) 토지이용계획 및 제한상태 -기호1) 제1종일반주거지역, 지구단위계획구역(아중), 소로2류(폭 8m-10m)(접합), 가축사육제한구역 (주거밀집지역)<가축분뇨의 관리 및 이용에 관한 법률>, 상대보호구역<교육환경 보호에 관한 법률>입니다. -기호3,4) 제2종일반주거지역, 고도지구(10층이하), 지구단위계획구역(아중), 소로3류(폭 8m미만)(접합), 가축사육제한구역(주거밀집지역)<가축분뇨의 관리 및 이용에 관한 법률>, 지적재조사사업지구(서완산2지구)입니다. 6) 제시목록 외의 물건 없습니다. 7) 공부와의 차이 없습니다. 8) 기타참고사항(임대관례 및 기타) 1) 임대관계 : 건물평가요항표 임대관계란 참조바랍니다. 2) 기 타 : -- 1) 건물의 구조 기호2(가) : 철근콘크리트조 슬라브지붕 4층으로 외 벽 : 화강석붙임, 드라이비트 마감 등, 내 벽 : 타일 및 벽지마감 등. 창 호 : 알미늄샷시 유리창의 구조로서 2001.11.22. 사용승인된 건물로서 현상 및 관리상태 등은 보통인 편입니다. (제시외건물) 기호2(가)의 1층 및 4층부분에 소재하는 부합물(기호㉠,㉡)로 조립식구조 판넬지붕입니다. 기호5(나) : 철근콘크리트구조 (철근)콘크리트지붕 3층으로 외 벽 : 치장벽돌쌓기, 드라이비트 마감 등, 내 벽 : 타일 및 벽지마감 등. 창 호 : 알미늄샷시 유리창의 구조로서 2014.04.24. 사용승인된 건물로서 현상 및 관리상태 등은 보통인 편입니다. 2) 이용상태 기호2(가) : 건물의 외부표기상 명칭은 「도현빌리지」이며, 1층은 근린생활시설(뷰티 바디스토리, 시온도장건설) 2-4층은 각각 주택으로 이용중입니다. (제시외건물) 기호㉠,㉡ : 각각 창고입니다. 기호5(나) : 건물의 외부표기상 명칭은 「해든마루」이며, 1-3층은 각각 주택으로 이용중이며, 3층부분에 일부 다락방이 소재합니다. 3) 설비내역 기호2(가), 5(나) : 위생설비, 난방설비 등이 각각 설치되어 있습니다. 4) 부합물 및 종물 기호2(가)건물의 부합물인 기호㉠,㉡ 참조 바랍니다. 5) 공부와의 차이 없습니다. 6) 기타참고사항(임대관례 및 기타) 1)임대관계 : 임대관계는 미상입니다. 2)기 타 : --

주변 입주 예정

거리 단지명 공급년월 세대 수
※ 해당 자료는 한국부동산원 청약홈 자료에 근거하며, 인근 5km 이내의 물건을 기준으로 산정되었습니다.

등기

등기부현황

채권합계 245,360,000원(3건)
등기일자 권리종류 권리자/채권액 권리
2014-05-27
(을1)
근저당권설정 전OOOOOOOOO OO
말소기준 등기 390,000,000원
2017-08-02
(을1-2)
근저당권변경 OO
- 220,000,000원
2019-02-15
소유자 김OOOOOOOO OO
단독소유 -
2019-02-15
(을1-3)
근저당권이전 남OOOOOOO OO
- -
2022-11-16
(을2)
임차권설정 한OOOOOOO OO
- 70,000,000원
2024-01-09
(갑16)
가압류 주OOOOOOO OO
- 19,364,651원
2024-03-22
(을3)
임차권설정 한OOOOOOO OO
- 58000000원
(60000000원 중미반환임차보증금)
2024-05-08
(갑17)
임의경매개시결정
(2024타경2468)
남OOOOOOO OO
경매기입 등기 584,905,108원
2024-06-14
(갑18)
가압류 고OO OO
- 6,000,000원
2024-08-01
(을4)
임차권설정 한OOOOOOO OO
- 60,000,000원
2024-08-01
(을5)
임차권설정 한OOOOOOO OO
- 60,000,000원
2024-08-01
(을6)
임차권설정 한OOOOOOO OO
- 55,000,000원
2024-09-09
(을7)
임차권설정 이OO OO
- 60,000,000원
더보기
※ 신규 발급등기의 분석자료 반영에는 최대 1일까지 소요될수 있습니다.(등기분석,임차인분석,분석노트 등)

임차인

매각물건 명세서

구분 법원 사건번호 작성일자 매각명세서
1 전주지법 2024타경2468[2] 2025.01.2 4
2 전주지법 2024타경2468[2] 2024.11.11
구분 법원/
사건번호
작성일자 매각명세서
1 전주지법
2024타경2468[2]
2025.01.2 4
2 전주지법
2024타경2468[2]
2024.11.11

임차인(매각 명세서)

<비고>
한국토지주택공사:(101호) 2022.11.16. 제92248호 임차권등기(전주지법 2022카임10077)
한국토지주택공사(임차인 송수영):임차인 송수영(302호)은 2024.03.22. 제24675호 임차권등기(전주지법2024카임10095)를 하
고 이전함.

인수되는 권리/가처분(매각 명세서)

해당사항 없음

지상권(매각 명세서)

해당사항 없음

물건 비고(매각 명세서)

일괄매각

임차인현황

임차인 보증금/차임 전입/확정/배당 대항력
[현황조사]
김OO
(주거임차인)
점유부분:
미상
보증:
-
차임:
-
전입: 2022-11-28
확정: -
배당: -
멤버십
[현황조사]
서OO
(주거임차인)
점유부분:
201호
보증:
60,000,000
차임:
-
전입: 2019-09-27
확정: -
배당: -
멤버십
[현황조사]
송OO
(주거임차인)
점유부분:
303호
보증:
55,000,000
차임:
-
전입: 2019-09-17
확정: -
배당: -
멤버십
유OO
(주거임차인)
점유부분:
203호
보증:
60,000,000
차임:
-
전입: 2021-10-05
확정: 2021-09-09
배당: 2024-05-21
멤버십
이OO
(주거임차인)
점유부분:
301호
보증:
60,000,000
차임:
80,000
전입: 2020-10-12
확정: 2020-09-16
배당: 2024-05-21
멤버십
[현황조사]
최OO
(주거임차인)
점유부분:
202호
보증:
69,000,000
차임:
-
전입: 2021-06-28
확정: -
배당: -
멤버십
한OOOOOOOO
(주거주택임차권자)
점유부분:
101호
보증:
70,000,000
차임:
-
전입: 2020-09-07
확정: 2020-09-01
배당: -
멤버십
한OOOOOOOOOOOOOOOOOO
(주거임차인)
점유부분:
303호
보증:
55,000,000
차임:
-
전입: 2020-07-03
확정: 2019-09-04
배당: 2024-07-08
멤버십
한OOOOOOOOOOOOOOOOOO
(주거임차인)
점유부분:
201호
보증:
60,000,000
차임:
-
전입: 2019-09-27
확정: 2019-09-11
배당: 2024-07-08
멤버십
한OOOOOOOOOOOOOOOOOO
(주거임차인)
점유부분:
302호
보증:
58,000,000
차임:
-
전입: 2024-03-15
확정: 2020-02-17
배당: 2024-07-08
멤버십
한OOOOOOOOOOOOOOOOOO
(주거임차인)
점유부분:
303호
보증:
55,000,000
차임:
-
전입: 2019-09-17
확정: 2019-09-04
배당: 2024-07-08
멤버십
한OOOOOOOOOOOOOOOOOO
(주거임차인)
점유부분:
202호
보증:
60,000,000
차임:
-
전입: 2021-06-28
확정: 2021-06-07
배당: 2024-07-08
멤버십

현황 조사서

조사일시

2024년05월20일14시50분 / 2024년05월23일12시00분

부동산의 현황

목록1.은 목록2. 4층건물의 부지 및 주차장으로 사용되고 있으니 정확한 면적이나 인접토지와 의 경계 등은 측량등 별도의 확인이 필요함. 목록2.는 공부상 1층 상가, 2층 7가구, 3층 7가구, 4층 4가구이나 그 중 현황상 1층 상가는 4인이 임차하고 있고, 4층은 501호,503호,504호의 3가구가 거주함(502호 자체가 없음). 목록3.은 목록4.와 함께 목록5. 3층 건물의 부지로 사용되고 있으니 정확한 면적이나 인접토지와의 경계 등은 측량등 별도의 확인이 필요함. 목록4.는 목록3.과 함꼐 목록5. 3층건물의 부지로 사용되고 있고, 일부는 경계담장을 넘어 길죽하게 아스팔트 포장 도로까지 이어져 있는 토지이니 정확한 면적이나 인접토지와의 경계 등은 측량등 별도의 확인이 필요함. 목록5.는 3층의 단독주택건물(1층 1가구, 2층 3가구, 3층 3가구)이나 1층 101호는 공실로 보임. 목록2. 임지호(503호)는 LH에서 임차보증금을 지원받았다면서 LH가 소유자와 계약을 하였다고 진술하고, 상가임차인 홍현자는 재계약하면서 월세를 25만원으로 증액하였다고 하고, 상가임차인 이채원은 재계약하면서 월세를 45만원에서 43만원으로 감액하였다고 진술하고, 상가임차인 송은우(103호)는 상가에 잠을 잘 수 있는 곳이 있어 주소전입도 하였다고 진술하고, MENG YUZI(201호)는 휴대폰으로 임대차계약서를 보내왔고, 30만원 보증금을 월세로 전환해 한달더 거주하고 2024.07.15.자 이사를 간다고 문자메시지(2024.05.22.17:28)를 보내옴. 목록5.와 관련하여 유희상(203호),송준용(303호)의 진술에 의하면 1층 101호는 공실이라고 하고, 서인수(201호)의 진술에 의하면 부 서동주가 LH에서 보증금을 지원받아 LH에서 소유자와 계약을 하였고, 부모 및 동생이 이곳에 거주하고 있다고 하고, 송준용(303호), 최성남(202호)은 LH에서 임차보증금을 지원받았다면서 LH가 소유자와 계약을 하였다고 진술.

점유 조사

[목록3]현장에서 만난 임차인 서인수(201호), 유희상(203호)의 참여, 이이삭(301호)과의 전화면담(2024.13:32), 송준용(303호)과 전화면담(2024.05.20.19:46), 최성남(202호)과의 전화면담(2024.05.22.11:57)에 의하여 이건 현황을 조사함.
그 외 점유자 등은 만날 수 없어서 연락처가 기재된 안내문을 출입문에 부착해두었으나 점유자 등으로부터 아무런 연락이 없으므로 전입세대열람 내역에 등재된 각 세대주의 점유로 보고함. 단 점유권원 등은 별도 확인이 필요함.
[목록4]현장에서 만난 임차인 서인수(201호), 유희상(203호)의 참여, 이이삭(301호)과의 전화면담(2024.13:32), 송준용(303호)과 전화면담(2024.05.20.19:46), 최성남(202호)과의 전화면담(2024.05.22.11:57)에 의하여 이건 현황을 조사함.
그 외 점유자 등은 만날 수 없어서 연락처가 기재된 안내문을 출입문에 부착해두었으나 점유자 등으로부터 아무런 연락이 없으므로 전입세대열람 내역에 등재된 각 세대주의 점유로 보고함. 단 점유권원 등은 별도 확인이 필요함.
[목록5]현장에서 만난 임차인 서인수(201호), 유희상(203호)의 참여, 이이삭(301호)과의 전화면담(2024.13:32), 송준용(303호)과 전화면담(2024.05.20.19:46), 최성남(202호)과의 전화면담(2024.05.22.11:57)에 의하여 이건 현황을 조사함.
서인수, 유희상, 이이삭, 송준용, 최성남의 진술에 의하면 각 호수를 점유하고 있다고 함.
그 외 점유자 등은 만날 수 없어서 연락처가 기재된 안내문을 출입문에 부착해두었으나 점유자 등으로부터 아무런 연락이 없으므로 전입세대열람 내역에 등재된 각 세대주의 점유로 보고함. 단 점유권원 등은 별도 확인이 필요함.

19
소재지 전북특별자치도 전주시 완산구 강당1길 22
점유인 서OO(임차인)
점유부분 201호(주거)
점유기간 2019.09.27.~현재까지
보증금/차임 60,000,000/미상
전입/확정일자 2019.09.27/미상
20
소재지 전북특별자치도 전주시 완산구 강당1길 22
점유인 유OO(임차인)
점유부분 203호(주거)
점유기간 2021.10.06.~현재까지
보증금/차임 60,000,000/미상
전입/확정일자 2021.10.06/받았다고 함.
21
소재지 전북특별자치도 전주시 완산구 강당1길 22
점유인 송OO(임차인)
점유부분 303호(주거)
점유기간 2019.09.17.~현재까지
보증금/차임 55,000,000/미상
전입/확정일자 2019.09.17/미상
22
소재지 전북특별자치도 전주시 완산구 강당1길 22
점유인 이OO(임차인)
점유부분 301호(주거)
점유기간 2018.01.09.~현재까지
보증금/차임 60,000,000/미상
전입/확정일자 2018.01.09/받았다고 함.
23
소재지 전북특별자치도 전주시 완산구 강당1길 22
점유인 최OO(임차인)
점유부분 202호(주거)
점유기간 2021.06.28.~현재까지
보증금/차임 69,000,000/미상
전입/확정일자 2021.06.28/미상
24
소재지 전북특별자치도 전주시 완산구 강당1길 22
점유인 김OO(임차인)
점유부분 미상(주거)
점유기간 2022.11.28.~현재까지
보증금/차임 미상/미상
전입/확정일자 2022.11.28/미상

조사일시

2024년05월20일14시50분 / 2024년05월23일12시00분

부동산의 현황

목록1.은 목록2. 4층건물의 부지 및 주차장으로 사용되고 있으니 정확한 면적이나 인접토지와 의 경계 등은 측량등 별도의 확인이 필요함.
목록2.는 공부상 1층 상가, 2층 7가구, 3층 7가구, 4층 4가구이나 그 중 현황상 1층 상가는 4인이 임차하고 있고, 4층은 501호,503호,504호의 3가구가 거주함(502호 자체가 없음).
목록3.은 목록4.와 함께 목록5. 3층 건물의 부지로 사용되고 있으니 정확한 면적이나 인접토지와의 경계 등은 측량등 별도의 확인이 필요함.
목록4.는 목록3.과 함꼐 목록5. 3층건물의 부지로 사용되고 있고, 일부는 경계담장을 넘어 길죽하게 아스팔트 포장 도로까지 이어져 있는 토지이니 정확한 면적이나 인접토지와의 경계 등은 측량등 별도의 확인이 필요함.
목록5.는 3층의 단독주택건물(1층 1가구, 2층 3가구, 3층 3가구)이나 1층 101호는 공실로 보임.
목록2. 임지호(503호)는 LH에서 임차보증금을 지원받았다면서 LH가 소유자와 계약을 하였다고 진술하고, 상가임차인 홍현자는 재계약하면서 월세를 25만원으로 증액하였다고 하고, 상가임차인 이채원은 재계약하면서 월세를 45만원에서 43만원으로 감액하였다고 진술하고, 상가임차인 송은우(103호)는 상가에 잠을 잘 수 있는 곳이 있어 주소전입도 하였다고 진술하고, MENG YUZI(201호)는 휴대폰으로 임대차계약서를 보내왔고, 30만원 보증금을 월세로 전환해 한달더 거주하고 2024.07.15.자 이사를 간다고 문자메시지(2024.05.22.17:28)를 보내옴.
목록5.와 관련하여 유희상(203호),송준용(303호)의 진술에 의하면 1층 101호는 공실이라고 하고, 서인수(201호)의 진술에 의하면 부 서동주가 LH에서 보증금을 지원받아 LH에서 소유자와 계약을 하였고, 부모 및 동생이 이곳에 거주하고 있다고 하고, 송준용(303호), 최성남(202호)은 LH에서 임차보증금을 지원받았다면서 LH가 소유자와 계약을 하였다고 진술.

점유 조사

[목록3]현장에서 만난 임차인 서인수(201호), 유희상(203호)의 참여, 이이삭(301호)과의 전화면담(2024.13:32), 송준용(303호)과 전화면담(2024.05.20.19:46), 최성남(202호)과의 전화면담(2024.05.22.11:57)에 의하여 이건 현황을 조사함.
그 외 점유자 등은 만날 수 없어서 연락처가 기재된 안내문을 출입문에 부착해두었으나 점유자 등으로부터 아무런 연락이 없으므로 전입세대열람 내역에 등재된 각 세대주의 점유로 보고함. 단 점유권원 등은 별도 확인이 필요함.
[목록4]현장에서 만난 임차인 서인수(201호), 유희상(203호)의 참여, 이이삭(301호)과의 전화면담(2024.13:32), 송준용(303호)과 전화면담(2024.05.20.19:46), 최성남(202호)과의 전화면담(2024.05.22.11:57)에 의하여 이건 현황을 조사함.
그 외 점유자 등은 만날 수 없어서 연락처가 기재된 안내문을 출입문에 부착해두었으나 점유자 등으로부터 아무런 연락이 없으므로 전입세대열람 내역에 등재된 각 세대주의 점유로 보고함. 단 점유권원 등은 별도 확인이 필요함.
[목록5]현장에서 만난 임차인 서인수(201호), 유희상(203호)의 참여, 이이삭(301호)과의 전화면담(2024.13:32), 송준용(303호)과 전화면담(2024.05.20.19:46), 최성남(202호)과의 전화면담(2024.05.22.11:57)에 의하여 이건 현황을 조사함.
서인수, 유희상, 이이삭, 송준용, 최성남의 진술에 의하면 각 호수를 점유하고 있다고 함.
그 외 점유자 등은 만날 수 없어서 연락처가 기재된 안내문을 출입문에 부착해두었으나 점유자 등으로부터 아무런 연락이 없으므로 전입세대열람 내역에 등재된 각 세대주의 점유로 보고함. 단 점유권원 등은 별도 확인이 필요함.

19
소재지 전북특별자치도 전주시 완산구 강당1길 22
점유인 서OO(임차인)
점유부분 201호(주거)
점유기간 2019.09.27.~현재까지
보증금/차임 60,000,000/미상
전입/확정일자 2019.09.27/미상
20
소재지 전북특별자치도 전주시 완산구 강당1길 22
점유인 유OO(임차인)
점유부분 203호(주거)
점유기간 2021.10.06.~현재까지
보증금/차임 60,000,000/미상
전입/확정일자 2021.10.06/받았다고 함.
21
소재지 전북특별자치도 전주시 완산구 강당1길 22
점유인 송OO(임차인)
점유부분 303호(주거)
점유기간 2019.09.17.~현재까지
보증금/차임 55,000,000/미상
전입/확정일자 2019.09.17/미상
22
소재지 전북특별자치도 전주시 완산구 강당1길 22
점유인 이OO(임차인)
점유부분 301호(주거)
점유기간 2018.01.09.~현재까지
보증금/차임 60,000,000/미상
전입/확정일자 2018.01.09/받았다고 함.
23
소재지 전북특별자치도 전주시 완산구 강당1길 22
점유인 최OO(임차인)
점유부분 202호(주거)
점유기간 2021.06.28.~현재까지
보증금/차임 69,000,000/미상
전입/확정일자 2021.06.28/미상
24
소재지 전북특별자치도 전주시 완산구 강당1길 22
점유인 김OO(임차인)
점유부분 미상(주거)
점유기간 2022.11.28.~현재까지
보증금/차임 미상/미상
전입/확정일자 2022.11.28/미상

미납관리비 조사내역

확인일자 미납금액 관리소번호 메모

※ 해당 정보는 참고용으로 제공되며 입찰 전 반드시 관리사무소를 통해 직접 확인하시기 바랍니다.

시세분석

인근 낙찰사례

기타

전문가

관할법원 (입찰장소)

전주지방법원 본원

경매4계 : 063-259-5438

전북 전주시 덕진구 만성동 1258-3 주소복사

Q&A

Q. 대법원경매가 무엇인가요?누구나 입찰에 참여할 수 있나요?

경매채무자(빌린 자)가 채무를 갚지 않았을 때 채권자(빌려준 자)의 신청으로 대법원이 채무자의 재산을 대신 매각하는 과정을 말합니다.

법원은 감정인에게 자산을 평가하게 한 후, 최저가를 정하여 그 금액 이상으로 입찰한 입찰자 중 최고가 매수인을 결정합니다.

대법원의 주관하에 국민 모두가 참여할 수 있습니다.

Q. 경매 입찰은 어떻게 하나요?누구나 입찰에 참여할 수 있나요?

1. 입찰하시고자 하는 경매물건을 정하신 후, 입찰하시고자 하는 입찰가를 최저가 이상으로 정합니다.

2. 해당 물건의 매각기일에 직접 관할법원에 방문하셔서 법원내에 비치된 입찰서를 작성하신 후 입찰하시면 됩니다.

TIP! 법원에 가실 때에는 입찰보증금(최저가의 10~30%)과 신분증을 지참하여 방문하세요.

Q. 용어가 너무 어려워서 내용을 이해하기 어려워요누구나 입찰에 참여할 수 있나요?

매각기일
매각기일은 경매 법원이 부동산에 대하여 매각 입찰을 진행하는 날을 말합니다.

유찰
매각 기일에 매수하고자 하는 사람이 없어 매각되지 않아 무효가 되는 것을 유찰이라고 합니다.

최저 매각 가격
최초 경매를 진행할때 감정인이 평가한 가격을 기준으로 책정한 금액이며 입찰자는 최저 매각 가격과 동일하거나 이상의 금액으로 입찰해야 합니다. 매각 기일에 있어 입찰자가 없어 유찰되면 통상 20~30% 저감된 금액이 다음 최저 매각 가격이 됩니다.

매수 보증금
경매 물건을 매수하고자 하는사람은 최저 매각 가격의 10분의 1(다르게 정해질 수 있음)에 해당하는 보증금액을 입찰표와 함께 집행관에게 제출하는 방법으로 제공합니다. 매각 절차가 종결된 후 집행관은 최고가 매수신고인이나 차순위매수신고인 이외의 매수신청인에게는 즉시 매수 보증금을 반환해 줍니다.

더 많은 내용을 알고 싶다면 경매마당 학습하기 코너에 준비된 용어설명을 이용해보세요.

경매정보는 법원자료와 일치하도록 하였으나 권리사항변동, 입력착오 등의 원인으로 사실과 다를 수 있습니다. 이용약관에 의거 면책조건으로 제공됨을 알리며, 경매입찰시 반드시 관련 공부를 재확인하시기 바랍니다.

PC버전으로 보기